Aquae Mattiacorum
Aquae Mattiacorum (auch Aquae Mattiacae oder Mattiacum) ist der Name der antiken römischen Siedlung auf dem Stadtgebiet von Wiesbaden. Seit der frühen römischen Kaiserzeit ist in Wiesbaden von einer militärischen Präsenz gegenüber dem Legionslager Mogontiacum (Mainz) auszugehen. Im Hinterland des Limes konnte sich im 2. Jahrhundert eine bedeutende Zivilsiedlung entwickeln, die zum Hauptort der Civitas Mattiacorum erhoben wurde. Zivilisten und Soldaten schätzten die warmen Wiesbadener Heilquellen, weshalb der Ort den Namenszusatz Aquae trug. Nach dem Rückzug der Römer über den Rhein im 3. Jahrhundert ist in Wiesbaden weiterhin eine militärische Präsenz greifbar, zu deren bedeutendsten Überresten die sogenannte Heidenmauer zählt.

Geschichte
Die ältesten römischen Funde stammen aus einer Moorschicht zwischen Mauritiusstraße, Hochstätte, oberer Kirchgasse und Mauritiusplatz. Die Funde aus der Wiesbadener Moorschicht enden mit einem Zerstörungshorizont in flavischer Zeit, wahrscheinlich infolge des Bataveraufstands 69/70 n. Chr., und reichen bis in augusteische Zeit zurück.[1] Es ist nicht zu entscheiden, ob diese Funde von einem Militärlager oder einer Zivilsiedlung stammen, wobei ersteres auf dem zu dieser Zeit noch weitgehend unbesetzten rechten Rheinufer wahrscheinlicher ist. Emil Ritterling konnte zwischen 1899 und 1923 auf dem Heidenberg mehrere Verteidigungsgräben aus vorflavischer Zeit nachweisen, die sich aber nicht zu einem Lager rekonstruieren ließen. Ritterlings Grabungstätigkeit wurde später von seinen Nachfolgern Ferdinand Kutsch und Helmut Schoppa als Leiter der Sammlung Nassauischer Altertümer im Museum Wiesbaden fortgesetzt.
Als spätestes Wiesbadener Kastell wurde in den 80er Jahren des ersten Jahrhunderts im Anschluss an den Chattenkrieg Kaiser Domitians auf dem Heidenberg das Steinkastell errichtet. Es wurde in spättrajanischer oder frühhadrianischer Zeit mit der Vorverlegung der Truppen an den Limes geräumt, spätestens im Jahr 122 n. Chr. Ein ähnlicher Vorgang ist an vielen rückwärtigen Truppenstandorten der Region wie in Nida (Frankfurt-Heddernheim) oder den Kastellen Okarben und Groß-Gerau zu beobachten.
Bereits im 1. Jahrhundert dürfte sich in Nachbarschaft zu den Kastellen eine Zivilsiedlung (Vicus) befunden haben. Mit dem Abzug der Truppen wurde dieser zum Verwaltungshauptort der umgebenden Civitas, die sich nach dem germanischen Stamm der Mattiaker benannte. Erstmals wird der Name greifbar auf einem in Kastel gefundenen Meilenstein, der die Entfernung von Aquae Mattiacorum angibt und in das Jahr 122 n. Chr. datiert.[2] Wie das gesamte Hinterland des Limes erlebte der Ort im 2. und frühen 3. Jahrhundert einen Aufschwung, der neben der Funktion als Verwaltungsmittelpunkt vor allem auf die Heilquellen zurückgeht. Bedeutende Kur- und Bäderorte waren in der römischen Welt nicht selten, bekannte Beispiele in Deutschland sind etwa Baden-Baden (Aquae) oder Badenweiler. Erst mit dem Fall des Limes um 260 n. Chr. sank die Bedeutung des Ortes drastisch.
Obwohl aus dieser Zeit mehrere Brandhorizonte eine teilweise Zerstörung belegen, weisen Münzfunde auf eine Fortsetzung der zivilen Besiedlung im südlichen Teil des Vicus bis in das 4. Jahrhundert hin, darunter mehrere Münzschätze. In der zweiten Hälfte des 4. Jahrhunderts wurde mit der Heidenmauer das einzige heute noch sichtbare römische Monument Wiesbadens erbaut, wobei nicht sicher geklärt ist, welchem fortifikatorischen Zweck sie diente.
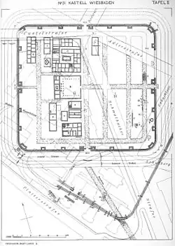
Kastelle

Die von Ritterling nachgewiesenen Gräben an der Platter Straße werden als Lager A, B und C angesprochen; von allen liegen nur Teile des Grabens vor, vom wahrscheinlich ältesten Lager A zusätzlich ein Torbereich mit vorgelagertem Schutzgraben (titulum). Durch Funde lässt sich Lager B in die vorflavische Zeit datieren, Lager C ging möglicherweise dem Steinkastell in der Zeit nach dem Bataveraufstand 69/70 n. Chr. voraus.
Von dem 2,2 ha großen Steinkastell auf dem Heidenberg wurden vorrangig die Hauptgebäude im Inneren ergraben, darunter die Wohnung des Kommandanten (praetorium), ein Lazarett (valetudinarium), zwei Speicherbauten (horrea) sowie das Stabsgebäude (principia). Das Kommandantenhaus wurde nach dem Abzug der Truppen in eine Werkstatt (fabrica) umgewandelt. Vor der Mauer lagen zwei Spitzgräben als Annäherungshindernis.[3]

Einige Soldatengrabsteine aus der Kastellzeit Wiesbadens geben Hinweise auf die hier stationierte Truppe. Es handelt sich hierbei um die ältesten Denkmäler ihrer Art rechts des Rheins. Jeweils während ihrer Dienstzeit verstarben Soldaten der Cohors V Delmatarum,[4] Cohors I Pannoniorum[5] und der Cohors IIII Thracum,[6] wobei nicht gesagt werden kann, wann und in welcher Reihenfolge die Truppen in Wiesbaden stationiert waren. Aussagekräftigere Quellen liegen vor für die Cohors II Raetorum civium Romanorum, die wahrscheinlich die Besatzung des Steinkastells gebildet hatte. Von dieser Kohorte verstarben zwei Soldaten während ihrer Dienstzeit in Wiesbaden.[7] Ein Militärdiplom, das im Bereich des Steinkastells gefunden wurde, weist ebenfalls diese Truppe aus.[8] Die zweite Raeterkohorte wurde um 90 n. Chr. in das Kastell Butzbach in der Wetterau verlegt. Ihr könnte für kurze Zeit die Cohors III Delmatarum als Besatzung des Steinkastells gefolgt sein, von der mehrere Ziegelstempel vorliegen. Diese ist später als Besatzung des Kastell Rückingen belegt.
Thermen


Die Errichtung des Kastells im Wiesbadener Stadtgebiet dürfte nicht allein der Überwachung des Taunuskamms gedient haben. Schon im 1. Jahrhundert setzte ein reger Thermenbetrieb ein, wie sich aus Baumaßnahmen und den damit zusammenhängenden Funden früher Ziegelstempel der Legio XXII Primigenia aus dem benachbarten Mainz erschließen lässt. Bereits Plinius der Ältere erwähnt die Wiesbadener heißen Quellen.[9] Der Dichter Martial nennt den Wiesbadener Quellsinter als Haarfärbemittel.[10]
In Wiesbaden sind insgesamt drei Thermenkomplexe fassbar, von denen die Thermen am Kranzplatz südlich des Kochbrunnens am besten erforscht sind. Sie weisen zwei größere Becken sowie mehrere kleinere Wannen in der Nachbarschaft dazu auf. Ein größeres Gebäude südöstlich davon wird als Herberge (mansio) gedeutet. In der Nähe der Adlerquelle wurde eine weitere Thermenanlage zwischen Coulinstraße und Langgasse aufgedeckt, die einen großen Rundbau (vermutlich ein Laconicum) sowie drei anschließende langrechteckige Gebäude aufwies.
Am wenigsten bekannt ist über die Thermen an der Schützenhofstraße, von denen eine Reihe Inschriften vorliegt. Es handelte sich jedenfalls nicht um ein übliches Kastellbad, obwohl mehrere Inschriften auf eine staatliche oder militärische Verwendung hinweisen. Soldatengrabsteine von Einheiten wie der Ala I Scubulorum oder der Ala I Flavia, die niemals in Wiesbaden stationiert waren, belegen das.[11] Bleirohre mit Inschriften der Legio XIIII Gemina führten das Wasser aus einer gefassten Quelle in das Bad. Ein weiterer Hinweis auf den Kurbetrieb ist die Weihung der Antonia Postuma, Gattin des Mainzer Legionslegaten Titus Porcius Rufianus, die für das Wohl ihrer Tochter der Diana Mattiaca eine Statue mit Sockel stiftete.[12]
Zivilsiedlung
Die Zivilsiedlung entwickelte sich zunächst im Schutz der Kastelle im Bereich südöstlich des Steinkastells. Die Bebauungsgrenze verlief ungefähr entlang der Schwalbacher Straße zum Kochbrunnen, von dort nach Südosten bis zur Mühlgasse, im Süden erstreckte sich der Vicus bis südlich der Maurergasse. Ein Bezug zu den Ausfallstraßen des Kastells ist nicht erkennbar.
Der Ort selbst hatte wie viele Civitas-Hauptorte, die nicht den Status einer Colonia oder eines Municipiums erreichten, den Status eines Vicus, wie aus einer Inschrift aus dem Jahr 194 n. Chr. hervorgeht, welche die Bewohner als vicani Aquenses erwähnt.[13] Eine weitere Inschrift nennt einen praefectus aque(nsium)[14] und verweist ebenfalls auf die Selbstbezeichnung der Bewohner als Aquenses, die auch aus allen anderen Orten mit dem Namensbestandteil Aquae geläufig ist.[15] Neben dem Status als Verwaltungssitz dürften die Heilthermen einen wesentlichen Teil der wirtschaftlichen Grundlage ausgemacht haben, über die ansonsten wenig bekannt ist. Eine Inschrift nennt ein Versammlungshaus der Händler (schola der negotiatores civitatis Mattiacorum),[16] eine weitere einen Keramikhändler (negotiator artis cretariae).[17]
Als einziges Heiligtum der Stadt ist ein Mithräum bekannt, das 1902 nahe der Coulinstraße gefunden wurde. Der Kultraum war teilweise in den Osthang des Schulberges gebaut. Er besaß seitliche Podien als Sitzbänke, eine Nische für das Kultbild sowie eine Opfergrube in der Mitte des Raums. Das Mithräum wurde im 3. Jahrhundert erbaut und um 360 n. Chr. zum Bau der Heidenmauer abgetragen. Weitere Heiligtümer für Iupiter Dolichenus[13] und die keltische Göttin Sirona[18] lassen sich nur durch Inschriften erschließen.
Spätantike

In der Spätantike konzentrierte sich die verbleibende Besiedlung auf den südlichen Vicusbereich zwischen Mauritiusplatz und Friedrichstraße. Nicht vollständig geklärt ist die Funktion der sogenannten Heidenmauer, die nördlich davon in Richtung WNW-OSO verlief. Sie bestand aus einem Gussmauerwerk mit einer Fundamentbreite von drei Metern und ist auf einer Länge von 520 m zu verfolgen, erhalten jedoch nur auf etwa 80 m Länge. Mindestens vier Türme sind nachweisbar, von denen noch einer erhalten ist. Die Funktion der Mauer ist unklar, weil es keine entsprechenden Wehrmauern an den anderen Seiten der Siedlung gab. Ritterling vermutete, dass es sich um eine Sperrmauer (clausura) im Vorland des Mainzer Legionslagers handelte. In neuerer Zeit geht man eher davon aus, dass die Mauer insgesamt unvollendet blieb.[19] Der Bau der Mauer erfolgte anscheinend sehr hastig, da sehr unterschiedliches Steinmaterial, auch Spolien mittelkaiserzeitlicher Steindenkmäler, zum Beispiel Säulenkapitelle, verwendet wurden.[20] Im Umfeld und unmittelbar im Mauerwerk selbst gibt es Ziegelfunde mit Stempeln spätrömischer Militäreinheiten. Die Martenses, Vindices, Secundani und Portissenses gehörten zum Mainzer Kommandobezirk.
1902 wurde die Heidenmauer zum Bau der Coulinstraße durchbrochen und der Durchbruch durch einige romanisierende Anbauten ergänzt. Unterhalb des so entstandenen Römertores wurden Kopien einiger römischer Steindenkmäler aufgestellt.
Kopien von Steindenkmälern aus der Sammlung Nassauischer Altertümer
-
Grabstein des Reiters Dolanus Bessus: „Dolanus Bessus, Sohn des Esbenius, Reiter der 4. Thrakischen Kohorte, 46 Jahre alt, 24 Dienstjahre, liegt hier begraben.“ -
Bauinschrift für ein Versammlungshaus ortsansässiger Händler -
Inschrift zur Wiederherstellung eines Dolichenus-Heiligtums
Siehe auch
Literatur
- Friedrich Gustav Habel: Das Römer-Castell bei Wiesbaden. In: Nassauische Annalen 3, 1842, S. 131–158.
- Max Ihm: Aquae Mattiacae. In: Paulys Realencyclopädie der classischen Altertumswissenschaft (RE). Band II,1, Stuttgart 1895, Sp. 302.
- Emil Ritterling, Ludwig Pallat: Römische Funde aus Wiesbaden. In: Annalen des Vereins für Nassauische Altertumskunde und Geschichtsforschung 29, 1897/98, S. 115–169.
- Emil Ritterling: Das Kastell Wiesbaden. In: Ernst Fabricius, Felix Hettner, Oscar von Sarwey (Hrsg.): Der obergermanisch-raetische Limes des Roemerreiches Abt. B 2,3b Nr. 31 (1909).
- Helmut Schoppa: Aquae Mattiacorum und Civitas Mattiacorum. In: Bonner Jahrbücher 172, 1972, S. 228–237, doi:10.11588/bjb.1972.1.83552.
- Helmut Schoppa: Aquae Mattiacae. Wiesbadens Römische und alamannisch-merowingische Vergangenheit. Steiner, Wiesbaden 1974.
- Hans-Günther Simon: Wiesbaden. WI. Kastelle und Civitas-Hauptort Aquae Mattiacorum. In: Dietwulf Baatz, Fritz-Rudolf Herrmann (Hrsg.): Die Römer in Hessen. Theiss, Stuttgart 1989 (Lizenzausgabe 1989, Nikol, Hamburg 2002, ISBN 3-933203-58-9), S. 485–492.
- Walter Czysz: Wiesbaden in der Römerzeit. Theiss, Stuttgart 1994, ISBN 3-8062-1088-8.
- Karlheinz Dietz: Aquae [III 4, Mattiacae]. In: Der Neue Pauly (DNP). Band 1, Metzler, Stuttgart 1996, ISBN 3-476-01471-1, Sp. 929–930.
- Armin Becker: Mattiacum. In: Reallexikon der Germanischen Altertumskunde (RGA). 2. Auflage. Band 19, Walter de Gruyter, Berlin/New York 2001, ISBN 3-11-017163-5, S. 440–443.
- Anne Wieland: Die Civitas Mattiacorum. Forschungen zur römerzeitlichen Siedlungsgeschichte. Dissertation, Universität zu Köln 2009 (online).
- Margot Klee: Wiesbaden in der Spätantike. In: Alexander Reis (Hrsg.): Das Rhein-Main-Gebiet in der Spätantike – Beiträge zur Archäologie und Geschichte. Akten der Tagung in Obernburg am Main vom 12.–13. April 2018. Verlag Dr. Faustus, Büchenbach 2022, ISBN 978-3-946387-39-8, S. 117–134.
Einzelnachweise
- ↑ Hans Ulrich Nuber: Ein stratigraphischer Aufschluß im Bereich der „Wiesbadener Moorschicht“. In: Fundberichte aus Hessen. 19/20, 1979/80, S. 645–677; Gabriele Seitz: Neue stratigraphische Aufschlüsse in der Wiesbadener Moorschicht. In: Denkmalpflege in Hessen. 1/1988 (online).
- ↑ CIL 13, 9124.
- ↑ Zu den Kastellen siehe Emil Ritterling: Das Kastell Wiesbaden. In: Ernst Fabricius, Felix Hettner, Oscar von Sarwey (Hrsg.): Der obergermanisch-raetische Limes des Roemerreiches Abt. B 2,3b Nr. 31 (1909).
- ↑ CIL 13, 7581.
- ↑ CIL 13, 7582.
- ↑ CIL 13, 7585.
- ↑ CIL 13, 7583; CIL 13, 7584.
- ↑ CIL 16, 62.
- ↑ Plinius, Naturalis historia 31, 20: sunt et Mattiaci in Germania fontes calidi trans Rhenum.
- ↑ Martial, Epigrammata 14, 27.
- ↑ CIL 13, 7580; CIL 13, 7579.
- ↑ CIL 13, 7565.
- ↑ a b CIL 13, 07566a.
- ↑ CIL 13, 7279
- ↑ Werner Eck: Ein praefectus Aquen(sium), kein praefectus aqu(a)e. Zur Inschrift CIL XIII 7279 aus Mainz-Kastel. In: Nassauische Annalen 125, 2014, S. 21–28, hier: S. 26.
- ↑ CIL 13, 7587.
- ↑ CIL 13, 7588.
- ↑ CIL 13, 7570.
- ↑ H.-G. Simon in Baatz/Herrmann 1989, S. 491; H. Schoppa: Aquae Mattiacorum und Civitas Mattiacorum. In: Bonner Jahrbücher. 172, 1972, S. 232.
- ↑ Walter Czysz: Wiesbaden in der Römerzeit. Theiss, Stuttgart 1994, S. 224.
Koordinaten: 50° 5′ N, 8° 15′ O
