Couven-Museum

Das Couven-Museum ist ein Museum der Stadt Aachen. Es zeigt auf drei Etagen bürgerliche Wohnkultur des 18. und frühen 19. Jahrhunderts aus Aachen und Umgebung. Die Räume des Museums werden außerdem für wechselnde Ausstellungen genutzt. Der Name des Museums bezieht sich auf die Aachener Barockarchitekten Johann Joseph Couven und Jakob Couven. Das Museum wurde 1929 im Haus Fey am Seilgraben gegründet und nach dessen Zerstörung im Zweiten Weltkrieg 1958 im Haus Monheim am Hühnermarkt wiedereröffnet.
Geschichte
Das Museum geht auf den Kunsthistoriker Felix Kuetgens zurück, der seit 1923 Direktor der Städtischen Museen in Aachen war. Er hatte die Idee, die Wohnkultur des 18. und frühen 19. Jahrhunderts nicht durch eine Ausstellung von Einzelmöbeln darzustellen, sondern in Form entsprechend eingerichteter Räume.[1]
Haus Fey

Verwirklichen konnte Kuetgens seine Idee in dem 1925 durch die Stadt Aachen erworbenen Haus Fey, das 1765–1767 von Jakob Couven grundlegend umgebaut und ergänzt worden war.[2] Die ältesten Gebäudeteile, die beiden hinteren Flügelbauten, wurden bereits 1681 errichtet.[3] Die Räume des Hauses und das 1927 in den Garten von Haus Fey übertragene Gartenhaus Nuellens wurden von Kuetgens eingerichtet, wobei er auf feste Originalbestände des Hauses wie Kamine, Türen, Fenster, Gitter, Vertäfelungen, Stuckdecken, Parkettböden usw. zurückgreifen konnte. Auch einzelne Zimmereinrichtungen konnten von dem Vorbesitzer übernommen werden. Am 1. Juli 1929 wurde das Museum eröffnet.[4] Benannt wurde es nach Vater und Sohn Couven[4], die beide nicht nur als Architekten durch ihre Bauten die Barock- und Rokokoarchitektur Aachens geprägt hatten, sondern für einige ihrer Bauwerke auch Teile der Inneneinrichtung wie Kamine, Vertäfelungen und Möbel entworfen hatten.[4][5] Zunächst erstreckte das Museum sich nur über den Mittelbau und den rechten Seitenflügel von Haus Fey und umfasste mit dem Gartenhaus 18 Räume.[6] Der linke Seitenflügel wurde noch von dem ehemaligen Besitzer Viktor Fey bewohnt. Nach dessen Tod 1935 wurde auch dieser Flügel dem Museum angegliedert.[7] Mit dem Gartenhaus und zwei kleinen Räumen im Dachgeschoss standen dem Museum nun 28 Räume zur Verfügung.[8]


Die größten Räume des Hauses waren die beiden Säle im Mittelbau und die daran im rechten Flügelbau angrenzenden Säle.[9] Im Erdgeschoss des Mittelbaus lag der Gartensaal, von dem aus Glastüren in den Ehrenhof und in den Garten führten. Er enthielt unter anderem einen Ofen, der von der benachbarten Küche aus beheizt wurde, und einen Rokoko-Vitrinenschrank mit Meißener Porzellan auf der gegenüberliegenden Seite. Ein Gartenweg mit Rokoko-Freitreppe führte zum Gartenpavillon, dessen Wand- und Deckenstuck nach Abformungen aus dem Wespienhaus gebildet war. Im Obergeschoss des Mittelbaus lag der Saal der Familie Ludwigs-Fey, benannt nach der Eigentümerfamilie des Hauses, mit Porträts des Erbauers Andreas Ludwigs und seiner Frau Constantia. Neben dem Kamin stand ein vergoldeter Sessel, an der anderen Wand ein Lütticher Glasschrank mit Porzellantellern. Der Beisselsche Gobelinsaal im Erdgeschoss des rechten Flügels war nach den Gobelins vom Typ der Audenarder Verdüren benannt, die der Kunstsammler Heinrich Beissel dem Museum gestiftet hatte. Der darüber liegende Saal der Josefslegende verdankte seinen Namen den Darstellungen der biblischen Josefsgeschichte, die auf Papiertapeten gemalt waren, was eine preisgünstigere Alternative gegenüber Wandteppichen war.
Von den weiteren Zimmern stach vor allem das Burtscheider Zimmer hervor, dessen auf Johann Joseph Couven zurückgehende Einrichtung aus dem Wohnhaus des Fabrikanten Ludwig Kuehnen, dem „Obersten Klotz“ in der Burtscheider Hauptstraße, stammte und das durch eine Holzwand mit Glasfenstern und -türen in einen Hauptraum und einen Vorraum unterteilt war. Dort standen weiter zwei aus dem Wespienhaus gerettete Kaminaufsätze mit den Porträts Wespiens und seiner Frau in reich dekorierten Régence-Rahmen. Das darüber liegende Bernartssche Zimmer mit der aus dem Bernartsschen Haus in der Adalbertstraße stammenden Einrichtung war ganz im Stil des Empire gehalten. Ein Zimmer des Dachgeschosses war als Eifelstube mit Bauernmöbeln und bäuerlichem Hausrat eingerichtet, in einem anderen befand sich eine Sammlung von Guckkästen. In dem Pavillon links vom Tor lag der Saal der Alexanderschlachten, so genannt nach den dieses Thema darstellenden Wandbildern von Johann Chrysanth Bollenrath, der rechte Pavillon diente als Magazin.
Im Zweiten Weltkrieg blieb das Museum auf Anordnung der nationalsozialistischen Regierung selbst nach den ersten Bombenangriffen 1941 geöffnet, um den Durchhaltewillen zu demonstrieren und zu stärken.[10] Nur die wertvollsten Möbel wurden im Mai 1943 nach Bad Wildungen in Sicherheit gebracht.[11] Nach einem Bombenangriff am 14. Juli 1943 brannte Haus Fey vollständig aus, wobei ein Großteil der Einrichtung zerstört wurde.[10]
Haus Monheim


Bei der Suche nach einer neuen Bleibe für das Couven-Museum fiel die Wahl auf das Haus Monheim, das einzige Bauwerk Jakob Couvens, das den Zweiten Weltkrieg überstanden hatte, wenn auch mit Beschädigungen. 1953 erwarb die Stadt das Haus.[12] Etwa 5 Jahre dauerte es, bis das am Anfang des 20. Jahrhunderts stark veränderte Gebäude in seinen ursprünglichen Zustand zurückversetzt und die Räume eingerichtet waren. Dabei wurden auch aus zerstörten Gebäuden gerettete Objekte wie z. B. Kamine, Türen und Wandvertäfelungen verwendet.[10] Am 10. Mai 1958 konnte Felix Kuetgens in dem restaurierten Haus das Couven-Museum neu eröffnen.[13]
1961 kaufte die Stadt Aachen das in den Zwickel zwischen Haus Monheim und sein Hinterhaus eingeschlossene Haus zum Lindenbaum. Nach einem Umbau wurde dieses Haus dem Couven-Museum angegliedert. 1967 wurde hier eine Fliesensammlung untergebracht, die der Aachener Unternehmer und Kunst-Mäzen Peter Ludwig und seine Frau, die Kunsthistorikerin und Kunstsammlerin Irene Ludwig, geb. Monheim, eine Nachfahrin der früheren Hauseigentümer, dem Museum zunächst leihweise zur Verfügung stellten und 1982 schenkten.[14]
Ab 1999 erfolgte eine umfassende Sanierung und Restaurierung der Museumsgebäude.[15] Zunächst wurde eine Sanierung der Fassaden und Dächer des Hauses Monheim durchgeführt, es folgten das Haus zum Lindenbaum und das Hinterhaus zum Hof. Im Oktober 2000 wurde das Museum geschlossen, und 2000–2001 erfolgte die Restaurierung der Innenräume. Neben Mal- und Lackierarbeiten wurden unter anderem die gesamte Elektroinstallation erneuert und die Holzböden restauriert. Im Sommer 2001 wurde das Museum wieder der Öffentlichkeit zugänglich gemacht, die Restaurierungsarbeiten wurden aber weiter fortgesetzt. So erhielt z. B. 2003 der Innenhof des Museums ein neues Glasdach. Außerdem wurden nach und nach die großen Landschaftsbilder im Festsaal, im Gläserflur und im Landschaftszimmer abgenommen und restauriert, und die frühere Montage über Leisten direkt an der Wand wurde durch eine speziell entwickelte Konstruktion ersetzt, die eine Hinterlüftung der Gemälde ermöglicht.
Seit 2016 ist das Couven-Museum in das kulturhistorische Projekt Route Charlemagne integriert, das die wichtigsten historische Monumente und Museen der Aachener Innenstadt verbindet.
Lage und Gebäude


Das heutige Couven-Museum liegt in der Aachener Altstadt am Hühnermarkt 17 ganz in der Nähe von Rathaus und Dom in dem ehemaligen Pfalzbezirk der Aachener Kaiserpfalz. Das ungefähr rechteckige Grundstück mit einer Größe von etwa 12,5 × 25 Meter erstreckt sich annähernd in Ost-West-Richtung. Die beiden Schmalseiten liegen im Westen am Hühnermarkt und im Osten am Hof, an zwei der alten Dreiecksplätze innerhalb des inneren Mauerrings, die durch die unterschiedliche Ausrichtung der römischen und karolingischen Bauten und Straßenzüge entstanden sind.[16] Entlang der nördlichen Längsseite des Grundstücks verbindet die Rommelsgasse die beiden Höfe miteinander, an der südlichen Grundstücksgrenze steht die Brandwand zu den benachbarten Häusern Hühnermarkt 19 und Hof 4 (Haus zum Mohren).
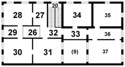
Der Gebäudekomplex des Museums besteht aus mehreren Bauteilen, die um einen etwa 7 × 5 Meter großen Innenhof (Nr. 9 in dem im folgenden Abschnitt abgebildeten schematischen Grundriss des Erdgeschosses) herum gruppiert sind.[17] Die früheren Einzelbauten sind z. B. an unterschiedlichen Bodenniveaus und Stockwerkshöhen zu erkennen. Der größte Bauteil ist das L-förmige Hauptgebäude von Haus Monheim an der Ecke Hühnermarkt und Rommelsgasse, das auf der West- und Nordseite des Innenhofs liegt. In ihm sind die früheren Bauten Coeberghisches Stockhaus (Nr. 1–8 im Grundriss) und Haus zur Waage (Nr. 10 im Grundriss) zusammengefasst. Auf der Ostseite des Innenhofs liegt das Hinterhaus (Nr. 13–16 im Grundriss) des Hauses Monheim, dessen Außenfassade auf den Platz namens Hof hinausgeht. In dem Winkel zwischen dem Haus zur Waage und dem Rückgebäude des Hauses Monheim an der Ecke Hof und Rommelsgasse ist das Haus zum Lindenbaum (Adresse Hof 2, Nr. 11–12 im Grundriss) eingeschlossen, das auch von außen noch als eigenständiges Gebäude zu erkennen ist.
Dauerausstellung
Die Räume des Museums zeigen die Entwicklung der verschiedenen bürgerlichen Einrichtungsstile des 18. und frühen 19. Jahrhunderts von Spätbarock und Rokoko (Régence und Louis-quinze) über Louis-seize, Directoire und Empire bis hin zum Biedermeier.[18] Einige Sammlungen sind in einzelnen Räumen zusammengefasst, so z. B. die Apothekeneinrichtung, die Kücheneinrichtung, die Fliesenbilder oder die Zimmereinrichtungen im Directoire-, Empire- und Biedermeierstil. Andere sind über mehrere Räume verteilt wie z. B. die Rokoko-Vitrinenschränke, in denen Porzellan ausgestellt ist, das damals noch ein ausgesprochener Luxusgegenstand war, und andere Möbel im Aachen-Lütticher Barock, einem Möbelstil, der zur Zeit der beiden Couven charakteristisch für den Großraum Aachen war. Dabei liegt der Schwerpunkt nicht auf der Darstellung möglichst vieler einzelner Ausstellungsgegenstände, sondern vor allem darauf, dass sie ein stimmiges Ensemble ergeben und somit einen guten Eindruck damaliger Wohnräume vermitteln. Daher wird das Couven-Museum auch als „Aachens gute Stube“ oder „Wohnzimmer der Stadt“ bezeichnet. Um diesen Eindruck nicht zu stören, wurde auf eine Beschriftung der einzelnen Objekte verzichtet. Stattdessen steht meist in einer Ecke ein Ständer mit einer Kurzbeschreibung des Raumes in vier Sprachen. Nur in wenigen Räumen gibt es „klassische“ Museumssammlungen, z. B. im Gläserflur, im Guckkastenraum und im Silberkabinett.[19]
-
Schematischer Grundriss Erdgeschoss -
Schematischer Grundriss Obergeschoss -
Schematischer Grundriss Dachgeschoss
Erdgeschoss
| Raum | Bezeichnung | Beschreibung | Bild[20] |
|---|---|---|---|
| 5 | Adler-Apotheke | Der erste Raum links vom Eingang ist als Apotheke eingerichtet in Erinnerung an die Adler-Apotheke, die sich von 1663 bis 1878 im Haus Monheim befand. Auf einem barocken Rezepturtisch stehen Apothekenutensilien wie Mörser, Filter und Waage. In Vitrinenschränken aus dem 18. Jahrhundert sind bemalte Arzneigefäße aus dem 17. bis frühen 19. Jahrhundert untergebracht, darunter Albarelli und Majoliken. Eine astronomische Standuhr von 1780 zeigt neben der Zeit auch Datum, Wochentag und die Stellung von Sonne und Mond an. Nicht alle diese Exponate stammen aus der Adler-Apotheke. Links neben der Türe hängt eine vierteilige Sanduhr, rechts ein Porträt von Johann Peter Joseph Monheim von Carl Schmid und ein Bild seiner Ehefrau Lucia Dorothea, geb. Emonts. Ein Deckengemälde von Johann Chrysanth Bollenrath zeigt Äskulap, den Gott der Heilkunde. | weitere Bilder |
| 6 | Kaminzimmer Gaginizimmer |
Das Kamin- oder Gaginizimmer ist benannt nach dem den Raum bestimmenden Kamin von Petrus Nicolaas Gagini aus dem Jahr 1778. Seine streng symmetrische Ornamentik verweist wie die der Rahmen der rechts und links neben dem Kamin hängenden Porträts auf den frühklassizistischen Louis-seize-Stil. Der mit feinem Schnitzwerk dekorierte Aachener Schreibschrank, ebenfalls im Louis-seize-Stil, besteht aus einer Kommode mit drei Reihen aus zwei Schubladen, einem Schreibfach mit zurückschiebbarer schräger Verschlussklappe und herausziehbarer Schreibplatte und einem zweitürigen Aufsatz. An der Wand zum Hofzimmer steht ein Rokoko-Konsoltisch mit zwei Louis-seize-Stühlen, darüber steht auf einer Konsole eine Prachtpendule von 1717 aus Paris in Boulle-Technik, einer Kombination aus Holz und Metall. | ![]() weitere Bilder |
| 7 | Hofzimmer | Der Kamin im Hofzimmer stammt wie die Vertäfelung des Festsaals aus dem Eupener Haus Mennicken. Auf einem steinernen Unterbau steht ein zweiteiliger Holzaufsatz, der in seinem unteren Teil einen Spiegel enthält und in dem oberen Teil ein Porträt einer Dame aus der ursprünglich Aachener Tuchmacherfamilie Clermont, die als Lutheraner aus wirtschaftlichen und religiösen Gründen nach Vaals emigriert waren. Der Aachener Rokoko-Vitrinenschrank von 1750 in diesem Raum ist besonders groß und hat an seinen beiden Seiten vorspringende Ecken. In einer Ecke steht eine Standuhr eines holländischen Uhrmachers. An einer Wand hängt ein Porträt eines unbekannten Baumeisters[21] | ![]() weitere Bilder |
| 9 | Innenhof | Der kleine Innenhof ist mit einem schrägen Glasdach überdacht. Der Boden ist mit glatten Platten aus dunklem Blaustein ausgelegt. An der Südwand des Hofs, der Brandmauer zum benachbarten Haus zum Mohren, steht ein steinerner Brunnentrog, mit dem Wappen der Familie Monheim, drei aufgehenden Monden, darüber hängt an der Wand ein bronzener Fisch als Wasserspeier. Der geflieste Hintergrund des Brunnens ist von einer dunklen Steineinfassung mit weißen Marmorinkrustationen gerahmt. Rechts und links der Einfassung sind Reliefvasen aus Gusseisen auf Steinsockeln angebracht. Auf der Ostseite des Innenhofs deuten Blendrahmen den Hochkeller des Hinterhauses an. Eine Treppe mit sechs Stufen führt auf das Niveau der Küche in dem Bauteil, das ehemals das eigenständige Haus „Zur Waage“ war, und des Directoirezimmers im Hinterhaus. | ![]() weitere Bilder |
| 10 | Küche | In einem mit Delfter Fliesen ausgekleideten Rauchfang steht ein gusseiserner Herd aus der ersten Hälfte des 19. Jahrhunderts. An beiden Seiten ist eine Backröhre eingebaut. Neben der Herdstelle steht eine Wasserpumpe mit einem steinernen Wasserbecken auf einem hölzernen Unterbau. Ein einfacherer Eichenholz-Vitrinenschrank an der gegenüberliegenden Wand zeigt Steingutgeschirr im „Indisch-Blau“-Dekor. Auch die anderen Möbel, Tisch, Stühle und ein Hängeschrank in einer Ecke, sind einfach ausgeführt. Die Küchengeräte wie Kessel, Siebe und Kellen bestehen überwiegend aus Zinn, Messing und Kupfer und sind oft durch Ornamente verziert. Kaffeeröster und Kaffeemühle verweisen darauf, dass dieses zunächst höfische Luxusgetränk im 18. Jahrhundert mittlerweile im bürgerlichen Leben weit verbreitet war. | ![]() weitere Bilder |
| 11 | Unteres Fliesenzimmer | Von der Ebene der Küche aus führt eine Holztreppe aus einem abgerissenen Haus in der Peterstraße in das untere Fliesenzimmer im Erdgeschoss des Hauses zum Lindenbaum. Dort sind die Wände mit Fliesen aus dem 16. bis 19. Jahrhundert bedeckt. Jeweils vier Fliesen mit gleichem oder ähnlichem Muster und Farben sind im Quadrat angeordnet. Die ältesten Exemplare sind persische Lüsterfliesen aus dem 16. Jahrhundert. Die Fliesen aus den niederländischen Werkstätten in Rotterdam und Delft waren zunächst im 17. Jahrhundert im blau auf weiß gehalten, im 18. Jahrhundert waren manganviolette Muster sehr beliebt. Andere Fliesen zeigen kräftige Gelb- und Grüntöne. | ![]() weitere Bilder |
| 12 | Oberes Fliesenzimmer | Der obere Raum hat eine Sockelvertäfelung mit Holzrahmen und Fliesenfüllung. Darüber sind größere Fliesenbilder aus dem 18. Jahrhundert angebracht, darunter ein Zyklus der vier Jahreszeiten aus der Werkstatt von Jan Aalmis in Rotterdam, die von dem Meister selber signiert sind. Die Bilder sind 5 Fliesen breit und 9 Fliesen hoch (Winter: 7 Fliesen hoch) und in Manganfarbe auf hellem Hintergrund gezeichnet. Als Vorlage dienten Stiche nach Gemälden von Jacopo Amigoni und François Boucher. Vermutlich ebenfalls aus der Werkstatt Aalmis stammen zwei Bilder im Querformat, die Szenen aus dem Dorfleben zeigen: „Aufrichtung des Maibaums“ und „Rückkehr der Schützen“. Ebenfalls in manganviolett gezeichnet, sind diese Bilder 8 Fliesen breit und 6 Fliesen hoch. Für sie dienten Zeichnungen von Claude Saint Paul als Vorlagen. | ![]() weitere Bilder |
| 16 | Directoirezimmer | Nur ein Teil der Einrichtung dieses Zimmers stammt aus der kurzen Zeit des Directoire. Dazu zählt ein Blendtürrahmen um das Kachelfeld hinter einem Ofen, bei dem Sphingen in der Supraporte an die Begeisterung für Ägypten erinnern, die Napoleons Ägyptenexpedition ausgelöst hat. Der Ofen selber stammt aus der Mitte des 19. Jahrhunderts. Auf das Interesse dieser Zeit an der römischen Antike deuten wie auf antiken Münzen gestaltete Kopfprofile an den Konsoltischen, einem Ofenschirm und einer furnierten französischen Kommode hin. Auf der Kommode steht eine „Stutzuhr“, die statt Pendel ein Uhrwerk mit Feder und Unruhe hat und daher keine große Höhe braucht. Sie ist von zwei Frauenfiguren in antiken Gewändern flankiert. An der Wand hängen großformatige Gemälde von Ideallandschaften. | ![]() weitere Bilder |
Obergeschoss
| Raum | Bezeichnung | Beschreibung | Bild[20] |
|---|---|---|---|
| 8 | Treppenhaus | An der Wand des Treppenhauses zwischen Erdgeschoss und Obergeschoss hängen Fotografien des alten Couven-Museums im Haus Fey. Weitere Fotos zeigen Haus Monheim nach dem Zweiten Weltkrieg. Das schmiedeeiserne Treppengitter mit vergoldeten Blättergirlanden ist noch das originale, 1786 von Jakob Couven für Haus Monheim entworfene Gitter. | ![]() weitere Bilder |
| 17 | Kleiner Salon | Der kleine Salon hat noch eine sogenannte Kölner Decke aus der Zeit vor dem Umbau durch Couven mit deutlich erkennbaren Deckbalken und Unterzügen, die jedoch verputzt und stuckiert sind. Die Sockelvertäfelung des Zimmers gehörte zu der Barockausstattung des Aachener Rathauses. Die zwei großen Trumeauspiegel rechts und links neben der Tür zum Festsaal mit Konsoltischen davor und Porträtbildern in ihrem Oberteil stammen aus dem Gartenhaus Mantels. Ein Aachener Vitrinenschrank zeigt in seinem Schnitzwerk schon die strengere Symmetrie des Louis-seize-Stils, in ihm ist Porzellan verschiedener Manufakturen ausgestellt. Ein Kombinationsmöbel von 1760 besteht aus einer Kommode mit vier breiten Schubladen und einem Uhraufsatz mit Pendeluhr. | ![]() weitere Bilder |
| 18 | Festsaal | Der Festsaal ist der größte Raum des Hauses, er erstreckt sich über die gesamte Breite des Hauses am Hühnermarkt. Spiegel zwischen den fünf Fenstern lassen den Raum optisch noch größer erscheinen. Die beiden Türen mit verspiegelten Supraporten mit Rokokoschnitzerei an der gegenüberliegenden Wand stammen ursprünglich aus dem Gartenhaus Mantels. Zwischen den Türen steht eine Bank im Aachener Stil aus der Mitte des 18. Jahrhunderts. Über einer Rokoko-Holzvertäfelung, die aus einem Eupener Haus stammt, sind große Leinwandbilder idealisierter Landschaften an der Wand befestigt. An der Brandmauer zum Nachbarhaus steht ein Kamin mit geschnitzter Holzverkleidung, an der gegenüberliegenden Querseite ein Lütticher Vitrinenschrank mit Schubladen zwischen dem Unterschrank und dem etwas zurückgesetzten Vitrinenaufsatz. Dort sind neben Porzellan verschiedener Manufakturen Silbergefäße aus der Sammlung Matthéy wie im Silberkabinett im Dachgeschoss ausgestellt. | ![]() weitere Bilder |
| 19 | Chinesenkabinett | In dem kleinen Raum sind Zeugnisse für die Begeisterung des 18. Jahrhunderts für das Kunsthandwerk aus dem Fernen Osten (Chinoiserie) gezeigt. Die Form des Kronleuchters ist einer Pagode nachgebildet. In zwei Vitrinenschränken, einer aus Aachen, einer aus Lüttich mit eingebauter Uhr, ist Porzellan ausgestellt, das bis Anfang des 18. Jahrhunderts aus China importiert werden musste und früher oft selber als „China“ bezeichnet wurde. Erst 1708 gelang in Meißen die erste Porzellanherstellung in Europa, was zur Entstehung des Meißener Porzellans führte. Auch Gegenstände aus japanischem Imari-Porzellan sind ausgestellt. Die Standuhr aus dem Jahr 1750 stammt von dem Lütticher Uhrmacher J.M. Marec. | ![]() weitere Bilder |
| 21 | Gläserflur | In dem Verbindungsgang zwischen Hauptgebäude und Hinterhaus ist eine Sammlung böhmischer Gläser aus dem 17. und 18. Jahrhundert ausgestellt. In die Gläser sind verschiedene Muster geschliffen oder geätzt, unter anderem Ornamente, Wappen und figürliche Szenen. An der Wand ist eine gemalte Leinwandtapete aus der zweiten Hälfte des 18. Jahrhunderts angebracht. In dem Flur steht eine Standuhr von 1735 mit einer Weckfunktion. Hier befindet sich weiter eine ursprünglich zum Gartenhaus Mantels gehörende Türe mit Ornamenten im Régence-Stil. | ![]() weitere Bilder |
| 22 | Ehemaliges Schlafzimmer | Die Einrichtung des ehemaligen Schlafzimmers stammt ungefähr aus der Zeit des Umbaus des Hauses durch Couven. Dazu zählen ein Kleiderschrank und ein zierliches Schreibmöbel. Der vor einer gekachelten Nische stehende Ofen von etwa 1800 hat die Form einer Vase aus Gusseisen auf einem Steinpodest. An der Wand hängen ein vermutlich aus der Schule des Gabriel de Grupello stammendes Elfenbein-Kruzifix in einem barocken Gehäuse und ein Gemälde, das eine verkleinerte Kopie des in Schloss Augustusburg in Brühl aufbewahrten Porträts der bayerischen Kurfürstin Maria Anna von George Desmarées ist.[22] | ![]() weitere Bilder |
| 24 | Antekammer | Die Antekammer ist der Vorraum zum Grünen Salon. An der Wand sind mit Landschaftsdarstellungen bemalte Tapeten angebracht. Die Landschaftsbilder sind von gemalten Girlanden umrandet. In dem Vorraum steht ein Vitrinenschrank von 1775 mit Porzellan. An ihm ist deutlich der allmähliche Übergang vom Louis-quinze zum frühklassizistischen Louis-seize zu erkennen. Die beiden Durchgänge zum Grünen Salon haben einen geschweiften Türsturz und eine ornamentgeschmückte Holzvertäfelung. | ![]() weitere Bilder |
| 25 | Grüner Salon | Der von Johann Joseph Couven entworfene Kamin stammt ursprünglich aus dem Gartenhaus Mantels, das jetzt als Kerstenscher Pavillon auf dem Lousberg steht. Die Umrahmung der Feuerstelle und das Gemälde am Kaminaufsatz mit Zeus und Ganymed von Johann Chrysanth Bollenrath sind erhalten, der Rest der Kaminausstattung ist verloren. Der Sockel der Wände ist mit einer Holzvertäfelung mit Régence-Schnitzereien verkleidet. Aus Lüttich stammt ein Konsoltisch von etwa 1760 mit reichem Schnitzwerk. Auch der Aachener Glasschrank, bei dem die Leisten zwischen den einzelnen Glasscheiben durch reiches geschwungenes Schnitzwerk gebildet sind, stammt aus der Zeit des Rokoko. Zwei Gemälde neben dem Kamin stammen aus dem Haus Clermont in Vaals und zeigen Mitglieder dieser Familie (siehe Hofzimmer). | ![]() weitere Bilder |
Dachgeschoss
| Raum | Bezeichnung | Beschreibung | Bild[20] |
|---|---|---|---|
| 20 32 |
Treppenhaus | Das schmiedeeiserne Treppengitter von Jakob im Treppenhaus setzt sich auch zwischen Obergeschoss und Dachgeschoss fort. An der Wand des Treppenhauses hängen Fotografien des neuen Couven-Museums kurz nach seiner Wiedereröffnung im Haus Monheim. | ![]() weitere Bilder |
| 26 | Silberkabinett | Ein Teil des Flurs ist mit zwei Glaswänden abgetrennt und so als große Raumvitrine gestaltet, die von beiden Seiten her einsehbar ist. Hier ist eine Auswahl an Silbergerät des 18. Jahrhunderts aus der Sammlung des Tuchgroßhändlers Teo Matthéy ausgestellt, die dieser zusammen mit seinem Haus Matthéy, Theaterstraße 67 der Stadt Aachen vermacht hatte. Darunter befindet sich ein Tea-Set des englischen Silberschmieds Samuel Taylor von 1749 mit zwei Teedosen und einer Zuckerschale in einem lederbezogenen Holzkoffer. Weitere Einzelteile sind unter anderem Chocolatièren mit Holzgriff, eine große Empire-Kaffeekanne von 1780 und ein Meißener Porzellankrug von 1720, an dem Silberelemente angebracht sind. | ![]() weitere Bilder |
| 27 | Puppenschrankzimmer | Der in diesem Zimmer stehende sogenannte Puppenschrank ist ein Rokoko-Wäscheschrank mit geschwungenen Füßen und Schnitzereien. In dem Schrank ist der Inhalt eines Puppenkoffers ausgebreitet: zwei Puppen, an einer Leine hängende Puppenkleider, Geschirr, Töpfe und ein Herd. Die Kleider gehören dem Stil nach in die Zeit zwischen 1840 und 1850, also ins Biedermeier. Der Herd zeigt eine neue, von Benjamin Thompson Ende des 18. Jahrhunderts entwickelte Form eines geschlossenen Systems mit geregelter Luftzufuhr und Rauchabzug. In dem Zimmer stehen noch ein Sekretär im Aachener Stil und eine französische Präzisionspendule. | ![]() weitere Bilder |
| 28 | Guckkastenraum | In den Fensternischen der großen Mansardfenster sind Guckkästen aus dem 18. Jahrhundert aufgestellt. Sie verstärken beim Betrachten der darin gezeigten Drucke den Eindruck räumlicher Tiefe. Das Couven-Museum hat eine der größten noch verbliebenen Sammlungen von Guckkästen in Deutschland. Die aufgestellten Guckkästen zeigen unter anderem eine „prächtige Stiege“, das „Laubhüttenfest“ und „die Anbetung der Könige“, sogar ein „Einblick in eine Freymaurerloge“ wird gewährt. An der Wand zeigt ein Gemälde von Jean-Alphonse Roehn eine Szene mit Kindern, die in einen Guckkasten hineinsehen. | ![]() weitere Bilder |
| 29 | Verbindungsraum | Von dem kleinen Verbindungsraum aus ist die Rückseite des Silberkabinetts einsehbar. In dem Raum steht eine Figurenuhr aus dem frühen 19. Jahrhundert. Daneben hängt ein Selbstbildnis des Malers Johann Baptist Joseph Bastiné von 1812. Bastiné wohnte von 1811 bis zu seinem Tod in Aachen und gründete hier eine Zeichenschule, an der unter anderen der Historienmaler Alfred Rethel, der das Aachener Rathaus mit Fresken ausgemalt hat, und der Porträtmaler Heinrich Franz Carl Billotte studierten. | ![]() weitere Bilder |
| 30 | Empirezimmer | Die Hauptmöbel dieses Zimmers aus der Empire-Zeit sind ein Schreibschrank und eine Kommode aus Mahagoni. Die Kommode ist mit einer Marmorplatte gedeckt. Gerade Linien und rechte Winkel kennzeichnen diesen klassizistischen Stil, verzierte Bronzebeschläge ersetzen die geschnitzten Ornamente des früheren Aachen-Lütticher Stils. Sofa, Tisch und zwei Eckschränke stammen dagegen aus der späteren historisierenden Louis-Philippe-Zeit, dort kommen wieder geschwungene Linien zur Anwendung. Über dem Sofa hängt ein Familienbildnis des Landrats Friedrich Joseph Freiherr von Coels von der Brügghen, der die Burg Frankenberg sanieren ließ. An den anderen Wänden hängen von Johann Baptist Joseph Bastiné gemalte Porträts des Fabrikanten Philipp Heinrich Pastor, seiner Ehefrau Amalie und des Kaufmannehepaars Beissel. | ![]() Empirezimmer |
| 31 | Landschaftszimmer | Über einer niedrigen Vertäfelung sind raumhohe Landschaftspanoramen aufgehängt, denen das Zimmer seinen Namen verdankt. Die gemalten Fluss- und Gebirgslandschaften sind jedoch nicht real, sondern der Phantasie entsprungen. Der Kamin stammt aus der ersten Hälfte des 18. Jahrhunderts. In einer abgeschrägten Wandecke hängt eine Pendeluhr aus Friesland, bei der unterhalb des Zifferblatts Schiffe und ein Angler durch das Uhrwerk bewegt werden. Vor der Wandecke steht ein Clavichord mit Obstbaumfurnier und eingelegtem Muster. | ![]() weitere Bilder |
| 33 | Korridor | In dem kleinen Korridor über dem Gläserflur stehen ein kleiner Nähtisch mit Beinen in Form einer Lyra und zwei Stühle. Nähtischchen und Stühle stammen aus der Zeit des Empire. An den Wänden hängen Porträts von Joseph Beissel und seiner Frau Johanna, geb. Chorus, im Biedermeierstil, ein Bild des Aachener Malers Friedrich Thomas mit einer Darstellung von vier Kindern und ein Porträt des Aachener Stadtbaumeisters Adam Franz Friedrich Leydel von Johann Baptist Joseph Bastiné. | ![]() weitere Bilder |
| 34 | Biedermeierzimmer | Der in der Biedermeierzeit erfolgte Rückzug ins Private zeigt sich in einem schlichteren und zweckmäßigeren Einrichtungsstil mit einfacher, aber solider Verarbeitung einheimischer Hölzer wie Kirschbaum oder Esche. Das Sofa wird durch Hinzufügen von Tisch und Stühlen zu einem gemütlichen Versammlungsort der Familie. In einem im Vergleich zu seinen Rokoko-Vorgängern niedrigeren Vitrinenschrank und einem Eckschrank werden farbige Gläser und Porzellan des 19. Jahrhunderts gezeigt. Vor einem gekachelten Wandvorsprung steht ein kleiner Ofen auf vier geschwungenen Messingfüßen. Über dem Sofa hängt ein Selbstbildnis von Heinrich Franz Carl Billotte mit Frau und Kindern, über einer Kommode ein Familienporträt des Stadtratsmitglieds Johann Wilhelm Janssen. | ![]() weitere Bilder |
Wechselausstellungen (Auswahl)
Neben den ständigen Sammlungen zeigt das Couven-Museum abwechselnd Ausstellungen zu kunsthandwerklichen sowie kunst- und kulturgeschichtlichen Themen. Dafür stehen jedoch keine gesonderten Räume zur Verfügung. Stattdessen werden Vitrinen mit den Exponaten in den auch für die Dauerausstellung verwendeten Räumen aufgestellt.
Es folgt eine Auswahl vergangener Wechselausstellungen:[23]
| Zeitraum | Titel | Inhalt |
|---|---|---|
| 26.02. – 30.04.1994 | Frühes Meissener Porzellan | Exponate aus einer Privatsammlung |
| 16.05. – 28.05.1995 | Kleine Geigen – Große Meister | Exponate des Verbandes Deutscher Geigenbauer und Bogenmacher |
| 30.06. – 30.09.2001 | Kobaltblau – Meissener Porzellan des 18. Jahrhunderts | Exponate einer rheinischen Privatsammlung |
| 15.02. – 18.05.2003 | Europäische Goldschmiedearbeiten 1560–1860 | Mehr als 300 hochrangige Objekte der europäischen Goldschmiedekunst |
| 04.12.2005 – 30.04.2006 | 13 × 13. Die Welt im Quadrat – Niederländische Fliesen aus zwei rheinischen Privatsammlungen | Niederländische Fliesen aus Privatbesitz in Ergänzung zu dem museumseigenen Bestand historischer Fliesenkeramik |
| 06.06. – 21.10.2007 | Jugendstilträume – Die Sammlung Giorgio Silzer | Auswahl aus einer der größten Privatsammlungen kunsthandwerklicher Arbeiten des Jugendstils |
| 01.12.2007 – 03.02.2008 | Aus Omas Weihnachtsstube – Historischer Christbaumschmuck aus Privatbesitz | Eine bunte Auswahl historischer Beispiele von Nikoläusen, Engeln, Lametta, Schlitten und Nussknackern |
| 10.05. – 21.09.2008 | Das Couven-Museum im Haus Monheim wird 50 | Blick zurück in die Geschichte des 1958 neu eingerichteten Museums |
| 01.11.2008 – 06.01.2009 | faszination & mythos Bernsteinzimmer | Vorstellung der Arbeit der Bernsteinwerkstatt mit Ikonen, Schatullen, Gefäßen, Kerzenhaltern und anderen Pretiosen |
| 09.05. – 13.09.2009 | Süße Versuchung – Vom Kakao zur Schokolade | Geschichte der Schokolade von ihren Anfängen bis in das 20. Jahrhundert |
| 28.11.2009 – 31.01.2010 | SchönWarm | Heizen zwischen Renaissance und Kaiserzeit, prunkvolle Kamine, zierliche Zimmeröfen, elegante Ofenschirme und schimmernde Messing-Accessoires |
| 20.02. – 18.04.2010 | Von Ostereiern, Hasen und alten Bräuchen | Österliches aus Sammlung und Werkstatt Monika Lennartz, Mönchengladbach. |
| 09.10. – 28.11.2010 | 500 Jahre gemeinsam glänzen | Historische profane Gold- und Silberschmiedekunst anlässlich der Feier des 500-jähriges Bestehens der Aachener Goldschmiede-Innung |
| 04.12.2010 – 20.03.2011 | Die Ernüchterung des Abendlandes | Kaffee und Tee erobern Europa. Der kulturelle Wandel und die neue Kaffee- und Teekultur. |
| 14.05. – 04.09.2011 | La Beauté – Zur Geschichte der Kosmetik | Schönheitsmittel von der Antike bis zur Gegenwart. |
| 24.09. – 30.10.2011 | Das geheime Leben der Ornamente – Objekte | Tierfiguren aus Papier und Draht von der Aachener Künstlerin Odine Lang |
| 19.11. – 12.02.2012 | Das Christkind im Glasschrein – Vom Zauber barocker Klosterarbeiten | Christkinder, Krippen und Klosterarbeiten aus der Sammlung und Werkstatt von Monika Lennartz |
| 12.05. – 02.09.2012 | Puppenträume | Die Technik des Puppenmachens auf ihrem Höhepunkt |
| 22.09. – 21.10.2012 | Wolfgang Nestler: Innenleben | Eine fotografische Erkundung. Das Interesse des Künstlers richtet sich auf das Alt-Aachener Wohnhaus und seine historischen Bewohner |
| 09.04. – 30.06.2013 | Die neuen Leihgaben der Peter und Irene Ludwig Stiftung | Die weniger bekannten Aspekte der Sammelleidenschaft des Ehepaares Ludwig |
| 13.09.2013 – 12.01.2014 | Klangwelten in Couven-Räumen | Musikinstrumente und musikalische Kultur zwischen Barock und Klassizismus |
| 18.10.2014 – 12.04.2015 | Augenschmaus: Historische Bestecke und Gedecke | Bestecksammlung der Aachener Museen[24] |
| 25.04. – 30.08 2015 | Aquis Grani – Die Badestadt Aachen: Heilung, Vergnügen, Wissenschaft | Badekultur in Aachen |
| 07.11.2015 – 31.01.2016 | Galant und elegant: Fächer vom Rokoko zum Historismus | Sammlung aus dem Mainfränkischen Museum Würzburg |
| 19.11.2016 – 26.03.2017 | Die Erforschung der Natur | Frühe naturkundliche Sammlungen – Von der Liebhaberei zur Wissenschaft |
| 03.06. – 03.09.2018 | Das Ringen um den rechten Glauben | Gold und Silber aus Klöstern des Dreiländerecks – Fromme Stiftungen von Bürgertum und Adel |
| 11.11.2017 – 25.03.2018 | Der Bergmann und das Weiße Gold | Erlesenes Porzellan aus der Sammlung Middelschulte |
| 05.05.2018 – 09.09.2018 | Holzpferd, Puppe, Zinnsoldat – Historisches Spielzeug aus fünf Jahrhunderten | 80 Spielobjekte aus fünf Jahrhunderten, von den Aachen-Raerener Keramikfunden der Renaissancezeit bis zum Teddy und zum Blechspielzeug des frühen 20. Jahrhunderts |
| 16.11.2018 – 24.03.2019 | Kräuter, Mörser, Pillendreher – Die Sammlung Jena zu Gast im Hause Monheim | Eine große Auswahl aus der Privatsammlung Jena, wie beispielsweise eine Apotheke des 18./19. Jahrhunderts ausgesehen hat und mit welchen pharmazeutischen Gerätschaften dort gewerkelt wurde. |
| 26.10.2019 – 29.03.2020 | Wir Nachkriegskinder – Alltag zwischen Not und Nierentisch | Die Ausstellung widmete sich den Alltagsnöten, aber auch den kleinen Triumphen in der „schlechten Zeit“ nach dem Zweiten Weltkrieg, als mit dem Land die alten Gewissheiten in Trümmern lagen und der Neuanfang ganz langsam begann. |
| 13.11.2021 – 06.02.2022 | Stille Nächte, süße Printen, Bilder und Bräuche seit dem Biedermeier | Der Focus der Ausstellung lag auf das weihnachtliche Brauchtum, mit dem die Biedermeierzeit im frühen 19. Jahrhunderts das Jahresfest bis heute geprägt hat. Die weihnachtliche Bilderwelt von populären Druckgrafiken wie beispielsweise E.T.A. Hoffmanns Märchen „Nussknacker und Mäusekönig“ oder Moritz von Schwinds Illustration „Herr Winter“ ergänzten diese Ausstellung mit ihren schönsten Beispielen. |
| 22.10.2022 – 26.02.2023 | Die Augen der Frida Kahlo | Die Ausstellung beleuchtet die Person als Kult- und Konsumfigur, als Märtyrerin, als Überlebenskünstlerin, als charismatische Inspirationsfigur. Das Museum stellt die Frage im Raum: was ist Mythos oder was ist Klischee und was steckt dahinter? |
Veranstaltungen
In den 1930er Jahren übertrug der Reichssender Köln Konzerte aus dem Couven-Museum.[25][26][27] Im Jahre 1936 dirigierte Herbert von Karajan im Rahmen des Tages der deutschen Hausmusik in den Museumsräumen das Grümmer-Quartett.[28]
Neben den regelmäßigen Museumsführungen bietet das Couven-Museum immer wieder Vorträge und andere Veranstaltungen, die meist Informationen zu den Sammlungen des Museums oder die gerade gezeigte Sonderausstellung vertiefen.[29] Dazu zählen Puppentheater- und Filmaufführungen sowie praktische handwerkliche Kurse für Kinder und Erwachsene. Im Festsaal werden Konzerte aufgeführt, z. B. die Kammerkonzertreihe „Vier im Couven“ des Aachener Chapelle Quartetts.
Für Schulklassen gibt es je nach Alter und Schultyp verschiedene Programme, die meist aus einer Führung und einer anschließend von den Schülern selbst durchzuführenden künstlerischen oder handwerklichen Arbeit bestehen.[30]
Die Räume des Couven-Museums, besonders der große Festsaal, können für festliche Veranstaltungen gemietet werden.[31] Das Couven-Museum ist einer der offiziellen Standorte der Stadt Aachen für Trauungen.[32]
Museumsführer
Felix Kuetgens verfasste bereits 1929 einen Führer durch das alte Couven-Museum im Haus Fey. Zu einem in den frühen 1940er Jahren erschienenen Bildband schrieb er eine kunstgeschichtliche Einleitung. Die erste Beschreibung des neuen Couven-Museums in Haus Monheim in Form eines Rundgangs durch die Räume verfasste Felix Kuetgens in einem achtseitigen Artikel, der in dem Doppelheft 1958/1959 der Aachener Kunstblätter (AKB) des Museumsvereins Aachen veröffentlicht wurde. Ebenfalls von Felix Kuetgens stammt eine ausführlichere Beschreibung der Räume, die 1959 als 32-seitiges Heft in der Reihe Rheinische Kunststätten des Rheinischen Vereins für Denkmalpflege und Landschaftsschutz erschien und mit einem zusätzlichen Einband vom Museum als Führer verwendet wurde.
1971 schrieb der Kunsthistoriker Ernst Günther Grimme, der spätere Direktor der Städtischen Museen der Stadt Aachen und Leiter des Couven-Museums, einen eigenen Museumsführer, in dem ein Rundgang durch die einzelnen Räume beschrieben ist. Der Führer erschien 1971 als Sonderausgabe der Aachener Kunstblätter und wurde wiederholt neu aufgelegt. 2010 wurde dieser Museumsführer durch ein von Dagmar Preising und Ulrich Schäfer verfasstes Buch ersetzt, das im Deutschen Kunstverlag erschien. Ebenfalls 2010 brachte die Stadt Aachen im Rahmen des Projekts Route Charlemagne einen Prospekt mit einer Kurzbeschreibung der wichtigsten Räume des Museums heraus.
Die genauen Bezeichnungen dieser Führer finden sich im Abschnitt Literatur, der Prospekt der Route Charlemagne ist im Abschnitt Weblinks als PDF-Datei verlinkt.
Literatur
- Ernst Günther Grimme: Schenkung der Fliesenkeramik für das Couven-Museum. In: Peter Ludwig (Hrsg.): Aachener Kunstblätter. Band 52. Verlag M. Dumont Schauberg, Köln 1984, S. 10–12.
- Ernst Günther Grimme: Führer durch das Couven-Museum der Stadt Aachen. In: Peter Ludwig (Hrsg.): Aachener Kunstblätter. 4. Auflage. (Sonderausgabe). Aachen 1986.
- Felix Kuetgens: Führer durch das städtische Couven-Museum. 2. Auflage. Verlag des Museumsvereins Aachen, Aachen 1932.
- Das Couven-Haus. Die gute Stube der Stadt Aachen. Aachener Verlags- und Druckereigesellschaft, Aachen 1939 (Bildband mit einer kunsthistorischen Einleitung von Felix Kuetgens).
- Felix Kuetgens: Das „alte“ Couven-Museum. In: Hans Feldbusch, Peter Ludwig (Hrsg.): Aachener Kunstblätter. Nr. 16. Verlag des Aachener Museumsvereins, Aachen 1957, S. 7–10.
- Felix Kuetgens: Das „neue“ Couven-Museum. In: Hans Feldbusch, Peter Ludwig (Hrsg.): Aachener Kunstblätter. Nr. 17/18 (1958/59). Verlag des Aachener Museumsvereins, Aachen, S. 17–24.
- Felix Kuetgens: Das Couven-Museum in Aachen. Haus Monheim, Hühnermarkt 17. In: Rheinischer Verein für Denkmalpflege und Heimatschutz (Hrsg.): Rheinische Kunststätten. 1959 (mit zusätzlichem Umschlag versehen unter dem Titel Couven-Museum der Stadt Aachen. Ein Besuch in Aachens guter Stube. als Führer durch das Couven-Museum verwendet).
- Eberhard Quadflieg: Das Haus Zum Lindenbaum in Aachen. In: Aachener Kunstblätter. Nr. 34. Aachen 1967, S. 266–268.
- Belinda Petri: Die Restaurierung des Couven-Museums Aachen 1999 bis 2002. In: Aachener Kunstblätter. Nr. 62. Aachen 2002, S. 334–337.
- Dagmar Preising und Ulrich Schäfer: Couven-Museum in Aachen. Deutscher Kunstverlag, Berlin, München 2010, ISBN 978-3-422-02289-8.
- B. M.: Das Couven-Museum in Aachen.: Mittheilungen der k(aiserlich) k(öniglichen) Central-Commission zur Erforschung und Erhaltung der Baudenkmale / Mittheilungen der k. k. Central-Commission zur Erforschung und Erhaltung der Kunst- und historischen Denkmale / Mitteilungen der k. k. Zentralkommission zur Erforschung und Erhaltung der Kunst- und historischen Denkmale / Mitteilungen der k.k. Zentral-Kommission für Denkmalpflege / Mitteilungen des Staatsdenkmalamtes / Mitteilungen des Bundesdenkmalamtes, Jahrgang 1930, S. 73–76 (online bei ANNO).
Weblinks
- Couven-Museum. Stadt Aachen, Der Oberbürgermeister, abgerufen am 19. Juni 2024.
- Couven Museum: Ein Bürgerhaus des 18. Jahrhunderts. In: Route Charlemagne Aachen. Stadt Aachen, Der Oberbürgermeister, abgerufen am 2. März 2015.
- Couven-Museum. In: www.aachen.de. Stadt Aachen, Der Oberbürgermeister, abgerufen am 2. März 2015.
Einzelnachweise
Die vollständigen Bezeichnungen der hier verkürzt angegebenen Literaturquellen finden sich im Abschnitt Literatur.
- ↑ Preising, Schäfer 2010, S. 4.
- ↑ Zur Geschichte des Hauses Fey und des ersten Couven-Museums siehe vor allem Kuetgens 1957, S. 7–10.
- ↑ Felix Kuetgens: Das Couvenhaus zu Aachen. In: Rheinischer Verein für Denkmalpflege und Heimatschutz, Rheinische Kulturstätten, Reihe 1: Aachen und das Jülicher Land, Nr. 11/12, Düsseldorf, 16 S.
- ↑ a b c Kuetgens 1932, S. 10.
- ↑ Grimme 1986, S. 23.
- ↑ Kuetgens 1932, S. 15–37.
- ↑ Kuetgens 1939, S. 10.
- ↑ Siehe den Grundrissplan in: Kuetgens 1939, S. 14.
- ↑ Die Beschreibung der Räume des alten Couven-Museums in Haus Fey folgt vor allem Kuetgens 1932, S. 15–38, und Kuetgens in Couven-Haus, Anfang 1940er, S. 11–13.
- ↑ a b c Preising, Schäfer 2010, S. 5.
- ↑ Kuetgens 1957, S. 10.
- ↑ Kuetgens 1959, S. 4.
- ↑ Kuetgens 1959, S. 2.
- ↑ Zur Einbeziehung des Hauses zum Lindenbaum in das Couven-Museum und die Schenkung der Fliesensammlung durch das Ehepaar Ludwig siehe u. a. Quadflieg in AKB 34 (1967), S. 266 und Preising, Schäfer 2010, S. 30.
- ↑ Petri in AKB 62 (1998–2002), S. 334–337; siehe auch Restaurierungsprojekt Couven-Museum. In: couven-museum.de. Couven-Museum, abgerufen am 7. März 2015.
- ↑ Michael Schmitt: „Die Städtebauliche Entwicklung Aachens im Mittelalter unter Berücksichtigung der gestaltbildenden Faktoren.“ Aachen. Diss. 1972, S. 140.
- ↑ Für eine detaillierte Beschreibung der Gebäude und ihrer Geschichte siehe die Artikel Haus Monheim und Haus zum Lindenbaum.
- ↑ Aachen war zu jener Zeit kulturell stark von Frankreich geprägt und stand 1792–1815 unter französischer Besatzung. Daher sind die Stilepochen hier mit ihrer französischen Bezeichnung wiedergegeben.
- ↑ Die folgende Kurzbeschreibung der Museumsräume folgt im Wesentlichen dem aktuellen Museumsführer von Dagmar Preising und Ulrich Schäfer aus dem Jahre 2010. Die Raumnummern beziehen sich auf die Grundrisspläne, in denen die einzelnen Bauteile des Museums (Haus Monheim, Hinterhaus, Haus zum Lindenbaum, Haus zur Waage) durch dickere Linien voneinander abgegrenzt sind.
- ↑ a b c Weitere Bilder finden sich in dem Fotoalbum des Couven-Museums auf Wikimedia Commons.
- ↑ Das Porträt ist eine Kopie eines Ausschnitts eines größeren Gemäldes, das den Bauherrn von Schloss Wickrath mit seinem Baumeister zeigt. Während es früher für ein Porträt von Johann Joseph Couven (s. z. B. Kuetgens in Rheinische Kunststätten 1959, S. 32) oder von Jakob Couven (s. z. B. Grimme 1986, S. 30) gehalten wurde, geht man heute davon aus, dass es eher einen der Brüder François und Matthieu Soiron darstellt (s. z. B. Preising, Schäfer 2010, S. 18). Auch sonst ist keine bildliche Darstellung von Vater oder Sohn Couven bekannt.
- ↑ Das Originalporträt ist hier abgebildet.
- ↑ Ausstellungen der letzten Jahre. In: couven-museum.de. Couven-Museum, abgerufen am 7. März 2015.
- ↑ Jochen Amme: Historische Bestecke. Hrsg.: Suermondt-Ludwig-Museum Aachen. Suermondt-Ludwig-Museum Aachen, Aachen 2014, ISBN 978-3-929203-72-1, S. 326.
- ↑ Musikbriefe.: Signale für die musikalische Welt, Jahrgang 1934, S. 529 (online bei ANNO).
- ↑ Rundfunkprogramm. In: Radio Wien, 1. Juni 1934, S. 34 (online bei ANNO).
- ↑ Heinrich Jacobs: Musikbriefe.: Signale für die musikalische Welt, Jahrgang 1937, S. 460 (online bei ANNO).
- ↑ H. Jacobs: Aus dem Aachener Musikleben.: Signale für die musikalische Welt, Jahrgang 1936, S. 36 (online bei ANNO).
- ↑ Aktuelle Ausstellung. In: couven-museum.de. Couven-Museum, abgerufen am 7. März 2015.
- ↑ Unser umfangreiches Angebot für Erwachsene, Kinder, Jugendliche und Schulklassen. In: couven-museum.de. Couven-Museum, abgerufen am 7. März 2015.
- ↑ Warum mieten Sie nicht einfach einen Rokokosaal in spektaklärer Lage? In: LocationsAachen. Stadt Aachen, abgerufen am 15. Juni 2012.
- ↑ Trauzimmer und Termine. In: Stadtportal aachen.de. Stadt Aachen, abgerufen am 15. Juni 2012.
Koordinaten: 50° 46′ 32,7″ N, 6° 5′ 5,5″ O
























