Friedhof Rosenberg

Der Friedhof Rosenberg ist der Zentralfriedhof der Stadt Winterthur. Die im Stil der Reformarchitektur erbaute Anlage wurde 1914 als Nachfolge des Friedhofs Rychenberg erstellt. Seit seiner letzten Erweiterung 1942 erstreckt sich die Fläche des Friedhofs über 170'000 m² und beherbergt heute rund 12'000 Grabstätten.[1] Als städtischer Hauptfriedhof enthält er Grabstätten aller bekannten Winterthurer Geschlechter und der für die Stadt bedeutenden Personen der zweiten industriellen Revolution.[2]
Der Friedhof wird mitsamt seinen Gebäuden und wichtigen Grabmälern vom Bund als B-Objekt im Inventar der Kulturgüter von nationaler und regionaler Bedeutung[3] geführt.
Architektur
.jpg)
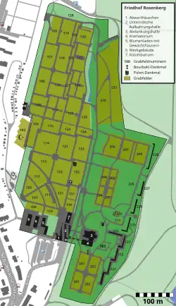
Der Friedhof am Rande des Lindbergwalds lässt sich einerseits in einen innerhalb und einen ausserhalb des Walds liegenden Bereich teilen. Anderseits teilt sich die Anlage auch in den älteren, durch die die Architekten Rittmeyer&Furrer nach dem sogenannten «dialogischen Prinzip» gestalteten Teil sowie den nördlichen durch den Architekten Robert Merkelbach erweiterten Bereich. Das dialogische Prinzip äussert sich in Gegensätzen, den Wechseln zwischen aussen und innen, zwischen hell und dunkel – beispielsweise wenn man zwischen den einzelnen Friedhofsteilen wechselte – sei es nun ob man vom offenen Friedhofsteil in den Waldteil hineinlief oder einen Urnenhain betrat. In der Anlage des Friedhofs wurde dabei bewusst auf offene Achsen verzichtet, die Wege sind versetzt angelegt.
Eine Lindenallee führt zum im Süden liegenden Haupteingang des Friedhofs. Durch das schmiedeeiserne Eingangstor gelangt der Besucher auf den grossen, terrassierten Eingangshof, um den sich die verschiedenen Friedhofsgebäude gruppieren. Flankiert wird der Eingang von einem Abwarts- sowie einem Aborthäuschen. Die beiden eingeschossigen Gebäude haben dem Eingang zugewandte Arkadengänge und ein Walmdach. In der Mitte des Platzes führt eine Treppe in die 1971 errichtete unterirdische Aufbahrungshalle. Sie ist im typischen Stil der 1970er Jahre im Innern mit Sichtbeton ausgekleidet. Vor dem Bau der Aufbahrungshalle wurde die Mitte des Platzes durch mehrere Bäume markiert. Am nördlichen Rand des Platzes steht die Friedhofskapelle, die jedoch in ihrer Funktion durch die Abdankungshalle abgelöst wurde, in der früher das Krematorium untergebracht war. Auf der Ostseite gelangt man über eine Freitreppe zur im Waldteil gelegenen Abdankungshalle mit angrenzendem Krematorium. Die Abdankungshalle erinnert in ihrer Ästhetik an eine Waldkapelle, das neue Krematorium ist ein Betonskelettbau aus dem Jahr 2003. Gegenüber der Abdankungshalle, im Westen, liegt unterhalb des terrassierten Hauptplatzes die Gärtnerei. Sie fügt sich mit ihrer Architektur und dem Walmdach ebenfalls in das Gesamtensemble ein. Westlich der Gärtnerei befindet sich ein Werkstattgebäude im Stil der Schweizer Nachkriegsmoderne, das sich in seiner Bauweise und Ausrichtung den älteren, repräsentativeren Friedhofsbauten baulich unterordnet.[4]

Der südliche Friedhofsteil wurde von Rittmeyer nach dem dialogischen Prinzip gestaltet. Das äussert sich im Friedhof in Gegensätzen, die zueinander im Dialog stehen: Es gibt im Friedhof Wechsel zwischen aussen und innen, zwischen hell und dunkel. Im Eingangsbereich steht die Gärtnerei dem Krematorium gegenüber. Der offene Teil des Friedhofs wird dem Waldteil gegenübergestellt und die Urnenhaine stehen im Kontrast zum umliegenden Wald. Dabei wurde in der Anlage des Friedhofs auf offene Achsen verzichtet, die Wege sind um eine Wegbreite versetzt angelegt, um offene Achsen zu brechen. An den Wegkreuzungen wurde jeweils ein kleiner Platz angelegt und grössere Bäume wurden als Orientierungspunkte gepflanzt. Die grundsätzlich geometrisch angeordneten Grabfelder werden durch immergrüne Thujahecken abgegrenzt. In der südwestlichen Ecke, direkt hinter dem Friedhofseingang, sind in einem Viertelkreis Familiengräber sowie das 2003 errichtete Gemeinschaftsgrab Birkenhain angeordnet. Charakteristisch für den Waldteil sind die erst später von Rittmeyer & Furrer entworfenen Urnenhaine, die stilistisch wie Waldlichtungen in den Wald eingebettet sind. Am Rand dieser Urnenhaine sind Privatgräber vieler bekannten Winterthurer Familien zu finden. Diese Familiengräber entsprachen jedoch nicht der Philosophie von Robert Rittmeyer, dass mit dem Tod alle gleich sind, wurden aber letztlich aus finanziellen Gründen trotzdem angelegt.[1] Weiter finden sich eine Vielzahl von Architekturgräbern im Friedhof, die zugleich eine Spezialität des Friedhofs sind[5] und sich in dieser Vielzahl auf kaum einem anderen Zürcher Friedhof finden lassen.
Beim nördlichen Friedhofsteil, der Erweiterung Merkelbachs von 1940, stand die Bepflanzung durch Fritz Haggenmacher unter dem Eindruck der damaligen Wohngartenbewegung. Typisch für diesen Teil sind japanische Ahornbäumchen sowie kleine Zierbrunnen, die in Natursteinmauern eingelassen sind. Die Gräber sind im Gegensatz zum ursprünglichen Friedhofsteil nur von der Talseite her zugänglich und zwischen den Gräbern gibt es mehr Spielraum für Bepflanzung. Beim Wegsystem behielt Merkelbach das Konzept Rittmeyers bei; das dialogische Prinzip hat er jedoch nicht weiterverfolgt. Der von Merkelbach angelegte dritte Urnenhain wurde konzeptionell als «Garten im Wald» angelegt. Er ist grösser als die beiden von Rittmeyer & Furrer angelegten Urnenhaine und erweckt dadurch nicht mehr den Eindruck einer Lichtung im Wald. Weiter unterscheidet er sich in seiner Ausrichtung und besitzt im Gegensatz zu den beiden ersten Urnenhainen kein ausgestaltetes Zentrum. Auch die ersten der entlang der östlichen Friedhofsgrenze erbauten Urnennischenwände gehen auf diese Erweiterung Merkelbachs zurück.[2][1]
Friedhofskapelle

Wer durch den Haupteingang schreitet, blickt als Erstes über den Hauptplatz auf die rechteckige Friedhofskapelle. Deren Eingangstür auf der Südseite liegt in einer Achse mit dem gegenüberliegenden Haupttor des Friedhofs. Ein halbkreisförmiges Oblicht über dem Eingang wird seitlich von zwei weiteren, gleichförmigen Fenstern flankiert. Vor dem Eingang hat die Kapelle eine arkadengestützte Vorhalle.
An der Westseite gibt es ebenfalls teilweise Arkaden, die jedoch nicht durchgängig sind und sich nicht an das Vordach anschliessen. Oberhalb der Arkaden ist ein auffälliges Mosaik von Karl Hugin angebracht. Rechts neben den Arkaden befinden sich zwei hohe Halbkreisbogenfenster, links davon ein weiteres kleines Fenster. Die dem Wald zugewandte Ostseite ist mit einem weiteren Eingang und zwei kleinen, halbkreisförmigen Fenstern weniger aufwendig ausgeschmückt. Im Norden wird das Dach mit einem Krüppelwalm abgeschlossen. Die Südfassade hat mehrere verschiedenartige Fenster. Die Kapelle besitzt ein Walmdach mit einem Dachreiter am südlichen Firstende; der Turmhelm ist aus Kupfer. Weiter sorgen an der Ost- und Westseite je drei Dachgauben für Beleuchtung in der Kapelle.
Das Innere der Kapelle ist mit Holztäfelung, Ornamenten und Jugendstilleuchten ausgeschmückt.[2]
Abdankungshalle
Die Abdankungshalle, früher mit Krematorium, steht im Waldteil des Friedhofs. Der aus einem Mittelschiff mit zwei flankierenden Seitenschiffen bestehende basilikale Bau erweckt den Eindruck einer Waldkapelle. Vom Hauptplatz her erreicht man die Halle über eine breite Treppe, die zum zurückversetzten Haupteingang führt.
Die gegen Westen ausgerichtete zweiflüglige Eingangstür der Abdankungshalle ist mit Ornamenten ausgeschmückt. Auf der Rückseite des ehemaligen Krematoriums befindet sich das als Apsis ausgeführte ehemalige Ofenhaus mit den seit 2003 nicht mehr benutzten Kremationsöfen. Eine offene, von schmalen dorischen Säulen gestützte Vorhalle umschliesst das Gebäude bis zur Apsis auf der Rückseite. Licht fällt durch über dem Vordach liegende kleine Halbbogenfenster sowie unterhalb des Vordachs liegende rechteckige Fenster in den Raum. Auf der Rückseite hat die Apsis hohe rechteckige Fenster. Über der Abdankungshalle thront ein steiles Satteldach.[2]
Die Abdankungshalle bietet im Erdgeschoss 180 Sitzplätze und auf der Empore zusätzliche 30 Plätze. Mit einer Zusatzbestuhlung kann die Abdankungshalle bis zu 280 Personen Platz bieten. Das Interieur der Halle ist konfessions- und religionsneutral gestaltet.[6] Auf der Empore befindet sich eine Orgel der Firma Kuhn Orgelbau mit 11 Registern.[7]
Geschichte
Vorgeschichte und Krematoriumsbau

1905 gründete sich in Winterthur die Genossenschaft Feuerbestattungsverein Winterthur mit dem Ziel, in Winterthur möglichst bald eine Feuerbestattung zu ermöglichen. Zwei Jahre nach deren Gründung reichte die Genossenschaft bei der Stadt ein Gesuch um Zuweisung eines Bauplatzes für ein neues Krematorium ein.
Dieses Gesuch löste bei den städtischen Behörden eine Überprüfung des bisherigen Friedhofstandortes aus. Die Bodenbeschaffenheit des 1871 angelegten Friedhofs Rychenberg war nicht überall für eine Erdbestattung geeignet, weil der Verwesungsprozess teilweise unbefriedigend war. Die Untersuchungen führten im folgenden Jahr zum einstimmigen Beschluss, den Friedhof an den östlichen Waldrand des Lindbergs auf dem Rosenberg zu verlegen. Als Vorbild für die Standortswahl diente der 1906 in München durch Hans Grässel errichteten Waldfriedhofs. Der zukünftige Friedhof sollte nach Wunsch der Stadt auch zu einem Teil im Wald liegen.[8] An dieser Stelle wiesen die Behörden 1908 dem Feuerbestattungsverein auch einen entsprechenden Bauplatz zur unentgeltlichen Nutzung zu.[9]
Unabhängig von der restlichen Friedhofsplanung schritt danach der Feuerbestattungsverein mit seinen Planungen fort. Am 11. August 1909 bewilligte eine ausserordentliche Generalversammlung einen Kredit von 116'550 Fr. für den Krematoriumsbau, während die Stadt einen Beitrag von 20'000 Fr. zum Bau beisteuerte. Als Architekten für den Krematoriumsbau wurden die beiden bekannten Winterthurer Architekten Bridler & Völki verpflichtet. Der Krematoriumsbau konnte 1910 fertiggestellt werden und am 16. Januar 1911 wurde in Winterthur die erste Kremation durchgeführt.
Friedhofsplanung

Mit der Zuweisung des Bauplatzes für das neue Krematorium begann 1908 auch die Planung für den neuen Friedhof. Bereits bei der Standortsauswahl holte sich die Stadt die Einwilligung der damals noch eigenständigen Gemeinde Veltheim, auf deren Gemeindegebiet der neue Friedhof teilweise geplant war.[9] Nach Vorbild des 1906 in München durch Hans Grässel errichteten Waldfriedhofs sollte ein Teil des zukünftigen Friedhofs im Wald liegen.[8] Erste Zeichnungen Rittmeyer & Furrers für solch einen Friedhof datieren ebenfalls auf das Jahr 1908.[10]
Der stadträtliche Vorschlag einer Friedhofsverschiebung wurde am 18. April 1909 von der Gemeindeversammlung abgenommen und ein entsprechender Auftrag an die Architekten Rittmeyer und Furrer erteilt. Diese präsentierten ihre ersten Pläne Ende desselben Jahres.[11] Das Architektenduo integrierte bei seinen Planungen auch das Krematorium in die Gesamtanlage, das unabhängig vom restlichen Friedhof errichtet wurde. Der Aushub aus dem Bau des Krematoriums wurde für die Terrassierung des zukünftigen Friedhofhauptplatzes eingeplant. Im Gegensatz zum später fertiggestellten Bau war in den ursprünglichen Plänen zwischen Abwarts- und Aborthäuschen eine Eingangshalle sowie ein Leichenhaus im Norden der Anlage vorgesehen, deren Bau später nicht in die Tat umgesetzt wurde. Ausserdem waren in den Planungen noch Grabfelder im Wald vorgesehen. Die ursprünglich geplante Friedhoffläche umfasste 67'000 m², wobei davon 24'000 m auf nutzbaren Wiesenfläche vor dem Wald entfielen. Gemäss Erläuterungsbericht rechneten die Architekten mit einer Dauer von 80 Jahren, bis der Friedhof dieser Version komplett belegt sein würde. Diese Kalkulation berücksichtigte, dass eine Zunahme der Kremationen das zu erwartende Bevölkerungswachstum kompensieren würde.[10]
Nach einigen Anpassungen und Reduktion der Friedhofsfläche auf 40'000 m²[12] wurden die Pläne vom Architekten Gustav Gull und dem Zürcher Stadtgärtner Gottlieb Friedrich Rothpletz begutachtet. Nach erfolgter Begutachtung überwies der Stadtrat am 2. November 1912 eine entsprechende Baukreditvorlage an den Grossen Stadtrat[13], der den Kredit am 31. März 1913 genehmigte.
Erste Bauetappe (1913–1933)

Nach den letzten behördlichen Genehmigungen konnten die Bauarbeiten im Mai 1913 beginnen.[14] Der Bau wurde im Rahmen von Notstandsarbeiten von Arbeitslosen ausgeführt, eine Massnahme, die die städtischen Gewerkschaften wegen der zunehmenden Arbeitslosigkeit der Vorkriegsjahre gefordert hatten.[15] Am 5. Oktober 1914 wurde der Friedhof eingeweiht. Die Baukosten des fertiggestellten Friedhofs betrugen 373'880.65 Fr. und entsprachen genau dem für den Bau zur Verfügung gestellten Kredit von 374'000 Fr.[16]
In den Jahren 1918/19[17] folgte der Bau des Kolumbariums in der Form eines Sandstein-Rundtempels. Der Rundtempel ist von acht Säulen umgeben, auf denen ein Kegeldach liegt. Gemäss dem Friedhofkonzept von 1914 waren noch weitere kleine Kolumbarien geplant, die jedoch nicht verwirklicht wurden.[1] 1920 wurde bei der Gärtnerei ein zweites Gewächshaus erstellt,[18] nachdem wenige Jahre vorher entgegen dem ursprünglichen Bauplan auf diese Investition verzichtet worden war.[16]
1924/25 wurde nördlich des Krematoriums durch Rodung der im Wald eingebettete, 4'000 m² grosse Urnenhain I (heutige Grabfelder 204 u. 205) angelegt. Mit der Einrichtung des ersten Urnenhains rückte Rittmeyer geringfügig von der Idee eines Waldfriedhofs ab, den er für unpraktisch hielt.[8] 1930 folgte südlich des Krematoriums der zweite, 6'000 m² grosse Urnenhain II (Grabfelder 201 u. 202). Das abschüssige Gelände erforderte bei der Anlage eine starke Terrassierung. Auf einer 5,7 m hohen Stele steht hier eine Engelsfigur von Karl Geiser.
1931 wurde erstmals eine Buslinie zum Friedhof eingerichtet; das Buswartehäuschen Rosenberg von 1934 steht heute unter Denkmalschutz.[19]
1934 wurde das Krematorium durch Lebrecht Völki gegen Osten erweitert. Er baute zwei neue, neuklassizistische Kremationsöfen ein und ergänzte das Gebäude um eine Leichenhalle sowie einen Pflanzenraum.
Zweite Bauetappe (1940)

1940 kam es unter dem Architekten Robert Merkelbach zur Erweiterung des Friedhofs im Norden bis zur Eggenzahnstrasse, womit der Friedhof 1942 seine heutigen Ausmasse erreichte. Merkelbach zeichnete für die Erstellung des dritten Urnenhains verantwortlich und liess die der ersten Urnennischenwände errichten. Zum Erweiterungsauftrag kam Merkelbach wahrscheinlich durch seine Bürogemeinschaft mit Walter Furrer, der zuvor mit Rittmeyer zusammen eine Architektengemeinschaft bildete. Die Erweiterung Merkelbachs unterscheidet sich gestalterisch von Rittmeyers Teil der Anlage und wird heute entsprechend gepflegt. Zu Merkelbachs Einstellung zum Tod ist nur wenig bekannt, im Gegensatz zu Rittmeyer, der seine Gedanken hierzu mehrfach dargelegt hat.
Im Jahr 1950/51 wurde die Abdankungshalle des Krematoriums durch Edwin Bosshardt um zwei Seitenschiffe und eine Empore erweitert.
1952 wurde mit dem Grabfeld 211 ein erstes Gemeinschaftsgrab angelegt. Zwar gab es bereits vom Krematorium zu diesem Zweck angemietete Einzelgräber, jedoch kein eigentlich dafür vorgesehenes Friedhofsfeld. 1956 wurde das Werkstattgebäude gebaut und die dem Friedhof vorgelagerten Parkplätze wurden angelegt.
Dritte Bauetappe (1969–1971)
Die dritte Bauetappe wurde vom Architekten Alex Ott realisiert, der zu dieser Zeit Mitarbeiter im Stadtplanungsamt war. Er entwarf im Eingangsbereich eine Aufbahrungshalle, die mit Rücksicht auf die bestehende Architektur des Friedhofs grösstenteils unterirdisch angelegt wurde. Die Eingangstreppe zur unterirdischen Halle wurde auf die zuvor mit Bäumen ausgestalteten Mitte des Hauptplatzes angelegt. Durch einen Tunnel ist die Halle mit dem Krematorium verbunden. 1974 wurde ein drittes Gewächshaus errichtet. 1976 entstanden im Wald östlich des Urnenhains II vier weitere Urnennischenwände.
Durch eine Gesetzesänderung wurde die Kremation im Kanton Zürich im Jahr 1980 unentgeltlich, sodass der Feuerbestattungsverein seine Daseinsberechtigung verlor. Der Verein wurde zum 31. Dezember 1980 aufgelöst; das Vereinsvermögen sowie Gebäude gingen an die Stadt Winterthur über und wurden damit integraler Bestandteil des Friedhofs.
1998 entstand westlich an den Friedhof Rosenberg angrenzend ein kleiner Israelitischer Friedhof, der durch seine Nähe zum Friedhof Rosenberg dessen Infrastruktur mitbenutzen kann.[20]
Seit 2002 gibt es auf dem Friedhof Rosenberg erste Baumgräber. Da sich diese Grabart grosser Beliebtheit erfreut, mussten im bisher bewaldeten nordöstlichen Teil die Grabfelder 230 und 231 angelegt werden.
Vierte Bauetappe (2001–2003)

2003 stellte das Architektenkollektiv Winterthur, bestehend aus den Architekten Josef Kisdaroczi, Markus Jedele, Andri Schmid und Peter Wehrli, die vierte Bauetappe fertig. Es baute südlich an das alte Krematorium angrenzend ein neues, modernes Krematorium an. Die beiden Kremationsöfen im alten Krematorium wurden ausser Betrieb genommen und das Gebäude renoviert; seitdem wird es als reine Abdankungshalle genutzt. Ausserdem wurde ausserhalb des neuen Krematoriums ein Besinnungshof mit Sitzgelegenheit angelegt, der getreu dem Vorbild Rittmeyers als Lichtung in den Wald eingebettet ist.
2010 wurde das neue, von Rotzler Krebs Partner gestaltete Gemeinschaftsgrab Birkenhain eröffnet. Weiter wurden für die muslimische Gemeinschaft das nach Mekka ausgerichtete Grabfeld 103 angelegt. 2012 legte das Architektenkollektiv Winterthur, das 2003 das neue Krematorium gebaut hatte, westlich des ersten Werkhofgebäudes einen weiteren Werkhof an. 2016 folgte die Anlage eines neuen Kindergrabfelds.[2][21]
2023 gab die Stadt bekannt, dass sie aufgrund des Bedürfnisses nach weiteren Baumgräbern eine direkt an den Friedhof angrenzende Waldparzelle am Seuzacherweg für weitere Baumgräber ausscheiden und entsprechend bewirtschaften wollen, ohne diese jedoch in den eigentlichen Friedhof zu integrieren.[22]
Grabstätten und Denkmäler
Grabstätten
Auf dem Friedhof Rosengarten wurden bekannte Persönlichkeiten aller Winterthurer Geschlechter begraben. Insbesondere die vielen Architekturgräber geben einen guten Querschnitt über das Winterthurer Bürgertum, wo alle bekannten Namen wie Sulzer, Reinhart oder Volkart anzutreffen sind. Auch ehemalige Stadtpräsidenten und Bundesräte fanden ihre letzte Ruhestätte auf dem Friedhof.
Die vorhandenen Grabstätten wurden erstmals 2013 durch die Historikerin Regula Michel in einem Grabmalinventar erfasst. Dabei wurden 138 Grabstätten im Inventar als ganz oder teilweise schutzwürdig eingestuft. Im älteren Friedhofsteil sind etliche Grabstätten geschützt, insbesondere sind die meisten Privatgräber rund um die Urnenhaine I und II sowie die Gräber im Viertelkreis beim Eingang geschützt. Dabei gibt es Grabstätten, die als Gesamtes erhalten werden, aber auch Grabstätten, bei denen das eigentliche Grabmal als schützenswert eingestuft wird und auch dessen Umplatzierung möglich ist. Teilweise wird auch nur die Bepflanzung geschützt oder es ist eine Neubelegung der Gräber möglich, wie dies bereits heute bei manchen schützenswerten Grabstätten erfolgt ist.[23]
Nachfolgend findet sich eine Auswahl von Grabstätten, einerseits von bedeutenden Persönlichkeiten sowie auch anderweitig künstlerisch besonders wertvolle Grabmäler:
| Grabfeld | Name | Beschreibung | Bild der Grabstätte |
|---|---|---|---|
| 106.816 | Grab von Hans Spiess-Fahrländer | Grab mit Werk von Silvio Mattioli und gemäss Michel eines künstlerisch wertvollsten modernen Grabmale auf dem Friedhof.[23] |
|
| 113.800 | Familiengrab Fülscher | Familiengrab der Familie Fülscher, unter anderem von der Köchin Elisabeth Fülscher (1895–1970) sowie der Künstlerin Alwine Fülscher (1898–1969) mit einer wahrscheinlich von Grabmalskulptur, die wahrscheinlich von Arthur Tigram Abeljanz stammenden Grabmalskulptur[23] |
|
| 113.818 | Familiengrab Baer | Das Familiengrab ist gemäss Michel eines der ältesten und künstlerisch wertvollsten Gräber auf dem Friedhof.[23] |
|
| 113.819 | Familiengrab Bretscher Walder Meyerhofer | Das Familiengrab ist eines der bedeutendsten Ädikulagrabmale auf dem Friedhof.[23] |
|
| 113.827 | Familiengrab Hans Widmer | Ein in den Formen von Art déco gehaltenes Familiengrab von Hans Widmer (1889–1939), Winterthurer Stadtpräsident von 1930 bis 1939. In einer Nische ist eine Bronzeurne platziert.[23] |
|
| 113.833 | Familiengrab Ganzoni | Familiengrab der Gründer der Ganzoni & Cie, der heutigen Sigvaris Group mit einer für diese Zeit seltenen Aktdarstellung.[23] |
|
| 121.808 | Familiengrab Sulzer-van Soest | Seltenes Beispiel eines Grabmals, das vom Friedhofarchitekt Robert Rittmeyer entworfen wurde. Der Urnenaufsatz auf dem Grab ist ein Hinweis auf die Kremation. Ursprünglich war das Grab von einer Familie Steiner belegt.[23] |
|
| 121.811 | Familiengrab Paul Reinhart-Sulzer I | Familiengrab des Gründers der Paul Reinhart AG. Eine für dieses Jahrzehnt seltene Darstellung einer Figur in Lebensgrösse.[23] |
|
| 122.800 | Familiengrab Jaeggli | Grab der Industriellenfamilie Jaeggli. Das Grab ist eines der grossen, an Wegkreuzungen stehenden Gräber, die im Friedhof als Orientierungspunkte dienen. In der Mitte des Grabs steht eine Aktfigur Hermann Hubachers[23], die gemäss dem Schweizerischen Künstler-Lexikon eines seiner Hauptwerke ist.[24] |
|
| 123.819 | Grab Fausta&Bruno Cifaratti | Dieses 1989 entstandene Grab ist eines der künstlerisch wertvollsten des ausgehenden 20. Jahrhunderts auf dem Friedhof. Das Grabmal unbekannter Herkunft zeigt eine Figur mit Scheibe, die Christina von Bolsena sein könnte, sofern es sich bei der Scheibe um einen Mühlstein handelt.[23] |
|
| 128.816 | Familiengrab Keller-Cuony | Familiengrab mit einer Darstellung des Abendmahls des Tessiner Künstler Remo Rossi und gemäss Historikerin Regula Michel eines der künstlerisch wertvollsten Grabmale des Friedhofs.[23] |
|
| 132.800 | Familiengrab Volkart | Das von den Architekten Bridler&Völki Privatkolumbarium der Familien Volkart und Reinhart, der Gründer und Inhaber des Handelshaus Gebrüder Volkart, steht in einem eigenen, umfriedeten Grabfeld. Im Innern des Kolumbariums steht in der Mitte eine Engelsfigur. Das Kolumbarium ist unter anderem Grabstätte des Firmengründers Salomon Volkart (1816–1893). Die vom früheren Friedhof übernommenen Einzelgrabmale im Innern sind im Stil des Historismus gehalten.[23] |
|
| 133.800 | Familiengrab Reinhart | Familiengrab der Winterthurer Mäzenfamilie Reinhart, unter anderem Grablege von Oskar Reinhart (1885–1965). Das Grab stellt mit der Umfriedung ein eigener Privatfriedhof innerhalb des Friedhofs dar. Gestaltet wurde das Grab von Lebrecht Völki mit Einwilligung der Friedhofarchitekten Rittmeyer&Furrer. Die ursprüngliche Bepflanzung erfolgte durch die Gebrüder Mertens. Die Aktfigur von Hermann Haller ist wohl das älteste Beispiel einer Aktdarstellung auf einem Grab des Friedhofs.[23] |
|
| 134.814 | Familiengrab Ernst | Familiengrab der Industriellenfamilie Ernst, unter anderem Grablege von Rudolf Ernst (1865–1956). Die Bronzefigur von Hermann Haller hält eine Spindel in ihren Händen, die auf die Bindfadenfabrik Flurlingen hindeutet, deren Direktor Ernst war.[23] |
|
| 201.969 | Familiengrab Ludwig Forrer | Familiengrab von Ludwig Forrer (1845–1921), auf dem Grab Louis Forrer genannt, von 1902 bis 1917 Bundesrat und zweimaliger Bundespräsident. Forrers Asche wurde nach seiner Kremation in Bremgarten nach Winterthur überführt. Die Grabstätte wurde der Familie von der Stadt zur Verfügung gestellt.[25] Die schlichte Ausführung des Grabs war für jene Zeit modern. Bereits 1940 wurde beschlossen, dass diese Grabstätte bestehen bleibt.[23] |
|
| 201.991 | Familiengrab Buchmann | Familiengrab der Besitzerfamilie der Seifenfabrik Aspasia mit bronzener Statue des Basler Bildhauers August Suter.[23] |
|
| 201.994 | Familiengrab Rudolf Geilinger | Familiengrab von Rudolf Geilinger (1848–1911), Winterthurer Stadtpräsident von 1879–1911. Ebenfalls am selben Ort begraben ist Rudolf Friedrich (1923–2013), Bundesrat von 1975 bis 1982. Die Grabplatte wurde dem Grab erst später hinzugefügt.[23] |
|
| 202.815 | Familiengrab Erb | Grab der Unternehmerfamilie Erb, unter anderem Grabstätte von Hugo Erb senior (1894–1952) und gemäss Michel eines der qualitätvollsten Grabmale aus der zweiten Hälfte des 20. Jahrhunderts.[23] |
|
| 202.838 | Familiengrab Eduard Sulzer-Ziegler | Grab des Unternehmers und Politikers Eduard Sulzer-Ziegler im Landistil.[23] |
|
| 204.800 | Familiengrab Sulzer | Das Grab mit einer Figur des Bildhauers Eduard Zimmermann stand ursprünglich im kleinen Rundtempel im heutigen Alterszentrum Adlergarten. Das Grab wurde von Fanny Sulzer-Bühler für ihren Mann August Sulzer errichtet. Auch die Grabstätte von dessen Vater und Gründer der Sulzer AG, Salomon Sulzer, befindet sich hier. 1935 wurde das Grab vom Adlergarten in den Friedhof Rosenberg verlegt.[23][5] |
|
| 204.822 | Familiengrab Imhoof | Familiengrab der Familie Imhoof. Unter anderem sind der Unternehmer Friedrich Imhoof (1807–1893) und der Numismatiker Friedrich Imhoof-Blumer (1838–1920) dort begraben. Grab in Form eines Zippus, der sonst eher auf deutschen Friedhöfen zu finden ist.[23] |
|
| 204.822 | Grab Hans Rüegg | Grab des ehemaligen Stadtpräsidenten Hans Rüegg (1902–1972).[23] |
|
| 205.812 | Familiengrab Adolf Bühler | Familiengrab des Industriellen Adolf Bühler (1834–1894) und das älteste erhaltene Architekturgrab auf dem Friedhof.[23] |
|
| 205.812 | Familiengrab Gustav Keller | Familiengrab des Politikers und Unternehmers Gustav Keller (1867–1932) mit Bronzeplastik von Leo Berger.[23] |
|
| 205.826 | Familiengrab Schoellhorn | Grab der Inhaberfamilie der Brauerei Haldengut mit einem Akt des Bildhauers Hermann Hubacher. |
|
| 205.822 | Familiengrab Hahnloser | Grab der Familie Hahnloser (Villa Flora) mit einer Skulptur von Max Reinhold Weber. Gemäss Michel eines der künstlerisch wertvollsten Grabmale auf dem Friedhof.[23] |
|
| 205.828 | Familiengrab Bühler-Egg | Grab von Eduard Bühler (1833–1909), Besitzer der Spinnerei Bühler. Auch der Springreiter Hans Bühler fand hier seine letzte Ruhestätte. Auf dem Grab steht eine Aktfigur von Hermann Haller. |
|
| 206.806 | Grab Alfred Wening | Grab des Bruders des vor allem in den 1940er-Jahren als Grabmalkünstler tätigen Winterthurer Künstler Rudolf Wening. Das von ihm verwendete Werk ist eines der bedeutendsten Werke des Künstlers auf dem Friedhof.[23] |
|
| 209.800 | Grab von Paul Fink | Grab von Paul Fink (1875–1946), Lehrer am Winterthurer Gymnasium und Konservator des Kunstmuseum Winterthur. Das Steinrelief auf der Grabplatte wurde von dem Winterthurer Künstler Robert Lienhard gestaltet.[26] Das Grab besteht auf Wunsch Finks lediglich aus dem Grabstein ohne Einfassung oder Bepflanzung.[23] |
|
| 209.850 | Familiengrab Sulzer | Grab der Familie Sulzer beginnend mit Johann Jakob Sulzer (1806–1883), dem ältesten Sohn des Firmengründers. Die figurenlose Grabanlage ist mit 180 Quadratmeter das grösste Privatgrab des Friedhofs und wurde 1968 angelegt, als die Familie ihr Privatmausoleum im Römerholz aufgegeben hat.[23] |
|
| 209.862 | Grab Josefine Wieland-Kiel | Das Grab mit einer Skulptur der Künstlerin Irma Städtler zählt neben Grab 128.816 zu den künstlerisch wertvollsten Gräbern aus der jüngsten Zeit.[23] |
|
Bourbaki-Denkmal

Als Anfang Februar 1871 die Angehörigen der Bourbaki-Armee interniert wurden, stationierte der Kanton rund 2'000 französische Soldaten in und um Winterthur stationiert. Dieses für die humanitäre Geschichte der Schweiz einschneidende Ereignis war auch für die Stadt Winterthur schwierig. Die Stadt hatte zu dieser Zeit selbst lediglich rund 10'000 Einwohner, weshalb der Stadtrat intervenierte, als der Zürcher Regierungsrat zu Beginn bis zu 5'000 Soldaten im sogenannten Kantonisierungsbezirk Winterthur einquartieren wollte. Die Soldaten wurden hauptsächlich in der Alten Kaserne, in der Reithalle sowie im Mädchenschulhaus (dem heutigen Gewerbemuseum) am Kirchplatz untergebracht. Kranke Soldaten wurden in den beiden Schützenhäusern, im Turnhaus und im Betsaal untergebracht, weitere Soldaten in Agglomerationsgemeinden, so beispielsweise 400 Soldaten in der Spinnerei Beugger in Wülflingen.
Bereits vor dem Eintreffen der Soldaten wurden in Winterthur die Kinder geimpft, da die Soldaten Seuchen wie Typhus und Pocken mit sich brachen. Trotzdem kam es in Winterthur zu einer Pockenepidemie, die erst Ende Juni 1871 überwunden werden konnte. Insgesamt wurden in Winterthur auf dem Friedhof St. Georgen 47 Bourbaki-Soldaten begraben, von denen mehr als die Hälfte an Typhus gestorben war; je sieben waren den Pocken sowie einer Lungenentzündung zum Opfer gefallen.
Zum Gedenken an diese Soldaten wurde das Bourbaki-Kreuz errichtet, das zunächst auf dem Friedhof St. Georgen stand. Neben der Inschrift sind auf dem Sockel des Grabsteins die Namen und Interniertennummer der ums Leben gekommenen Soldaten wiedergegeben, wobei ein Name vergessen ging. Die Falschschreibung einiger Namen deutet auf einen lokalen Bildhauer als Urheber des Denkmals hin.[23] Als der Friedhof St. Georgen wegen des Baus der Bahnlinie aufgehoben werden musste, wurde das Denkmal auf den Friedhof Rychenberg; seit 1957 steht es beim Grabfeld 201 auf dem Friedhof Rosenberg.[27]
Polen-Denkmal

Im Herbst 1969 wurde auf dem Friedhof Rosenberg im Beisein des polnischen Ministers Janusz Wieczorek ein erstes Polen-Denkmal eingeweiht.[28] Dieses alte Denkmal aus Sandstein wurde am 6. Oktober 2007 durch ein neues aus Granit ersetzt. Auf dem auf Grabfeld 132 stehenden Gedenkstein sind die Namen von acht polnischen Soldaten der Zweiten Polnischen Schützendivision eingemeisselt, die während des Zweiten Weltkriegs in der Schweiz interniert wurden und in Winterthur starben.[29]
In Winterthur profitierten die Polen von günstigen Unterbringungsbedingungen. Im Gegensatz zu anderen Orten in der Schweiz waren sie privat statt in Lagern untergebracht. Ausserdem wurde den polnischen Soldaten ein Studium ermöglicht. Während des Kriegs absolvierten rund 500 Polen im Hochschullager Winterthur ein Studium und durften sich später auch an der ETH einschreiben.
Das Polendenkmal ist nicht der einzige Ort, der an die in Winterthur internierten Polen erinnert. Es existiert weiterhin eine Dankestafel am Gewerbemuseum Winterthur sowie eine weitere Tafel an der Herz-Jesu-Kirche im Stadtkreis Mattenbach, deren Besuch für die polnischen Internierten zu jener Zeit verpflichtend war.[30][31]
Flora und Fauna
Der Waldteil, in dem der Friedhof Rosenberg liegt, ist ein Buchenmischwald, gemischt mit Weisstannen und Eiben. Weiter finden sich Stechpalmen, Moose und Farne sowie im Frühling auch Bärlauch und Salomonssiegel im Wald. Auf den Wiesenflächen gibt es rund 40 verschiedene Pflanzenarten, darunter die Hirschzunge, die Türkenbund-Lilie, der Kleine Sommerwurz oder das Männliche Knabenkraut. Bei der Aufnahme der lokalen Flora und Fauna für das Natur- und Landschaftsschutzinventar wurden ab 2012 acht verschiedene Pflanzenarten festgestellt, die auf der Roten Liste der Schweiz oder des östlichen Mittellands vertreten sind. Ebenso wurden neun verschiedene, teilweise seltene Orchideenarten gefunden.
An Tierarten gibt es typische Waldtiere wie Dachs, Rotfuchs oder Eichhörnchen. Auf den Wiesen des Friedhofs finden sich 20 verschiedene Arten von Tagfaltern, wie beispielsweise das Gewöhnliche Widderchen, das Taubenschwänzchen oder der Zitronenfalter. Auch vorgefunden wurden die beiden gemäss Roter Liste als «potenziell gefährdet» gelisteten Tagfalter Kurzschwänziger Bläuling und Malven-Dickkopffalter. Bei den Heuschrecken wurden acht verschiedene Arten nachgewiesen, wovon keine als gefährdet gilt. Als eine der im Rahmen des Naturinventars definierten Massnahmen werden die Wiesen auf dem Friedhof nur alternierend geschnitten. Der Friedhof achtet bei der Bepflanzung auf die Vielfalt und es wurden mehrere Massnahmen zur Förderung von Wildbienen festgelegt.
Zu Luft wurden 38 verschiedene Vogelarten gezählt sowie fünf verschiedene Fledermausarten. Bei der Erfassung im Rahmen des Naturinventars wurden mit Eisvogel, Fitis und Mauersegler drei gefährdete Arten gesichtet, wobei der Eisvogel nur einmal gesehen wurde. Zusätzlich wurden als Fördermassnahmen für den nicht erfassten, aber ebenfalls gefährdeten Trauerschnäpper im Friedhof Nistkästen montiert. Am künstlich angelegten Weiher finden sich Amphibien und Wasservögel wohl. Auch Bergmolche, Ringelnattern und Blindschleichen wurden bei Erstellung des Naturinventars gesichtet. Ebenfalls existiert auf dem Friedhof eine grosse Population von Zauneidechsen.[1][32][33][34]
Kunst

Auf dem Friedhof Rosenberg finden sich Kunstwerke verschiedener Künstler. Es sind unter anderem Werke von Künstlern wie Hermann Haller, Hermann Hubacher oder Eduard Zimmermann als Grabschmuck, die im Kapitel Grabstätten genauer erörtert werden. Aber auch ausserhalb der Grabstätten stehen Skulpturen.
Gut sichtbar ist an der Westseite der Friedhofskapelle ein 1928 von Karl Otto Hügin (1897–1963) geschaffenes Wandmosaik. Das 2,00 × 4,40 Meter grosse Glasmosaik zeigt ein Kleinkind, einen Mann und eine Frau mittleren Alters sowie eine ältere Frau und symbolisiert damit eine Familie in allen drei Lebensaltern.[2] Ebenfalls in der Nähe des Eingangs auf dem Weg zum Kolumbarium steht auf einer Wiese die Steinskulptur „Zwei Figuren“ von Arnold D’Altri (1904–1980). Diese 2,2 grosse Skulptur fand 1982 durch eine Schenkung den Weg zum Friedhof Rosenberg. Ursprünglich stand sie beim Atelier des Künstlers in der Baumschule von Fritz Haggenmacher in der Nähe des Kemptweihers.
Seit 2010 wird der Urnenhain I durch das Diptychon „Letzte Ruhestätte“ des Winterthurer Bildhauers Gregor Frehner (* 1959) markiert. Das Kunstwerk besteht aus zwei in Betonsockeln eingelassenen 2,4 m hohen Bronzeplatten, die gemäss Künstler nach dem Prinzip «Stadtpläne des Lebens» ausgeschnitten wurden.[35]

Im 1922 erstellten Urnenhain II thront auf einem auffälligen 5,7 m hohen Granitsockel eine 1,7 m hohe Engelsfigur von Karl Geiser (1898–1957). Diese Engelsfigur soll als gemeinsames Grabkunstwerk für den gesamten Urnenhain dienen, dem die anderen Grabsteine untergeordnet werden sollen. Gespendet wurde der Engel von Georg Reinhart. Der Engel war die erste Auftragsarbeit Geisers und ist eines der bedeutendsten Werke des Künstlers.
Gleich mehrere Kunstwerke vom Winterthurer Künstler Robert Lienhard (1919–1989) finden sich auf dem Friedhof nahe beieinander. Das älteste ist an einer 1940 erstellten Urnenmauer das 66 × 82 cm grosse Steinrelief „Barmherziger Samariter“. Als 1952 das erste Gemeinschaftsgrab auf dem Friedhof angelegt wurde, wurde in dessen Mitte die 1,4 Meter hohe Bronzeskulptur „Aufblickender“ platziert. Seit 2015 findet sich in unmittelbarer Nachbarschaft zum Gemeinschaftsgrab die 1967 erstellte Bronzeskulptur «Sirius», eine Leihgabe der Kunstvereins Winterthur. Das Kunstwerk stand ursprünglich beim Haupteingang des Kunstmuseums und wurde nach dessen Entfernung restauriert und mit einem neuen Granitsockel versehen.[36][37]
.jpg)
Das zweite Gemeinschaftsgrab (Grabfeld 212 u. 213) schmückt eine geschmiedete Eisenplastik von Josef Maria Odermatt (1934–2011). Das jüngste Gemeinschaftsgrab Birkenhain aus dem Jahr 2010 wurde von Kurt Siegrist künstlerisch begleitet, der zum Gemeinschaftsgrab zwei Brunnen beisteuerte.
Ebenfalls mehrere Kunstwerke des Winterthurer Eisenplastikers Silvio Mattioli (1929–2011) finden sich auf dem Friedhof. Dazu zählen neben Grabkunst eine auf dem Wiesengrabfeld 1978 erstellte Chromstahl-Plastik oder eine 1,76 Meter hohe Plastik am Eingang an der Eggenzahnstrasse.
Neben den kleinen Brunnen, die Robert Merkelbach bei der Erweiterung anlegte, sind jeweils beidseits der Brunnen Steinreliefs von Werner Müller (1899–1986) eingelassen. Insgesamt sind es 16 solche je 66 × 82 cm grosse Steinreliefs mit verschiedenen Motiven in den Natursteinmauern. Mit der Erweiterung des Friedhofs schrieb die Stadt einen Wettbewerb unter sechs Bildhauern aus, aus dem die Kalksteinskulptur „Die Ruhende“ von Franz Fischer (1900–1980) hervorging, die beim Spiegelweiher platziert wurde. In der unterirdischen Aufbahrungshalle befindet sich seit 1972 – kurz nach deren Erstellung – ein 3,40 × 3,10 Meter grosses vergoldetes Holzrelief mit dem Titel „Das Gesetz“ von Walter Wächter (1934–2004).
Bei der Renovation des Krematoriums 2003 wurde ein Krematoriumshof erstellt, dessen Einfassung mit braun-schwarz gespritzten Stahlplatten für den Architekten Markus Jedele bereits früh feststand. Diese Stahlplatten sind mit einem Gedicht des Schriftstellers Klaus Merz durchbrochen, das folgenden Text ergibt: «Tiefe Himmel, weite Welt, leise wiegen, mutig gehen.»[38] Bei der gleichen Neugestaltung wurde in der Abdankungshalle ein Wandbild von Paul Bodmer (1886–1983) abgedeckt, das drei Frauen in einer paradiesischen Landschaft zeigte.[2]
Im September 2015 wurde der 10 m lange Holzmann Holidi von 1984, der bis dahin im Graben in der Winterthurer Altstadt stand, in den Friedhof Rosenberg verlegt. Der Name des Holzmanns steht für «homo lignum diligens»: Ein Mensch, der das Holz liebt. Die von Göpf Hörak entworfene und von Werner Ignaz Jans geschaffene Spielfigur aus Eichenholz war ursprünglich eine Auftragsarbeit für den Dachverband der Schweizer Holzwirtschaft Lignum.[39][5]
Weblinks
- Friedhof Rosenberg auf der Website der Stadt Winterthur
- Friedhof Rosenberg im Winterthur Glossar.
- Friedhof Rosenberg im genealogischen Verzeichnis «Find a Grave»
Einzelnachweise
- ↑ a b c d e Stadt Winterthur (Hrsg.): Friedhof Rosenberg. Gestaltung und Entwicklung. Juli 2010, S. 4 (stadt.winterthur.ch [PDF; 2,1 MB; abgerufen am 11. März 2021]).
- ↑ a b c d e f g Raphael Sollberger: Friedhofanlage Rosenberg. In: Amt für Raumentwicklung, Kanton Zürich (Hrsg.): Inventar der Denkmalschutzobjekte von überkommunaler Bedeutung, Revision und Ergänzung Stadt Winterthur (AREV Nr. 0929/2018). 2018, S. 90–108 (zh.ch [PDF; abgerufen am 8. März 2021]).
- ↑ Kantonsliste A- und B-Objekte Kanton ZH. Schweizerisches Kulturgüterschutzinventar mit Objekten von nationaler (A-Objekte) und regionaler (B-Objekte) Bedeutung. In: Bundesamt für Bevölkerungsschutz BABS – Fachbereich Kulturgüterschutz, 1. Januar 2024, (PDF; 397 kB, 21 S., Revision KGS-Inventar 2021 (Stand: 1. Januar 2023)).
- ↑ Raphael Sollberger: Friedhofanlage Rosenberg, Werkstattgebäude. In: Amt für Raumentwicklung, Kanton Zürich (Hrsg.): Inventar der Denkmalschutzobjekte von überkommunaler Bedeutung, Revision und Ergänzung Stadt Winterthur (AREV Nr. 0929/2018). 2018, S. 123–129 (zh.ch [PDF; abgerufen am 21. März 2021]).
- ↑ a b c Kunst im Friedhof Rosenberg im Winterthur Glossar. Abgerufen am 13. März 2021. (Seite nicht mehr abrufbar, festgestellt im März 2022. Suche in Webarchiven)
- ↑ Trauerfeier. Stadt Winterthur, abgerufen am 14. März 2021.
- ↑ Winterthur / Rosenberg – Abdankungshalle Zentralfriedhof und Krematorium Rosenberg – Orgel Verzeichnis – Orgelarchiv Schmidt. (deutsch).
- ↑ a b c Robert Rittmeyer: Rosenbergfriedhof in Winterthur. In: Das Werk. März 1934, S. 82–84 (e-periodica.ch [abgerufen am 13. März 2021]).
- ↑ a b Stadt Winterthur (Hrsg.): Geschäftberichte der Verwaltungsbehörden 1907. Winterthur 1908, S. 178.
- ↑ a b Der Rosenberg-Friedhof in Winterthur. In: Die schweizerische Baukunst. Nr. 16. Wagner'schen Verlagsanstalt, Bern 12. August 1910, S. 213–225 (e-periodica.ch [abgerufen am 22. März 2021]).
- ↑ Stadt Winterthur (Hrsg.): Geschäftberichte der Verwaltungsbehörden 1909. Winterthur 1910, S. 181.
- ↑ Der Rosenberg-Friedhof in Winterthur. In: Schweizerische Bauzeitung. Band 64, Nr. 26. A. Hegner, Zürich 26. Dezember 1914, S. 277–279 (e-periodica.ch [abgerufen am 22. März 2021]).
- ↑ Stadt Winterthur (Hrsg.): Geschäftberichte der Verwaltungsbehörden 1912. Winterthur 1913, S. 163–164.
- ↑ Stadt Winterthur (Hrsg.): Geschäftberichte der Verwaltungsbehörden 1913. Winterthur 1914, S. 166.
- ↑ Heinz Bächinger: Arbeiterunion Winterthur im Winterthur Glossar; abgerufen am 21. März 2021.
- ↑ a b Stadt Winterthur (Hrsg.): Geschäftberichte der Verwaltungsbehörden 1914. Winterthur 1915, S. 181.
- ↑ Stadt Winterthur (Hrsg.): Geschäftberichte der Verwaltungsbehörden 1919. Winterthur 1920, S. 204.
- ↑ Stadt Winterthur (Hrsg.): Geschäftberichte der Verwaltungsbehörden 1920. Winterthur 1921, S. 177.
- ↑ Raphael Sollberger: Buswartehäuschen Rosenberg. In: Amt für Raumentwicklung, Kanton Zürich (Hrsg.): Inventar der Denkmalschutzobjekte von überkommunaler Bedeutung, Revision und Ergänzung Stadt Winterthur (AREV Nr. 0929/2018). 2018, S. 76 (zh.ch [PDF; abgerufen am 8. März 2021]).
- ↑ Barbara Schneider: Diese Gräber sind für die Ewigkeit. In: Tages-Anzeiger. 15. Juni 1998, S. 17.
- ↑ Heinz Bächinger: Friedhof Rosenberg im Winterthur Glossar; abgerufen am 22. März 2021.
- ↑ Fabian Röthlisberger: Stadt will auf dem Rosenberg Waldgräber einrichten. In: Der Landbote. Band 137, Nr. 20, 25. Januar 2023, S. 5 (landbote.ch).
- ↑ a b c d e f g h i j k l m n o p q r s t u v w x y z aa ab ac ad ae Regula Michel: Grabmalinventar Friedhof Rosenberg. Winterthur 2013.
- ↑ Eduard Plüss (Hrsg.): Künstler Lexikon der Schweiz XX. Jahrhundert: A-Le Corousier. Band 1. Huber Verlag, 1963, ISBN 3-7193-0144-3, S. 465.
- ↑ Walter Labhart: Bundesrat Ludwig Forrer, 1845-1921 (= Neujahrsblatt der Stadtbibliothek Winterthur. Band 303). Stadtbibliothek Winterthur, 1974, S. 193.
- ↑ Albert Gester: Der Plastiker Robert Lienhard. In: Das Werk: Architektur und Kunst. Band 40, Nr. 1, Januar 1953, S. 30–36 (e-periodica.ch [abgerufen am 15. März 2021]).
- ↑ Peter Niederhäuser: Vor 150 Jahren strandeten Bourbaki-Soldaten in der Stadt. In: Der Landbote. 4. Februar 2021, S. 5 (landbote.ch [abgerufen am 14. März 2021]).
- ↑ Denkmal für polnische Soldaten. In: Walliser Volksfreund. Band 50, Nr. 171, 4. November 1969, S. 8 (e-newspaperarchives.ch [abgerufen am 15. März 2021]).
- ↑ Die Wiedervereinigung der Erinnerung. In: Der Landbote. 8. Oktober 2007, S. 11.
- ↑ Martin Gmür: Polnische Dankbarkeit währt Jahrzehnte. In: Tages-Anzeiger. 8. Oktober 2007, S. 17.
- ↑ Dominik Landwehr: Reliefs erinnern an internierte Polen. In: Der Landbote. 19. Februar 2021, S. 7 (landbote.ch [abgerufen am 14. März 2021]).
- ↑ Tiere und Pflanzen im Friedhof Rosenberg. Stadt Winterthur, abgerufen am 14. März 2021.
- ↑ Christian Lanz: Wo Menschen ruhen, sind auch Vögel, Schmetterlinge und Orchideen zu Hause. In: Der Landbote. 27. April 2015, S. 3 (landbote.ch [abgerufen am 14. März 2021]).
- ↑ Monika Wartenweiler: Naturinventar Friedhof Rosenberg, Winterthur. Einbezug der Mitarbeitenden zur Aufwertung der Anlage als Lebensraum. 23. August 2018, S. 34–36;50&51 (digitalcollection.zhaw.ch [PDF; abgerufen am 18. März 2021]).
- ↑ Friedhof Rosenberg Winterthur - Letzte Ruhestätte, künstlerischer Schmuck. In: gregor-frehner.ch. Abgerufen am 15. März 2021.
- ↑ Sirius, 1967 von Robert Lienhard, Friedhof Rosenberg Winterthur. Felix Forrer GmbH, 10. Oktober 2015, abgerufen am 15. März 2021.
- ↑ Adrian Mebold: Bald keine Arbeit mehr für Bildhauer. In: Der Landbote. 20. November 2015, S. 4 (landbote.ch [abgerufen am 15. März 2021]).
- ↑ Werner Huber: Hinsehen beim Weggehen. In: Hochparterre. Nr. 3, 1. März 2004, S. 34 (e-periodica.ch [abgerufen am 15. März 2021]).
- ↑ Friedhof Rosenberg. In: Kunst im öffentlichen Raum. Edition Winterthur, abgerufen am 15. März 2021.
Koordinaten: 47° 30′ 51,2″ N, 8° 43′ 23,1″ O; CH1903: 696751 / 263400












.jpg)





.jpg)











