Haus der Kunst
.jpg)

Das Haus der Kunst ist ein Ausstellungsgebäude in der Münchener Prinzregentenstraße am südlichen Ende des Englischen Gartens. Es wurde von 1933 bis 1937 auf Betreiben Adolf Hitlers nach Plänen von Paul Ludwig Troost in einem monumentalen Neoklassizismus als Haus der Deutschen Kunst errichtet.
Das Haus, ohne eigene Sammlung, organisiert und zeigt Ausstellungen zeitgenössischer und moderner Kunst. Es gehört dem Freistaat Bayern und wird von der „Stiftung Haus der Kunst“ betrieben. Ihr gehören der Freistaat Bayern an, der Zusammenschluss der Münchner Künstlerverbände unter dem Namen „Künstlerverbund im Haus der Kunst“ und die Mäzenatenvereinigung „Gesellschaft der Freunde Haus der Kunst München e. V.“. Seit Februar 2020 hat Andrea Lissoni die künstlerische Leitung des Hauses inne.[2]
Architektur






Im Rahmen der Ausstattung Münchens als „Hauptstadt der Bewegung“ schuf Troost für das Haus der Deutschen Kunst und die beiden NSDAP-Bauten am Königsplatz die ersten Entwürfe von Monumentalbauten des nationalsozialistischen Regimes.
Baukörper und Fassaden
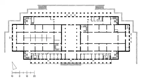
Der doppelt achsen-symmetrische Museumsbau im Stil eines reduzierten Neoklassizismus ist 175 m lang und im Mittelteil 50 m breit, nach Westen und Osten verschmälert er sich durch Gebäuderücksprünge.[3] Die Konstruktion beruht auf einem durchgehenden Raster, das aus Stahlträgern errichtet wurde. Die Träger sind mit Steinplatten verkleidet, so dass das Gebäude wie ein Steinbau wirkt. Der Haupteingang liegt in der Mitte der Südfassade, weitere Eingänge führen von der Mitte der Nordseite zur Nordgalerie und an den Schmalseiten in die Seitenflügel. Beiden Längsseiten ist jeweils ein 21-achsiger Portikus aus kolossalen, nicht kannelierten, die gesamte Gebäudehöhe einnehmenden Säulen vorgelagert, der jeweils durch Eckpfeiler abgeschlossen wird. Dem Portikus auf der südlichen Schauseite an der Prinzregentenstraße war ursprünglich über die volle Breite eine Freitreppe vorgelagert, sie wurde 1971 im Zuge von Straßenumgestaltungen in der Tiefe reduziert und bis auf den Mittelteil abgebrochen. Auf der Rückseite ist das Untergeschoss aufgrund eines Abfalls des Geländes ebenerdig zugänglich. Dort führt eine Treppenanlage auf das Niveau des Erdgeschosses. Durch die beiden Vorhallen und die Treppenanlagen ergibt sich eine Gesamttiefe von 75 m.
Der Sockelbereich ist mit Nagelfluh verkleidet, die Außenfassaden mit Kalkstein aus dem Donautal bei Kelheim. Die Treppen und äußeren Bodenflächen sind aus Granit.[4] Vor dem Gebäude steht seit den 1970ern eine Reihe Linden, die ein traditioneller Alleebaum in München sind.
Innere Einrichtung
Auch im Inneren ist das Haus der Kunst symmetrisch aufgebaut. Die ursprünglich als „Ehrenhalle“ bezeichnete Mittelhalle schließt sich mittig an den Eingang an und führt bis zur Nordgalerie durch. Links und rechts davon liegen je ein großer gestreckter Ausstellungssaal, umgeben von einer Folge kleinerer Räume. Diese Flächen, deren Fußboden in Solnhofener Platten besteht und die den zentralen Bauteil ausmachen, erreichen die volle Gebäudehöhe. Auf der Südseite liegen langgestreckt die Verwaltungsräume, im Norden das ehemalige Restaurant, heute Nordgalerie. Nur diese Gebäudeteile sind zweistöckig, im Obergeschoss liegen jeweils Ausstellungsräume. Die Säle in voller Höhe sowie die Ausstellungsräume im oberen Stockwerk waren durch Oberlichte beleuchtet.[5] Die gesamte Ausstellungsfläche beträgt 5040 m².[6] Die Ausstellungsräume im Erdgeschoss können beliebig abgeteilt oder zugeordnet werden, so dass mehrere Ausstellungen zur selben Zeit stattfinden können. Das Gebäude verfügte von Anfang an über mehrere Aufzüge, eine aufwändige Heizungs- und Klimaanlage und einen Luftschutzkeller,[7] der seit 2011 für Ausstellungen genutzt wird.
Im Inneren sind die Böden mit Solnhofener Plattenkalk belegt, Türstöcke und Sockelleisten bestehen aus Jura-Marmor. In der Mittelhalle sind Böden, Treppen und Verkleidungen aus Saalburger Marmor, Türen und Sockelleisten hier sind aus Tegernseer Marmor.[4]
Im Ostende der nördlichen Galerie liegt die Goldene Bar im ehemaligen Künstlerfestraum. Die Wandmalereien von Karl Heinz Dallinger wurden bis 2004 wieder freigelegt. Auf Blattgold-Hintergrund zeigen sie Landkarten und teils exotische Motive zur Herkunft von alkoholischen Getränken und Genussmitteln. Im Untergeschoss des Westflügels nutzt der Club P1 das ehemalige Bierstüberl.
Planung und Bau
Nachdem 1931 der Glaspalast im Alten Botanischen Garten abgebrannt war, gründeten die Münchner Künstlerverbände Münchner Künstlergenossenschaft, Münchener Secession und Münchener Neue Secession die „Ausstellungsleitung München“, um ein neues Ausstellungshaus für ihre jährlichen Kunstausstellungen und weitere Veranstaltungen zu errichten.[8] Sie beauftragten noch 1931 den Münchner Architekturprofessor Adolf Abel mit einem Neubau an selber Stelle. Nachdem Adolf Hitler im Januar 1933 Reichskanzler wurde, verwarf er unmittelbar vor dem geplanten Baubeginn im Frühjahr 1933 das Projekt. Den Auftrag für eine neue Planung erteilte er persönlich an Paul Ludwig Troost,[9] der für Hitler schon die NSDAP-Zentrale Braunes Haus umgebaut hatte. Der Bauplatz im alten Botanischen Garten war für Hitlers monumentale Pläne nicht ausreichend. Er ordnete als neuen Standort den südlichen Eingang zum Englischen Garten an.
Ursprünglich wollte Hitler dort ein „Parteiforum“ errichten, das aus dem Haus der Deutschen Kunst, einem Museum für Zeitgeschichte und einem Haus des Partei-Statthalters bestehen sollte, die um einen repräsentativen Platz angeordnet wären. Troost lehnte diese Pläne ab, weil ihr Flächenbedarf zu stark in den Englischen Garten eingreifen würde. An diesem frühen Punkt seiner Karriere ließ Hitler sich noch von fachlichen Argumenten überzeugen und begrenzte das Projekt an dieser Stelle auf das Haus der Deutschen Kunst.[10] In der NS-Kulturpolitik war das Gebäude als der maßgebliche Ausstellungsbau des Deutschen Reiches vorgesehen. Die ab 1936 für Berlin geplante Kunsthalle sollte ausdrücklich nicht in Konkurrenz zum Haus der Deutschen Kunst stehen. Damit sollte auch die Rolle Münchens als führende Kunststadt Deutschlands wiederhergestellt werden, die sich im NS-Ehrentitel Hauptstadt der deutschen Kunst für München niederschlug.[11] Die Planung wurde erweitert zu einer Neugestaltung des Umfelds. Die ursprünglich „unter malerischen Gesichtspunkten angelegte“[12] Prinzregentenstraße wurde zur Aufmarschstraße, die Bebauung auf der Südseite der Von-der-Tann-Straße am Finanzgarten wurde abgerissen und auf der Nordseite musste die Jugendstil-Fassade des Atelier Elvira zwangsweise vereinfacht werden. Auch die Von-der-Tann-Straße wurde verbreitert und als Aufmarschweg ausgebaut.[13]
Zur Finanzierung organisierte der NSDAP-Gauleiter Adolf Wagner eine Initiative bayerischer und deutscher Industrieller mit der Aufforderung, Hitler das Gebäude zu schenken. Die ersten Zusagen konnte er Hitler zu dessen Geburtstag am 20. April 1933 überreichen. Als Träger des Hauses wurde eine Anstalt des Öffentlichen Rechts gegründet. Die konstituierende Sitzung fand im Juni 1933 statt, die Satzung der Anstalt Haus der Deutschen Kunst (Neuer Glaspalast) wurde am 14. Juli 1933 formal erlassen.[14]
Die 18 Grundsteinstifter waren, laut einer hierzu nach Eröffnung angebrachten Erinnerungstafel: Hermann Schmitz (I.G. Farben), August von Finck (Merck, Fink & Co), Robert Bosch (Boschwerke), Friedrich Flick (Mitteldeutsche Stahlwerke), Adolf Haeuser (I.G. Farben), August Diehn (Deutsches Kalisyndikat), Theodor Feise (Kaliwerke Friedrichshall), Fritz Rechberg (Familienkonzern der Textilbranche und vielfacher Aufsichtsrat, z. B. Commerzbank), Jacob Hasslacher (Vereinigte Stahlwerke), Paul Müller (Dynamit Nobel AG), Gustav Krupp von Bohlen und Halbach (Kruppwerke), Wilhelm von Opel (Adam Opel AG), Ludwig Roselius (Kaffee Handels Aktiengesellschaft), August Rosterg (Wintershall AG), Willy Sachs (Fichtel & Sachs), Karl Friedrich von Siemens (Siemens AG), Ludwig Schuon (BASF), Philipp Reemtsma (Reemtsma Cigarettenfabriken).[15] Zusammen brachten sie drei der ursprünglich vorgesehenen fünf Millionen Reichsmark auf,[14] weitere 400.000 Mark brachte die Stadt München ein. Bauindustrie und Reichsbahn erbrachten Sachleistungen als Spenden.[16] Eine Vielzahl kleiner und mittlerer Geld- und Sachspenden erhöhten die Gesamtsumme der von Unterstützern aufgebrachten Gelder auf knapp über 10 Millionen.[17] Da die Baukosten am Ende auf 12 Millionen Mark stiegen, reichten die Spenden nicht aus. Deshalb wurde ein zinsloses Darlehen der Deutschen Gesellschaft für Öffentliche Arbeiten eingeholt, obwohl deren Bedingungen nicht eingehalten wurden.[11]
Die Grundsteinlegung des neuen Hauses der Deutschen Kunst erfolgte am 15. Oktober 1933 durch Hitler.[7] Nachdem Troost schon 1934 gestorben war, wurde der Bau von seinem Mitarbeiter Leonhard Gall unter Beteiligung der Witwe Gerdy Troost fortgeführt.
1938 wünschte Hitler, dass gegenüber dem Haus der Deutschen Kunst ein Haus der Deutschen Architektur errichtet werden sollte. Darin wären Architektur und Kunstgewerbe ausgestellt worden. Das Gebäude hätte eine vereinfachte Variante des Hauses der Deutschen Kunst ohne Freitreppe werden sollen, und die Kolonnaden wären in die Gebäudeflucht integriert worden. Das Projekt kam nicht über Vorentwürfe hinaus.[18]
Architekturkritik
Die monumentale Ausstellungshalle ist ein Spätwerk des Architekten Paul Ludwig Troost und gehört zusammen mit den etwa gleichzeitigen Parteibauten Troosts am Königsplatz zu den ersten großen Bauprojekten des Nationalsozialismus. Es handelt sich nicht um einen spezifischen, nationalsozialistischen Baustil, sondern Troost hat hier die Formensprache des Neoklassizismus aus seiner Hauptschaffenszeit vor dem Ersten Weltkrieg ins Extreme vereinfacht, Details reduziert und ins Monumentale vergrößert.[3] Nach eigenen Angaben wollte Troost im Gegensatz zur „modernen Sachlichkeit“ ein „aus der Seele des Volkes empfundenes“ Gebäude errichten, „edle Proportionen und gediegenes Material“ sollten dem Bau „den Charakter eines Tempels der Kunst geben“.[19]
Troost und Hitler erhoben immer wieder den Anspruch, einen „Tempel“ oder ein „Heiligtum“ der Kunst zu schaffen. Die architektonischen Elemente Portikus und Kolonnade wurden daher aus der antiken Architektur entlehnt, sie bleiben aber Kulisse.[11] Der nationalsozialistische Charakter und der Eindruck des Gebäudes als „monströs“ ergibt sich nicht aus einzelnen architektonischen Elementen, sondern aus deren gebündelter Anordnung.[20] Als Vorbild Troosts gilt das Alte Museum von Karl Friedrich Schinkel auf der Berliner Museumsinsel. Der Münchner Bau wird aber als Vereinfachung des Vorbilds statt einer künstlerischen Auseinandersetzung damit beschrieben. Die übermäßige Betonung der Waagrechten wird entgegen der antiken oder der klassizistischen Architektur nicht gegen kontrastierende Vertikalen ausbalanciert, sondern bleibt einseitig.[11][21] Daher bleibe ein „aufdringlicher, Überwältigung anstrebender Charakter“ des Bauwerks.[3] Das Dehio-Handbuch beschreibt die Wirkung: „In seiner formalen Härte, schmucklosen Monumentalität, der handwerklich-materiellen Solidität, der gleichförmigen Reihung von Baugliedern und seiner Bedeutung im politischen Leben“ bildet das Haus der Kunst „ein programmatisches Beispiel für die Selbstdarstellung des Hitlerregimes in der Architektur.“[12]
International wurde das Gebäude zur Bauzeit hoch geschätzt. Bei der Weltfachausstellung Paris 1937 war ein Modell des Hauses der Deutschen Kunst ein zentrales Ausstellungsstück des Deutschen Hauses. Gerdy Troost erhielt den Großen Preis der Architektur-Jury.[22]
Dass Christoph Vitali, Leiter des Hauses der Kunst zwischen 1993 und 2003 das Gebäude als „wunderbare Museumsarchitektur“ bezeichnete und die architektonische Qualität der Ausstellungsräume, die Schönheit und Ausgewogenheit von Proportionen und Raumfolge lobte,[23] spricht einerseits für die Qualität der monumentalen Räume mit optimaler Beleuchtung. Andererseits wird es von Architektur-Historiker Winfried Nerdinger als Vernachlässigung des ideologischen und systematischen Rahmens des NS-Baus interpretiert.[24] Vitali rechtfertigte seine Aussage im Rückblick damit, dass die Mauern keine Schuld tragen. Schuld hätten die auf sich geladen, die die Arbeit von 1937 bis 1944 in diesem Haus zu verantworten hatten.[23]
Ausstellungsgeschichte

Im Nationalsozialismus
Das Gebäude wurde am 18. Juli 1937 mit der ersten „Großen Deutschen Kunstausstellung“ zum zweiten „Tag der deutschen Kunst“ mit einem monumentalen Festzug unter dem Motto „2000 Jahre deutsche Kultur“ eröffnet. In seiner Rede sprach Hitler kaum über die Kunst, die das Haus zeigen solle, sondern vielmehr über jene Kunst, die er ablehnte und gegen die er „einen unerbittlichen Säuberungskrieg“ führen wolle.[25] Erster Direktor war Karl Kolb. Am folgenden Tag begann im Galeriegebäude am Hofgarten (das heutige Deutsche Theatermuseum) die Ausstellung Entartete Kunst. Beide Ausstellungen wurden durch den Münchner Akademie-Professor Adolf Ziegler koordiniert. Dazu hatte er Positionen sowohl in der Reichskulturkammer und in Joseph Goebbels Reichsministerium für Volksaufklärung und Propaganda. Bis 1939 fand jährlich der Tag der Deutschen Kunst statt, bei dem Adolf Hitler als Redner auftrat. Die als jährliche Verkaufsausstellung konzipierte „Große Deutsche Kunstausstellung“ fand bis 1944 statt und zog während ihrer jeweils viele Monate langen Dauer mehrere hunderttausend Besucher an, weil ihr Besuch zum Programm der nationalsozialistischen Massenorganisationen gehörte.[26]
Trotz des Anspruches, ein Tempel der „deutschen Kunst“, somit der nationalsozialistischen Kunst zu sein, war das Konzept von Beginn kommerziell angelegt: So gab es eine umfangreiche Gastronomie. Sämtliche Ausstellungen dienten hauptsächlich dem Verkauf, wobei Hitler als Hauptkäufer auftrat und sich als Mäzen inszenierte.
Besatzungszeit

Den Zweiten Weltkrieg überstand das Gebäude fast unbeschädigt. Während der amerikanischen Besatzung wurde das Gebäude als Offizierskasino mit Unterhaltungsprogramm genutzt. Einer Anekdote nach wurde dabei im Gebäude ein Basketballfeld angelegt, so dass bei der Wiedereröffnung als Museum noch Markierungen am Fußboden sichtbar waren.[27] Im Sommer 1946 beherbergte das Haus als erste Ausstellung nach dem Krieg eine Sonderschau einzelner Werke aus der Alten Pinakothek und die Internationale Jugendbuchausstellung. 1947 fand die Schau Französische Malerei vom Impressionismus bis zur Gegenwart auf Betreiben der amerikanischen Militärregierung mit Unterstützung der französischen Direction de l’Education Publique statt und zeigte erstmals auf deutschem Boden wieder internationale Kunst der Moderne.
Von 1946 bis Ende 1948 fand in einem Teil des Ostflügels unter dem Titel Bayerische Exportschau eine permanente Gewerbeausstellung statt, in der bayerische Unternehmen ihre Produkte vorwiegend für amerikanische Importunternehmen präsentierten. Besonders begehrt waren Kunstgewerbe und Trachtenmode.[28]
Ausstellungsleitung Haus der Kunst

Die US-Militärregierung wollte die Verantwortung für das Gebäude in die Hände der Künstlerverbände geben. 1948 gründeten daher die zum Teil wieder entstandenen, zum Teil neu gegründeten Künstlervereine Münchener Secession, Neue Gruppe und Neue Münchener Künstlergenossenschaft einen Verein „Ausstellungsleitung Haus der Kunst München e. V.“ als Träger des Ausstellungsbetriebs.[8] Das Gebäude selbst ging als Sondervermögen an den Freistaat Bayern.[29] Dabei wurde das Gebäude unter verschiedenen Nutzern aufgeteilt. Noch bis 1955 behielt die US-Armee die Mittelhalle, das Restaurant und einige angrenzende Räume für ihren Offiziersclub.
Der Westflügel des Gebäudes wurde von der Bayerischen Staatsgemäldesammlung genutzt. Während des Wiederaufbaus der Alten Pinakothek wurden bis 1958 ausgewählte Werke aus deren Bestand gezeigt, anschließend bis 1981 solche der Neuen Pinakothek und bis 2000 zeigte der Westflügel Stücke der Staatsgalerie Moderne Kunst, bis diese in die Pinakothek der Moderne umzog. Von 2001 bis 2007 nutzte das „Theater im Haus der Kunst“ des Bayerischen Staatsschauspiels den Westflügel.[30]
Als 1955 die US-Armee endgültig aus dem Haus der Kunst auszog, wurden zwei gehobene Restaurants als Mieter in das Gebäude aufgenommen. Ein Raum im Ostflügel ging an das Restaurant Alecco. 1984 wurde daraus das P1 als Diskothek unter der Leitung von Michael Käfer.[31] Das Untergeschoss unter dem Westflügel beherbergte das ungarische Restaurant Piroschka. 1994 schloss es und das P1 zog in seine Räume um, die es bis heute nutzt.[32] Der Ostflügel stand seitdem vollständig für Ausstellungen zur Verfügung. Außerdem wurden in die Mittelhalle Galerien und ein Kassenbereich so eingebaut, dass die monumentale Wirkung des Raumes gemindert wurde.
Ludwig Grote organisierte 1949 die Ausstellung Der Blaue Reiter mit im Dritten Reich verfemten Künstlern, die in München und Umgebung vor und nach dem Ersten Weltkrieg gearbeitet hatten.[33] Die Architekturhistorikerin Irene Meissner stellte dazu fest, dass das Haus der Kunst „durch Ausstellungen der ehemals verfehmten modernen Kunst dekontaminiert“ worden sei.[34] Die Ausstellungsleitung organisierte ab 1949 die jährliche Große Kunstausstellung München. Auch der traditionelle Faschingsball der Künstlerverbände als gesellschaftliche Veranstaltung fand nun im Haus der Kunst statt. Der frühere Ort der Feiern, das Künstlerhaus am Lenbachplatz, war im Krieg weitgehend zerstört worden und der Ball war wichtig, um die Ausstellungstätigkeit zu finanzieren.[35] 1950 wurde der bisherige deutsche Betriebsleiter des Offiziersclubs, Peter Ade, zum Geschäftsführer der Ausstellungsleitung und zum Direktor des Hauses der Kunst. Er organisierte Ausstellungen mit einem Schwerpunkt auf die Klassische Moderne, aber auch kulturhistorische Themen wie „Kultur und Mode“ (1950) fanden Platz.
Geschäftsführer Ade organisierte ab 1955 nach amerikanischem Vorbild einen Mäzenatenkreis des Hauses der Kunst aus Industrievertretern. Schon 1958 spendeten diese jährlich Beiträge von etwa 500.000 Mark. Die Hälfte der Summe diente zum Ankauf von Werken Münchner Künstler, so dass der Verein eine umfangreiche Kunstsammlung aufbaute.[29] Dass das Haus von den Künstlervereinen getragen wurde, trug ihm hervorragende Kontakte zu Museen im In- und Ausland ein und ermöglichte viele Leihgaben.[36] Das Haus der Kunst arbeitete oft mit anderen Museen zusammen und organisierte Wanderausstellungen oder beteiligte sich an ihnen. Die Picasso-Ausstellung von 1955 beruhte auf einem Bilderbestand, der vorher schon in Paris gezeigt worden war, wurde aber für München um 37 Werke erweitert.[37] In dieser Form ging sie anschließend nach Köln und Hamburg und war das letzte Mal, dass das Bild Guernica in Europa ausgeliehen wurde.[38] 1956 folgten weitere Publikumserfolge mit Ausstellungen von Paul Cézanne und Vincent van Gogh.[26] Das Haus der Kunst sah seine Aufgabe aber immer auch darin, lebende und in der Kunstwelt etablierte, aber noch nicht international prominente Künstler zu zeigen, wie Henry Moore 1960 oder Fritz Wotruba 1967. Und es organisierte Schauen zur Nationalkunst kleinerer oder weniger bekannter Länder: Brasilianische Kunst 1959 oder Kunst aus den Benelux-Ländern 1968.[26]
Von 1956 bis 1997 fand die Deutsche Kunst- und Antiquitätenmesse im Haus der Kunst statt. Organisiert vom Bundesverband des deutschen Kunsthandels war sie die erste deutsche Verkaufsschau für den Kunsthandel.[39]
Nach einem massiven Streit mit der Ausstellungsleitung um den Zugang zum Haus der Kunst zeigt seit 1961 auch die Freie Münchner und Deutsche Künstlerschaft in der Ausstellungsreihe „Herbstsalon“, später „Kunstsalon“ und „Neuer Kunstsalon“ Werke ihrer Mitglieder in der nördlichen Galerie des Hauses.[40] Im Rahmen des Kulturprogramms der Olympischen Sommerspiele 1972 fand im Haus der Kunst eine Sonderausstellung Weltkulturen und moderne Kunst statt. Dazu errichtete Architekt Paolo Nestler einen zweigeschossigen Anbau über die volle Nordseite. Die Stahlrohrkonstruktion mit flächiger Verglasung griff den Rhythmus der Säulen auf. Zwei Treppentürme an den Außenseiten und ein Klangkörper im Westen waren mit weißen Platten verkleidet. Der Anbau wurde nach den Olympischen Spielen wieder abgerissen.[4]
Das Haus der Kunst organisierte unter Ade drei große Schauen mit ägyptischen Werken: 1976 Nofretete – Echnaton, 1979 Götter und Pharaonen und 1980 die Schau „Tutanchamun“, für die die ägyptische Antikenbehörde einen der Sarkophage, die berühmte Kopfmaske und weitere hochkarätige Stücke aus dem Grab Tutanchamuns zum letzten Mal verlieh.[41] Sie war der größte Publikumserfolg in der Geschichte des Hauses.[26] 1982 musste Peter Ade das Haus der Kunst verlassen. Der bayerische Rechnungshof sah nach 37 Jahren in der Vielzahl seiner Ämter Interessenkonflikte.[42] Er ging zur Hypo-Kulturstiftung und eröffnete 1983 für diese die Kunsthalle der Hypo-Kulturstiftung. Nachfolger Ades wurden Hermann Kern (1982–1985) und Magdalena Huber-Ruppel (1985–1990). 1991 schloss das Haus für eine Generalsanierung.[43]
Stiftung Haus der Kunst
Ende der 1980er Jahre hatte das Haus der Kunst massive Finanzprobleme. Unter Ade hatte sich der Betrieb des Hauses der Kunst vollständig selbst getragen.[44] Zu den Problemen trugen verschiedene Ursachen bei. Ades Nachfolger konnten keine Ausstellungen mit gleichem Publikumszustrom organisieren und so neben weniger direkten Einnahmen auch weniger Spenden einwerben. Andererseits stiegen alle Kosten erheblich. Kunst und Kultur wurden zunehmend als Dienstleistungen und Geschäft angesehen, auch Versicherungsprämien und Kosten für Sicherheitsmaßnahmen stiegen erheblich. Der Freistaat Bayern trat deshalb auch in den Betrieb des Hauses ein.[29] Seit 1992 wird das Haus der Kunst durch die „Stiftung Haus der Kunst München, gemeinnützige Betriebsgesellschaft mbH“ betrieben. In ihr schlossen sich der Freistaat Bayern und die Schörghuber Unternehmensgruppe als Hauptsponsor zusammen, weitere Gesellschafter waren die Mäzenatenvereinigung „Gesellschaft der Freunde Haus der Kunst München e. V.“ und die Ausstellungsleitung Große Kunstausstellung.[45] Die Stiftungsgründung geht auf die Zusage der Familie Schörghuber zurück, das Haus der Kunst für mindestens zehn Jahre mit jeweils einer Million Mark (ab 2002 500.000 Euro) zu fördern.
Erster Direktor der neuen Organisation wurde 1993 Christoph Vitali. Er eröffnete seine Amtszeit mit der Ausstellung elan vital. Das Auge des Eros, in der er Klassische Moderne thematisch mit zeitgenössischer Kunst zusammenbrachte. Dieser epochenübergreifende Ansatz blieb sein Schwerpunkt auch bei den Schauen Ernste Spiele. Der Geist der Romantik in der deutschen Kunst und Die Nacht. Unter Vitali wurde das Haus der Kunst 1995 auch einer von drei europäischen Partnern der Wanderausstellung, die zum ersten und einzigen Mal Werke des Impressionismus der Barnes Foundation aus Philadelphia außerhalb ihrer eigenen Räume zeigte.[46]
![Auf dem Dach des Hauses steht zeitweilig das große blaue Logo „Allianz [Logo] Arena“, das ansonsten am Münchner Fußballstadion hängt](./Hausdkunst.jpg)
Die Amtszeit von Chris Dercon als nächstem Leiter des Hauses begann mit dem seit langem geplanten „kritischen Rückbau“ der letzten Einbauten aus den 1950er und 1960er Jahren. Seitdem ist die Architektur des Hauses der Kunst wieder im Originalzustand und die Mittelhalle kann wieder in ihrer ursprünglichen Wirkung erlebt werden.[47]
Unter Dercons Leitung erweiterte das Haus der Kunst ab 2003 seinen Fokus und zeigte Architektur, Film und Fotografie, Mode und Design. Außerdem thematisierte Dercon die Vergangenheit des Gebäudes und die Rolle der Kunst im „Dritten Reich“. Große Publikumserfolge wurden die Ausstellungen mit Werken von Andreas Gursky und Ai Weiwei. Während der Fußball-Weltmeisterschaft 2006 zierte das Gebäude der Schriftzug „Allianz Arena“. Da das Stadion keine Sponsorennamen tragen durfte, wurde der Schriftzug von dort vorübergehend abmontiert.[48] Ebenfalls 2006 versteigerte der „Freundeskreis Haus der Kunst“ seine seit 1958 aufgebaute Kunstsammlung für insgesamt 5,2 Millionen Euro, die zweckgebunden zur Kunstförderung angelegt wurden.[29] Im Zuge der Finanzkrise ging davon allerdings rund eine Million verloren.[49]
Von 2010 bis 2012 fand mit der Highlights – Internationale Kunstmesse München wieder eine Kunsthandelsmesse im Haus der Kunst statt.[50]
2011 begann eine Kooperation des Hauses der Kunst mit der Sammlung Goetz. Im ehemaligen Luftschutzbunker des Hauses der Kunst werden Teile der Videokunst-Sammlung von Ingvild Goetz gezeigt. Von Oktober 2011 bis Juni 2018 leitete Okwui Enwezor das Haus der Kunst.[51] Enwezor baute Verbindungen zu anderen Kultureinrichtungen in München auf und kooperierte mit der Bayerischen Staatsoper und den Münchner Kammerspielen. In der Auswahl der Ausstellungen und Künstler setzte er auf zeitgenössische Kunst. In den so genannten Kapsel-Ausstellungen gab er jeweils zwei jungen Künstlern Raum, die zumeist noch keine Ausstellungen in Europa hatten und deren Werk oft auch noch keine ganze Ausstellungshalle gefüllt hätte.
2014 eröffnete eine Dauerausstellung zur Geschichte des Hauses in der Archiv Galerie. Sie beruht auf der seit 2004 erfolgten systematischen Auswertung des historischen Archivs des Hauses.[52] In Filmdokumenten, Plänen und Objekten aus der Anfangszeit des Hauses der Deutschen Kunst und Nachkriegszeit stellt sich das Ausstellungshaus seiner Vergangenheit.[52]
Verschiedene Probleme in der Organisation des Hauses kamen Mitte 2014 zusammen. Die Familie Schörghuber gab bekannt, dass sie aus der Kunstförderung und auch dem Haus der Kunst aussteigen und künftig nur noch karitative Zwecke unterstützen würde. Aus dem Mäzenatenverein „Gesellschaft der Freunde Haus der Kunst“ traten neben der Familie Schörghuber mehrere Unternehmenssponsoren aus. In der Folge gab es Richtungsstreitigkeiten,[29] die im November 2014 nach dem Rücktritt von Andreas Langenscheidt vom Vorsitz der Gesellschaft der Freunde durch die Wahl des ehemaligen bayerischen Kulturministers Wolfgang Heubisch zu seinem Nachfolger gelöst werden konnten. Die Gesellschaft der Freunde kann sich durch eine Satzungsänderung auch an den Kosten der zunächst für 2016 geplanten Generalsanierung des Gebäudes durch den Londoner Architekten David Chipperfield beteiligen. Für das Projekt stellt der Freistaat Bayern 58 Millionen Euro bereit.[6] Chipperfield will das Museum in den Originalzustand zurückversetzen, transparenter und auch von außen sichtbarer machen. So soll im nördlichen Teil zum Englischen Garten hin eine Zone der Erholung mit einer Lounge-ähnlichen Atmosphäre entstehen. Den Westflügel will er zu einem multifunktionalen Konferenz- und Eventzentrum umgestalten.[53] Chipperfields Pläne, den Bau in den Originalzustand aus der Nazi-Zeit zurückzuversetzen, sind umstritten. „Ein solches Gebäude darf aber nicht unkommentiert bleiben“, sagt der Historiker Magnus Brechtken.[54] Architekt Stephan Braunfels unterstützt die Wiederherstellung und lobte die Qualität des Troost-Baus.[55]
2015 wurde Haus-der-Kunst-Direktor Okwui Enwezor Leiter der Biennale di Venezia. 2016 konnte mit der Alexander Tutsek-Stiftung ein neuer Hauptsponsor gefunden werden, der das Haus der Kunst mindestens drei Jahre lang[56] mit jeweils 500.000 Euro unterstützen wird;[57] 2021 erfolgte eine Verlängerung um weitere drei Jahre.[58]
Der bisherige Verein Ausstellungsleitung, der sich 2014 in Künstlerverbund im Haus der Kunst umbenannt hat, bringt eigene Probleme in den Betrieb des Hauses ein. Seit 2011 findet seine große Kunstausstellung der Münchner Künstler nur noch alle zwei Jahre statt. Damit entfielen in den Jahren ohne Ausstellung aber öffentliche Fördermittel, so dass der Verein nach dem Jahr 2012 seine Finanzen weitgehend aufgebraucht hatte. Im nächsten, eigentlich ausstellungsfreien Zwischenjahr 2014 fand deshalb in der Nordgalerie eine nur siebentägige Schau mit anschließender Versteigerung statt.[59]

Im Sommer 2017 wurden Finanzprobleme des Hauses sichtbar. Zum Jahresanfang 2018 wurde deshalb ein kaufmännischer Direktor dem künstlerischen Direktor Enwezor gleichgestellt. Er soll Probleme mit Verwaltung und Personal bearbeiten, die über zwanzig Jahre nur ungenügend betrachtet wurden.[60] Die Stelle wurde vorübergehend mit Stefan Gros besetzt, ab April 2018 hatte Bernhard Spies die kaufmännische Verantwortung. Nach dem Rücktritt von Enwezor im Juni 2018 wegen seiner schweren Erkrankung übernahm Hauptkurator Ulrich Wilmes amtierend die künstlerische Leitung;[61] er verabschiedete sich jedoch bereits im November 2018 in den Ruhestand. Seitdem war Spies der alleinige Leiter des Hauses.[62] Aufgrund der finanziellen Probleme sah man sich gezwungen, eine für November 2018 geplante Ausstellung der Video- und Performancekünstlerin Joan Jonas abzusagen,[63] die dann erst 2022 nachgeholt wurde. Ebenfalls im November 2018 wurde ein Expertenrat gebildet, der nach einem neuen Direktor suchen sollte. Im Februar 2020 kam der italienische Kurator Andrea Lissoni von der Londoner Tate Modern Gallery und wurde künstlerischer Leiter.[2] Gleichzeitig übernahm Wolfgang Orthmayr die kaufmännische Leitung.[64] Er ging 2023 in Ruhestand, woraufhin Bianca Knall seit Februar 2024 kaufmännische Leitung des Hauses ist.[65]
Literatur
- Klaus-Peter Schuster: Nationalsozialismus und „Entartete Kunst“. Prestel 1988, ISBN 3-7913-0843-2.
- Sabine Brantl: Haus der Kunst 1937–1997 – Eine historische Dokumentation. Haus der Kunst, 1997.
- Peter Ade: Picasso, Kokoschka und all die anderen … Meine abenteuerlichen Jahre für die Kunst. Nymphenburger, München 2001, ISBN 3-485-00872-9 (Autor war Direktor, 1947–1983).
- Sabine Brantl: Haus der Kunst, München. Ein Ort und seine Geschichte im Nationalsozialismus. Edition Monacensia, Allitera, München 2007, ISBN 978-3-86520-242-0.
- Heinrich Habel, Johannes Hallinger, Timm Weski: Landeshauptstadt München – Mitte (= Bayerisches Landesamt für Denkmalpflege [Hrsg.]: Denkmäler in Bayern. Band I.2/1). Karl M. Lipp Verlag, München 2009, ISBN 978-3-87490-586-2, S. 821–822.
Weblinks
- hausderkunst.de
- Sabine Brantl: Haus der Kunst in: Historisches Lexikon Bayerns (mit vollständiger Liste aller Ausstellungen bis 2020).
- Tobias Hellmann, hausderdeutschenkunst.de: Das Haus der Deutschen Kunst 1937–1945, umfassende Darstellung der ersten neun Jahre, insbesondere der „Großen Deutschen Kunstausstellung“
- Literatur von und über Haus der Kunst im Katalog der Deutschen Nationalbibliothek
Einzelnachweise
- ↑ Re-Installation: Mel Bochner “The Joys of Yiddish”. Haus der Kunst, 9. Februar 2021, abgerufen am 15. November 2024.
- ↑ a b Catrin Lorch: Haus der Kunst – Andrea Lissoni wird neuer Direktor. Abgerufen am 22. Oktober 2019.
- ↑ a b c Habel, Hallinger, Weski 2009, S. 821 f.
- ↑ a b c Bayerischer Architekten- und Ingenieur-Verband: München und seine Bauten nach 1912. Bruckmann 1984, ISBN 3-7654-1915-X, S. 146–147.
- ↑ Josef Hugo Biller, Hans-Peter Rasp: München Kunst und Kultur. Stadtführer und Handbuch. 15. Auflage. Ludwig, München 2003, ISBN 3-7787-5125-5, S. 333.
- ↑ a b Viel Lärm um nichts, Süddeutsche Zeitung, 15. November 2014, S. R6
- ↑ a b Tobias Hellmann: Haus der deutschen Kunst. 1937–1945 – eine Dokumentation. Geschichte des Hauses. Abgerufen am 28. August 2012.
- ↑ a b Ausstellungsleitung, Haus der Kunst
- ↑ Karl Arndt: Münchener Architekturszene 1933/34 als ästhetisch-politisches Konfliktfeld. In: Martin Broszat, Elke Fröhlich, Anton Grossmann (Hrsg.): Bayern in der NS-Zeit. Band III: Herrschaft und Gesellschaft im Konflikt. Oldenbourg, München 1981, ISBN 3-486-42381-9, S. 443–484.
- ↑ Timo Nüsslein: Hitlers erste Bauvorhaben in München. In: Oberbayerisches Archiv. Band 137 (2013), S. 290–301, 293.
- ↑ a b c d Karl Arndt: Das ›Haus der Deutschen Kunst‹ – ein Symbol der neuen Machtverhältnisse. In: Klaus Peter Schuster: Nationalsozialismus und „Entartete Kunst“. Prestel 1988, ISBN 3-7913-0843-2, S. 61–82.
- ↑ a b Georg Dehio: Handbuch der Deutschen Kunstdenkmäler – Bayern IV: München und Oberbayern. Deutscher Kunstverlag 2006, ISBN 3-422-03115-4, S. 868.
- ↑ Heinrich Habel, Johannes Hallinger, Timm Weski: Landeshauptstadt München – Mitte (= Bayerisches Landesamt für Denkmalpflege [Hrsg.]: Denkmäler in Bayern. Band I.2/1). Karl M. Lipp Verlag, München 2009, ISBN 978-3-87490-586-2, S. 1193 f.
- ↑ a b Hans Joachim Hecker: Missbrauchtes Mäzenatentum? Die Gründung der Anstalt des öffentlichen Rechts Haus der Deutschen Kunst (Neuer Glaspalast) im Juni 1933. In: Klaus Peter Schuster: Nationalsozialismus und „Entartete Kunst“. Prestel 1988, ISBN 3-7913-0843-2, S. 56–60.
- ↑ Karl Heinz Roth (Bearb.): OMGUS. Ermittlungen gegen die I.G. Farben AG. Greno-Verlag, Nördlingen 1986, S. 163.
- ↑ Winfried Nerdinger: Bauen im Nationalsozialismus – Bayern 1933–1945. Architekturmuseum der TU-München 1993, ISBN 3-7814-0360-2, S. 350.
- ↑ Brantl 2007, S. 58.
- ↑ Winfried Nerdinger: Bauen im Nationalsozialismus – Bayern 1933–1945. Architekturmuseum der TU-München 1993, ISBN 3-7814-0360-2, S. 350 f.
- ↑ Petra Raschke: Spektakel, Siedlungen und Straßen. 100 Jahre BSZ: Die Bauberichterstattung in der Bayerischen Staatszeitung von 1933 bis 1934. Verlag Bayerische Staatszeitung, 25. Mai 2012, abgerufen am 28. August 2012.
- ↑ Winfried Nerdinger: Bauen im Nationalsozialismus – Bayern 1933–1945. Architekturmuseum der TU-München 1993, ISBN 3-7814-0360-2, S. 12 unter Verwendung eines Zitates von Wolfgang Fritz Haug.
- ↑ Hans-Peter Rasp: Eine Stadt für tausend Jahre: München, Bauten und Projekte für die Hauptstadt der Bewegung. Süddeutscher Verlag 1981, ISBN 3-7991-6124-4, S. 28.
- ↑ Histories in Conflict ( vom 4. März 2016 im Internet Archive): Haus der Kunst and the Ideological Uses of Art, 1937–1955 (June 6, 2012 – January 13, 2013)
- ↑ a b Christoph Vitali in: Sabine Brantl: Haus der Kunst 1937–1997 – Eine historische Dokumentation. Haus der Kunst, 1997, S. 5.
- ↑ Winfried Nerdinger: Bauen im Nationalsozialismus – Bayern 1933–1945. Architekturmuseum der TU-München 1993, ISBN 3-7814-0360-2, S. 10 f.
- ↑ Wilibald Sauerländer: 75 Jahre „Haus der Kunst“ in München. Süddeutsche Zeitung, 18. Juli 2012.
- ↑ a b c d Brantl 1997, S. 86–92.
- ↑ Ade 2001, S. 30.
- ↑ Brantl 2007, S. 116.
- ↑ a b c d e Christoph Wiedemann: Haus der Kunst in München – Streit unter Freunden. 13. Juli 2014, abgerufen am 15. November 2024.
- ↑ Haus der Kunst - FAQs. 12. Januar 2014, archiviert vom (nicht mehr online verfügbar); abgerufen am 15. November 2024.
- ↑ 30 Jahre P1: Partys und Promis. 18. März 2014, abgerufen am 15. November 2024.
- ↑ P1: So waren die Jahre 1994 bis 2003. 19. März 2014, abgerufen am 15. November 2024.
- ↑ Haus der Kunst - Nach dem Krieg. 9. Februar 2014, archiviert vom (nicht mehr online verfügbar); abgerufen am 15. November 2024.
- ↑ Denkmalschutz in München. (PDF) Abgerufen am 15. November 2024.
- ↑ Karl Stankiewitz: Die Befreite Muse – Münchner Kunstszenen ab 1945. Volk Verlag 2013, ISBN 978-3-86222-011-3, S. 25.
- ↑ Ade 2001, S. 61.
- ↑ Karl Stankiewitz: Die Befreite Muse – Münchner Kunstszenen ab 1945. Volk Verlag 2013, ISBN 978-3-86222-011-3, S. 40 f.
- ↑ Ade 2011, S. 74.
- ↑ Konrad O. Bernheimer: Narwalzahn und Alte Meister. Aus dem Leben einer Kunsthändler-Dynastie. Hoffmann und Campe, Hamburg 2013, ISBN 978-3-455-50280-0, S. 333 f
- ↑ Karl Stankiewitz: Die Befreite Muse – Münchner Kunstszenen ab 1945. Volk Verlag 2013, ISBN 978-3-86222-011-3, S. 56, 60.
- ↑ Haus der Kunst: Einzug der Moderne
- ↑ Ade 2001, 345 f.
- ↑ Die Chefs, Süddeutsche Zeitung, 12. Juli 2014, S. R5
- ↑ Ade 2001, S. 312 f.
- ↑ Haus der Kunst - Stiftung Haus der Kunst GmbH. 9. Februar 2014, archiviert vom (nicht mehr online verfügbar); abgerufen am 15. November 2024.
- ↑ Great French Paintings from the Barnes Foundation. ( vom 6. Oktober 2014 im Internet Archive) Website der Barnes Foundation
- ↑ Brantl 2007, S. 121.
- ↑ Schriftzug „Allianz Arena“ im "Feriendomizil" in der Prinzregentenstraße. Archiviert vom (nicht mehr online verfügbar); abgerufen am 10. Oktober 2023.
- ↑ Christoph Wiedemann: Querelen um Museum – Haus der Kunst. 1. Juli 2014, abgerufen am 15. November 2024.
- ↑ Konrad O. Bernheimer: Narwalzahn und Alte Meister. Aus dem Leben einer Kunsthändler-Dynastie. Hoffmann und Campe, Hamburg 2013, ISBN 978-3-455-50280-0, S. 335–337.
- ↑ Haus der Kunst - FAQs. 12. Januar 2014, archiviert vom (nicht mehr online verfügbar); abgerufen am 15. November 2024.
- ↑ a b Haus der Kunst - Historisches Archiv. 9. November 2017, archiviert vom am 9. November 2017; abgerufen am 15. November 2024. Info: Der Archivlink wurde automatisch eingesetzt und noch nicht geprüft. Bitte prüfe Original- und Archivlink gemäß Anleitung und entferne dann diesen Hinweis.
- ↑ dpa: Haus der Kunst soll sein Image als Nazi-Kunsttempel verlieren. 17. September 2016, abgerufen am 20. August 2023.
- ↑ Patrick Guyton: Ausstellungen: Ein unkommentiertes Gebäude. Badische Zeitung, 29. Dezember 2016, abgerufen am 29. Dezember 2016.
- ↑ Abendzeitung: Stephan Braunfels über das Haus der Kunst: „So gut wird in München schon lange nicht mehr gebaut“. 7. November 2016.
- ↑ Engagierte Förderin. Bayerische Staatszeitung, 9. Juni 2016.
- ↑ Tutsek-Stiftung steigt im Haus der Kunst ein. Süddeutsche Zeitung, 7. Juni 2016.
- ↑ Alexander Tutsek-Stiftung verlängert ihre Förderung des Haus der Kunst. In: www.hausderkunst.de. 21. November 2021, abgerufen am 31. August 2025. (PDF)
- ↑ Energisches Lebenszeichen. Münchner Merkur, 26. Juli 2014.
- ↑ Susanne Hermanski: Das Haus der Kunst kommt nicht zur Ruhe. In: Süddeutsche Zeitung. 16. Januar 2018.
- ↑ Spiegel Online: Okwui Enwezor legt Amt nieder, 4. Juni 2018.
- ↑ Ulrich Raphael Firsching: Haus der Kunst bald ohne künstlerische Leitung. In: www.kunstmarkt.com. Abgerufen am 3. Januar 2019.
- ↑ Wegen Geldmangels: Münchener Haus der Kunst sagt Ausstellung ab. In: www.faz.net. 1. August 2018, abgerufen am 4. August 2018.
- ↑ Süddeutsche Zeitung: Haus der Kunst bekommt neuen Geschäftsführer. In: sueddeutsche.de, 14. Januar 2020.
- ↑ München: Andrea Lissoni bleibt Direktor am Haus der Kunst. In: Süddeutsche Zeitung. 30. November 2023, abgerufen am 25. April 2024.
Koordinaten: 48° 8′ 39″ N, 11° 35′ 9″ O