Köpenicker Hof

Köpenicker Hof 2011, Berlin

Der Köpenicker Hof ist ein Kultur- und Tourismuszentrum auf dem denkmalgeschützten Gelände des historischen Gaswerkes in Berlin-Köpenick, das 1889 als erste private Gasanstalt in Berlin von der Firma Budde & Goehde erbaut wurde.

Lage

Der Köpenicker Hof befindet sich am Stellingdamm, ca. 300 m von der S-Bahn-Station Köpenick entfernt, an der Grenze zur historischen Siedlung Elsengrund im Bezirk Treptow-Köpenick. Die historischen Gebäude auf dem Gelände wurden für die 1. Köpenicker Gasanstalt 1889 unter anderem nach den Plänen des Stadtbaurates Hugo Kinzer errichtet.

Vorgeschichte

Die Erfindungen und sozialen Veränderungen, die die industrielle Revolution mit sich brachte, hatten am Anfang des 19. Jahrhunderts auch Köpenick erreicht. Die Köpenicker Altstadt war für die wachsende Bevölkerungszahl nicht mehr ausreichend. Die Kietzer Vorstadt (1873), die Köllnische Vorstadt (1874) sowie die Dammvorstadt (1883) wurden gegründet. 1871 betrug die Einwohnerzahl Köpenicks 4.538, vier Jahre später waren es bereits 7.113 Einwohner. Der Bau von neuen Straßen, Plätzen, Wohnungen und Industrieanlagen sowie die Umstellung der Straßenbeleuchtung von Petroleum auf Gas erhöhten den fortschreitenden Bedarf an Leuchtgas. Das europaweit tätige englische Gasversorgungsunternehmen Imperial-Continental-Gas-Association (ICGA) schloss mit der preußischen Regierung 1825 für die Gasversorgung Berlins einen Vertrag mit der Geltungsdauer von 21 Jahren. Ab 1826 errichtete ICGA die Gasanstalten am Friedrichshainer Spreeufer und versorgte die Straßen und Plätze in diesem Bereich mit Leuchtgas (1825 das Gaswerk in der Gitschiner Straße (Kreuzberg), 1836 das Gaswerk in der Holzmarktstraße, 1846 das Gaswerk Hellweg in Kreuzberg). Der ständig weiter steigende Gasbedarf in Berlin führte zu Überlegungen der preußischen Behörden, die Gasversorgung in eigene Hände zu nehmen. Sie kauften vorsorglich Grundstücke in der Nähe der Gaswerke der englischen Gesellschaft, die sie nach Ablauf einiger Verträge mit den Engländern und damit Freigabe des Gasmarktes 1847 für die Errichtung eigener Gaswerke nutzten.

Die Köpenicker Stadtväter vergaben eine zeitlich unbefristete Lizenz zur Gaserzeugung an die Eigentümer der Firma Budde & Goehde für das erste private Gaswerk in Köpenick. Am 1. November 1889 wurde die neue Gasanstalt in der Dahlwitzer Straße (heute Stellingdamm) probeweise zur Gasbeleuchtung der heutigen Altstadt und der Dammvorstadt eröffnet.

Geschichte

Der wirtschaftliche Erfolg des Gaswerkes ließ die Köpenicker Stadtväter nicht ruhen und sie begannen Verhandlungen zur Übernahme durch die Stadt. Alexander Budde, nunmehr Alleineigentümer, wich immer wieder aus, schaltete Rechtsanwälte ein, aber nach zwei Jahren heftigen Ringens musste er aufgeben. Mit der endlich im Oktober 1900 erfolgten Einigung wurden zugleich zwei Grundsatzfragen geklärt:

  1. Die Stadt erwarb für den beachtlichen Preis von 650.000 Reichsmark nur das Gaswerk und die in Köpenick verlegten 17,8 km Rohrnetz, alle auf Friedrichshagener Gebiet gelegenen Anlagen verblieben bei Budde.
  2. Die Versorgung von Adlershof musste an die englische Gasgesellschaft IGGA abgegeben werden, die seit 1899 in Oberschöneweide ein eigenes Gaswerk betrieb und das Versorgungsgebiet für sich beanspruchte.

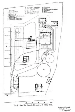
Bereits 1901 sind von den städtischen Behörden grundsätzliche Beschlüsse für einen völligen Neubau des Werkes gefasst worden. Zunächst wurde ein Behälter für 3.000 m³, vergrößerungsfähig auf 6.000 m³ in Auftrag gegeben und 1903 ein neues Hauptrohr NW 400 mm zur Altstadt verlegt, weil das alte von NW 200 mm nicht mehr ausreichte. In den Jahren 1904/05 erfolgte der Neubau, dazu musste das Grundstück nach Norden vergrößert werden.

Bestehen blieben nur das alte Ofenhaus (der westliche Teil des ersten Gebäudes), der Gasbehälter 1.000 m³, Kontor/Werkstatt und Wohnhaus. Neu errichtet wurden links hinter dem alten ein neues Ofenhaus, rechts ein Reinigerhaus, ein Uhren- und Reglerhaus, ein Kesselhaus, sowie am linken Grundstücksrand ein 63 m langer Kohlenschuppen und am Werkseingang ein Verwaltungsgebäude.

Die Kosten[1] für die Baulichkeiten ohne die innere maschinelle Einrichtung betrugen für

1. den Kohlenschuppen 25.000,00 Mk
2. das Ofenhaus 26.000,00 Mk
3. das Apparatehaus mit den Sammelgruben 59.000,00 Mk
4. das Uhrenhaus 10.000,00 Mk
5. das Kesselhaus mit Schornstein 6.000,00 Mk
6. den Abortbau 1.000,00 Mk
7. das Verwaltungsgebäude 20.000,00 Mk
8. die Terrainregulierung, Pflasterung, Bürgersteige 37.227,27 Mk
im Ganzen 184.227,72 Mk

Die Entwürfe zu den Baulichkeiten wurden im Stadtbauamt unter Leitung des städtischen Baumeisters Hugo Kinzer ausgearbeitet; für die Gebäude zur Aufnahme der maschinellen Anlagen wurden die Entwürfe der Firma Pintsch, Berlin, zugrunde gelegt. Die Bauleitung lag in den Händen des städtischen Baumeisters Hugo Kinzer und des Bauführers Arnold Zimmermann. An der Bauausführung waren beteiligt:

Erd und Maurerarbeiten: Herr Architekt und Maurermeister Herm. Kalbitz; Herr Maurermeister Emil Wurl;
Zimmerarbeiten: Herr Zimmermeister Fr. Noack; Firma Wagenknecht & Cunitz;
Schmiedearbeiten: die Gasanstalt;
Eisen Dachkonstruktion: Herr Kaufmann Alb. Kienbaum;
Klempnerarbeiten: Herr Klempnermeister Gustav Neumann; Herr Klempnermeister Hermann Beeck
Dachdeckerarbeiten: Herr Dachdeckermeister Chr. Rabe
Lieferung der Eisenfenster: Herr Kaufmann Alb. Kienbaum;
Tischlerarbeiten: Herr Tischlermeister Israel; Firma Wagenknecht & Cunitz;
Schlosserarbeiten: Herr Schlossermeister Carl Mühlenberg;
Glaserarbeiten: Herr Glasermeister Max Sieveit;
Maler, Anstreicher und Tapeziererarbeiten: Herr Malermeister Gebhardt;
Pflasterarbeiten: Herr Ingenieur Ernst Selchow. Herr Steinsetzmeister Th. Hackradt.

Mit der Eröffnung der neuen Anlagen im Oktober 1905 verdoppelte sich die Werkskapazität auf 10.000 m³/Tag, das Rohrnetz war auf 31 km angewachsen, es wurden 12.300 Privatflammen und 420 Straßenlaternen versorgt, die jährliche Gasabgabe war auf über 1,5 Mio m³ angestiegen.

Bereits im Zeitraum 1910–1915 wurde ein weiterer Ausbau erforderlich. Zunächst wurde der Gasbehälter 3.000 m³ durch Aufsetzen eines Teleskops auf 6.000 m³ vergrößert. 1912 erfolgte der Neubau eines Ofenhauses mit 48 modernen Vertikalretorten. Dazu musste das Kontorgebäude abgerissen werden. Auch das erste Ofenhaus von 1889 wurde nicht mehr gebraucht und abgetragen. 1913 ist das Apparatehaus vergrößert und 1915 der größte Gasbehälter mit 12.000 m³ gebaut und der erste von 1889 (1.000 m³) abgebrochen worden.[2]

Mit diesem Bestand erfolgte nach der Eingemeindung 1920 der Übergang an die Städtischen Gaswerke (GASAG), die 1925 im Zuge der Rationalisierung das Werk außer Betrieb nahmen. Es blieb jedoch als Betriebsstelle der GASAG erhalten und der 12.000 m³ Behälter wurde vom städtischen Netz aus gefüllt. An der Nordwestgrenze wurde ein weiterer langer Schuppen für die Installationsabteilung gebaut und die großen massiven Kohlenschuppen sind als Garagen für Busse des Nahverkehrs vermietet worden. Dieser Zustand hat sich dann bis zum Zweiten Weltkrieg nicht verändert, in dem der Gasbehälter – wie viele andere in Berlin – stärkere Beschädigungen durch Bombenwürfe erhielt, die zum Glück keine Volltreffer waren. Aber es dauerte trotzdem reichlich drei Jahre, bis er nach Reparaturen Ende 1948 wieder gefüllt werden konnte. Nach der Inbetriebnahme eines neuen großen Scheibengasbehälters in Lichtenberg wurde er 1965 dann entbehrlich und das ganze Gelände ging als Betriebshof an die Stadtreinigung (BSR). Diese baute die oberen Teile des Behälters ab und nutzte das sogenannte Behälterbassin in den 80er Jahren für die Aufbewahrung aggressiver Auftaumittel für gefrorene Straßen. Der endgültige Abriss auch dieses Unterteils erfolgte erst 1994. Von 1994 bis 1998 diente das Gelände als Recycling-Hof.

Denkmalschutz

Die Gebäude des Köpenicker Hof und das ehemalige Wohngebäude der Gebrüder Budde auf dem Anliegergrundstück wurden in die Liste der Berliner Denkmale aufgenommen:

09045792 Stellingdamm 15–15A, Städtisches Gaswerk Köpenick, 1899–1900, 1905 von Hugo Kinzer (Architektur) und Firma Julius Pintsch (technischer Entwurf); Verwaltungsgebäude, um 1910; Kohleschuppen, 1905 (1928–29 Umbau als Garage der ABOAG); Büro- und Verwaltungsgebäude, 1905; Neues Ofenhaus, 1905; Uhren- und Reglerhaus, 1905 (1928–29 Umbau zum Werkstattgebäude); Kesselhaus, 1905; Wohnhaus, 1899; Lager, 1899

Heutige Nutzung

Seit 2006 wird das Gelände privat genutzt. Heute betreibt die KGT Köpenicker Tourismus GmbH dort einen Wohnmobilplatz, eine Pension, einen Biergarten, Gastronomie, eine Kleinkunstbühne und Veranstaltungsräume für Feiern.

Seit 2017 ist das Gelände Teil des Entwicklungsgebietes „Ehemaliger Güterbahnhof Köpenick“ der Senatsverwaltung für Stadtentwicklung und Wohnen. Diese plant, bis 2025 im hinteren Teil des Geländes eine Schule zu errichten, die historischen Gebäude zu sanieren und im Rahmen eines Kiezcenters für verschiedene bürgernahe Initiativen (Jugendzentrum, Seniorentreff etc.) zu nutzen. Der Biergarten soll als Teil davon erhalten bleiben. Die Nutzungsplanung ist noch nicht abgeschlossen (7/2021).

Literatur

  • Die städtischen Gaswerke in Köpenick – Entstehung und Entwicklung bis zum Jahre 1906, veröffentlicht von der Kommission zur Verwaltung der städtischen Gaswerke, 1906 Cöpenick, Heimatmuseum Köpenick.
  • Hilmar Bärthel: Die Geschichte der Gasversorgung in Berlin. Eine Chronik. Herausgegeben von der GASAG, Berliner Gaswerke, Aktiengesellschaft. Nicolai, Berlin 1997, ISBN 3-87584-630-3.

Einzelnachweise

  1. Hilmar Bärthel: Köpenicker Ereignisse im Zeitalter der Technik, Bezirksamt Köpenick von Berlin – 1999, § 4.5 Gaswerk Köpenick Seite 40/41
  2. Die städtischen Gaswerke in Köpenick - Entstehung und Entwicklung bis zum Jahre 1906, veröffentlicht von der Kommission zur Verwaltung der städtischen Gaswerke, 1906 Cöpenick, Heimatmuseum Köpenick.

Koordinaten: 52° 27′ 35″ N, 13° 35′ 8,3″ O