Kastell Boppard
| Kastell Boppard | |
|---|---|
| Alternativname | Bodobrica, Bodobriga, Baudobriga, Baudobrica |
| Limes | Donau-Iller-Rhein-Limes |
| Abschnitt | Germania prima |
| Datierung (Belegung) | 4. Jahrhundert n. Chr. |
| Einheit | milites balistarii |
| Größe | 308 m × 154 m |
| Bauweise | Stein |
| Erhaltungszustand | rechteckige Anlage mit vorkragenden hufeisenförmigen Türmen, Umfassungsmauern und Wehrtürme tw. noch gut erhalten. |
| Ort | Boppard |
| Geographische Lage | 50° 13′ 54,1″ N, 7° 35′ 28,3″ O |
| Höhe | 79 m ü. NHN |
| Vorhergehend | Burgus Lahnstein (nördlich) |
| Anschließend | Kastell Oberwesel (südöstlich) |
Das Kastell Boppard (lateinisch Bodobrica, auch: Bodobriga, Baudobriga oder Baudobrica) war ein spätrömisches Militärlager an der Rheintalstraße, dessen Besatzung für Sicherungs- und Überwachungsaufgaben an der „nassen“ Grenze (ripae) des Rheins zuständig war. Die Anlage liegt heute im Zentrum von Boppard, einer Stadt im Rhein-Hunsrück-Kreis, Bundesrepublik Deutschland. Die Reste der antiken Umwehrung sind durch ihren außergewöhnlich guten Erhaltungszustand für die wissenschaftliche Forschung von besonderem Interesse.
Lage


Römische Siedlungen an dieser verkehrsgünstigen, am Mittelrhein zwischen Taunus und Hunsrück gelegenen Stelle, sind schon seit dem 1. Jahrhundert nachweisbar. Historische Quellen aus dem 2.–3. Jahrhundert wie die Tabula Peutingeriana und das Itinerarium Provinciarium Antonini Augusti erwähnen die Siedlung als Bouobriga bzw. Bontobrice. Der Name geht wohl auf eine frühere keltische Siedlung Boudobriga zurück. Die Reste dieses römischen Kastells liegen im heutigen Altstadtkern von Boppard. Das Kastell wurde auf einer leichten Anhöhe über dem Rhein und damit auf hochwasserfreiem Gelände errichtet. Es lag zentral zwischen den Kastellen Oberwesel und Andernach.[1]
Forschungsgeschichte





Beim Bau der Bopparder Kanalisation im Jahr 1939 wurden mehrere Bodenfunde aufgedeckt und 1941 in den Bonner Jahrbüchern veröffentlicht. Es konnte der Nachweis der Westseite der römischen Kastellbefestigung bei Turm 2 und 3 erbracht werden. Bis dahin ging man davon aus, dass der Teil des Kastells durch den Bau der Bahnstrecke am linken Rheinufer zerstört wurde. Außerdem wurden zwei fränkische Gräber mit Beigaben gefunden. Ein archäologisch bemerkenswertes Einzelfundstück, das dabei zu Tage trat, war ein Cautes, eine Figur aus dem Mithras-Kult.[2]
Im Zuge eines 1959 aufgelegten Forschungsprogramms zur Vermessung römischer Befestigungsanlagen mittelrheinischer Städte wurden die Reste mehrerer Wachtürme der Umwehrung freigelegt.[3] Aufgrund dieses Forschungsprogramms wurde das Kastell in den Jahren 1959 bis 1962 von dem Kunsthistoriker Günter Stein (1924–2000) untersucht. Diese in Zusammenhang mit der Technischen Universität Berlin entstanden Forschungsarbeit wurde 1966 im Saalburg-Jahrbuch 23 publiziert und dient seitdem als Grundlage für alle nachfolgenden Untersuchungen.
Die ersten systematischen Grabungen wurden zwischen 1963 und 1966 bei Renovierungsarbeiten der St.-Severus-Kirche und Bauarbeiten auf dem Marktplatz vom damaligen Amt für Vor- und Frühgeschichte in Koblenz durchgeführt. Bei den Grabungen unter der St.-Severus-Kirche wurde ein frühchristliches Taufbecken aus dem 5. Jahrhundert gefunden. Weitere Ausgrabungen wurden 1977 im Zusammenhang Straßenausbesserungen an der Bundesstraße 9 am Westtor und am südlichen Teil der westlichen Kastellmauer durchgeführt. Dabei konnte der Verlauf des westlichen Mauerstücks festgestellt werden, auch das vermutete Westtor auf der heutigen Oberstraße konnte dabei nachgewiesen werden.[4]
Weitere umfangreiche Ausgrabungen fanden im Zusammenhang mit der Verlegung der Bundesstraße 9 und dem geplanten Bau einer Polizeistation in den Jahren von 1989 bis 1995 statt. Diese wurden im Bereich des sogenannten Stierstalles im südlichen Vorfeld und im Innenbereich der Kastellmauern an der Angertstraße durchgeführt. Dort konnte die Festungsmauer über eine Länge von mehr als 55 m lückenlos freigelegt werden. Turm 8 ist nur noch bis zum heutigen Oberflächenniveau, Turm 9 hingegen ist bis zu einer Höhe von acht Metern erhalten.[5] Aufgrund dieser Funde untersagte das Denkmalamt den Bau der Polizeistation und forderte eine unbebaute Freistellung des Bereichs.[2]
Zu Beginn des 21. Jahrhunderts wurde im Rahmen der Umfeldgestaltung zur Errichtung einer Tiefgarage eine Häuserzeile an der Westmauer des Kastells abgebrochen und ein rund 50 Meter langes Mauerstück ist nun wieder frei zugänglich.
Baugeschichte
Nachdem der Rhein im 3. Jahrhundert wieder zur Grenze des römischen Reiches wurde, erbaute man zum Schutz vor den Germanenstämmen um die Mitte des 4. Jahrhunderts n. Chr. das rund 308 × 154 große Kastell Bodobrica. Diese Wehranlage lag etwa einen Kilometer südöstlich der damaligen Siedlung und war von einer acht Meter hohen Mauer mit wahrscheinlich 28 Türmen umgeben. Das festungsartige Bollwerk diente als militärischer Stützpunkt und Handelsplatz. Im Gegensatz zu anderen spätantiken Kastellen im Rheinland wie bei denen in Remagen, Andernach, Koblenz, Bingen und Mainz brauchte keine bestehende Bebauung berücksichtigt werden. Das Kastell von Boppard scheint als geplante Konstruktion nach geographischen, militärischen und wirtschaftlichen Gesichtspunkten errichtet worden zu sein.[6]
An der Feldseite bestand der Wehrmauerverband aus kleinen, zumeist aus Grauwacke bestehenden Quadern. Zur Stadtseite hin sowie im Inneren der Türme wurden mehr oder weniger stark behauene Steine beobachtet. In abschnittsweise wechselnden Höhen wurden Lagen in Form von Fischgrätmustern (Opus spicatum) verbaut. An einem der Wehrtürme, dessen oberer Abschluss noch erhalten war, konnten unter der mittelalterlichen Verbauung noch die Reste zweier „Schießscharten“ beobachtet werden. Ein ähnlicher Befund liegt auch aus Andernach (Antunnacum) vor.[3]
Die Befestigung des spätantiken Kastells Boppard gehört zu den besterhaltenen ihrer Art in Deutschland[3] und kann frei besichtigt werden. Bei Ausgrabungen wurden auch die Überreste der Thermen sowie mehrere frühchristliche Gräber aus dem 7. Jahrhundert freigelegt.
Anlage
Kastell
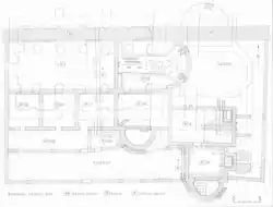
Das Kastell hatte eine Größe von 308 m × 154 Meter, was einer ummauerten Fläche von rund 4,6 Hektar entspricht.[1] Die in Stein ausgebaute Umfassungsmauer war drei Meter stark und wurde lediglich an der Rheinfront mit nur zwei Metern eingemessen. Stellenweise ist die Mauer heute noch in einer Höhe von neun Metern erhalten. An der Außenmauer befanden sich in regelmäßigen Abständen von zirka 27 Metern vermutlich insgesamt 28 Rundtürme.[7] Zumindest die südliche Kastellmauer war durch einen vorgelagerten Graben zusätzlich gesichert. An den Schmalseiten des Kastells Richtung Westen beziehungsweise Osten war jeweils ein Eingang, ohne dass Torbauten oder Türme dort vorhanden waren. An der Südseite konnte eine schmale Pforte nachgewiesen werden und an der Nordseite wird ebenfalls eine solche Pforte vermutet, jedoch konnte diese nicht nachgewiesen werden. Die Rheintalstraße führte südlich am Kastell vorbei und durch das Kastell führte eine Hauptstraße, die dem heutigen Verlauf der Oberstraße entspricht.[6] Als Besonderheit gelten die auffällig massiven Türme, welche eine Höhe von 10 Metern und einen Durchmesser von 8,70 Metern erreichten. Sie dienten der Stationierung von Steinschleudern beziehungsweise Pfeilgeschützen der in Boppard stationierten milites balisarii.[1]
Kastellbad

Am heutigen Standort der St.-Severus-Kirche befand sich ein Militärbad, das zusammen mit dem Kastell errichtet wurde. Es hatte eine Größe von 50 m × 35 m und war unmittelbar an die Nordmauer angebaut. Die Anordnung seiner Räume entsprach dem üblichen Bauschema römischer Badeanlagen. Das Bauwerk bestand aus schiefrigen Grauwacken und trug braunroten Außenputz. Das Dach war mit roten Ziegeln gedeckt und die Fenster verglast.
Durch einen Vorbau kam ein Besucher zu Ankleideräumen und von dort aus zu einem an die Kastellmauer angelehnten Raum mit einer Grundfläche von 20 × 9 Metern. Dieser wurde wohl als Mehrzweckraum genutzt. Östlich schloss sich an den Raum ein weiterer Raum mit Apsis an. Dieser war mit einer Fußbodenheizung ausgestattet und diente als Wärmeraum. Der eigentliche Badetrakt schloss südlich an diesen Raum an. Er bestand aus einem Kaltbad, einem Warmbad und einem Schwitzbad. Das frische Wasser für die Becken wurde von den südlich gelegenen Hängen herbeigeführt und das Abwasser durch einen Bleikanal in den Rhein geleitet. Die Badebecken hatten eine maximale Wassertiefe von 80 cm.
Unter dem Boden des Umkleideraums wurden Münzen des Kaisers Constantius gefunden. Diese wurden zwischen 341 und 346 geprägt. Außerdem wurden Zeitstempel von der 22. Legion gefunden. Dies lässt eine Datierung der Nutzung bis spätestens 352/355 zu. Nachdem das Kastell Anfang des 5. Jahrhunderts aufgegeben wurde, wurde das Kastellbad mit einer Kirche, dem Vorläufer der heutigen Severus-Kirche, überbaut.[8]
Vicus
Die frühe römische Siedlung hatte keltische Ursprünge. Sprachwissenschaftliche Untersuchungen und schriftliche Überlieferungen legen nahe, dass dieses ursprünglich keltische Dorf Bodobrica genannt wurde. Das Dorf lag unmittelbar am Rhein, im Eingangsbereich zum Mühltal, durch das die Rheintalstraße mit der Ausoniusstraße verbunden war. Seine Blütezeit hat das Fischer- und Händlerdorf zwischen dem 1. und dem 3. Jahrhundert. Funde aus der römischen Spätzeit wurden in diesem Bereich nicht mehr gemacht. Daher ist davon auszugehen, dass die Siedlung in das in der Mitte des 4. Jahrhunderts erbaute Kastell verlegt wurde. Dieses befindet sich zirka ein Kilometer östlich der ursprünglichen Siedlung.
Der Vicus erstrecke sich über zirka 50 m und bestand aus festen Häusern, die teilweise unterkellert waren. Die Bewohner waren während des 2. und 3. Jahrhunderts recht begütert, was sich aus den aufwendigen Grabmälern schließen lässt, die entlang der römischen Fernstraße errichtet wurden.[9]
Truppe
Nach der Notitia dignitatum, ein römisches Staatshandbuch aus der ersten Hälfte des 5. Jahrhunderts, waren im Kastell mit den milites balistrarii Festungsartilleristen stationiert.[7] Das Kastell war dem Oberbefehl des Heerführers der Germania I, dem Dux Mogontiacensis in Mainz, unterstellt.
Fundverbleib

Das bei Grabungen zwischen 1963 und 1966 unter der St.-Severus-Kirche gefundene Taufbecken aus dem 5. Jahrhundert wurde an seinem ursprünglichen Ort belassen. Bei einer erneuten Innenrestaurierung der Kirche in den Jahren 2010 und 2011 wurde auch der Raum und der Zugang zum Taufbecken umgebaut. Seit Dezember 2011 ist daher dieses Taufbecken bei Kirchenführungen zu besichtigen.
In einem der ehemaligen Häuser des Vicus wurde eine Terrakottafigur gefunden. Es handelt sich um eine Darstellung der keltischen Pferdegöttin Epona, die seitlich im Damensitz auf einem Pferd sitzt. Die Tonstatue hat eine Höhe von zwölf Zentimetern. Die Bedeutung des Fundes ergibt sich aus seiner Seltenheit und der guten Erhaltung der farblichen Fassung.[9] Heute befindet sich die Statue im Landesmuseum Koblenz, eine Kopie wird auch im Museum der Stadt Boppard in der kurfürstlichen Burg ausgestellt. Außerdem wurde eine vergrößerte Kopie in der Nähe ihres Fundortes aufgestellt.
Drei charakteristische Gräber der über 40 Grabgruben, die bei den Grabungen zwischen 1989 und 1990 im heutigen archäologischen Park gefunden wurden, sind dort erhalten und konserviert worden.[6]
Andere Fundstücke aus römischer Zeit sind im Museum der Stadt in der kurfürstlichen Burg in Boppard ausgestellt.
Nachrömische Entwicklung
Nach dem Abzug der römischen Truppen bewohnte die Zivilbevölkerung das römische Kastell weiter. Um 406/407 wurde das Militärbad durch einen Brand zerstört. Zirka in der Mitte des 5. Jahrhunderts wurde dann an dieser Stelle der Vorgänger der heutigen St.-Severus-Kirche errichtet.[10]
Die Kastellmauern dienten bis in das 12. Jahrhundert als Stadtmauer der mittelalterlichen Stadt. Spätestens beim Bau der heutigen St.-Severus-Kirche wurde die nördliche Mauer abgebrochen. Diese war überflüssig geworden, da eine näher am Rhein liegende Mauer errichtet worden war.[11] Jedoch erst der Trierer Erzbischof Balduin von Luxemburg, an den Boppard von Heinrich VII. verpfändet wurde, ließ im 14. Jahrhundert die neuen Wohngebiete im Osten und Westen durch eine mittelalterliche Stadtbefestigung schützen und band dabei die römischen Kastellmauern mit ein.[12] Somit blieb nur die südliche Kastellmauer eine Außenmauer der mittelalterlichen Stadtbefestigung.[11]
Im 19. Jahrhundert wurden auch noch größere Stücke des ehemaligen Kastells zerstört. Im Jahr 1969 wurde beim Neubau des Saales Zum Römer ein acht Meter langes und vier Meter hohes Teilstück der Westmauer gegen Protest der Bopparder Bürger abgebrochen.[2] Dieser Saal wurde zusammen mit weiteren Gebäuden in den Jahren 2007/2008 wieder abgerissen und die Mauer freigelegt.[13] In den 1970er und 1980er erwarb die Bundesrepublik Deutschland in Boppard Grundstücke, um für die Bundesstraße 9 eine Teilumgehung zu realisieren. Dabei wurde die Bundesrepublik auch zum Besitzer der südwestlichen Ecke der römischen Kastells.[14] Anfang der 1990er Jahre wurde die Bundesstraße 9 verlegt, wobei mit der Zustimmung der Denkmalpflege Teile der erworbenen südwestlichen Mauern mit den Türmen 1 bis 5 abgebrochen wurden.[2]
Denkmalschutz
Das Kastell Boppard ist seit 2002 Teil des UNESCO-Welterbes Oberes Mittelrheintal. Außerdem ist dieses Bodendenkmal geschützt als eingetragenes Kulturdenkmal im Sinne des Denkmalschutz- und -pflegegesetzes (DSchG)[15] des Landes Rheinland-Pfalz. Nachforschungen und gezieltes Sammeln von Funden sind genehmigungspflichtig, Zufallsfunde an die Denkmalbehörden zu melden.
Siehe auch
Literatur
- Hans Eiden: Militärbad und frühchristliche Kirche in Boppard am Rhein. In: Ausgrabungen in Deutschland gefördert von der Deutschen Forschungsgemeinschaft 1950–1975. Band 1. Teil 2. Mainz 1975, S. 80–98.
- Hans Eiden: Ein christlicher Kultbau im spätrömischen Kastell Boppard. In: Akten des VII. Internationalen Kongresses für Christliche Archäologie. Trier, 5. bis 11. September 1965 (= Studi di antichità cristiana. 27). Città del Vaticano, Berlin 1969, S. 485–491.
- Hans Eiden: Die Ergebnisse der Ausgrabungen im spätrömischen Kastell Bodobrica (= Boppard) und im Vicus Cardena (= Karden). In: Joachim Werner, Eugen Ewig (Hrsg.): Von der Spätantike zum frühen Mittelalter. (= Vorträge und Forschungen. 25). Jan Thorbecke Verlag, Stuttgart 1979, ISBN 3-7995-6625-2, S. 317–345.
- Hans Eiden: Spätrömisches Kastellbad und frühchristliche Kirche in Boppard. (= Ausgrabungen an Mittelrhein und Mosel 1963–1976. = Trierer Zeitschrift. Beiheft 6). Tafelband 1982, S. 215–265.
- Hubert Fehr: Das Westtor des spätrömischen Kastells Bodobrica (Boppard). In: Archäologisches Korrespondenzblatt. 9, 1979, S. 335–339.
- Hubert Fehr: Ausgrabungen an der Südfront des spätrömischen Kastells von Boppard. In: Archäologie in Deutschland. Heft 3, 1991, S. 53.
- Eberhard J. Nikitsch: Neue, nicht nur epigraphische Überlegungen zu den frühchristlichen Inschriften aus Boppard. In: Neue Forschungen zu den Anfängen des Christentums im Rheinland. (= Jahrbuch für Antike und Christentum. Ergänzungsband 2). Aschendorff Verlag, Münster 2004, S. 209–223.
- Ferdinand Pauly: Das Kastell Boppard. In: Aus der Geschichte des Bistums Trier. Heft 1–3. Trier 1968–1970, S. 7–14.
- Sebastian Ristow: Der Begriff „frühchristlich“ und die Einordnung der ersten Kirche von Boppard am Rhein. In: Ulrike Lange, Reiner Sörries (Hrsg.): Vom Orient bis an den Rhein. Begegnungen mit der Christlichen Archäologie. Peter Poscharsky zum 65. Geburtstag. Dettelbach 1997, S. 247–256.
- Josef Röder: Neue Ausgrabungen in Boppard. In: Rund um Boppard. Nr. 53, 1960.
- Günter Stein: Bauaufnahmen der römischen Befestigung von Boppard. In: Saalburg-Jahrbuch. 23, 1966, S. 106–133.
- Hans-Helmut Wegner: Boppard. Vicus, Kastell. In: Heinz Cüppers: Die Römer in Rheinland-Pfalz. Lizenzausgabe der Auflage von 1990. Nikol, Hamburg 2002, ISBN 3-933203-60-0, S. 344–346.
- Klemens Wilhelmi: Notgrabungen im Bereich des W- bzw. S-Tores der Rhein-Kastelle Boppard und Koblenz. In: Roman Frontier Studies 1979. S. 567–586.
Weblinks
- Kastell Boppard in: regionalgeschichte.net
- in welterbe-mittelrheintal.de
Anmerkungen
- ↑ a b c Geschichtsverein für Mittelrhein und Vorderhunsrück (Hrsg.): Von der eisenzeitlichen Befestigung zur preußischen Festung. Boppard 2009, S. 34 ff.
- ↑ a b c d Klaus Brager: Archäologische Denkmalpflege. In: Heinz E. Mißling (Hrsg.): Boppard. Geschichte einer Stadt am Mittelrhein. Dritter Band. Dausner Verlag, Boppard 2001, ISBN 3-930051-02-8, 5.4.
- ↑ a b c Victor Heinrich Elbern (Hrsg.): Römischer Stadtturm in Boppard. In: Das erste Jahrtausend. Kultur und Kunst im werdenden Abendland an Rhein und Ruhr. Tafelband. Verlag L. Schwann, Düsseldorf 1962, S. 6.
- ↑ Hans-Helmut Wegner: Die Ur- und Frühgeschichte im Siedlungsraum Boppard. In: Heinz E. Mißling (Hrsg.): Boppard. Geschichte einer Stadt am Mittelrhein. Erster Band: Von der Frühzeit bis zum Ende der kurfürstlichen Herrschaft. Dausner Verlag, Boppard 1997, ISBN 3-930051-04-4, S. 38–40.
- ↑ Hans-Helmut Wegner: Die Ur- und Frühgeschichte im Siedlungsraum Boppard. In: Heinz E. Mißling (Hrsg.): Boppard. Geschichte einer Stadt am Mittelrhein. Erster Band: Von der Frühzeit bis zum Ende der kurfürstlichen Herrschaft. Dausner Verlag, Boppard 1997, ISBN 3-930051-04-4, S. 40.
- ↑ a b c Hans-Helmut Wegner: Die Ur- und Frühgeschichte im Siedlungsraum Boppard. In: Heinz E. Mißling (Hrsg.): Boppard. Geschichte einer Stadt am Mittelrhein. Erster Band. Von der Frühzeit bis zum Ende der kurfürstlichen Herrschaft. Dausner Verlag, Boppard 1997, ISBN 3-930051-04-4, S. 41.
- ↑ a b Hans-Helmut Wegner: Boppard. Vicus, Kastell. In: Heinz Cüppers: Die Römer in Rheinland-Pfalz. Lizenzausgabe der Auflage von 1990. Nikol, Hamburg 2002, ISBN 3-933203-60-0, S. 344–346.
- ↑ Hans-Helmut Wegner: Die Ur- und Frühgeschichte im Siedlungsraum Boppard. In: Heinz E. Mißling (Hrsg.): Boppard. Geschichte einer Stadt am Mittelrhein. Erster Band: Von der Frühzeit bis zum Ende der kurfürstlichen Herrschaft. Dausner Verlag, Boppard 1997, ISBN 3-930051-04-4, S. 41–42.
- ↑ a b Hans-Helmut Wegner: Die Ur- und Frühgeschichte im Siedlungsraum Boppard. In: Heinz E. Mißling (Hrsg.): Boppard. Geschichte einer Stadt am Mittelrhein. Erster Band: Von der Frühzeit bis zum Ende der kurfürstlichen Herrschaft. Dausner Verlag, Boppard 1997, ISBN 3-930051-04-4, S. 31–32.
- ↑ Hans-Helmut Wegner: Die Ur- und Frühgeschichte im Siedlungsraum Boppard. In: Heinz E. Mißling (Hrsg.): Boppard. Geschichte einer Stadt am Mittelrhein. Erster Band: Von der Frühzeit bis zum Ende der kurfürstlichen Herrschaft. Dausner Verlag, Boppard 1997, ISBN 3-930051-04-4, S. 47.
- ↑ a b Landesamt für Denkmalpflege (Hrsg.): Die Kunstdenkmäler von Rheinland-Pfalz. Band 8: Die Kunstdenkmäler des Rhein-Hunsrück-Kreises. Teil 2. Ehemaliger Kreis St. Goar, 1. Stadt Boppard I. Deutscher Kunstverlag, München/Berlin 1988, ISBN 3-422-00567-6, S. 450–451.
- ↑ M. Thoma: Römisches Kastell. regionalgeschichte.net.
- ↑ Das Bopparder „Central-Café“ wird abgerissen. In: Rhein-Hunsrück-Zeitung. 14. Dezember 2007. walter-bersch.de.
- ↑ Die Stadt Boppard wird Eigentümerin der Historischen Stadtmauern entlang der B 9. 23. Juli 2013, abgerufen am 8. Oktober 2013.
- ↑ Generaldirektion Kulturelles Erbe Rheinland-Pfalz (Hrsg.): Nachrichtliches Verzeichnis der Kulturdenkmäler – Rhein-Hunsrück-Kreis. Mainz 2025, S. 9 f. (PDF; 1,7 MB).
