Langenbeck-Virchow-Haus
| Langenbeck-Virchow-Haus | |
|---|---|
![]() Langenbeck-Virchow-Haus, 2017 | |
| Daten | |
| Ort | Berlin |
| Architekt | Hermann Dernburg |
| Baujahr | 1914–1915 |
| Höhe | 27,08 m |
| Grundfläche | 1436,70 m² |
| Koordinaten | 52° 31′ 32,8″ N, 13° 22′ 45,6″ O |
| Besonderheiten | |
| Provisorischer Sitz der Volkskammer der DDR von 1950 bis 1976 | |
Das Langenbeck-Virchow-Haus ist ein denkmalgeschütztes Gebäude in Berlin-Mitte.
Zwischenzeitlich war es als Haus der Volkskammer auch Sitz der Volkskammer der DDR. Es wurde 1914–1915 nach Plänen des Architekten Hermann Dernburg im Auftrag der Deutschen Gesellschaft für Chirurgie und der Berliner Medizinischen Gesellschaft als Gesellschaftssitz erbaut[1] und ersetzte das 1891 erbaute Langenbeck-Haus, das nicht mehr ausreichend Platz bot.
Nach einer wechselvollen Geschichte befindet es sich seit 2003 wieder im Besitz der Langenbeck-Virchow-Haus GbR, die von der Berliner Medizinischen Gesellschaft und der Deutschen Gesellschaft für Chirurgie getragen wird.[2]
Lage und Umgebung
Das Langenbeck-Virchow-Haus in der Luisenstraße 58/59 steht in direkter Nachbarschaft zur Charité und zur Berliner Humboldt-Universität.
Architektur
Das Gebäude wurde im neoklassizistischen Stil der um 1840 erbauten Nachbargebäude geplant und errichtet.[1] Es passte sich in eine Reihe medizinischer Institute ein, die mit der Berliner Charité verbunden waren. Das Gebäude besitzt fünf Geschosse und ein Kellergeschoss. Auf der zur Luisenstraße gewandten Seite ist der Bau 27,08 Meter hoch[3] und hat eine bebaute Grundfläche von 1436,70 m².[3] Die Nutzfläche beträgt 7000 m².[4] Auf der Gebäuderückseite befindet sich 2,50 Meter unterhalb des Straßenniveaus auf der Kellerebene ein 350 m² großer Garten.[3]
Die Fassade ist glatt verputzt und mit Gesimsen und Stuckarbeiten versehen. Die beiden Seitenrisalite beherbergen die beiden Eingänge des Gebäudes. Über den Eingängen sind auf Höhe des zweiten Obergeschosses Nischen eingearbeitet, in denen Büsten der Namensgeber Bernhard von Langenbeck und Rudolf Virchow angebracht sind. Mittig findet sich ein ehemaliger Eingang, der nun funktionslos ist und eine bodentiefe Fensterfront bildet.[5]
Geschichte des Gebäudes
Vorgeschichte
Ein Heim für die Deutsche Chirurgie
Im Jahr 1872 wurde in Berlin auf Initiative von Bernhard von Langenbeck, Gustav Simon und Richard von Volkmann die Deutsche Gesellschaft für Chirurgie (DGCH) gegründet. Während der Gründungskongress 1872 noch im Berliner Hôtel de Rome am Boulevard Unter den Linden stattfand, wurden in den darauffolgenden Jahren aufgrund der deutlich steigenden Teilnehmerzahlen die nächsten Kongresse in der großen Aula der Friedrich-Wilhelm-Universität im Palais des Prinzen Heinrich und im alten Operationssaal der Königlich-Chirurgischen Kliniken in der Ziegelstraße abgehalten. Zu dieser Zeit formten sich erste Ideen für ein eigenes Vereinshaus der Deutschen Gesellschaft für Chirurgie. Dies entsprang neben der drängenden Platzfrage auch dem Wunsch, ähnlich dem Royal College of Surgeons of England in London, eine Heimat für die deutsche Chirurgie zu schaffen. Insbesondere Bernhard von Langenbeck und der Göttinger Wilhelm Baum engagierten sich in dieser Frage. Eine Förderin fand man in der Kaiserin Augusta, die mit von Langenbeck freundschaftlich verbunden war. Doch trotz prominenter Unterstützung reichten zunächst die Finanzmittel nicht aus. Von Langenbeck schlug bereits 1879 die Verwendung des aus Mitgliedsbeiträgen gewonnenen Eigenkapitals der DGCH für diesen Zweck vor.
Nach dem Tode Bernhard von Langenbecks 1887 beschloss die Berliner Medizinische Gesellschaft, ihn mit einem Denkmal zu ehren. Kaiserin Augusta regte jedoch an, von Langenbeck stattdessen mit einem mit seinem Namen verbundenen Gebäude zu ehren. Dem folgend entschloss sich die Berliner Medizinische Gesellschaft, sich der Deutschen Gesellschaft für Chirurgie anzuschließen, und die eigenen Finanzmittel beizusteuern. Neben Geldspenden aus der Ärzteschaft und aus der Bevölkerung spendete das Kaiserhaus eine beträchtliche Summe. Die Berliner Medizinische Gesellschaft wurde als Teilmieterin gewonnen und verpflichtete sich zu einer Mindestmietdauer von 25 Jahren. Schulminister Gustav von Goßler stellte zum Preis von 240.000 Mark (kaufkraftbereinigt in heutiger Währung: rund 2,10 Millionen Euro) ein großes Grundstück auf dem Gelände der Königlich-Chirurgischen Klinik in der Ziegelstraße 11 zur Verfügung, sodass nach den Plänen des beauftragten Architekten Ernst Schmid bald mit dem Bau begonnen werden konnte.[6] Nach der Grundsteinlegung am 9. April 1891 konnte das Langenbeck-Haus bereits am 8. Juni 1892 anlässlich des 21. Kongresses der Deutschen Gesellschaft für Chirurgie (DGCH) eingeweiht werden. Die DGCH wurde somit zur ersten wissenschaftlichen Gesellschaft Deutschlands, die ein eigenes Heim besaß.[2] Die Baukosten beliefen sich auf 325.000 Mark, wovon allein 25.000 Mark für die Stabilisierung der Ufermauer aufgebracht wurden.
Die symbolische Bedeutung eines eigenen Vereinsheimes umschrieb der für die DGCH baubevollmächtigte Ernst von Bergmann in seiner Rede zur feierlichen Eröffnung des Langenbeck-Hauses:
„Es ist hier […] ein ständiges Heim geschaffen worden, Haus, Hof und Habe, ein gesicherter, seiner weiteren Entwicklung und Entfaltung fähiger und würdiger Besitz. Für einen Stand ist nichts so bedeutend, als daß er feststeht, und wo steht es sich fester als auf eigenem, freier Selbstbestimmung übergebenem Boden?“
Das Gebäude entwickelte sich rasch auch zu einem Versammlungsort auch für andere Medizinische Fachgesellschaften,[7] die dort ihre Tagungen und Sitzungen abhalten konnten.
Das Langenbeck-Haus


Im Langenbeck-Haus waren die Deutsche Gesellschaft für Chirurgie und die Berliner Medizinische Gesellschaft zunächst gut untergebracht. Es handelte sich um ein dreigeschossiges Gebäude mit 1000 m² bebauter Grundfläche,[8] das direkt am Spreeufer zwischen der Weidendammer Brücke und der Ebertbrücke stand. Der Eingang war von der Ziegelstraße her und führte über den Hof der Königlich Chirurgischen Klinik. Von einer breiten Flurhalle im Erdgeschoss, an deren rechten Längsseite sich ein Garderobenbereich befand, führte eine Treppe zu einer Wandelhalle im ersten Obergeschoss, in der zu Ehren der zwischenzeitlich verstorbenen Förderin in einer Nische eine Büste der Kaiserin Augusta aufgestellt wurde. In einer weiteren Nische auf der Hofseite der Halle befand sich ein eigens geschaffenes Gemälde des Malers Ismael Gentz mit dem Titel Die Begründer der Deutschen Gesellschaft für Chirurgie, das anlässlich des 23. Chirurgenkongresses von 18. bis 24. April 1894 durch Friedrich von Esmarch enthüllt wurde. In der Wandelhalle fanden sich weitere Büsten von großen deutschen Chirurgen wie Theodor Billroth, Richard von Volkmann oder Heinrich Adolf von Bardeleben. Über drei Flügeltüren gab es einen Zugang zum großen zentralen Auditorium, das 548 Sitz- und 200 Stehplätze bot und sich bei einer Länge von 18 Metern und einer Tiefe von 20 Metern über alle drei Geschosse erstreckte. Das Auditorium erhielt durch das von einer Stichkappen-Voute getragene Oberlicht Tageslicht. Außerdem beleuchteten vier Bogenlampen und zusätzliche Glühlichter den Saal. Die elektrische Beleuchtung war an das städtische Elektrizitätsnetz angeschlossen.
Auf Ebene des Hauptgeschosses war noch ein zweiter kleinerer Sitzungssaal vorhanden, der zur Hofseite des Hauses lag. Darüber war, über eine Treppe erreichbar, ein etwa gleich großer Präparatesaal angeordnet. Im Hauptgeschoss befand sich auf der Spree-Seite ein mittels eines Bücheraufzugs mit der darüber liegenden, etwa 25.000 Fachbücher fassenden Bibliothek verbundener Lesesaal.[9] Diese vier Räume waren rund 17 Meter lang und 7 Meter tief.[8] Im Erdgeschoss befanden sich neben je einer Wohnung für den Bibliothekar und den Hauswart noch ein Zimmer für den Präsidenten der Deutschen Gesellschaft für Chirurgie sowie ein Warteraum für Patienten, die im Auditorium vorgestellt werden sollten.
Im Kellergeschoss war die Zentralheizung untergebracht. Das Auditorium und die Wandelhalle im Hauptgeschoss wurden mittels einer Warmluftheizung mit einer Umwälzleistung von 15.400 m³/h beheizt. Die übrigen Räume wurden mittels einer Heißwasser-Mitteldruckheizung erwärmt. Lediglich die Wohnungen sowie das Präsidentenzimmer waren mit Kachelöfen ausgestattet.[6]
Das Langenbeck-Virchow-Haus
Eine neue Heimat wird gesucht
- Bauzeichnungen des Langenbeck-Virchow-Hauses
-
Frontansichtszeichnung des Langenbeck-Virchow-Hauses aus der Baubeschreibung des Architekten Hermann Dernburg -
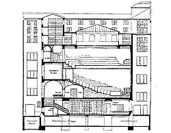
Längsschnittzeichnung des Langenbeck-Virchow-Hauses, links ist die Straßenfront, rechts die Hofseite des Gebäudes -
Querschnittszeichnung des Langenbeck-Virchow-Hauses -
Grundriss des Erdgeschosses und des Hofbereiches -
Grundriss des Ersten Obergeschosses -
Grundriss des Zweiten Obergeschosses
Diente das alte Langenbeck-Haus in der Ziegelstraße der Deutschen Gesellschaft für Chirurgie (DGCH) und der Berliner Medizinischen Gesellschaft zunächst noch gut, so wurde in den folgenden Jahren aufgrund steigender Mitgliedszahlen sowie dem Bedürfnis nach modernerer Technik der Ruf nach einer Veränderung immer lauter. So hatte sich allein die Mitgliederzahl der DGCH zwischen 1902 und 1910 vervierfacht. Auch bestand der Wunsch nach moderner Seminar- und Kongresstechnik sowie Demonstrationsapparaten.
Aufgrund der räumlichen Beschaffenheit und Enge des Grundstückes in der Ziegelstraße 11 war ein sinnvoller Um- oder Neubau vor Ort nicht möglich. Für einen kompletten Neubau fehlten der DGCH aber zunächst die finanziellen Mittel. Das derzeitige Barvermögen belief sich auf etwa 295.000 Mark.
Zur selben Zeit plante die Berliner Medizinische Gesellschaft den Bau eines eigenen Gesellschaftssitzes, das dem Andenken an ihren langjährigen Vorsitzenden Rudolf Virchow dienen und Virchow-Haus heißen sollte. Hierzu stellte die Stadt Berlin eine Summe von knapp 396.000 Mark zur Verfügung, eine zugesagte – zu vier Prozent verzinsliche – Anleihe über eine Million Mark sowie einen jährlichen Zuschuss von 10.000 Mark. Zusätzlich gab es eine Schenkung von den Berliner Verlegern Rudolf Mosse und Albert Aber[3] in Höhe von 100.000 Mark, die an diesen Zweck gebunden war. Allerdings waren auch diese Mittel zu knapp bemessen. Hinzu kam der Umstand, dass man noch auf mehrere Jahre als Mieter im Langenbeck-Haus gebunden war. Dies führte allmählich bei beiden Gesellschaften zu Überlegungen, ein gemeinsames Haus unter dem Namen Langenbeck-Virchow-Haus zu errichten und die Kosten zu teilen. Zu diesem Zweck wurde von beiden Gesellschaften die Langenbeck-Virchow-Haus GbR gegründet. Die Geschäftsführer der gemischten Bau- und Verwaltungskommission waren für die Deutsche Gesellschaft für Chirurgie Werner Körte und für die Berliner Medizinische Gesellschaft Leopold Landau. Seitens der Berliner Medizinischen Gesellschaft musste zunächst eine Umwidmung der durch die Stadt Berlin zugesagten Anleihe über eine Million Mark erreicht werden, da diese an den Bau eines Virchow-Hauses gebunden gewesen war. Dies gelang, auch die privaten Spender Mosse und Aber gaben ihr Einverständnis für die Umwidmung ihrer Schenkungen. Die DGCH konnte anlässlich des 100. Geburtstags Bernhard von Langenbecks in einer Sammlung etwa 51.000 Mark für den Bau einnehmen. Durch jährliche Einnahmen von etwa 52.000 Mark wuchs das Vermögen der DGCH bis 1913 auf 475.000 Mark an. Der Verkauf des alten Langenbeck-Hauses an das Preußische Kultusministerium, das es zur Erweiterung der Chirurgischen Universitätsklinik verwendete, brachte weitere 500.000 Mark ein.[2]
Nach längerer Suche konnte 1910 das Grundstück Luisenstraße 58 zum Preis von 603.000 Mark erworben werden. Der Baukommission lagen sechs Bauplanentwürfe vor, die unter der fachlichen Beurteilung des Geheimen Oberbaurates Otto March ausgewertet wurden. Nach eingehender Prüfung wurde dem Entwurf des Regierungsbaumeisters Hermann Dernburg stattgegeben, der ihn zuvor den Wünschen der Deutschen Gesellschaft für Chirurgie angepasst hatte. Unter anderem war eine Erhöhung der Anzahl der Sitzplätze von 700 auf 900 sowie 200 zusätzliche Stehplätze im großen Sitzungssaal gewünscht worden.
Bauphase
Anfang 1914 wurden auf dem Baugrundstück in der Luisenstraße zunächst die noch vorhandenen baufälligen Gebäude abgerissen und anschließend mit dem Bau des Fundamentes begonnen. Anfangs schritt der Bau rasch voran, sodass bereits am 11. Juli 1914 das Richtfest gefeiert werden konnte.
Aufgrund des Ersten Weltkriegs verzögerte sich das Bauvorhaben ab August 1914, zumal zahlreiche Arbeiter und Handwerker und sogar der ausführende Architekt Hermann Dernburg zum Kriegsdienst einberufen wurden. Die Geschäftsführer der Langenbeck-Virchow-Haus GBR, Leopold Landau und Werner Körte konnten durch hohes Engagement und begünstigt durch Entgegenkommen von Militärbehörden und der Stadt Berlin erreichen, dass der Hausbau trotzdem fortschreiten konnte. Ab 1915 übernahm Friedrich Trendelenburg von Werner Körte für die Deutsche Gesellschaft für Chirurgie die Geschäftsführung der Langenbeck-Virchow-Haus GbR. Insbesondere Leopold Landau trieb mit dem stellvertretend für Dernburg beauftragten Architekten Wähnelt den Bau zügig weiter voran.
So konnten der Hausverwalter und die als Untermieter gewonnenen Firmen Siemens & Halske und Chemische Industrie Basel bereits im Februar 1915 einziehen. Nicht zuletzt wegen des noch anhaltenden Ersten Weltkriegs wurde das Haus am 1. August 1915 lediglich im Rahmen einer schlichten Einweihungsfeier den Gesellschaften übergeben.
„Möge das neue Haus als Wahrzeichen fortschreitender ärztlicher Kunst und Wissenschaft, zum Nutzen des Gemeinwohles, zum Ruhme der deutschen Ärzteschaft seinen Zweck erfüllen und den Namen der beiden großen Mediziner von Langenbeck und Virchow ein dauerndes und würdiges Denkmal bleiben!“
Das Langenbeck-Virchow-Haus




Das Langenbeck-Virchow-Haus zeigte sich mit deutlich großzügigerem Platzangebot als das alte Langenbeck-Haus. Die 33,90 Meter breite Fassade war in „Altberliner Putzcharakter antikisierender Form“[3] gestaltet. Es fanden sich zahlreiche Stuckarbeiten sowie Gesimse, die im neoklassizistischen Bebauungsstil der Nachbargebäude gehalten waren.[1] Das Gebäude hatte zwei seitliche je 5,80 Meter breite Risalite. In diesen fanden sich auf Höhe der zweiten Etage je eine Büste Bernhard von Langenbecks und Rudolf Virchows. Mittig in der Straßenfront war ein kleiner Eingang der Zugang zu einem eigenen Eingangsbereich für den an Siemens & Halske und die Chemische Industrie Basel vermieteten Trakt bot. Hier waren neben einem Empfangsbereich eine Treppe sowie ein Fahrstuhl zum Erreichen der oberen Geschosse. Vom ersten bis zum vierten Geschoss befanden sich vermietbare Räume mit einer Tiefe von 7,60 Meter, die sich über die ganze Straßenfront erstreckten. Über die beiden seitlichen Risalite hatte man zwei separate Eingänge mit Zugang zur großen Eingangs- und Garderobenhalle. Dieses Konzept der zwei getrennten Eingänge, die sich in einer gemeinsamen großen Eingangshalle vereinen, hatte Hermann Dernburg bewusst gewählt, um die Kooperation der beiden medizinischen Gesellschaften zu einem gemeinsamen Zweck zu versinnbildlichen.[3]
So fügte er seiner Baubeschreibung folgendes Gedicht bei:
Zwei Tore führen in die gleichen Hallen,
bescheiden, aber eindrucksvoll und weit,
Zwei Priesterscharen geben sie Geleit,
Die zum Altare einer Gottheit wallen.
Gebete nicht noch Glaubenssätze schallen,
Nicht ist Mysterien dieser Ort geweit.
Nein, kluger Kühnheit, hartem Meinungsstreit.
Nicht sinken Opfer, aber Schleier fallen.
Ein Dioskurenpaar ist aufgestellt,
Daß alten Zielen neue Bahn erkoren,
Daß alte Weisheit um- und neugeboren.
Von der Erfahrung heit’rem Licht erhellt,
Strömt Wissen, güte, Kraft aus jenen Toren,
Strömt Heilung in die Adern der Welt.
In seiner Eröffnungsrede zum 44. Jahreskongress der Deutschen Gesellschaft für Chirurgie merkte der Präsident der deutschen Gesellschaft für Chirurgie August Bier hierzu an:
„Und der andere der Dioskuren mit dem von Langenbeck das Denkmal teilt, ist Rudolf Virchow, einer der größten Forscher und Ärzte aller Zeiten. So ist dieses Haus zu vergleichen mit dem Goethe-Schiller-Denkmal in Weimar. Wie dort zwei Fürsten der Dichtkunst, so sind hier zwei Fürsten der Wissenschaft jeder für sich im Denkmal dargestellt und doch miteinander zu einem untrennbaren harmonischen Ganzen vereinigt.“
Von der großen Eingangshalle aus waren die Kleiderablage, ein Küchen- und Erfrischungsraum sowie ein Geschäftszimmer zu erreichen. Vom Küchenraum aus führten zwei kleine Lastenfahrstühle in die oberen Geschosse, die zur Versorgung der Vorstandsräume mit Erfrischungen und Speisen dienten, aber auch als Bücherfahrstühle genutzt wurden. Beiderseits der Kleiderablage befand sich je ein Treppenhaus mit Fahrstuhl. Gegenüber der Kleiderablage war eine großzügige dreiläufige T-Treppe, die zur Wandelhalle im ersten Obergeschoss führte. Auf dem dazugehörigen Podest war die Kaiserin-Augusta-Büste untergebracht, die zuvor schon im alten Langenbeck-Haus gestanden hatte.
Zentrales Element war der Große Hörsaal, der sich über drei Geschosse erstreckt. Er bot Sitzplätze für 900 Personen. Diese waren aufgeteilt in ein amphitheaterartiges Parkett mit 565 und eine Galerie mit 335 Sitzplätzen. In der Mitte des Amphitheaters befanden sich die Vorstandssitze mit einem dahinter befindlichen Rednerpult. Der große Hörsaal wurde bei einer Höhe von 13 Meter mit einer Länge von 24 Meter und einer Tiefe von 17 Meter als freier Raum ohne Stütze erstellt. Die Wände und Decken waren in weißem Holz mit vergoldeten Ornamenten gestaltet. Neben einem 200 m² großen verglasten Oberlicht dienten 18 Halbwattlampen der Beleuchtung. Der Saal war ausgestattet mit einem Epidiaskop und einem Cinématographeen. Eine technische Vorrichtung ermöglichte die Verdunklung des Oberlichtes für Lichtbildvorführungen.
Während die Räumlichkeiten straßenwärts des großen Auditoriums an Firmen vermietet waren, dienten die hofwärts gerichteten Räume den beiden Gesellschaften. Im ersten Obergeschoss befand sich im hinteren Gebäudeteil ein Vortragssaal mit 200 Sitzplätzen, der ebenfalls mit einem Epidiaskop und einem Kinematographen ausgestattet war. Es gab eine Tafel samt Projektionsflächen sowie eine Verdunkelungseinrichtung. Der mit Nussbaumholz verkleidete Saal besaß eine breite zum Hinterhof ausgerichtete Fensterfront. Dem kleinen Saal schlossen sich an ein Vorbereitungsraum mit Laboratoriumseinrichtung, das in Birkenholz gehaltene Vorstandszimmer nebst Sekretariat sowie zwei Wartezimmer für Patienten, deren Fälle in einem der Säle vorgestellt werden sollten. Vom dazugehörigen Flur aus gab es einen direkten Zugang zum Vorstandstisch und Rednerpult des großen Auditoriums.
Das zweite Obergeschoss beherbergte neben dem in Mahagoni getäfelten Vorstandzimmer einen Sitzungssaal mit 160 Sitzplätzen sowie dazugehörige Nebenräume. Hier war auch eine Telefonzentrale untergebracht. Daneben befand sich ein der Bibliothek zugehöriger Arbeitsraum. Zusätzlich befand sich hier ein 130 m² großer Lesesaal mit 25 Doppeltischen für bis zu 50 Besucher. Die schon im Langenbeck-Haus bestehende Bibliothek der Deutschen Gesellschaft für Chirurgie mit einem Umfang von 25.000 Bänden hatte ihren Platz im darüberliegenden Stockwerk gefunden und war hier deutlich erweitert worden. Sie umfasste nun 200.000 Bände.[6] Neben dem Lesesaal bildete die Bücherausgabe mit angeschlossenem Schreibmaschinenraum und den beiden Bücherfahrstühlen den Abschluss des Traktes.
Im gesamten Gebäude war Wert auf glatte und leicht zu reinigende Oberflächen gelegt worden, um „den in einem Heim der ärztlichen Wissenschaft so besonders berechtigten Ansprüchen der neuzeitlichen Hygiene Geltung zu verschaffen“ (Hermann Dernburg in: Baubeschreibung des Langenbeck-Virchow-Hauses).[3] Die auf allen Etagen vorhandenen Damen- und Herrentoiletten waren mit Boden- und Wandfliesen ausgestattet. Im gesamten Haus wurden Bodenbeläge aus Linoleum verwendet, lediglich die beiden Eingangsbereiche sowie die große Garderobenhalle im Erdgeschoss waren mit Kalkstein und Marmorplatten ausgestattet. Das Gebäude war mit einer Lüftungsanlage ausgestattet, die in allen Räumen für einen ständigen Luftwechsel sorgte. Die Beheizung erfolgte mittels einer Warmwasser-Heizung, die in den Hörsälen mit der Lüftungsanlage gekoppelt war und die frische Zuluft vorwärmte. Im gesamten Haus waren Telefonleitungen sowie moderne, dem Stand der damaligen Technik entsprechende Signaltechnik zur internen Kommunikation verlegt.[3]
Zwischen den Kriegen
Während die Berliner Medizinische Gesellschaft bereits am 20. Oktober 1915 erstmals im Langenbeck-Virchow-Haus tagte, konnte die Deutsche Gesellschaft für Chirurgie das Gebäude erst am 7. April 1920 anlässlich des 44. Chirurgenkongresses einweihen. August Bier widmete das Haus dem Andenken von Langenbecks und wünschte:
„Möge von Langenbeck’s Geist miteinziehen in dieses Haus, das ist der Geist wahrer Wissenschaft, vollendeter ärztlicher Kunst, treuer Pflichterfüllung, Vornehmheit, Ehrlichkeit, Bescheidenheit und Menschenfreundlichkeit.“
In seiner Eröffnungsrede begegnete der Präsident der Deutschen Gesellschaft für Chirurgie August Bier Bedenken einiger Gesellschafts-Mitglieder bezüglich der neuen Besitzkonstellation mit der Berliner Medizinischen Gesellschaft als gleichberechtigtem Mitinhaber:
„Nur in einem Punkte, könnte man glauben, hätten wir uns verschlechtert: das alte Langenbeck-Haus gehörte uns allein, wir waren die einzigen Herren im Hause und die Berliner Medizinische gesellschaft wohnte bei uns zur Miete, jetzt teilen wir uns mit der letzteren den Besitz. […] Solange ein Langenbeck-Haus besteht, also seit dem Jahre 1892, haben wir in Wirklichkeit in derselben engen Beziehung zur Berliner Medizinischen Gesellschaft gestanden, ohne daß es jemals zu Streitigkeiten oder Mißverständen gekommen wäre.“
Zwischen 1920 und 1940 versammelte sich die Deutsche Gesellschaft für Chirurgie regelmäßig zu ihrem Jahreskongress im Langenbeck-Virchow-Haus. Auch andere Gesellschaften nutzten das Haus als Tagungsort.[10] Aufgrund der Inflationskrise der 1920er Jahre geriet die Langenbeck-Virchow-Haus-Gesellschaft in finanzielle Schwierigkeiten, die sogar einen Verkauf des Hauses notwendig zu machen drohten. In dieser Situation sprang die Firma Siemens & Halske als langjähriger Mieter in die Bresche und übernahm das Haus für zehn Jahre in Pacht. Der Leiter des medizinisch-technischen Büros bei Siemens, Georg Mylius, übernahm die Funktion des Verwalters. Hierbei erwarb er sich ein so großes Vertrauen, dass er auch nach Überstehen der wirtschaftlich schwierigen Zeit die Verwaltung des Langenbeck-Virchow-Hauses fortführte und sogar in dem Haus wohnte. Zusätzlich hatte er über lange Jahre die Position des Geschäftsführers und des Schatzmeisters der Berliner Medizinischen Gesellschaft inne.
Nach Beginn des Zweiten Weltkriegs fand der letzte Chirurgenkongress im Langenbeck-Virchow-Haus 1940 statt.
Nachkriegszeit




Während des Zweiten Weltkriegs war das Gebäude weitgehend unbeschadet geblieben. Nach 1945 wurde es zunächst von den sowjetischen Militärbehörden annektiert. Die Inneneinrichtung mit Gemälden aber auch Mobiliar und Technik wurde ein Beuteopfer. Die weit über 200.000 Bände umfassende Bibliothek wurde ebenfalls beschlagnahmt und abtransportiert. Ihr Verbleib ist bis heute unbekannt. Georg Mylius, der bereits unmittelbar nach dem Zusammenbruch durch das Hauptgesundheitsamt Berlin als treuhänderischer Verwalter für das Langenbeck-Virchow-Haus eingesetzt worden war, gelang es, die Erlaubnis zum Abtransport von 15 der im Langenbeck-Virchow-Haus ausgestellten Porträtbüsten zu erwirken. Diese blieben lange Zeit verschollen, bis durch einen Zufall am 6. Februar 1983 bei Umbauarbeiten in der Charité elf der Büsten hinter einer Mauer in einem ehemaligen Leichenraum gefunden wurden.[2]
Die sowjetischen Militärbehörden verwendeten das Langenbeck-Virchow-Haus zunächst für eigene Zwecke und führten hierfür einige Umbauarbeiten durch. Im November 1949 wurde das Gebäude schließlich den Behörden der neugegründeten DDR übergeben. Der Langenbeck-Virchow-Haus-Gesellschaft wurden die durch die Sowjets getätigten Umbauten mit 700.000 DDR-Mark in Rechnung gestellt. Aufgrund der politischen Umstände schloss man gezwungenermaßen am 25. April 1950 einen Pachtvertrag mit der Regierung der DDR, der zunächst für fünf Jahre gelten sollte. Da das Langenbeck-Virchow-Haus zunächst das einzige funktionsfähig gebliebene Auditorium im Berliner Osten war, tagte ab dem 8. November 1950 die Volkskammer der DDR hier. Das Gebäude wurde in Haus der Volkskammer umbenannt.
Am 1. Februar 1953 erfolgte im Rahmen der Aufbauverordnung der DDR die Enteignung der Langenbeck-Virchow-Haus-Gesellschaft und die Überführung des Gebäudes in Volkseigentum. Die Eintragung ins Grundbuch erfolgte als Eigentum des Volkes, Rechtsträger Sekretariat der Volkskammer. Eine Entschädigung wurde trotz mehrfacher Forderung der Langenbeck-Virchow-Haus-Gesellschaft bis in die 1960er Jahre nicht gezahlt. Auch die nach dem Gesetz notwendige schriftliche Zustimmung des Oberbürgermeisters von Berlin, Friedrich Ebert, fehlte.[2]
In die Zeit der Nutzung als Volkskammergebäude fielen unter anderem die erste und zweite Wiederwahl Wilhelm Piecks zum Präsidenten der DDR[11] sowie die Gründung der Nationalen Volksarmee der DDR am 18. Januar 1956.[12]
Ab 1976 tagte die Volkskammer der DDR im neuerbauten Palast der Republik und das Langenbeck-Virchow-Haus wurde an die Ost-Berliner Akademie der Künste übergeben. Der neue Hausherr benannte das große Auditorium in Konrad-Wolf-Saal um.[13]
Bereits zu DDR-Zeiten gab es vereinzelte Versuche, das Langenbeck-Virchow-Haus zurückzugewinnen. So schrieben unter anderem der damalige Direktor der Chirurgischen Universitätsklinik der Charité, Helmut Wolff und der Präsident der ostdeutschen Gesellschaft für Chirurgie, Richard Reding 1987 und 1988 an Erich Honecker, und warben um eine Rückübertragung des Langenbeck-Virchow-Hauses. Dies wurde mit Hinweis auf den noch bestehenden Platzbedarf für die Akademie der Künste abgelehnt.[2]
Kampf um die Rückübertragung
Nach der politischen Wende 1989 schien eine Rückübertragung des Langenbeck-Virchow-Hauses zunächst rasch erreichbar. So bot der Berliner Senat 1993 eine kurzfristige Rückübertragung des Hauses an die Langenbeck-Virchow-Haus-Gesellschaft an.[14] In Erwartung einer baldigen Rückübertragung wurden durch die Deutsche Gesellschaft für Chirurgie und die Berliner Medizinische Gesellschaft bereits konkrete Planungen für eine Sanierung und Renovierung des Gebäudes in Angriff genommen. Die hierfür notwendigen Mittel wurden auf etwa acht bis elf Millionen Mark geschätzt (kaufkraftbereinigt in heutiger Währung: rund 9,9 Millionen Euro).[2] Unerwartet wurde jedoch durch das Landesamt zur Regelung offener Vermögensfragen in Berlin die Rückübertragung mit der Begründung abgelehnt, dass die Enteignung nach der Aufbauverordnung rechtens gewesen und das Langenbeck-Virchow-Haus nun Volkseigentum sei. Die fehlende Entschädigungszahlung sowie die fehlende Unterschrift von Oberbürgermeister Friedrich Ebert junior wurde als „unbeachtlicher Verfahrensfehler“ abgetan.[2] Stattdessen wurde das Haus der Charité zur Nutzung überlassen.[15] Da man befürchtete, die Charité-Verwaltung könne versuchen, das Langenbeck-Haus unter Missachtung des Denkmalschutzaspektes für universitäre Zwecke umbauen lassen, bot man der Charité an, das Gebäude zurückzukaufen. In diesem Rahmen wurde auch eine gemeinsame Nutzung angeboten. Parallel dazu beschritt man den Klageweg.[16]
Die Charité-Verwaltung lehnte nach langen und zähen Verhandlungen jedoch einen Verkauf aufgrund von hohem Eigenbedarf ab und verfolgte stattdessen Pläne zum Umbau des Langenbeck-Virchow-Hauses zu einem Bibliothekszentrum. Unter anderem war geplant, trotz wiederholt geäußerter Denkmalschutz-Bedenken in das große Auditorium eine Zwischendecke einzuziehen, um einen bibliothekarischen Lesesaal zu schaffen.[2] Neben schwierigen Verhandlungen mit der Charité und der Stadt Berlin folgte seitens der Deutschen Gesellschaft für Chirurgie und der Berliner Medizinischen Gesellschaft eine Medienkampagne in Fach- und Tagespresse, um die Öffentlichkeit über die Situation zu informieren. Dies zeigte allmählich Wirkung, sodass schließlich der Berliner Innensenator Jörg Schönbohm äußerte, man räume der Rückführung des Langenbeck-Virchow-Hauses an die ursprünglichen Besitzer eine hohe Priorität ein.[17]
Während die Klage der Langenbeck-Virchow-Haus-Gesellschaft noch anhängig war, erreichte man in den Verhandlungen mit der Stadt Berlin sowie der Charité einen Durchbruch. So mietete der Berufsverband der Deutschen Chirurgen für sich und für die DGCH Büroräume im Langenbeck-Virchow-Haus von der Charité und sicherte Letzterer im Gegenzug zu, nach der zu erwartenden Rückübertragung des Hauses als Mieterin akzeptiert zu werden.[2] So konnte der BDC 1999 und die Deutsche Gesellschaft für Chirurgie 2000 in das Langenbeck-Virchow-Haus einziehen.[16]
Im Jahr 2003 urteilte das Verwaltungsgericht Berlin aufgrund zwischenzeitlich aufgetauchter Beweise, die belegten, dass das Langenbeck-Virchow-Haus wesentliche Umbauarbeiten zur Nutzung als Parlamentsgebäude bereits vor der Enteignung erfahren hatte, dass eine Rückübertragung an die Eigentümer erfolgen müsse.[18][19]
Wiederaufbau
Direkt nach der Rückübertragung erfolgten Ausschreibungen für die Modernisierung und den Wiederaufbau des Langenbeck-Virchow-Hauses. Unter anderem wurde ein Kooperationsvertrag mit der Firma Aesculap geschlossen, die im Langenbeck-Virchow-Haus eine Niederlassung eröffnete und es als Standort für die Aesculap-Akademie wählte. Nach der Ausschreibungsphase erfolgte der Baubeginn im August 2004. Nach einjähriger Bauzeit konnte das Gebäude am 31. August 2005 an die Deutsche Gesellschaft für Chirurgie und die Berliner Medizinische Gesellschaft übergeben werden. Die Einweihungsfeier fand am 1. Oktober 2005 statt.
Beim Umbau wurde auf eine weitgehend originalgetreue Restaurierung Wert gelegt, soweit Denkmalschutz und praktische Gesichtspunkte dies zuließen. Die heutige Nutzfläche des Gebäudes beträgt rund 7000 m².[4] Die Außenfassade ist im Gegensatz zum damaligen Originalputz mit glattem Putz versehen. Gesimse und Stuckverzierungen wurden nach dem klassischen Vorbild wiederhergestellt, ebenso die beiden in den Seitenrisaliten untergebrachten Eingänge des Gebäudes. Die während der DDR-Zeit abgetragenen Fassadennischen beherbergen nun wieder die Büsten von Bernhard von Langenbeck und Rudolf Virchow. Dazwischen wurde der Name des Hauses in der Schriftart Comic Sans angebracht. Der mittlere Eingang wurde in eine bodentiefe Fensterfront umgewandelt. Weitere Änderungen betrafen das Innere des Gebäudes. Der große Hörsaal wurde umgebaut und beherbergt jetzt 500 Sitzplätze, die mit moderner Seminar- und Kommunikationstechnik ausgestattet sind. Das ursprünglich vorhandene Oberlicht wurde durch eine optisch dem Original entsprechende Beleuchtungsanlage ersetzt. Dies war erforderlich, da die Nutzfläche des Dachgeschosses um rund 800 m² erweitert wurde, um Platz für Seminar-, Schulungs- und Operationsräume der hier untergebrachten Aesculap Akademie aufzunehmen.[20]
In den ehemaligen Bibliotheks- und Geschäftsräumen in den Obergeschossen befinden sich neben den Büros der im Langenbeck-Virchow-Haus beheimateten Gesellschaften und Organisationen weitere Seminarräume. Die nach 1950 dem damaligen Zeitgeist zum Opfer gefallene Innenausstattung und Wandvertäfelung in weißem Holz mit vergoldeten Verzierungen wurde denkmalgerecht wiederhergestellt. Die 1983 in der Charité wiederentdeckten Büsten wurden der Langenbeck-Virchow-Haus-Gesellschaft zurückübertragen und haben hier – ebenso wie das zwischenzeitlich zurückgegebene Gründergemälde von Ismael Gentz – ihren alten Platz wieder eingenommen.
Heutige Nutzung
Seit der Neueröffnung 2005 wird das Langenbeck-Virchow-Haus wieder im Sinne seiner ursprünglichen Bestimmung als Haus der Medizin genutzt. Es finden Tagungen, Seminare, Schulungen und Kongresse statt. Folgende Fachgesellschaften, Verbände, Stiftungen und Firmen haben im Langenbeck-Virchow-Haus einen Sitz:
- Aesculap Akademie GmbH
- Akademie der Unfallchirurgie
- Akademie für Chirurgische Weiterbildung und Praktische Fortbildung
- Arbeitsgemeinschaft der Niedergelassenen Gefäßchirurgen
- Arbeitsgemeinschaft der Wissenschaftlichen Medizinischen Fachgesellschaften
- BDC Service GmbH
- Berliner Chirurgische Gesellschaft – Vereinigung der Chirurgen Berlins und Brandenburgs
- Berliner Medizinische Gesellschaft e. V.
- Berufsverband der Deutschen Chirurgen e. V.
- Deutsche Gesellschaft der Plastischen, Rekonstruktiven und Ästhetischen Chirurgen
- Deutsche Gesellschaft für Allgemein- und Viszeralchirurgie
- Deutsche Gesellschaft für Angiologie – Gesellschaft für Gefäßmedizin e. V.
- Deutsche Gesellschaft für Chirurgie e. V.
- Deutsche Gesellschaft für Gefäßchirurgie und Gefäßmedizin e. V.
- Deutsche Gesellschaft für Kinderchirurgie
- Deutsche Gesellschaft für Orthopädie und Orthopädische Chirurgie e. V.
- Deutsche Gesellschaft für Orthopädie und Unfallchirurgie
- Deutsche Gesellschaft für Thorax-, Herz- und Gefäßchirurgie
- Deutsche Gesellschaft für Thoraxchirurgie
- Deutsche Gesellschaft für Unfallchirurgie
- Deutsche Sektion der AO International
- Dr.-Friedrich-Sasse-Stiftung
- Koch-Metschnikow-Forum e. V.
- Konvent der Leitenden Krankenhauschirurgen
- Langenbeck-Virchow-Haus GbR
- Langenbeck-Virchow-Haus-Veranstaltungs GmbH
- Thieme Verlagsgruppe
- Van Dongen Stiftung
- Verband Biologie, Biowissenschaften und Biomedizin in Deutschland e. V. – VBIO
- Verband leitender Orthopäden und Unfallchirurgen e. V.
- Wolfgang-Müller-Osten-Stiftung
Literatur
- Hans-Jürgen Peiper: Das Langenbeck-Virchow-Haus im Spiegel der Geschichte der Deutschen Gesellschaft für Chirurgie. Einhorn-Presse Verlag, Reinbek 2001, ISBN 3-88756-821-4.
- Leopold Landau: Das Langenbeck-Virchow-Haus. Verlag Hirschwald, Berlin 1916, DNB 361127103.
Weblinks
Einzelnachweise und Quellen
- ↑ a b c Baudenkmal Luisenstraße 58-59, Langenbeck-Virchow-Haus, 1914–15 von Hermann Dernburg, Umbau 1950 von Hanns Hopp
- ↑ a b c d e f g h i j k l m n o Hans-Jürgen Peiper: Das Langenbeck-Virchow-Haus im Spiegel der Geschichte der Deutschen Gesellschaft für Chirurgie. Einhorn-Presse Verlag, 2001, ISBN 3-88756-821-4.
- ↑ a b c d e f g h Friedrich Schultze, Gustav Meyer: Das Langenbeck-Virchow-Haus in Berlin. In: Zentralblatt der Bauverwaltung Nr. 65 35. Jahrgang Berlin, 14. August 1915 S. 426–429.
- ↑ a b Eva A. Richter-Kuhlmann; Martina Merten: Langenbeck-Virchow-Haus: Erneut zum Leben erweckt. Deutsches Ärzteblatt 2005, 102(43): A-2956 / B-2499 / C-2352.
- ↑ (Bilderstrecke). In: Berliner Architekturwelt. Nr. 11/12, Februar 1916, S. 383–389 (zlb.de – Einige historische Ansichten des Hauses: Außen und Innen sowie Grundrisse).
- ↑ a b c Detert, Ballenstedt: Architektur 1900. Band 1: Unterhaltung und Ertüchtigung (Theater, Zirkus, Panoramen, Saal-Bauten, Vereinshäuser, Sport-Anlagen). Welz Vermittlerverlag, Mannheim 2005, ISBN 3-938622-43-1.
- ↑ Chronik: Berlin im Jahr 1891. luise-berlin.de; abgerufen am 2. September 2012.
- ↑ a b Berliner Neubauten, 62. Das Langenbeck-Haus in Deutsche Bauzeitung, XXVI. Jahrgang. 8. Oktober 1892.
- ↑ L. Schumacher Verzeichnis der Büchersammlung der deutschen Gesellschaft für Chirurgie Berlin 1904.
- ↑ Bernhard Meyer: 22. November 1886 Gründung der Berliner Chirurgischen Gesellschaft. In: Berlinische Monatsschrift (Luisenstädtischer Bildungsverein). Heft 11, 2000, ISSN 0944-5560, S. 70–75 (luise-berlin.de).
- ↑ Wilhelm Pieck wird am 7. Oktober 1953 wiedergewählt. chroniknet.de; abgerufen am 12. September 2012
- ↑ Gesetz über die Schaffung der Nationalen Volksarmee und des Ministeriums für Nationale Verteidigung vom 18. Januar 1956 im Gesetzblatt der DDR, Teil I Nr. 8 vom 24. Januar 1956, S. 81 ff., ddrgbl.mkrst.net (PDF; 94 MB).
- ↑ Ohrfeige für jeden Goethe-Leser. In Berliner Zeitung, 2. Mai 1995
- ↑ Geschichte des Langenbeck-Virchow-Hauses auf der Internetpräsenz der Berliner Medizinischen Gesellschaft (abgerufen am 12. September 2012)
- ↑ Langenbeck-Virchow-Haus in Berlin: Chirurgen kämpfen um ihren Stammsitz. In: Deutsches Ärzteblatt, 1998, 95(45), S. A-2855 / B-2219 / C-2025.
- ↑ a b Chirurgie: Zurück in Berlin. In: Deutsches Ärzteblatt 2001; 98(11): A-654 / B-549 / C-525
- ↑ Das Langenbeck-Virchow-Haus in Berlin. In: Frankfurter Allgemeine Zeitung, 6. Mai 1998.
- ↑ Eva A. Richter-Kuhlmann; Martina Merten: Langenbeck-Virchow-Haus: Erneut zum Leben erweckt. In: Deutsches Ärzteblatt, 2005, 102(43), S. A-2956 / B-2499 / C-2352.
- ↑ H. J. Peiper: Das Schicksal des Langenbeck-Virchow-Hauses. Festvortrag zur Eröffnung des 120. Chirurgenkongresses 2003.
- ↑ Pressemappe anlässlich der Pressekonferenz zur Wiedereröffnung. ( des vom 8. Mai 2010 im Internet Archive; PDF; 932 kB) Info: Der Archivlink wurde automatisch eingesetzt und noch nicht geprüft. Bitte prüfe Original- und Archivlink gemäß Anleitung und entferne dann diesen Hinweis. langenbeck-virchow-haus.de; abgerufen am 19. September 2012.
