Park Klein-Glienicke
| Schlösser und Gärten von Potsdam und Berlin | |
|---|---|
| UNESCO-Welterbe
| |
![]() | |
| Vertragsstaat(en): | |
| Typ: | Kultur |
| Kriterien: | i,ii,iv |
| Referenz-Nr.: | 532 C
|
| UNESCO-Region: | Europa und Nordamerika |
| Geschichte der Einschreibung | |
| Einschreibung: | 1990 (Sitzung 12. Dezember 1990)
|
| Erweiterung: | 1992 und 1999 |


Der Park Klein-Glienicke, umgangssprachlich Glienicker Park genannt, ist ein öffentlich zugänglicher englischer Landschaftsgarten, der im äußersten Südwesten Berlins im Ortsteil Wannsee des Bezirks Steglitz-Zehlendorf liegt. Er ist Teil des UNESCO-Welterbes Schlösser und Parks von Potsdam und Berlin (Potsdamer Kulturlandschaft). Innerhalb derer gehört er neben Sanssouci, dem Neuen Garten, der Pfaueninsel und dem Park Babelsberg zu den fünf Stammparks.
Die etwa 116 ha[1] umfassende Anlage wurde als Potsdamer Sommersitz des Prinzen Carl von Preußen im 19. Jahrhundert gestaltet und ergänzte dessen Hauptresidenz, das Palais Prinz Carl am Berliner Wilhelmplatz. Gestalterischer Mittelpunkt ist die Schloss Glienicke genannte prinzliche Villa im Süden des Parks, heute als Museum zugänglich. Schloss, Nebengebäude und Pleasureground gehören zur Stiftung Preußische Schlösser und Gärten Berlin-Brandenburg. Der eigentliche Park untersteht dem bezirklichen Grünflächenamt Steglitz-Zehlendorf und der Böttcherbergpark der Berliner Landesforstverwaltung.
Benennung

Die offizielle historische Bezeichnung war ab 1824 Park des Prinzen Carl von Preußen, bzw. ab 1885 Park des Prinzen Friedrich Leopold von Preußen. Erst im 20. Jahrhundert bürgerten sich die geografischen Begriffe ein. Die heute oft als demokratisch missverstandene Benennung Volkspark Glienicke stammt aus diktatorischer Zeit. Nachdem die Stadt Berlin den Park 1934 erworben hatte, sollte der programmatische Name verdeutlichen, dass die nationalsozialistische Politik der Stadt den Park geschenkt hatte. Da es sich beim Schloss Glienicke nicht um eine fürstliche Residenz handelte, ist die Gesamtanlage auch nicht als Schlosspark zu bezeichnen.
Vorgeschichte

Das kirch- und kruglose Dorf Klein-Glienicke, 1375[2] erstmals urkundlich im Landbuch Kaiser Karls IV. erwähnt, war im Westen des Glienickschen Werders an der Landenge zwischen Griebnitzsee und Glienicker Lake angelegt worden. Infolge des Dreißigjährigen Krieges wurde das Dorf wüst. Nur mühsam gelang in späteren Jahrzehnten eine Neubesiedelung mit Kolonisten.[3]
Neben der unbewohnten Dorfstelle wurde 1682 unter dem Großen Kurfürsten Friedrich Wilhelm ein Jagdschloss erbaut. Es bestand aus einem einfachen kubischen Wohnbau und zwei seitlichen Wirtschaftsgebäuden, die einen bescheidenen Ehrenhof bildeten. Ein Garten wurde als Rechteck inmitten sumpfiger Schwemmgebiete der Havel angelegt und mit vier Karpfenteichen versehen.

Die Dorfstelle wurde umstrukturiert, indem eine vierreihige, vom Schloss auf den Griebnitzsee zielende Landschaftsallee angelegt wurde. Sie wurde nördlich von einem neu ausgehobenen Kanal flankiert, der Griebnitzsee und Glienicker Lake schiffbar miteinander verband und die alte Mündung der Teltower Bäke ersetzte. Zugehörig war damals das Gebiet des heutigen Babelsberger Parks als umfriedeter Wildpark. Im Norden lagen ein Baumgarten, ein alter Weinberg (heute Böttcherbergpark) und ein neuer Weinberg, wie dies die Karte von Samuel de Suchodolec überliefert.[4]
Bereits 1660 war eine erste hölzerne Glienicker Brücke errichtet worden, die aber noch keine direkte Verkehrsverbindung nach Berlin bedeutete, sondern nur nach Potsdam führte, bzw. über Stolpe einen Umweg nach Berlin über die erst später zum Königsweg ausgebaute Wegverbindung ermöglichte.
Unter König Friedrich Wilhelm I., dem so genannten Soldatenkönig, wurde das Jagdschloss 1715 zum Potsdamer Militärlazarett für zu separierende kranke Soldaten umgenutzt. Nördlich des Jagdschlossareals legte sich der Lazarett-Oberaufseher und Arzt Dr. Mirow ein Landgut an. Dieses bestand aus dem 1753 erbauten stattlichen Gutshaus, das umgangssprachlich bereits als Schloss bezeichnet wurde, einem kleinen Billardhaus am Jungfernsee, Wirtschaftsgebäuden, landwirtschaftlichen Nutzflächen sowie einer Ziegel- und Kalkbrennerei.
Durch den Bau der Berlin-Potsdamer Chaussee wurden die beiden Anlagen 1792 räumlich voneinander getrennt. Während das Jagdschloss im Folgenden durch Fehlnutzung zunächst zur Fabrik, dann zum Waisenhaus verkam, entwickelte sich die nördlich gelegene Gutsanlage sukzessive zu einer fürstlichen Parkanlage.
Beginn der Parkgestaltung unter Graf Lindenau

1796 übernahm der preußische Oberstallmeister Graf Carl von Lindenau für 23.000 Taler die Gutsanlage. Er hatte sich zuvor in Machern bei Leipzig einen überregional bekannt gewordenen Park angelegt und übertrug seine dort gewonnenen Erfahrungen auf Glienicke. Aus den bislang rein landwirtschaftlich genutzten Flächen wuchs eine ferme ornée (ornamental farm), bei der die Äcker und Weiden von 16 unterschiedlichen Alleen und ersten Landschaftsgartenpflanzungen eingefasst wurden.[5]

Lindenau ließ in Glienicke verschiedene Kleinarchitekturen bauen, vermutlich durch Ephraim Wolfgang Glasewald, der dem Oberstallmeister in Machern die Bauten geschaffen hatte. Hervorzuheben ist hierunter der „Gartensalon“ an der Stelle des heutigen Stibadiums, der seitlich von Treibhäusern eingefasst war. Der massive Pavillon wies elegante frühklassizistische Stilformen auf, sein Eingangsportal wurde von zwei Sphinxfiguren flankiert. In der Nähe wurde ein „Neugierde“ genannter Teepavillon an der Chaussee errichtet. Er besaß als besonderen Schmuck eine liegende Sphinx-Figur über dem Eingang. Das Billardhaus Dr. Mirows ließ Lindenau erweitern.
Außerdem entstanden Wirtschaftsgebäude, darunter ein Pferdestall, eine Getreidescheune, ein Gewächshaus, eine Laube, die Eisgrube und eine Schießwand. Die wohl wichtigste Einnahmequelle blieb die Ziegelei und Kalkbrennerei, die sich auf einer vergleichsweise kleinen Fläche von etwa 160 × 120 Metern erstreckte und einen neuen großen Ziegelschuppen erhielt. Aus Machern ließ Lindenau etwa 3000 Gehölze nach Glienicke verbringen.
1802 verkaufte Lindenau Machern und widmete sich in den folgenden Jahren intensiv dem Ausbau der Glienicker Anlagen. Mit der Niederlage Preußens unter den napoleonischen Truppen 1806 und der infolge der französischen Besetzung stagnierenden preußischen Wirtschaft geriet auch Lindenau in wirtschaftliche Schwierigkeiten. 1807 erhielt er zudem den Abschied aus dem Staatsdienst und sah sich genötigt, Glienicke zu verkaufen. Doch der Verkauf von Landgütern erwies sich seinerzeit als nahezu unmöglich. Nachdem sich die Idee, Glienicke in einer Lotterie auszuspielen, als nicht umsetzbar erwiesen hatte, verpachtete Lindenau zeitweise das stattliche Anwesen. Gleichzeitig bereitete er seine Übersiedelung auf sein Gut Büssow (heute Buszów) in der Neumark vor.
Ausgestaltung Glienickes unter Fürst Hardenberg

Ab 1810 mietete der gerade vom König zum Staatskanzler berufene Karl August von Hardenberg das Anwesen. Glienicke wurde damit vom mächtigsten Politiker Preußens und seiner dritten Gemahlin Charlotte bewohnt. Zum Kauf aber konnte sich Hardenberg aufgrund seiner beständigen finanziellen Engpässe nicht entschließen. So musste er Glienicke Ende 1812 wieder räumen, nachdem der Kaufmann Rudolf Rosentreter für 20.000 Taler neuer Eigentümer geworden war.[6]

Dieser investierte in sein neues Anwesen bedeutende Mittel, so ließ er von Karl Friedrich Schinkel vor der Südfassade des Schlosses einen halbrunden Vorbau errichten und einen Gartensaal einrichten. Rosentreter war der erste, der den mittlerweile als Schöpfer von Schaubildern und Gemälden bekannten Schinkel, der aber noch nicht mit herausragenden Architekturen hervorgetreten war, in Glienicke beschäftigte.
1814 wurde Hardenberg von König Friedrich Wilhelm III. in den erblichen Fürstenstand erhoben und erhielt als Geschenk die Standesherrschaft über das Amt Quilitz, das in Neu-Hardenberg umbenannt wurde. Nun hatte Hardenberg die nötigen finanziellen Mittel, Glienicke zu erwerben, wobei Rosentreter ein Interesse an Veräußerung hatte und 34.500 Taler für das Gut erzielte. Neben seinem Berliner Stadtpalais am Dönhoffplatz, den Gütern Lichtenberg und Tempelberg, der Komturei Lietzen und der Standesherrschaft Neu-Hardenberg besaß der Staatskanzler nun auch einen Sommersitz bei Potsdam.
Hardenberg führte die Glienicker Anlagen zu einer ersten künstlerischen Blüte. Seit er 1798 von Ansbach nach Berlin versetzt worden war, kannte Hardenberg Schinkel. Jener hatte bereits um 1800 in Quilitz Bauten ausgeführt und nahm nun als 1810 berufener Preußischer Baubeamter eine teilweise Neuausstattung des Stadtpalais’ Hardenbergs vor. In Glienicke setzte Schinkel seine für Rosentreter begonnenen Umbauarbeiten des Schlosses fort. Möglicherweise hat Hardenberg auch darauf hingewirkt, dass der damalige Gärtnergeselle Peter Josef Lenné von Bonn nach Potsdam berufen wurde. Hardenberg führte Schinkel und Lenné in Glienicke zusammen und begründete damit eine äußerst fruchtbare Zusammenarbeit.


Glienicke erhielt auch einen eigenen Gärtner, den zuvor in Tempelberg tätigen Friedrich Schojan. Von Tempelberg ließ Hardenberg zahlreiche Gehölze zur Ausschmückung Glienickes überführen. 1816 beauftragte Hardenberg Peter Joseph Lenné mit einem Entwurf für die Glienicker Gartenanlagen. Der siebenundzwanzigjährige Lenné hatte sich kurz zuvor von Bonn aus auf eine Anstellung bei der königlichen Gartenintendantur in Potsdam beworben und war als Gärtnergehilfe auf Probe eingesetzt worden. Der Glienicker Garten war sein erster Privatauftrag. Er konnte Hardenberg vom Erwerb einer kleinen Büdnerstelle an der Berlin-Potsdamer Chaussee überzeugen und legte im Folgenden zwischen Schloss, Chaussee und Brückenwärterhaus einen Pleasureground im Sinne englischer Landschaftsgartenkunst an. Dieser Garten lag an einer landschaftlich prägenden Stelle der Potsdamer Umgegend, war von der Chaussee gut einsehbar und erlangte entsprechend viel Aufsehen. Aufgrund Hardenbergs gesellschaftlicher Stellung war dieser Garten natürlich auch der königlichen Familie, dem Adel und vielen Staatsdienern durch Besuche bekannt.[7]
Hardenberg ließ auch eine Kunstmühle zum Betrieb von Wasserspielen bauen. Die Ziegelei wurde allerdings weiter betrieben und dürfte, direkt an den Pleasureground angrenzend, einige Unruhe verbreitet haben. Im Norden seiner Besitzung ließ Hardenberg 1816 ein Familienhaus (Kleinmietshaus) mit vier Wohneinheiten errichten, das ein gutes Jahrzehnt später die Aufgabe eines Jägerhofs übernehmen sollte.

Schinkel plante nicht nur für Hardenberg, sondern seit 1820 auch für dessen Schwiegersohn, den begeisterten Gartengestalter Hermann von Pückler-Muskau. Entsprechend existierte hier eine künstlerische Verbindung, die sehr früh Einfluss auf die Glienicker Parkgestaltung nahm. 1822 besuchte John Adey Repton, Sohn und wichtigster Mitarbeiter Humphry Reptons den Fürsten Pückler in Muskau. Jener führte den englischen Gast auch nach Glienicke, wo beide wohl gut eine Woche weilten. Nach seiner Rückkehr in England entwarf Repton für eine Kundin einen „Hardenberg-Basket“, ein Rosenbeet in einem hölzernen Korb inmitten eines runden Blühpflanzenbeets. Diese Beetform erfreute sich anschließend einiger Beliebtheit und wurde auch von Pückler als vorbildlich veröffentlicht. Der Gartenhistoriker Seiler meint, Repton habe einen solchen Korb in Glienicke gesehen und als Vorbild genommen, zumal Glienicke damals gartenkünstlerisch weiter entwickelt war als Neu-Hardenberg. Demzufolge ging Glienicke mit dem „Hardenberg-Basket“ erstmals in die europäische Gartengeschichte ein.[8]
Im November 1822 starb Hardenberg unerwartet in Genua. Sein Sohn Christian Graf von Hardenberg-Reventlow plante Glienicke zu verkaufen. Offenbar wollte er das Gut aber an einen würdigen Käufer veräußern, denn die Verkaufsverhandlungen zogen sich über ein Jahr bis März 1824 hin. Der Käufer wurde Prinz Carl von Preußen. Wie genau es zustande kam, dass der drittgeborene Sohn des Königs, der noch nicht einmal verheiratet war, als erster Sohn des Königs einen eigenen Grundbesitz erhielt, ist bis heute nicht geklärt.[9] Er muss aber für alle Beteiligten als geeigneter Käufer für das fürstliche Anwesen angesehen worden sein, dessen Verkauf nun mittlerweile 50.000 Taler erzielte. Carl erwarb von Hardenbergs Erben ein modernes, wirtschaftlich voll funktionsfähiges Anwesen, das auch weitgehend modern möbliert und eingerichtet war und durch seine Gartenanlagen hervorstach.
Park des Prinzen Carl
Erste Gestaltung im 19. Jahrhundert

Prinz Carl erwarb die Anlage im Alter von zweiundzwanzig Jahren. Da er ein hohes Alter erreichte, konnte er Glienicke fast 60 Jahre ausgestalten und erweitern lassen. Zunächst schloss er bruchlos an die Gestaltungen Hardenbergs an. Der Gutsbetrieb wurde sukzessive zugunsten der entstehenden Parkanlage auf die für den Eigenbedarf notwendigen Einrichtungen (Milchwirtschaft und Schafherden zum Abweiden) reduziert. Die Ziegel- und Kalkbrennerei wurde 1826 gänzlich eingestellt.

Die Bauten entwarf weiterhin Schinkel, sie wurden von Ludwig Persius ausgeführt, der ab 1836 auch mit eigenen Entwürfen tätig werden konnte.[10] Nach Persius’ Tod 1845 übernahm Ferdinand von Arnim die Funktion des prinzlichen Hofbaumeisters. Nach dessen Tod 1866 beschäftigte Prinz Carl für die Bauten keinen bedeutenden Architekten mehr. Nun wurde Ernst Petzholtz tätig, ein im Villenbau erfolgreicher Potsdamer Maurermeister.
Die Gartenanlagen wurden zunächst von Lenné entworfen und bis 1853 durch Hofgärtner Friedrich Schojan[11] ausgeführt, den schon Hardenberg nach Glienicke geführt hatte. 1853–1896 fungierte der zuvor in Muskau tätige August Gieseler[12] als prinzlicher Hofgärtner. Für die Partie des Ufer-Höhenweges zog Prinz Carl den Landschaftsmaler August Wilhelm Ferdinand Schirmer hinzu. Auch Fürst Pückler beeinflusste die Glienicker Gartenanlage. Er widmete Prinz Carl 1834 seine „Andeutungen über Landschaftsgärtnerei“, ein in den folgenden Jahren weithin bekannt werdendes Buch zur Gartengestaltung, das Carl offenbar des Öfteren bei der Parkgestaltung zu Rate gezogen hat.

Seit der Jahrhundertmitte scheint Prinz Carl den Park nur noch nach eigenen Geschmacksvorstellungen gestaltet zu haben, wurde aber sicher durch Lenné bis zu dessen Tod 1866 weiter beraten. Über die Details der Parkgeschichte liegen heute allerdings nur sehr unzureichende Informationen vor, da fast sämtliche Pläne Lennés und der gesamte Briefwechsel zwischen Prinz Carl und Lenné verschollen sind.[13]

Der Park erreichte Anfang der 1860er Jahre seine endgültige Ausdehnung, letzte Um- und Neubauten entstanden Anfang der 1870er Jahre, also ein halbes Jahrhundert nach Übernahme des Parks. Als letztes Gebäude und heute streng genommen nicht mehr zum Park Klein-Glienicke gehörend, ließ Prinz Carl bis 1874 das stattliche Haus Glienicke (auch Restauration und Weisse Villa genannt) diagonal gegenüber dem Schloss an der Königstraße im spätklassizistischen Stil als Gästehaus errichten. (1975 wurde das Gebäude durch die DDR aufgrund von Grenzsicherungsmaßnahmen abgerissen.)[14] Bei der Parkgestaltung zeigte sich, dass Prinz Carl im Laufe der Zeit auch Moden nachlief und bereits zuvor Gestaltetes überformte. Außerdem verfiel auch er einem übermäßigen Respekt vor üppig wachsenden Bäumen, wandte nicht mehr den nötigen Schnitt an, so dass bereits zu Lebzeiten des Prinzen Sichtachsen zuwuchsen. Als ideale Phase des Glienicker Parks wird heute die Mitte des 19. Jahrhunderts angesehen, als die Pflanzungen der älteren westlichen Parkteile bereits voll entwickelt waren und die Parkerweiterungsflächen im Osten ihre grundlegende Gestaltung erfahren hatten.
Nach den wenigen überlieferten Parkplänen der Zeit Prinz Carls lassen sich vier Planungsphasen hervorheben:
- Ein von Lenné 1824 oder 1825 entworfener und von Schojan gefertigter Plan, der das Stammgrundstück zeigt, aber nur als Schwarz-Weiß-Foto überliefert ist.
- Zwei von Lenné 1830 und 1831 gezeichnete Erweiterungspläne, die zwar nicht verwirklicht wurden, aber dessen Intentionen verdeutlichen.
- Eine von Gustav Meyer 1845 nach Neuvermessung für eine Veröffentlichung gezeichnete Karte im Maßstab 1:2000. Dies ist der kartografisch exakteste und detailgetreueste Plan, der das Grundstück nach der großen Osterweiterung darstellt. Er liegt in einer zweiten Zeichnung im Maßstab 1:4.000 vor, die die eigentliche Druckvorlage sein sollte.
- Eine nach dem Lithografen „Kraatz-Plan“ benannte Karte von 1862, die in Farblithografien überliefert ist. Sie stellt den Park in der endgültigen Dimensionierung dar, ist sehr detailreich, aber nicht so exakt wie der Meyer-Plan. Dafür zeigt sie aber in vier kleinen Sonder-Karten den Schlosskomplex mit Löwenfontäne und Stibadium, das Hofgärtner- und Maschinenhaus, Casino und Klosterhof sowie das Jagdschloss mit seinen Nebengebäuden.
-
1. Parkplan (Original verschollen) des Stammgrundstücks (F. Schojan nach P. J. Lenné, 1824–1825) -
2a. Nicht ausgeführter Erweiterungsplan für den Glienicker Park (Peter Joseph Lenné, 1830) -
2b. Die projektierte, aber nicht erfolgte Erweiterung (P. J. Lenné, 1831) -
3a. Ausschnitt Neuvermessung 1845, gerade Linien=Wasserleitung, Punkte=Baumstämme, Wolken=Büsche (Gustav Meyer, 1845) -
3b. Parkplan nach der Erweiterung (Gustav Meyer, 1845, sog. Druckvorlage) -
4. Parkplan nach den letzten Erweiterungen (Leopold Kraatz, 1862), Handexemplar des Prinzen Carl mit seinen Nachträgen

Ab der Jahrhundertmitte wurde der Glienicker Park berühmt. Sowohl Gustav Meyer als auch Hermann Jäger fühlten sich bemüßigt, in ihren Gartenbüchern (s. u.) einen Abschnitt über den Glienicker Park zu verfassen und ihn damit in die bedeutendsten Parkanlagen überhaupt einzureihen. Und Heinrich Wagener schrieb 1882: „Klein-Glieneke, seit mehr als fünfzig Jahren das Wallfahrtsziel für Tausende, die sich an einer fast vollendeten Vereinigung der Kunst und der Natur erbauen wollen, gehört zu den Juwelen landschaftlicher Schöne der Mark Brandenburg.“[15]
Die erste wissenschaftliche Erfassung des Bau- und Kunstbestandes des Glienicker Parks erfolgte im Zuge der Erstellung des Inventars der Bau- und Kunstdenkmäler der Provinz Brandenburg.[16] Der Kunsthistoriker Rudolf Bergau bereiste dafür 1879–1881 die ganze Provinz, was der Regierungs-Baumeister A. Körner, der schließlich den Glienicke-Artikel verfasste, 1882 ergänzte, während Bergau erkrankt war. Bergau und/oder Körner erhielten ihre Informationen zu Glienicke also noch von Prinz Carl oder zumindest von Personen des prinzlichen Hofs zu Lebzeiten Prinz Carls. Die sehr umfänglichen Auflistungen der Ausstattung von Gartenhof, Neugierde, Casino und Klosterhof sind hier im Folgenden in den Anmerkungen aufgeführt. Sie beschreiben den Bestand kurz vor dem Tod Prinz Carls und zeigen, dass die Sammlungen derart angewachsen waren, dass die ursprüngliche Wohnnutzung der Räume in der Neugierde und im Casino nicht mehr möglich war.
Park nach dem Tod Prinz Carls

In seinem Testament hatte Prinz Carl festgelegt, dass die Erben jährlich 30.000 Mark für die Parkpflege aufzubringen hatten. Sein Sohn Prinz Friedrich Karl starb schon zwei Jahre nach seinem Vater im Jahre 1885. So wurde der zwanzigjährige Enkel Prinz Friedrich Leopold Erbe der Anlagen, zu denen er offenbar keine besonders emotionale Beziehung entwickelt hatte. Die Parkanlagen waren nun nicht mehr interessierten Besuchern zugänglich. Die mangelnde Pflege führte zum Verlust der Parkräume. Beispielsweise hatte Prinz Carl Gebüschgruppen aus Weißbuchen angelegt, die stets in Schnitt gehalten werden mussten. Sie wuchsen nun zu Bäumen hoch, die die Sichtachsen verschlossen.[17]
1889 ließ Prinz Friedrich Leopold durch Schlossbaumeister Albert Geyer das Jagdschloss und dessen Nebengebäude vollständig in Formen des süddeutschen Frühbarocks umbauen. Die Baugruppe war repräsentativ und hat(te) besonders durch den Zwiebelturm eine gewisse Gefälligkeit, stand aber in der Potsdamer Kulturlandschaft stilistisch ebenso isoliert dar, wie zuvor das neubarocke Schloss, das hier Prinz Carl ab 1859 für seinen Sohn Prinz Friedrich Karl hatte bauen lassen.

Nachdem sich der menschlich schwierige Prinz mit seiner Familie und seinem Cousin Kaiser Wilhelm II. überworfen hatte, zog er sich gänzlich ins Jagdschloss zurück. Den Jagdschlossgarten ließ er 1911 mit einer martialisch anmutenden Betonmauer umziehen, von der heute noch ein kleiner Abschnitt am Kurfürstentor erhalten ist.[18] Der mittlerweile als „Altes Schloss“ bezeichnete Schinkelbau, der Park und die Nebengebäude wurden kaum noch gepflegt. Da der Park nicht mehr öffentlich zugänglich war,[19] schwand er aus dem öffentlichen Bewusstsein.[20]
Der Sturz der Hohenzollernmonarchie 1918 und die spätere Überführung der Schlösser in staatliche Verwaltung betraf Glienicke nicht. Als Besitz einer Nebenlinie des ehemals regierenden Königshauses blieb es Eigentum des Prinzen. Dieser verzog aber nach Lugano in die Villa Favorita, wodurch die Glienicker Anlagen noch weniger gepflegt wurden.[21] Zum 1. Oktober 1920 wurde der Gutsbezirk Klein-Glienicke-Forst, der an das Potsdamer Stadtgebiet grenzte, nach Groß-Berlin eingemeindet, wo er Teil des 10. Verwaltungsbezirks „Zehlendorf“ wurde.
Prinz Friedrich Leopold nahm nun zahlreiche Kunstwerke aus dem „Alten Schloss“ und dem Pleasureground mit in die Schweiz, wo er sie zur Tilgung von Schulden veräußerte. Anfang 1931 ließ er verbliebenen Glienicker Kunstbesitz auf einer großen Auktion in Berlin versteigern. Der zugehörige Katalog ist entsprechend eine wichtige Quelle zur Ausstattung von Bauten und Garten.[22]
Schon zuvor hatte er begonnen, Parkteile zu veräußern. So kaufte der preußische Staat 1924 den Böttcherbergpark. Aus dem Jahr 1928 hat sich ein Bebauungsplan für den Böttcherberg in recht simpler Parzellierung erhalten, der aber glücklicherweise nicht verwirklicht wurde.[23] Die einst berühmte Parkanlage drohte in diesen Jahren regelrecht vernichtet zu werden. Laut Julier beabsichtigte der Prinz die gesamte Parkerweiterungsfläche von 1841 als Bauland zu veräußern, was ihm von Seiten des preußischen Staates untersagt wurde. Der Staat verlangte eine dauerhafte Erhaltung als Park, worauf der Prinz Schadensersatzforderungen an den Staat stellte. Aufgrund des Todes des Prinzen wurde der Rechtsstreit von der prinzlichen Familie nicht weiter verfolgt.[24]
Prinzenfriedhof

In gewisser Weise aber hing das Herz des Prinzen an Glienicke, denn dort hatte er anlässlich des Todes seines Sohnes Prinz Friedrich Karl jun., der 1917 im Krieg gefallen war, eine Familiengrabstätte anlegen lassen. Als Platz hatte er die Höhe über dem Großen Wiesengrund, westlich der Römischen Bank gewählt. Es wurde eine kreisrunde Senke ausgehoben, in der die Gräber radial entlang der Futtermauern angeordnet wurden. Prinz Friedrich Leopold fand hier 1931 die letzte Ruhestätte, seine von ihm vollkommen entfremdete Gattin Louise Sophie von Schleswig-Holstein-Sonderburg-Augustenburg († 1952) lehnte es ab, neben ihm beigesetzt zu werden. Die noch heute belegte Begräbnisstätte beeinträchtigt in ihrer Schlichtheit nicht den historischen Park, hat ihn aber auch nicht bereichert.[25]
Folgende Mitglieder des Hauses Hohenzollern sind im Prinzenfriedhof bestattet:
- Prinz Friedrich Karl jun. (1893–1917) – Sohn von Prinz Friedrich Leopold
- Prinzessin Viktoria Margarete (1890–1923) – Tochter von Prinz Friedrich Leopold
- Prinz Friedrich Sigismund (1891–1927) – Sohn von Prinz Friedrich Leopold
- Prinz Friedrich Leopold (1865–1931) – Sohn von Prinz Friedrich Karl sen.
- Prinzessin Marie Luise zu Schaumburg-Lippe (1897–1938) – Gemahlin von Prinz Friedrich Sigismund
- Prinz Wilhelm zu Schaumburg-Lippe (1912–1938) – Bruder von Prinzessin Marie Luise
- Prinzessin Marie Luise Reuß-Köstritz (1915–1985) – Tochter von Prinzessin Viktoria Margarete (1890–1923) und Prinz Heinrich XXXIII. Reuß-Köstritz
- Prinz Heinrich II Reuß-Köstritz (1916–1993) – Sohn von Prinzessin Viktoria Margarete (1890–1923) und Prinz Heinrich XXXIII. Reuß-Köstritz
- Prinz Friedrich Karl (1919–2006) – Sohn von Prinz Friedrich Sigismund
- Prinzessin Luise Viktoria (1917–2009) – Tochter von Prinz Friedrich Sigismund
Besitztum der Stadt Berlin
1934/35 erwarb die Stadt Berlin die Glienicker Anlagen mit Ausnahme des Schlosses und des Pleasuregrounds. Zuvor war auf den Vormund des minderjährigen Erben auf Betreiben des Staatskommissars Julius Lippert Druck zur Veräußerung ausgeübt und die Kaufsumme durch Konfiszierung des Vermögens von Herbert Gutmann bereitgestellt worden. Nur der etwa dreieckige Bereich zwischen Hofgärtnerhaus, Wirtschaftshof und Rotunde verblieb der prinzlichen Familie. Der Park wurde nun der Öffentlichkeit zugänglich gemacht und erhielt den Namen „Volkspark Glienicke“, womit Lippert verdeutlichen wollte, dass gewissermaßen er dem Volk ein Geschenk gemacht hatte. Der Bezug zur nationalsozialistischen Politik wurde noch dadurch unterstrichen, dass die feierliche Eröffnung anlässlich des Führergeburtstags vorgenommen wurde.[26]

Allerdings reservierte sich Lippert den Jägerhof und dessen Umgebung für das waidmännische Vergnügen. Der Jägerhof wurde innen zu einem modernen Jagdhaus umgebaut und stilistisch angepasst erweitert. Oberhalb des Jägerhofes wurde der Große Jagdschirm beseitigt und an seiner Stelle eine Bastion mit historischen Geschützen errichtet, von der Lippert gewissermaßen einen Feldherrenblick genießen konnte. Im Park wurden mit Ausnahme der sogenannten Einsiedelei sämtliche historische Holzarchitekturen beseitigt und die Knüppelholzbrücken durch moderne Kantholz-Konstruktionen ersetzt. Scheinbar Beschädigtes wurde repariert. So wurde die Teufelsbrücke sozusagen vervollständigt und damit ihres sentimentalen Charakters beraubt. Auch in das Wegesystem wurden Einschnitte vorgenommen.
Als in den 1930er Jahren der Kunsthistoriker Johannes Sievers den 1942 veröffentlichten Band „Bauten für den Prinzen Karl“ der Reihe „Karl Friedrich Schinkel Lebenswerk“ erarbeitete, fand er in Glienicke eine weitgehend geplünderte Anlage vor. Er erkannte das Gesamtkunstwerk und dokumentierte auch die Werke der hier nach Schinkel tätigen Architekten und Künstler. Sievers’ Beobachtungen sind die erste grundlegende wissenschaftliche Arbeit über Glienicke und heute eine wichtige Quelle, da im Folgenden ein umfängliches Zerstörungswerk einsetzte.
Julius Lippert übernahm nach Heinrich Sahms Rücktritt auch das Amt des Berliner Oberbürgermeisters unter dem Titel Stadtpräsident. Er erkor sich Glienicke als künftigen Amtssitz bzw. Dienstwohnung. Dazu sollten der südwestliche Parkteil als Garten dienen, die noch der prinzlichen Familie gehörten. Dieser Teil wurde 1938/39 von der Stadt Berlin erworben. Der bis dahin noch im Schinkel-Schloss wohnende Prinz Friedrich Leopold jun. führte daraufhin die verbliebenen Kunstwerke zum Gut Imlau im Salzburger Land, wohin er sich zurückzog.

Das Schloss sollte nun durch Dietrich Müller-Stüler zum Stadtpräsidenten-Amtssitz ausgebaut werden, wozu es nicht kam, vermutlich auch, da Lippert aufgrund einer Intrige Albert Speers im Juli 1940 sein Amt verlor. Was genau an Baumaßnahmen vorgenommen wurde, ist nicht mehr nachvollziehbar. An zerstörerischen Baumaßnahmen dieser Jahre ist der Abriss der Hälfte der Gewächshäuser zu vermelden, die einem Tennisplatz weichen musste.
Der künstlerische Wert der Parkanlage wurde damals völlig verkannt. Beim Ausbau der Berlin-Potsdamer Chaussee im Zuge der Reichsstraße 1 fielen große Mengen Abraum an. Ein erheblicher Teil dieser Erdmassen wurde der Einfachheit halber in den Jagdschlossgarten und den Pleasureground verkippt. Aus künstlerisch gestalteten Parkflächen wurden so banale Grünflächen, auf denen neue Wege die verbliebenen Bauten auf kürzester Strecke verbanden. Zudem wurde die Berlin-Potsdamer Chaussee zwischen den Parkanlagen von 11 bis 13 Meter Breite auf Kosten des Jagdschlossgartens auf 29 Meter erweitert.
Im Verlauf des Krieges diente das Schloss als Lazarett. Bei Kriegsende zogen sich schließlich deutsche Verbände auf der Insel Wannsee zusammen und sprengten alle Brücken, um sich mit der schon bis Zehlendorf vorgedrungenen Roten Armee einen sinnlosen Endkampf zu liefern. Dabei entstand erheblicher Schaden an den Gehölzen der Uferzone, und das Casino wurde bis auf die Grundmauern zerstört. Auch alle anderen Gebäude erhielten erhebliche Beschädigungen durch Artillerie-Kämpfe. Zu Anfang der sowjetischen Besatzungszeit erfolgte eine kurze Nutzung durch das Militär, wobei das Obergeschoss des Schinkelschlosses als Pferdestall genutzt wurde und die Räume weitere Schäden erlitten. Anschließend wurden die Glienicker Bauten von Metalldieben geplündert und durch Vandalismus weiter zerstört.
Wiederherstellung der Glienicker Anlagen

Nach Gedankenspielen der frühen Nachkriegszeit, den Glienicker Park zu einer wichtigen West-Berliner Sportstätte an der Grenze zur SBZ/DDR auszubauen und damit vollständig zu zerstören, setzte ein Umdenken ein, das Werk Schinkels und seiner Schüler zu bewahren. Das Schloss wurde 1950–1952 äußerlich im Wesentlichen nach Schinkels Intention wiederhergestellt, allerdings der Hofdamenflügel entkernt und verlängert, wodurch der Gartenhof in seinen Sichtbeziehungen empfindlich gestört wurde. Der große Pferdestall im Kavalierflügel wurde in kleine Zimmer unterteilt. Genutzt wurde das Schloss nun als Sportlererholungsheim. 1952 wurde der Park unter den Landschaftsschutz gestellt, ein wichtiger Schritt zur dauerhaften Erhaltung.[27]
Die Nebengebäude wurden sukzessive instand gesetzt. Das Casino stand noch jahrelang ohne Dach und wurde dann 1963 rekonstruierend unter Verwendung der Grundmauern faktisch neu gebaut. Architektonische Details der Bauten, die nicht wieder verbaut wurden, wurden in einem Lapidarium (lapis= lat. Der Stein) im Sockel des Wasserturms eingelagert. Der Parkbereich, der bis 1939 der prinzlichen Familie gehört hatte, war wie in der Vorkriegszeit nicht öffentlich zugänglich und entsprechend nicht im öffentlichen Bewusstsein präsent.

Zum 1. Januar 1966 wurden die Bauten des Pleasuregrounds der Verwaltung der Staatlichen Schlösser und Gärten Berlin unterstellt. Während sich Schlösserdirektorin Margarete Kühn mit ganzer Kraft für den Wiederaufbau des Charlottenburger Schlosses eingesetzt hatte, richtete ihr Nachfolger (1969) im Amt Martin Sperlich zunehmend seinen Blick auf die Glienicker Anlagen, die er als Gartenkunstwerk und nicht als Ansammlung von Schinkel-Bauten im Grünen verstand. In dem Vermessungsingenieur Michael Seiler fand er den am Glienicker Park interessierten Spezialisten, der wissenschaftliche Grundlagen zur Wiederherstellung des Gartens schuf und schließlich 1986 seine Dissertation über die gesamte Gartengeschichte Glienickes vorlegte.
Bereits 1978 war ein Referat für Gartendenkmalpflege beim Senator für Bau- und Wohnungswesen gebildet worden. Die Leitung übernahm der Gartenarchitekt und -historiker Klaus von Krosigk und baute das Referat zur funktionsfähigen Fachbehörde auf. Die somit institutionell entwickelte Berliner Gartendenkmalpflege legte neben dem Berliner Tiergarten ihren zweiten Schwerpunkt auf die Glienicker Anlagen. Im Folgenden fanden spektakuläre gartenarchäologische Grabungen im Bereich des Pleasuregrounds und im Jagdschlossgarten statt. Basierend auf den Grabungsergebnissen, die mit der kritischen Auswertung der historischen Parkpläne kombiniert wurden, konnte eine authentische Wiederherstellung erfolgen, die in Fachkreisen auch international Beachtung fand.[28]

Das Schinkeljahr 1981 brachte einen weiteren Schub an öffentlichem Interesse und öffentlichen Fördermitteln, so dass die Bauten in wichtigen Details ergänzt werden konnten und eine Rekonstruktion der Orangerie durchgeführt werden konnte. 1982 erfolgte der amtliche Eintrag als Baudenkmal bzw. Gartendenkmal der gesamten Anlagen. Während die Berliner Mauer einerseits durch den Abriss von Schweizerhäusern und der Restauration den Glienicker Anlagen Schaden zufügte, ermöglichte sie indirekt den Rückbau der Berlin-Potsdamer Chaussee auf nahezu die ursprüngliche Dimension.[29] Nach dem Mauerfall wäre dies kaum mehr möglich gewesen.
Sperlich war inzwischen der Kontakt zum Lebensgefährten des 1959 verstorbenen Prinzen Friedrich Leopold jun., Friedrich Baron Cerrini de Montevarchi, gelungen. Dieser vermachte testamentarisch die nach Imlau verbrachten Glienicker Kunstwerke der Schlösserverwaltung, darunter das als Quelle unschätzbare Journal über Glienicke.[30] Cerrini verstarb 1985; so konnte Sperlichs Nachfolger als Schlösserdirektor Jürgen Julier zur 750-Jahr-Feier Berlins 1987 das bis dahin von der Heimvolkshochschule genutzte Schloss als Schlossmuseum eröffnen. Gleichzeitig konnte in den von der Heimvolkshochschule neu bezogenen Nebengebäuden des Jagdschlosses eine Ausstellung zu diesem Parkbereich und die gerade wiederhergestellten Gartenanlagen erstmals besucht werden. Kurz zuvor war im Haus am Waldsee mit einer Ausstellung zum Jagdschloss Glienicke auf das Ereignis vorbereitet worden.[31]
Nach der Vereinigung der deutschen Staaten konnten die Schloss- und Parkanlagen der Potsdamer Kulturlandschaft zum 1. Januar 1991 in die Liste des Welterbes der UNESCO aufgenommen werden, was zuvor schon beantragt worden war, aber aufgrund der Grenzsperranlagen nicht möglich war. Bei der 1995 erfolgten Bildung der Stiftung Preußische Schlösser und Gärten Berlin-Brandenburg (SPSG) wurde Glienicke dauerhaft zum Schlossmuseum und bislang einzigem Hofgärtnermuseum bestimmt. Im Jahr 2000 konnte die SPSG die bis dahin vom Bezirksamt betreuten Gartenanlagen des Pleasuregrounds und der Schlossumgebung übernehmen, der Park aber verblieb beim Bezirksamt. Seit 1992 ist der Park außerdem Bestandteil des EU-Vogelschutzgebiets Westlicher Düppeler Forst.
Prinz Carl und seine Sammlungen

Prinz Carl war das mittlere der sieben Kinder des Königspaars. Königin Luise schätzte den 1801 geborenen Carl als ihr schönstes Kind ein. Der Bildhauer Christian Rauch bezeichnete ihn 1815 als „ein recht liebenswürdiger Bursche, schön und lebendig, mit viel männlicher Grazie“.[32] Bis in seine dreißiger Jahre war Carl ein sportlich aktiver und attraktiver Mann, dessen Antlitz dann allerdings rapide welkte.
Als Kind wird Carl als stets wohlgelaunt und witzig geschildert. Ausgelassenheit, Mut bei „Toberey“ mit seinen älteren Brüdern, Lust auf Scherze und Humor scheinen auffallende Charaktereigenschaften Carls gewesen zu sein. Auch seine überkommenen Briefe zeugen von Witz und Lust auf gelegentliche Albernheit. Allerdings fand dies seine Grenze bei Standesunterschieden. Seinen Lehrern verdeutlichte er entsprechend, dass nicht sie, sondern er Anweisungen zu geben hatte.[33] Ab der Jahrhundertmitte scheint Carls Humor angesichts der politischen Entwicklungen zunehmend geschwunden zu sein. In politischer Hinsicht verstand Prinz Carl niemals Spaß.
Zum Zeitpunkt des Todes seiner Mutter war er acht Jahre alt und wurde nun für zehn Jahre von Heinrich Menu von Minutoli erzogen, der den Jungen stark prägte. Minutoli beförderte besonders Carls Interesse an Altertümern und Antiquitäten und verhalf ihm zu einer guten Allgemeinbildung. Später hat er Prinz Carl den Erwerb des berühmten Goslarer Kaiserstuhls vermittelt.[34]
Prinz Carl verbrachte seine Kindheit weitgehend im Erdgeschoss des Berliner Prinzessinnenpalais. In dem dort Richtung Opernhaus gelegenen und ummauerten Garten legte der Prinz erste gärtnerische Beete und Pflanzungen an. So gewann er bereits als Kind erste Erfahrungen mit der Gartenkunst und baute die damals erworbenen Kenntnisse während seiner Jugendzeit aus.[35]
Ein auffallender Charakterzug Prinz Carls war seine Sammelleidenschaft, die er schon als Kind mit Mineralien entwickelt hatte. Später sammelte der Prinz Antike Kunst und die klassizistische Plastik seiner Zeit, byzantinische und mittelalterliche Kunst, Renaissance- und Barockkunst, Ostasiatica, Waffen, Geschütze und Jagdzeug, Kutschen und Boote, ja, Seiler hat darauf hingewiesen, dass selbst die zahllosen Findlinge, mit der Carl seine Parkanlage dekorierte, auch eine Art Sammlung darstellten, zumal er sie bis aus Westfalen herbeischaffte.[36]

Der junge Prinz Carl hatte ein ausgeprägtes Selbstbewusstsein, das gepaart war mit einem ausgesprochenen Standesbewusstsein und liebte früh Geselligkeiten. Beispielsweise lud er vierzehnjährig den um zwanzig Jahre älteren Schinkel zum Diner und besprach mit ihm dessen Projekt eines Nationaldoms. Carl hatte in jungen Jahren ein so einnehmendes Wesen, dass er 1818 auf dem Aachener Kongress sogleich die Zuneigung des Fürsten Pückler gewann. Doch ist zu Carls gesellschaftlichem Umgang eine zumeist zweckgebundene Freundlichkeit überliefert. Nur Andeutungen bestehen in der familiären Korrespondenz zu grenzlegalen Aktivitäten des Prinzen. Besonders uncharmant ist diesbezüglich das Urteil über Carl in einem vielzitierten Satz, den Friedrich Wilhelm IV. 1858 über die vier Brüder prägte: „Wenn wir als Söhne eines einfachen Beamten geboren worden wären, so wäre ich Architekt geworden, Wilhelm Unteroffizier, Carl wäre ins Zuchthaus gekommen und Albrecht ein Trinker geworden.“[37]

Als drittgeborener Sohn des Königs war Carls berufliche Funktion, die eines hohen Militärangehörigen, womit er sich nicht so stark identifizierte, wie sein älterer Bruder Wilhelm. Im Gegensatz zu diesem, der in der Familie den Ruf eines Liberalen hatte, war Carl politischer Vertrauter seines ältesten Bruders, des späteren Königs Friedrich Wilhelm IV. Beide waren sich einig in einer restaurativen Politik mit der alle demokratischen Entwicklungen unterbunden werden sollten. Entsprechend war Carls politisches Leitbild der Hof von St. Petersburg, an dem seine Schwester Charlotte seit 1817 residierte. Sie lud Carl erstmals 1820 nach St. Petersburg ein, wo er eine Hofhaltung und Regierung vorfand, wie er sie sich für Preußen gewünscht hätte. Dort konnte er auch moderne Landschaftsgärten studieren, wobei ihn der Park von Pawlowsk besonders faszinierte.
Mit Charlotte teilte Carl die Vorliebe für alles Englische. Da Prinz Carl neben seiner Parkmanie und seiner Jagdfreude einen Hang zu modischen Neuigkeiten hatte und in diesen Leidenschaften eine besonders ausgeprägte Anglophilie entwickelt hatte, bildete sich damals in der königlichen Familie sein Spitzname „Sir Charles Glienicke“, heraus, mit dem er gelegentlich auch Briefe unterzeichnete. Einig waren sich Carl und Charlotte aber in der Ablehnung britischer Politik. So ist Carl nie nach England gereist und kannte entsprechend die berühmten englischen Landschaftsgärten nur aus Veröffentlichungen.[38] 1825 wurde Carls Schwager Nikolai unerwartet Zar, womit Charlotte als Zarin Alexandra Feodorowna ihre Familie mit wahrhaft kaiserlichen Geschenken beglücken konnte. So erhielt auch Carl kostbare Geschenke, die er teilweise in den Glienicker Anlagen verbauen konnte. St. Petersburg blieb bis zu Charlottes Tod 1860 Carls bevorzugtes Reiseziel.

Am 15. September 1822 begann der König, begleitet von Prinz Wilhelm und dem einundzwanzigjährigen Prinz Carl eine Italienreise, die auch den Besuch des Kongresses von Verona beinhaltete, sonst aber inkognito erfolgte. Dem Kronprinzen wurde die begehrte Reise damals versagt. Dies war Carls erste große Reise und hat ihn entsprechend geprägt. Sie führte ihn vom niederrheinischen Xanthen den gesamten Flusslauf hinauf und weiter durch die Schweiz, wo er erstmals ein Hochgebirgserlebnis hatte.
Auf dem Kongress in Verona dürfte Carl zwangsläufig Staatskanzler von Hardenberg, den Leiter der preußischen Delegation, getroffen haben, nicht ahnend, dass dieser überraschend am 26. November sterben und dem Prinzen damit den Erwerb von Glienicke ermöglichen würde. In der Entourage des Königs befand sich auch Alexander von Humboldt, der sich gelegentlich als Cicerone für die königlichen Herrschaften betätigte. Die Reise führte weiter über Venedig nach Rom und weiter nach Neapel, wo man vier Wochen bei mildwinterlicher Witterung verbrachte und die Ausgrabungsstätten von Pompeji und Herculaneum besuchte.
Auch die Rückreise war reich an kulturellen Erlebnissen und führte über Florenz, Pisa, Genua, Mailand, Triest und dann wieder über die Alpen nach Innsbruck, Salzburg, Prag, Dresden, so dass man am 1. Februar 1823 wieder nach Berlin zurückkehrte.[39] Vermutlich hat diese Reise Carl stärker beeinflusst, als ihm selbst bewusst war. In leicht arrogantem Tonfall schrieb er damals angesichts der Beschwernisse der Reise durch das technisch noch rückständige Land an seinen Vater den bemerkenswerten Satz, man solle, um den Gefallen an Italien nicht zu verlieren, das Land nicht selbst ansehen, sondern in Bildern und Büchern studieren. Und mit dem Pleasureground und seinen Bauten schuf sich Carl ja gewissermaßen ein Stück Italien aus zweiter Hand. Erst ab den frühen 1840er Jahren unternahm Carl wieder einige Reisen nach Italien, nun in Begleitung der Familie. Diese Reisen dienten auch der Kontaktaufnahme mit Kunsthändlern und dem Kauf von Kunstwerken.

Ende 1826 hatte sich Prinz Carl mit Prinzessin Marie von Sachsen-Weimar-Eisenach verlobt. Zwecks Gründung eines Hausstandes wurde ihm daraufhin das Ordenspalais in Berlin zur Verfügung gestellt, in den beiden folgenden Jahren nach Schinkels Plänen vollständig neu gestaltet und zu Weihnachten 1828 bezogen. Auch in Glienicke wurden die Aus- und Umbauarbeiten am Schloss nun forciert. Nach der am 26. Mai 1827 im Schloss Charlottenburg gefeierten Hochzeit wurde Marie am 5. Juni vom König unter den Klängen von Militärmusik als neue (Mit-)Besitzerin von Glienicke eingeführt. Inwieweit die Prinzessin, die keinerlei Einfluss auf die Glienicker Gartenanlagen genommen hat, wenigstens noch die 1827 fertiggestellte Innenraumgestaltung des Schlosses mitbestimmt hat, ist unbekannt.
Obgleich es sich bei der Eheschließung zwischen Prinzessin Marie und Prinz Carl um eine Liebesheirat handelte, war beider Beziehung nur eine kurze Zeitspanne bemessen. Die Ehe hatte zwar bis zu Maries Tod fast fünfzig Jahre Bestand, doch lebten beide Ehepartner schon lange vor der Adoleszenz der Kinder jeweils ein Leben für sich. Die mit dieser Situation unzufriedene Prinzessin Marie erhielt in der königlichen Familie bald den nicht besonders mitfühlenden Spitznamen „Mutter Wehmut“. Erst im Alter fanden die beiden wieder zueinander.
Eine sehr große Leidenschaft des Prinzen war die Jagd. Er ist dieser Passion sein ganzes Leben nachgegangen und hat in Preußen die Parforcejagd wieder eingeführt. Jagdliche Anlagen in Glienicke waren also keine Dekoration. Prinz Carls historische Jagdzeugsammlung war aber nicht in Glienicke, sondern im Stadtpalais untergebracht und befindet sich heute im Jagdschloss Grunewald. Unbekannt, da unerforscht ist bislang, wo und wie der Prinz in Glienicke Jagdtrophäen präsentierte. Es ist anzunehmen, dass er dies auf effektvolle Weise getan hat und nicht wie sein Sohn im Jagdschloss Dreilinden in Massen an den Wänden arrangierte.[40]

Einen besonderen Spleen leistete sich Prinz Carl mit einem Hofmohren. Es handelte sich dabei um einen schwarzhäutigen Hofangestellten, der „Achmed“ benannt war und in exotisch anmutendem orientalischem Kostüm dem prinzlichen Hof als Erkennungszeichen diente. Carl war nämlich der einzige preußische Prinz, der auf diese Mode des 18. Jahrhunderts zurückgriff. Als der erste durch einen neuen Mohren ersetzt wurde, erhielt dieser abermals den Namen „Achmed“, was nicht unbedingt auf großes prinzliches Interesse an dessen Persönlichkeit schließen lässt.
Für die Baukunst hatte Prinz Carl stets ein reges Interesse gehegt, allerdings ohne wie sein älterer Bruder Friedrich Wilhelm selbst zu entwerfen. Er studierte die Baukunst auf seinen Reisen und entwickelte mit seinen Architekten wohl im Gespräch die Bauwünsche. Beim Klosterhof hat Carl sich geäußert, er sei nach seinen Angaben entstanden, ohne dass auch nur eine Entwurfsskizze vorläge. Der prägende Baukünstler in Glienicke aber war Schinkel, dessen Werdegang und Werkentwicklung Carl seit seiner Jugend verfolgte. Zu Schinkel hatte der Prinz ein respektvolles Verhältnis, während mit Persius, v. Arnim und Petzholtz – soweit Journaleintragungen und Korrespondenz zeigen – ein mehr untertäniger Umgang gepflegt wurde.

„Mit keiner seiner Schöpfungen ist Schinkel in so persönlicher Beziehung verblieben, lange, nachdem seine eigentliche Arbeit in der Hauptsache dort abgeschlossen war, wie mit Glienicke, das durch den Ausbau seiner Sammlungen in gewissem Sinne nie fertig wurde, weshalb sein Rat immer aufs neue erwünscht erschien. Daß dem so war lag sicher nicht zum wenigsten an der von echter Kunstbegeisterung erfüllten Persönlichkeit des prinzlichen Bauherrn, der es vermocht hatte, die besten Männer, die in Berlin auf dem Gebiet der Kunst tätig waren, in den Dienst seiner Arbeit zu stellen. Aus diesem Zusammenwirken von Bauherren und Künstler entstand Glienicke, einzig in seiner Art als Sommersitz eines fürstlichen Sammlers und Kunstfreundes innerhalb des 19. Jahrhunderts.“[41]
Da sich Prinz Carl aber für die Baukunst interessierte, verharrte er nach Schinkels Tod nicht in dessen Architektursprache. Vielmehr wandte er sich neuen Architekturmoden, wie der Neorenaissance zu. Sehr bemerkenswert ist diesbezüglich der Neubarock des Jagdschlossbaus ab 1859. Dass das von Schinkel entworfene Schloss und die Nebengebäude aber äußerlich fast unverändert blieben, zeugt vom Respekt des Prinzen Carl vor Schinkels Werk.
Carls überaus intensiv betriebene Parkgestaltungen und seine Sammelleidenschaft waren zum einen ein Ausgleich zu den beruflichen Verpflichtungen, zum anderen waren sie eine Kompensation der eigenen politischen Bedeutungslosigkeit. Prinz Carls Kunstsammlungen und ihre Aufstellung im Park waren sicher auch der Versuch, die eigene zeitlich begrenzte und historisch unbedeutende Lebensspanne aufzuwerten, in dem sie in Glienicke in einen größeren, gewissermaßen überzeitlichen Rahmen gestellt wurde.
Helmut Börsch-Supan hat 1987 darauf hingewiesen, dass Carls Neigung das Antiquarische und nicht das Künstlerische gewesen sei.[42] Es fehlt bei genauerer Betrachtung eine eigentliche Kunstsammlung. Gemälde wurden eher als Gelegenheit, nicht planmäßig erworben. Zudem waren die angekauften Gemälde überwiegend gängige Ware, während die seinerzeit bedeutende zeitgenössische Kunst, wie Gemälde von Caspar David Friedrich, Karl Blechen oder Adolph von Menzel offenbar vollkommen außer Betracht blieb. Dies ist bemerkenswert angesichts der damals vom König und vom Kronprinzen getätigten Ankäufe für die Schlösser und das 1830 eröffnete Museum in Berlin.
Prinz Carl erwarb auch keine modernen Bildwerke, vielmehr wurden Wiederholungen von bereits für andere Orte geschaffene Plastiken aufgestellt. Beispielsweise die Figuren Tiecks für den Teesalon im Berliner Schloss oder Dankbergs Knabe für die Froschfontäne in Sanssouci. Hier fehlte dem Sammler offenbar der tiefere Kunstverstand. Vielleicht korrespondiert dieses mit Carls großer Musikalität. Mit ihr hat der Prinz gerne unterhalten. Es existieren aber nur Hinweise auf ausgesprochen modische Musik, wie von Lanner, Donizetti oder Strauss.[43] Das von seiner Biografin Gräfin Rothkirch 1982 so liebevoll geschilderte Bildnis Prinz Carls als einem „Kenner und Beschützer des Schönen“ betrifft sicher nur einen Teil seiner Persönlichkeit.[44] Dennoch hat Prinz Carl mit der Schöpfung des Parks Klein-Glienicke ein kleines Kapitel europäischer Gartengeschichte geschrieben.
Nutzung der Anlage zur Zeit Prinz Carls (1824–1883)

Über die Nutzung des Parks durch die Prinzlichen Herrschaften ist man gut informiert dank des Journal über Glienicke,[45] das der Hofmarschall (1824–1850 Kurd von Schöning, 1850–1867 Franz von Lucchesini) täglich führen musste. In diesem Tagebuch wurden nicht nur die täglichen Aktivitäten des prinzlichen Paares (die Kinder wurden durch Erzieher beschäftigt) aufgezeichnet, sondern auch Buch geführt über sämtliche Gedecke bei Tisch zur Abrechnung der prinzlichen Apanage. Entsprechend ist der gesellschaftliche Umgang Prinz Carls detailliert überliefert.[46] Dadurch ist bekannt, dass das Frühstück öfter im Garten eingenommen wurde, das Diner hingegen grundsätzlich im Schloss serviert wurde. Der Thee aber (die Abendmahlzeit) wurde – sofern es die Witterung erlaubte – jeden Abend an einem anderen Platz im Garten oder Park eingenommen. Die Vielzahl von Theeplätzen erklärt sich also aus dem Bedürfnis, die Parkanlage täglich spätnachmittags oder am Abend aus möglichst unterschiedlichen Blickwinkeln zu erleben. Eine umfangreiche Dienerschaft ermöglichte diesen Luxus.

Während der Pleasureground ausschließlich zu Fuß begangen wurde, wurde der Park weitgehend mit der Kutsche besucht. So machte Prinzessin Marie fast nur Ausfahrten. Gästen wurde der Park auch mittels Kutschfahrten gezeigt. Die Fahrten wurden an verschiedenen Stellen durch Promenaden ergänzt, um beispielsweise den Wasserfall an der Teufelsbrücke vorgeführt zu bekommen. Prinz Carl dagegen war meist zu Pferd im Park. Kein Potsdamer Parkeigner widmete sich derart intensiv der Gartengestaltung. Bisweilen täglich inspizierte er die Parkarbeiten, so dass er bei der Umsetzung der Planungen stets neue Vorstellungen von der Gestaltung einfließen lassen konnte, gelegentlich auch selbst Hand anlegte.
Zunächst war der Park für interessierte Fremde nicht zugänglich. Eine 1939 in Glienicke noch vorhandene historische Tafel vom Haupttor wies aus, dass Carl per 7. Mai 1824 dem Publicum den Zutritt zum Anwesen verboten hatte.[47] Später, vermutlich erst nach der Parkerweiterung von 1840 und der Einfriedung des Gesamtanwesens, konnte der Park nach Meldung an einem der Torhäuser von interessierten Besuchern zu Fuß besichtigt werden. Dabei oblag es der Willkür der Wärter, wen sie einließen. Bei Abwesenheit der prinzlichen Familie, kenntlich durch die nicht gehisste Flagge auf dem Schloss, konnten nach Meldung beim Kastellan (Inspektor) auch der Pleasureground, Teile des Schlosses und der Nebengebäude besichtigt werden. Die prinzliche Familie verstand sich nun als stilbildend für das gemeine Volk.[48] Zuletzt scheinen Garten und Park so gut wie öffentlich zugänglich gewesen. Wagener zumindest berichtet 1882 von keinen Zugangsbeschränkungen, empfiehlt seinen Lesern das „Selbersehen“ des von ihm Geschilderten und berichtet, dass Glienicke das „Wallfahrtsziel für Tausende“ sei, die sich an der Verbindung von Kunst und Natur erbauen wollten.[49]
Die Nebengebäude des Parks (Torhäuser, Hofgärtner- und Maschinenhaus, Matrosenhaus, Jägerhof, Unterförstereien) besaßen alle ein umfriedetes Wirtschaftsgrundstück und waren nicht für Fremde zugänglich. Die historischen Einfriedungen der Wirtschaftsgrundstücke bestanden aus hölzernen Staketenzäunen. Auch die Parkgrenzen waren von durchgehenden, fein proportionierten Estaquets nach Persius’ Entwurf bestanden, die ein ungewolltes Eindringen von Mensch und Tier unterbanden.

Den Anfang der Sommersaison des prinzlichen Paares markierte der 1. Mai, als Kaufdatum von Glienicke. Sobald der prinzliche Hof das Schloss bezogen hatte, wurde die prinzliche Flagge gehisst und bei zwischenzeitlichen Abwesenheiten wieder eingeholt. Wichtige Feiertage in Glienicke waren nach dem Hochzeitstag des Paares am 26. Mai der Geburtstag des Prinzen (29. Juni), der seiner Schwester Charlotte (13. Juli) und deren Gatten Zar Nikolai I. (6. Juli) sowie der seines Vaters König Friedrich Wilhelm III. (3. August). An Feiertagen kreuzte die prinzliche Miniaturflotte auf dem Jungfernsee, die Masten (Fregattenattrappe) und das Schloss wurden beflaggt, es wurde Salut geschossen und bei Dämmerung wurden in den Schalen auf den Gebäuden Flammen entzündet. Später werden auch Illuminationen mit „bengalischen Flammen“ erwähnt. Derartiges wurde auch veranstaltet, wenn Staatsgäste dem Prinzen die Aufwartung machten oder wenn der König mit hochgestellten Gästen per Schiff zur Pfaueninsel fuhr oder von dort zurückkehrte. Dann wurde auch der Wasserfall „losgelassen“.
Alljährlich am 18. Oktober wurde der Jahrestag der Völkerschlacht bei Leipzig mit einem Freudenfeuer auf dem Böttcherberg begangen. Im Vorfeld der jährlichen Übersiedlung in das Berliner Stadtpalais fand Ende Oktober eine umfangreiche Inspektion des Parks von der Kutsche aus mit dem Hofgärtner, dem Hofmarschall und dem Inspektor statt, auf der die während der Abwesenheit zu tätigenden Herbstpflanzungen befohlen wurden. Die Saison in Glienicke endete mit der Hubertusjagd am 3. November. Im Winterhalbjahr wurden nur gelegentlich Ausflüge nach Glienicke unternommen und mit Arbeitskoordinierung der Parkgestaltung kombiniert.[50]

Bei Staatsbesuchen war es protokollarisch geboten, Prinz Carl die Aufwartung zu machen, entsprechend bekannt war Glienicke beim europäischen Hochadel. Ob in der Frühzeit von Carls Besitztum die Königin der Niederlande oder in späteren Jahren der Schah von Persien, viele gekrönte Häupter besuchten Glienicke. Neben dem Zarenpaar, das ja in engem verwandtschaftlichen Verhältnis zu Prinz Carl stand, war der Besuch der Queen Victoria der diesbezüglich ranghöchste Besuch, der dem Glienicker Park zuteilwurde. Das Journal vermerkt diesen Besuch am 14. August 1858 recht lapidar: „Gegen 6 Uhr machten ihre Majestät die Königin von England, mit ihrem Gemahle dem Prinzen Albert, dem Prinzen von Preußen nebst Frau Prinzess und der Prinz Fried. Wilh. mit Gemahlin Visite und eine Promenade durch den Garten, Schloß, Neugierde, Casino und Klosterhof.“[51]
Historische Beschreibungen des Glienicker Parks aus der Zeit Prinz Carls finden sich in der frühen touristischen Literatur bei Samuel Heinrich Spiker (1833), Anonymos (1839), Anonymos (1846), Ludwig Rellstab (1854), August Kopisch (1854), Karl Ludwig Häberlin (1855) und Robert Springer (1878).[52] Sehr ausführlich hat der Regionalhistoriker Heinrich Wagener 1882 Geschichte und Gestalt der Glienicker Anlagen geschildert.[53] Eine kurze, aber charakteristische Beschreibung (s. u.) hat Helmuth von Moltke seiner Braut gesandt, als er 1841 Adjutant in Glienicke war.

Historische Veröffentlichungen der Gebäude finden sich in Schinkels „Sammlung architektonischer Entwürfe“ (Schloss und Casino), im „Architektonischen Album“ (Rotunde, Hofgärtner- und Maschinenhaus, Gewächshäuser, Matrosenhaus, Villa Schöningen und Stibadium) sowie im „Architektonischen Skizzenbuch“ (Obertor- und Wildparktor-Pförtnerhaus, Haupttor-Pförtnerhaus, Griebnitztor-Pförtnerhaus, Unterförsterei Klein-Glienicke, Kanarienvogelhaus, Jagdschlossbauten und Schweizerhäuser). Bemerkenswerterweise fehlen Veröffentlichungen von Löwenfontäne, Neugierde, Jägerhof und dem Klosterhof. Als veröffentlichte Parkpläne liegen eine wenig attraktive Lithografie um 1845 im Maßstab 1:5.000 vor und eine sehr attraktive Farblithografie von etwa 1862 im Maßstab 1:2.500, der so genannte Kraatz-Plan.
Bildlich ist der Glienicker Park niemals systematisch dargestellt worden, wie beispielsweise für den Babelsberger Park eine Folge lithografierter Aquarelle Carl Graebs geschaffen wurde. Hier scheint Prinz Carl seltsamerweise wenig Interesse gehabt zu haben. 1843 und 1854 stellte er als Veröffentlichung seiner Parkanlage eine Mappe von bereits vorhandenen druckgrafischen Blättern zusammen, so die Blätter aus der Sammlung architektonischer Entwürfe, die Farblithografien von Haun nach Schirmer und dem unattraktiven Litho-Parkplan um 1845.[54]
Fotografisch ist zur Zeit Prinz Carls nur der Pleasureground dokumentiert worden: Der Fotograf Robert Scholz fertigte um 1875, also vielleicht anlässlich der Fünfzig-Jahr-Feier 1874, eine Serie von Aufnahmen an, die den Garten in schon weitgehend zugewachsenem Zustand zeigen. Vom Park fehlen damalige Aufnahmen. Als Johannes Sievers mit seinem Sohn Wolfgang in den 1930er Jahren Park und Bauten dokumentierten, waren die Holzarchitekturen bereits verschwunden und die Parkräume völlig zugewachsen.
Parkgliederung und Gestaltung seit der letzten Erweiterung

Humphry Repton, der wohl einflussreichste englische Landschaftsgestalter seiner Zeit hatte Ende des 18. Jahrhunderts die Gestaltungsprinzipien des klassischen englischen Landschaftsgartens formuliert. Demnach wurde direkt am Wohnhaus der Blumengarten angelegt, an den sich der Pleasureground, der Hausgarten anschloss. Beide waren vom eigentlichen Park durch Zäune, Mauern oder invisible fences (quasi unsichtbare Zäune oder Gräben) getrennt, da im Park Nutzvieh und Wild frei lief, das die Blumen und Ziersträucher des Gartens verbissen hätte.

In Glienicke hat der Blumengarten eine Sonderform des Gartenhofs. Der Pleasureground erstreckt sich zwischen Schloss und Glienicker Brücke. Der Park gliedert sich in die Partie des Großen Wiesengrundes, der heute etwa die Mitte der Anlage einnimmt, westlich schließt sich die Partie des Ufer-Höhenweges an, die sich im Norden im Jägerhof-Bereich fortsetzt. Im Nordosten liegen die steil abfallenden Hänge eines Bergparks, genannt die „Karpathen“. Südlich hiervon und östlich des Großen Wiesengrunds erstreckt sich eine durch Täler dominierte Partie mit waldigem Charakter. Südlich der Berlin-Potsdamer Chaussee liegen der Böttcherberg-Park mit der rahmenden Schweizerhauspartie und der Jagdschlossgarten. Die Benennung der meisten Parkteile ist historisch. Nur beim Ufer-Höhenweg, dem großen Wiesengrund, der Jägerhof-Partie und der Waldtälerpartie handelt es sich um Hilfsbegriffe, da nicht überliefert wurde, wie die prinzlichen Herrschaften diese Partien benannten.
Ein Charakteristikum Lennéscher Parkgestaltung sind die sehr zahlreichen und überraschend erscheinenden Sichtachsen sowohl innerhalb des Parks als auch in die Potsdamer Kulturlandschaft. Auch das stete Ineinandergreifen von Wiesenräumen zum Erschließen eines Höchstmaßes an Blickbeziehungen ist typisch für die Gartenkunst Lennés. Figürliche Beete, lebhaft gegliederte Teiche und bergig gestaltete Parkpartien sind typisch für die Gartenkunst des Fürsten Pückler. Beides vereinigte Prinz Carl in Glienicke, wobei die westlichen Parkpartien eindeutig die Handschrift Lennés zeigen.
Im 19. Jahrhundert wurde der Glienicker Park über den am Mitteltor (heute ein unscheinbarer Treppenzugang an der Königstraße) beginnenden Hauptfahrweg, den so genannten Drive erschlossen. Somit fuhr der Besucher zunächst an dem großen Findling mit dem Kaufdatum 1. Mai 1824 und dem Großen Wiesengrund vorbei. Er passierte dann den Schlossteich und den Wirtschaftshof und erreichte schließlich die offene Seite des Gartenhofs, über den er das Schloss betrat.
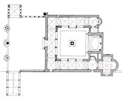
Gartenhof

Der Gartenhof wird im Süden U-förmig von Schloss und Hofdamenflügel umschlossen, im Norden wird er vom Kavalierflügel begrenzt. Er öffnet sich nur nach Osten, was seit der Verlängerung des Hofdamenflügels 1952 eingeschränkt ist. Früher wurde der Blick aus dem Hof nach Osten über den Schlossteich zum Großen Wiesengrund gelenkt und suggerierte damit eine große Weite des Parks. Da die Sicht auf den Wiesengrund noch nicht wieder vollständig freigeschlagen wurde, ist dies derzeit nur schwer nachvollziehbar.

Der Hof wurde zum eigentlichen Blumengarten Glienickes ausgestaltet. Fünf runde und zwei nierenförmige Tortenbeete, die umlaufende berankte Pergola sowie Kübel- und Topfpflanzen boten, bzw. bieten einen reichen Blütenschmuck. Zwei Wasserspiele waren eine klangliche Attraktion. Die seinerzeit sukzessive beschafften und schließlich noch zahlreicher als heute in den Fassaden eingelassenen antiken Reliefs, bzw. Bruchstücke boten eine fast unerschöpfliche Studierebene.[55]
Vor der Hecke am Kavalierflügel befindet sich ein Laufbrunnen mit bekrönendem Abguss der Ildefonso-Gruppe als Zitat einer entsprechenden Anlage in Weimar, der Heimat der Gattin des Prinzen. Auf den seitlichen Stufen der Brunnenanlage plante Schinkel schmuckvolle Terrakottakübel für Lorbeer- oder Orangenbäumchen. Auf der Gartenhof-Darstellung von Schirmer sind hier eigenartigerweise aufgereihte kleine Tontöpfe vorhanden. Vor die Hecke sind Kübelpflanzen gestellt, die rhythmisch den Pfeilern der Pergola antworten. Die Mitte des Gartenhofs markiert ein Brunnenbecken, in dem sich seit mindestens 1837 ein Renaissance-Schalenbrunnen von 1562 befand, der später von den Erben Prinz Carls veräußert wurde.
Der Gartenhof ist gewissermaßen das Herzstück des Glienicker Parks. Schinkel verdeutlicht dies in der Erläuterung der Veröffentlichung in der Sammlung architektonischer Entwürfe: „Der Grundriß zeigt die Disposition des Ganzen, wo ein Hof, von Schlößchen und den Stallungen umgeben, gärtenartig angeordnet, mit schönen aus Eisen konstruierten Laubengängen umgeben, mit Springbrunnen und Bronzestatuen verziert, ein Hauptagrément der Wohnung bildet, welche, im Gegensatz der Ansicht auf dieses Innere, Heimliche des Hofs, ihre Fenster auf die Fernsicht der schönen Gegend richtet und den doppelten Genuß erzeugt.“[56]
Auffahrt

Von allen Potsdamer Sommerresidenzen hat Glienicke die ungewöhnlichste Erschließung. Das Schloss wurde nicht über eine Außenfassade erschlossen, sondern durch die Gartenhofpergola, die zu dem versteckt liegenden Hauseingang führte. Zugang zu dieser Pergola war nach Schinkels Umbau eine einfache Pfeilerstellung, die sich schwer als Schlosszugang zu erkennen gab. An diese Pfeilerstellung fuhr man mit der Kutsche vor und legte den weiteren Weg zu Fuß zurück. In der Veröffentlichung in seiner „Sammlung architektonischer Entwürfe“ hat Schinkel direkt neben dem Pergola-Eingang eine Haustür dargestellt, die aber nicht verwirklicht wurde, da sie wohl bei Fremden zur Konfusion bezüglich des richtigen Zugangs geführt hätte.

Der eigentliche Blickpunkt für die Anfahrenden liegt eigentümlicherweise nicht am Schloss, sondern am Kavalierflügel, der weit über den Gartenhof nach Osten vorragt, da Schinkel den vorhandenen Bau in diese Richtung verlängerte. Hier liegt die Weinlaube (s. u.) und über ihr sind vor einem für die Fernwirkung leuchtend türkisfarben gefassten Wandfeld Skulpturenabgüsse aufgestellt. Die „Felicitas Publica“ vom Münchner Max-Joseph-Denkmal Christian Daniel Rauchs wird flankiert von den Figuren des Odysseus und der Iphigenie des Berliner Teesalon-Zyklus von Friedrich Tieck. An der Ecke wurde ein Zink-Abguss des Hauptes der seinerzeit berühmten „Athena Hope“ angebracht.

Um den Zugang zum Schloss stärker zu akzentuieren, wurde anlässlich der Hofdamenflügelaufstockung die einfache Pfeilerstellung an der Pergola 1840 von Persius durch das heute noch vorhandene Propylon (Portalbau) ersetzt. Dieses besteht aus Sandstein mit Zierelementen aus Zinkkunstguss. Es war bekrönt von einem Abguss der Achillesstatuette aus dem Berliner Teesalon-Zyklus von Friedrich Tieck.
Seitlich des Propylons befinden sich (wie am Stibadium) winkelförmige halbhohe Sandsteinwände mit daraufgestellten Zinkgussvasen und eingestellten Bänken, auf denen die prinzliche Familie die Vorfahrt besonders hochstehender Gäste erwarten konnte oder weniger hochstehende Gäste auf den Empfang durch das prinzliche Paar warten konnten. Die Anlage ist zusätzlich ausgezeichnet durch Kleinstein-Mosaik-Pflasterung mit dem verschlungenen C-Monogramm des Prinzen. Das Propylon stand architektonisch frei, bis man 1952 den Hofdamenflügel nach Norden verlängerte. Man schritt also zu Prinz Carls Zeiten durch das Propylon direkt in die Pergola.
Da sich das prinzliche Paar bei den täglichen Passagen zur Kutsche vornehmlich in der Pergola aufhielt, war der Kavalierflügel die eigentliche Ansichtsseite des Gartenhofs. Entsprechend wurden in die Fassade des Flügels besonders ausdrucksstarke Spolien eingemauert, beispielsweise Theatermasken (personae).
Veranda

Die im 19. Jahrhundert als Veranda bezeichnete Pergola bestand aus vier Flügeln an Ost-, West und Südseite des Hofes und wurde an der Nordseite des Gartenhofs durch einen Heckenweg vor dem Pferdestall im Kavalierflügel ergänzt. Im ersten Flügel bildete der Schalenbrunnen des Gartenhofs dem Blickpunkt, im zweiten der säulenflankierte Eingang zum Hofdamenflügel, im dritten Flügel der Kamin mit Wandbild und im vierten Flügel ist der in der Adjutantenlaube liegende Eingang zum Kavalierflügel der letzte Blickpunkt.

Auf dem kurz vor dem Kamin liegenden Haupteingang führt keine axiale Blickachse, er ist außergewöhnlich versteckt und nur durch die Portalgröße und das „SALVE“ in der Türschwelle hervorgehoben. Die Pergola ist mit Aristolochia macrophylla und Passiflora berankt, wodurch sie einen südlich-exotischen Charakter erhält. Das Bild von Schirmer weist zumindest zeitweise auf Lonicera-Berankung hin.
Die Pergola bestand zunächst aus Eisen, hatte eine bemalte hölzerne Decke und gusseiserne Bodenplatten. 1863 wurde sie durch eine Gusseisenkonstruktion mit Blechdeckung ersetzt. Die neue Pergola – zeitgleich zum Jagdschlossumbau errichtet – entsprach in ihrer Struktur der alten, war aber graziler und stärker verziert. Möglicherweise bestanden auch hier verschiedene Zierteile aus Zink-Kunstguss. Über eine farbige Fassung oder eventuell Teilvergoldung der Konstruktion ist nichts überliefert. Diese Pergola wurde nach 1945 beseitigt und durch eine der ursprünglichen Pergola angenäherte Holzkonstruktion mit unhistorischer Drahtglasdeckung ersetzt.

Der westlich des Schloss-Haupteingangs liegende Abschnitt der Pergola war mobil zu verglasen und diente dann als zusätzlicher wintergartenartiger Raum.[57] Zur Beheizung existierte ein Marmorkamin mit darüber befindlichem Wandbild „Pegasus von Nymphen gewaschen und getränkt“, das Julius Schoppe 1827 gemalt hatte (beides nicht erhalten).
Die Anregung zu dem Gemälde hatte Carl vermutlich Alois Hirts 1805 erschienenem „Bilderbuch für Mythologie, Archäologie und Kunst“ erhalten. Dort ist die Abbildung kommentiert: „Nicht minder anmutig ist das aus dem Grabmal der Nasonen entnommene Gemälde, wo die drei Nymphen das geflügelte Pferd, den Pegasus waschen. Gleich den Nereiden ist hier der obere Körper der drei Najaden nackt dargestellt, wodurch sie sich mehr der Bildung der Liebesgötter und den Grazien annähern.“[58]
Das Grabmal der Nasonier an der Via Flaminia vor Rom aus der Zeit um 160 n. Chr. war bereits seit Anfang des 18. Jahrhunderts veröffentlicht worden und genoss in Kunstkreisen eine gewisse Popularität.[59] Welche Bewandtnis es aber mit dem geflügelten Pferd der Unsterblichkeit – einem Abkömmling von Poseidon und Medusa – an dieser Stelle Glienickes auf sich hatte, ist bislang nicht gedeutet worden. Seitlich des Kamins befanden sich in die Wand eingelassene Bänke, deren hölzerne Sitzflächen auf gusseisernen Konsolfüßen schinkelscher Prägung ruhte.[60]
Der Gartenhof wurde zum Aufstellungsort der antiken Reliefs, die Carl über den Kunsthandel erworben hatte. Nicht als Schloss, sondern als italienische Villa verstand sich die Anlage, bei deren Bau man auf antike Fundstücke gestoßen sei.[61] Die zumeist marmornen Relief-Spolien wurden auf eher dekorative als archäologische Weise in der Rückwand der Pergola arrangiert in den Putz eingelassen. Viele der Fragmente wurden erst im letzten Lebensjahrzehnt des Prinzen eingefügt. Nach der Italienreise 1874 trafen 33 Kisten mit Antiken in Glienicke ein.[62] Noch vorhandene Täfelchen weisen darauf hin, dass auch Prinz Friedrich Karl einige Antiken als Souvenir mitgebracht hat, darunter ein Stück aus Troja, das der Graveur – offenbar in angestrengtem Bemühen um hochdeutsche Orthographie – als „Troga“ vermerkte. Durch Verlängerung des Hofdamenflügels und Beseitigung seines Eingangsportals wurden die Spolienarrangements verändert. Die nach 1945 noch vorhandenen Antiken Glienickes sind in einem wissenschaftlichen Katalog erschlossen worden.[63]
Weinlaube und Adjutantenperistyl

Weinlaube und Adjutantenperistyl sind die architektonischen Verbindungsglieder zwischen Gartenhof und Pleasureground, bzw. dem Park. An der Vorfahrt vor dem Kavalierflügel befindet sich die Weinlaube, die auch mit Vitis vinifera berankt ist. An der Rückwand der Laube befanden sich mit Ölfarbe gestrichene Bänke, die in der Form wohl noch auf Schinkel zurückgingen, aber nicht erhalten sind. Später, der Form nach um die Jahrhundertmitte, wurden in die Rückwand drei Nischen eingestemmt, die mit schmuckvollen Rahmungen in Marmor versehen wurden. In ihnen fanden Nachgüsse von Kinderfiguren ihre Aufstellung.[64]

In der östlichen Schmalseite des Kavalierflügels ist der Eingang zur Wohnung des Kastellans (Inspektors) durch einen von Hermen flankierten Vorbau akzentuiert. Ursprünglich besaß dieses Portal lediglich ein Vordach aus Metall. Seitlich des Portals befanden sich 1831 von Persius nach Schinkels Angaben entworfene Sitzbänke, die auf dem Gemälde der Vorfahrt mit Roten Jägern (s. o.) erkennbar aber nicht erhalten sind.[65] In Verbindung mit den Bänken am Propylon existierten also zahlreiche Sitzmöglichkeiten im Bereich des Schlosszugangs.

Auf der gegenüberliegenden Seite des Gartenhofs vermittelt zum Pleasureground zwischen Pergola und Kavalierflügel-Treppenhauseingang der Adjutanten-Peristyl mit darüber liegender Terrasse. Die aus zwölf Pfeilern, bzw. Pfeiler-Vorlagen gebildete Architektur wurde von Schinkel schlicht aber unkorrekt als Peristyl bezeichnet, später findet sich gelegentlich die Bezeichnung „Adjutantenlaube“, obgleich die Baulichkeit als solche nicht verwendbar ist, denn sie diente in erster Hinsicht als bedeckte Passage für die Dienerschaft zwischen der im Erdgeschoss des Kavalierflügels befindlichen Küche und dem Schloss.

Die darüberliegende Terrasse war nur über die beiden Fenstertüren eines der beiden Adjutatenzimmer im Kavalierflügel zu erreichen und wurde entsprechend „Adjutatenterrasse“ benannt. Von ihr hat man einen bemerkenswert schönen Blick sowohl über den Gartenhof als auch in den Pleasureground. Die Terrasse besitzt heute nur provisorische Brüstungsgitter. Das historische Gitter entsprach in der Form dem Gitter, das Schinkel gleichzeitig für die Kuppelummantelung des (Alten) Museums in Berlin entwarf.
Als eigentlicher Theeplatz fungierte die vor dem Peristyl Richtung Pleasureground liegende Terrasse mit farbiger Kleinsteinpflasterung. Hier befindet sich an der Südwand der Merkurbrunnen und ihm gegenüber unter dem Renaissance-Zierbogen stand eine noch im Lapidarium eingelagerte Neorenaissance-Bank. Die Figur des stehenden Merkurs ist keine antike Marmorskulptur, sondern wohl eine überarbeitete französische Plastik des 18. Jahrhunderts.[66] Ganz nah in einer Nische der Westfassade des Schlosses setzt eine moderne Kopie der Venus Italica von Antonio Canova das Antikenprogramm fort.
Gelegentlich fanden bei der kontinuierlichen Ausgestaltung Doppelungen des Antiken-Programms statt. 1852 schenkten die Angestellten Glienickes dem Prinzenpaar zur Silberhochzeit – sicherlich wunschgemäß – einen Abguss des ausruhenden Merkurs aus Herculaneum, eine der seit der Ausgrabung 1758 am meisten rezipierten lebensgroßen Bronzefiguren der römischen Antike. Dadurch war der Gartenhof an beiden Seiten von Figuren jenes antiken Gottes eingefasst, der damit wohl als Schutzpatron von Glienicke anzusehen ist. Der Götterbote Merkur hatte in der Antike einen ambivalenten Charakter: als Schutzgott des Verkehrs, der Reisenden und der Hirten, aber auch der Kaufleute, Kunsthändler und Diebe sowie der Redekunst, der Gymnastik und der Magie.
Pleasureground

Der ab 1816 geschaffene Pleasureground (dt.: ‚Vergnügungs-Boden‘) ist ein Frühwerk Lennés und zugleich eines seiner Meisterwerke.[67] Der Pleasureground scheint ein natürliches Geländemodell zu besitzen, wurde aber von Lenné vollständig künstlich-künstlerisch modelliert. Die hier zuvor bestehende plane Büdnerstelle und die nördlich anschließenden vier Obst- bzw. Weinterrassen, an die sich die Alleepflanzungen Lindenaus anschlossen, sind nicht mehr zu erkennen.[68]

Als Hausgarten befinden sich hier Wasserspiele, plastische Kunstwerke und Tortenbeete, auch einige Beete in geometrischen Formen, die vermutlich durch den Fürsten Pückler beeinflusst waren. Den Pleasureground durchziehen zahlreiche, ursprünglich gusseiserne Wasserleitungen, die nicht nur den Wasserspielen, sondern auch der intensiven Bewässerung der Pflanzungen dienen.
Der Pleasureground ist zum Park hin durch Bauten abgeschrankt. Entlang der Berlin-Potsdamer Chaussee verläuft ein Drahtschuppenzaun, zur Uferchaussee ein invisible fence und die untere Pergola des Casinos. Die historischen Zugänge erfolgten über den Gartensaal des Schlosses, die Adjutanten-Laube, das Pförtchen am Stibadium, die beiden Pforten der Casino-Pergola und den Klosterhof. Der heutige Zugang von der Vorfahrt aus ist nicht historisch.
Beete und Kübelpflanzen

Im Gartenhof und im Pleasureground befinden sich für Glienicke charakteristische elliptische und runde Tortenbeete mit Terrakotta-Palmetten-Einfassung. Die Originale der Beet-Einfassungssteine wurden im Keller der Neugierde gefunden, so dass eine getreue Wiederherstellung möglich war.[69] Es wurden zehn Grundtypen in zahlreichen Variationen vorgefunden. Unterirdisch sind die Beete ummauert, was eine spezifische Bewässerung ermöglichte. Außerdem waren die Beete mit lockerem Substrat gefüllt, das ein schnelles Auswechseln der – gelegentlich im Topf gesetzten – Pflanzen nach Einsetzen des Verblühens ermöglichte. Die Vielzahl der Beete erforderte entsprechend während der gesamten Saison das Vorhalten großer Mengen von Blühpflanzen. Inmitten dieser Pflanzungen setzten bisweilen Canna einen exotischen Akzent.

Es gab und gibt auch einige figürliche, bzw. geometrisch gestaltete Beete, die im landschaftsgärtnerisch gestalteten Pleasureground einen artifiziellen Akzent setzten. Diese waren mit Buxus eingefasst und entsprechend pflegeaufwändig. Derartige Beete finden sich vor der Westfassade des Schlosses, vor der Terrasse des Stibadiums, am Casino (Artemisbeet) und in Eichenblattform seitlich der Löwenfontäne. Am auffallendsten ist das Lilienbeet, das direkt unterhalb der Fenster von Carls Schlafzimmer im Mittelrisalit der Westfassade des Schlosses liegt. Es weist als heraldisches Signum auf Carls jüngere Schwester Louise, die mit Prinz Friedrich der Niederlande verheiratet war und sich besonders mit Blumenzwiebelsendungen in Glienicke einbrachte. Laut des Kraatz-Plans von 1862 waren im späteren 19. Jahrhundert einige der einfachen Tortenbeete zu geometrischen Prachtbeeten erweitert worden, so vor der Löwenfontäne und an der Neugierde.
Vor der West- und Ostseite des Schlosses befinden sich Terrassen. Hier wurden seit Hardenbergs Zeiten die Zitrusbäume in Kübeln aufgestellt. Diese Orangerie (Zitrusgewächs-Sammlung) war seinerzeit kostbar, was auch daraus hervorgeht, dass Christian von Hardenberg-Reventlow sich im Kaufvertrag 1824 ausbedungen hatte, vier kleine und vier große Orangenbäume sowie zwei Zitronenbäume aussuchen zu können.[70]
Im Bereich des Gartenhofs und der Schloss-Terrassen und wohl auch am Casino wurden während der Sommersaison weitere nicht winterharte Kübelpflanzen aufgestellt, die im Winterhalbjahr in den Orangerie-Bau verbracht wurden. Soweit überliefert, handelte es sich dabei nicht um Palmen, sondern – neben den Zitrusgewächsen – um mediterrane und exotische Blühpflanzen, wie Plumbago, Agapanthus und in den Zierschalen auch Aloe. Auffallend ist ferner das weitgehende Fehlen von Rosenpflanzungen, die beispielsweise auf der Pfaueninsel und in Babelsberg einen wichtigen Akzent setzen.
-
Beet an der Neugierde -
Beeteinfassungssteine in Palmettenform -
Beet an der Löwenfontäne mit Cannapflanzung -
Zitrus-Kübel auf der Schlossterrasse -
Beet im Pleasureground mit Frühlingsbepflanzung -
Beet an der Rotunde mit Palmettenzungen und Fritillariabepflanzung
Löwenfontäne

Da das Schloss keinen Sockel in Form eines Souterrains besaß, plante Schinkel eine hohe Terrassenmauer, die den Bau optisch vom Garten abgehoben hätte. Mit dieser Planung veröffentlichte er auch den Bau in seiner „Sammlung Architektonischer Entwürfe“. Carl jedoch kam auf den Gedanken einer neuen Brunnenanlage, zumal die alte gusseiserne Brunnenschale aus Hardenbergs Zeiten vor dem Gartensalon ihm als Wasserspiel zu bescheiden war und eine Zweitverwendung am Casino erfuhr. Nachdem eine Dampfmaschine angeschafft und installiert war, wurde ab etwa 1836 eine große Brunnenanlage geplant. Carl bezog in die Planungen die beiden großen Medici-Bronzelöwenfiguren mit ein, die seine Schwester Charlotte ihm 1831 zum 30. Geburtstag geschenkt hatte.[71] Die Löwen waren Abgüsse von zwei Bronzelöwen an der Schlossbrücke in St. Petersburg. Seit der Veröffentlichung von Puschkins Poem „Der eherne Reiter“ 1833 genossen die Petersburger Löwen einen gewissen Bekanntheitsgrad.

Am 23. Oktober 1837 fand in Glienicke eine Besprechung zwischen Prinz Carl, Schinkel, Persius und Lenné statt „über das Bassin und die Fontaine vor dem Treibhaus […] und wie die broncenen Löwen am vortheilhaftesten zu placieren sein würden.“[72] Schinkel entwarf daraufhin die neue Fontänenanlage und ein neues Gewächshaus. Die Reinzeichnung dazu stellte Persius am 19. November fertig. Auf ihr sind die Löwenfiguren noch auf rechteckigen Sockeln dargestellt. Die ausgeführten Sockel mit Säulen entwarf Schinkel also später.
Der Gewächshausentwurf sah eine fünfteilige Anlage vor aus drei übergiebelten Putzbauten und zwei dazwischenliegenden vollverglasten Treibhäusern. Sievers fand diesen Entwurf so bemerkenswert, dass er ihn ausführlich würdigte und auch in Ausschnittsvergrößerungen veröffentlichte. Er charakterisierte das Gebäude als „elegant“ und als „einen [Bau-] Gedanken von großem Wurf“. Aber dieser Bauentwurf wurde nicht verwirklicht. An seiner Stelle errichtete Persius 1840 das Stibadium.

Die neue Anlage wurde in der Achse der Schloss-Südfassade errichtet und bezog die alte Bruchstein-Futtermauer mit ein. Zum Brunnen wurde von der Terrasse eine sanft absteigende Freitreppe geführt, die zu einem das Becken halbrund umfassenden, wohl farbig asphaltierten Terrassenweg führte. Letzterer wurde rückwärtig von einer Balustrade mit Vasen- und Figurenaufsätzen hinterfangen. Die vier Terrakotta-Figuren von ca. 1855 waren Allegorien auf Handel, Wissenschaft, Kunst und Militär als Grundpfeiler der Staatsgestaltung, die wohl gleichzeitig Jahreszeitenallegorien waren.[73] Die letztgenannte Allegorie ist verschollen, die übrigen der Kinderfiguren sind fragmentiert und im Schloss aufgestellt. Ihr Schöpfer war wohl der Rauch-Schüler Alexander Gilli, der als Hofbildhauer für Glienicke tätig war.[74]
Seitlich wird die Anlage von zwei hohen Sockeln aus je vier gebündelten dorischen Säulen flankiert, auf denen die Löwen in voll vergoldeter Fassung aufgestellt sind. Die Sockel bestehen aus Zinkguss-Hohlkörpern und -Blechen um ein tragendes Eisengerüst. Sie waren, wie auch die Reliefs an den Pfeilern des Schloss-Balkons, die Details des Propylons und des Stibadiums, Produkte der Zinkgussfabrik von Moritz Geiß, die das durch Schinkel und Peter Beuth propagierte kostengünstige und sehr fein ziselierbare Material in bester Qualität verarbeitete. Auch am Casino finden sich solche Zierrahmungen, die mit Farbe gefasst wurden, der Sand zugesetzt wurde, so dass die Illusion von Sandstein entstand. Am 26. Mai 1838 stellte die Firma Geiß ihre Rechnung über Lieferung und Montage der Zinkgussteile. Damit dürfte die Anlage fertiggestellt gewesen sein.

Am 2. Juni 1838 sprangen die Fontänen zum ersten Mal anlässlich eines Besuchs des russischen Zarenpaars. Dies war ein großes Ereignis, da bislang in der Potsdamer Parklandschaft lediglich auf der Pfaueninsel und in bescheidenem Rahmen in Charlottenhof Wasserspiele per Dampfkraft betrieben wurden und es noch sechs Jahre dauern sollte, bis auch in Sanssouci die Fontänen springen würden.

Die Form des Wasserspiels der Glienicker Hauptfontäne variierte im Laufe der Zeit. Zunächst blies eine Tritonfigur einen einfachen Wasserstrahl in die Höhe. Später wechselte man zu Reiherbusch- und Glockenformen. Die Löwenfiguren spien zusätzlich Wasserstrahlen, und ein Wasserschleier wurde durch den Überlauf des geriefelten Beckenrandes erzeugt.[75]
Die Löwenfontäne wurde zu einer Art Signum der Glienicker Parkanlagen, zumal sie am stärksten in Richtung der Berlin-Potsdamer Chaussee wirkte und nahezu jedermann bekannt war. Unter den zahlreichen Glienicker Parkveduten ist der Blick von der Chaussee das am häufigsten dargestellte Motiv. Dabei ist bemerkenswert, dass hier ja kein Weg, sondern nur eine Gesichtslinie dargestellt wurde, eine Achse, die mit dem Tortenbeet beginnt und über Brunnenbecken und Freitreppe zum Mittelrisalit des Schlosses mit der tief über den Balkon herab gezogenen Markise und dem beflaggten Mast auf dem Belvedere-Aufsatz führt.
Entsprechend ihrer baulichen Struktur musste die Löwenfontäne mehrfach instand gesetzt werden. Nach dem Zweiten Weltkrieg war die Anlage vollständig ruinös. Bei der 1960–1964 erfolgten Rekonstruktion mussten die oberirdischen Bauteile weitgehend erneuert werden.[76] Fünfzig Jahre später wies die Anlage wieder erhebliche Baumängel auf. Die durch einen Baumschaden nicht mehr aufschiebbare Sanierung konnte 2009 in Angriff genommen werden. Nach Baubeginn zeigten sich gravierendere Baumängel, als zuvor erkennbar. Dennoch konnte die Anlage dank von der SPSG eingeworbener Sponsorenmittel bereits 2010 wieder eingeweiht werden.[77]
Sphingentreppe und Kleinstein-Mosaikpflasterungen

Seitlich parallel zur Löwenfontäne vermittelt die Sphingentreppe vom Schlossterrassen-Niveau zum unteren Gartenbereich. Es handelt sich um eine flache Treppe unter einer schlichten, berankten Eisengitter-Treillage nach Entwurf von Persius. Die am Treppenfuß aufgestellten Sphinx-Figuren und die nicht passgenauen Stufen stammen noch von dem frühklassizistischen Gewächshaus mit Gartensalon, das nach 1796 Lindenau anstelle des heutigen Stibadium erbauen ließ.

Vor der östlichen Treppe der Löwenfontäne verweist eines der wenigen erhaltenen Kleinstein-Mosaik-Pflaster auf den Theeplatz unter der einst daneben befindlichen Königslinde. Letztere war einer der beeindruckendsten Einzelbäume des Anwesens, die in den 1980er Jahren gefällt werden musste. Die heute alten Linden hingegen, die inzwischen auf der anderen Seite des Mosaiks in skurrilem Schrägwuchs stehen, waren seinerzeit jung.
Kleinstein-Mosaikpflaster[78] kamen Mitte des 19. Jahrhunderts in Mode. Dabei wurden weiße, graue, rote und schwarze kleine Steinquader in geometrisch gemusterten, teppichartigen Belägen verlegt. In Glienicke haben sich solche Pflasterungen im Propylon, um das Casino, an der Treppe der Römischen Bank im Park, an der Adjutantenlaube und an der Löwenfontäne erhalten, doch waren sicher erheblich mehr vorhanden, die wegen der empfindlichen Struktur verlorengegangen sind. So sind beispielsweise für die abschüssigen Podeste der Sphingentreppe Kleinsteinpflasterungen anzunehmen.
Doch nicht alle optisch hervorgehobenen Terrassen waren von Kleinsteinpflaster geziert. Gleichzeitig zu den teppichartigen Pflasterungen kamen Asphaltierungen in Mode. Hierbei wurde der seinerzeit kostbare Asphalt eingefärbt und imitierte erkennbar eine Steinplattenverkleidung. Solche Asphaltierungen sind in Glienicke für die Terrasse des Stibadiums (s. u.) und den Terrassenweg um die Löwenfontäne nachgewiesen. Aufgrund der schwierigen Reparaturmöglichkeit der Asphaltierungen ist heute keine mehr erhalten. Die Flächen sind heute mit Tonplatten verfliest.
Stibadium

Das Stibadium war der Haupt-Theeplatz des Pleasuregrounds mit einem seinerzeit grandiosen Blick auf Potsdam und die Löwenfontäne. Der Name ist ein Zitat aus einer Villenbeschreibung von Plinius d. J., der als Stibadium einen besonders reizvollen Ruheplatz beschrieb. Ähnlichkeit mit der von Plinius beschriebenen Architektur hat das Glienicker Stibadium nicht. Die Glienicker Herrschaften verwendeten diesen Namen auch nicht, sondern sprachen von der Römischen Bank. Der Bau entstand 1840 nach Entwurf von Persius, der damit ein Hauptwerk unter seinen Zierarchitekturen schuf und auch unter dem Namen Stibadium veröffentlichte.[79]

Es handelt sich um eine halbe Tholos-Architektur mit hölzernem Halb-Kegeldach, das auf der Unterseite mit einem Zwölfgötterprogramm ausgemalt ist. Da es sich aber um vierzehn Felder handelt, sind den klassischen zwölf olympischen Göttern noch Bacchus und Amphitrite beigestellt. Als gartenseitige Stütze diente ursprünglich eine Zinkguss-Kore nach Entwurf von August Kiß. Sie wurde später durch eine vollplastische Marmor-Wiederholung der „Felicitas Publica“ (Öffentliches Wohl) von Christian Daniel Rauchs Münchener Max-Joseph-Denkmal ersetzt.[80]
In die Architektur eingestellt ist eine Exedra-Bank, die durch winkelförmige Bänke innerhalb der Zungenmauern ergänzt wurde. Alle Bänke hatten Zinkguss-Wangen nach Stülers Entwurf, wie sie sich auch am gleichzeitig entstandenen Propylon des Schlosses finden. Auf der Terrasse steht eine Granitschale von Christian Gottlieb Cantian, die Prinz Carl von seinem 1840 verstorbenen Vater geerbt hatte. Sie war aus einem Abfallblock des Findlings für die große Granitschale im Berliner Lustgarten geschaffen worden.

Auf den Pfeilern der Terrassenmauern standen große antikisierende Steinvasen, die heute im Lapidarium eingelagert sind. Das Stibadium war überreich mit Bronzenachgüssen antiker Statuetten und mit Schmuckvasen bestückt, die ebenso verloren sind wie der farbige Bodenbelag in gelbem, rotem, weißem und schwarzem Asphalt, den das Ölgemälde Carl Daniel Freydancks zeigt.[81] Auch das Stibadium war von der Berlin-Potsdamer Chaussee gut einsehbar und hat entsprechend als architektonisches Vorbild für zahlreiche Gartensitze im Berlin-Potsdamer Raum gewirkt.

Neben seiner Funktion als Theeplatz hatte das Stibadium die Aufgabe, die Vorfahrt architektonisch vom Pleasureground abzuschranken. Den Grund hierfür kennen wir nicht, jedenfalls sind keinerlei Gedankenspiele bekannt, die Vorfahrt optisch in den Garten einzubinden. Die vom Stibadium nach Norden und Süden führenden Mauern sind symmetrisch gestaltet. Im Süden existiert ein Rundbogenpförtchen mit Durchblick auf den geschmückten Erker des Pförtnerhauses. Diesem Pförtchen entspricht nördlich des Stibadiums in der Achse der Löwenfontäne eine schmuckvolle Nische, in der eine besondere Skulptur gestanden haben muss. Über deren Aussehen und Bedeutung ist aber nichts überliefert.
Sievers, der es offenbar bedauerte, dass Schinkels Entwurf für das Gewächshaus (s. o.) nicht verwirklicht wurde, bezeichnete das Stibadium als „höchst bescheidenes Bauwerk“.[82] Er übersah dabei den ausgesprochen repräsentativen Charakter des Gebäudes. Das Stibadium war in Glienicke quasi das Gegenstück zur Neugierde. Während man dort versteckt den Verkehr auf der Chaussee ausspähen konnte, saß man im Stibadium auf dem Präsentiertisch. Von der erhöhten Terrasse blickte die prinzliche Theegesellschaft auf den Verkehr, bzw. das Volk herab und präsentierte sich gleichzeitig in einem baulich festlichen Rahmen. So betrachtet grenzt das Bildprogramm der Olympischen Götter an Vermessenheit, ist aber auch ein künstlerisch gelungener Ausdruck des gesellschaftlichen Selbstverständnisses des Adels im Zeitalter der Restauration.
-
Sphingentreppe am Abend -
Deckenausmalungs-Entwurf (Persius, 1840) -
Zwei 2001 rekonstruierte Deckenfelder: Bacchus und Jupiter -
Pförtchen am Stibadium zwischen Vorfahrt und Pleasureground -
Ansicht des Stibadiums von der Vorfahrt -
Beete an der Terrasse des Stibadiums
Neugierde

Die Neugierde war ein Pavillon, in dem man ungesehen hinter Stores verborgen und damit ungeniert neugierig den Verkehr auf der Berlin-Potsdamer-Chaussee betrachten konnte. Der Teepavillon entstand nach 1796 für Lindenau wahrscheinlich nach Entwurf von Glasewald und hatte bereits seine Hauptschauseite zum Garten, wo eine Sphinxfigur über dem Eingang einen Blickfang bildete. Bemerkenswerterweise ist die Neugierde im Gegensatz zu Schloss und Casino unterkellert. Sie besaß ursprünglich nicht nur zur Straße, sondern auch in der Ost- und Westfassade Fenster.[83]

Nachdem bereits 1824 das baufällige Dach abgebaut werden musste, wurde die Neugierde 1825 für Prinz Carl von Schinkel als eine der ersten Baumaßnahmen in Glienicke in strengen dorischen Stilformen umgestaltet. Das Vorhallen-Portal zum Garten erhielt dabei zwei Säulen. Durch den Umbau erhielt der Pavillon einen sehr ernsten Charakter, der an der Gartenseite fast an ein Mausoleum erinnerte. Beim Umbau entfielen die seitlichen Fenster durch den Anbau zweier erkerartiger Anbauten, die innen Halbrundnischen erhielten. Im westlichen Anbau befindet sich außen zudem der Zugang zum Keller.[84]
Im Gegensatz zum Äußeren wurde das Innere nach Schinkels Entwurf von Julius Schoppe bis 1827 in pompejianischer Manier gefällig ausgemalt. Diese Wandmalereien standen in enger stilistischer Beziehung zu den anschließend geschaffenen Raumdekorationen in Prinz Carls Stadtpalais. Die Einweihung der Neugierde durch die prinzlichen Herrschaften vermerkte der Hofmarschall am 20. August 1827 im Journal: „Thee zum ersten Male in der neugemalten Neugierde.“

Wohl erst 1848 bekam auch die Neugierde die Funktion eines Sammlungsbaus. In die Vorhalle wurden nun großenteils erhaltene antike Mosaiken, Wandmalereifragmente und Inschriftentafeln eingefügt. Gleichzeitig wurde der Gartenseite eine reizvolle, über den Kunsthandel erworbene, florentinische Renaissance-Arkade vorgeblendet. Diese Arkade hatte der Prinz schon 1842 von dem in Florenz lebenden russischen Sammler Anatole Demidoff di San Donato erworben.[85] Auf einem Foto von 1934 kann man in der Vorhalle seitlich je einen Sockel erkennen, auf dem eine Vase und eine Büste standen.
Die zunächst mit dem reizvollen Blick auf den Laitièrenbrunnen als Theeplatz genutzte Vorhalle hatte sich also zuletzt gänzlich zum Sammlungsort gewandelt. Auf den Treppenwangen, wo nur noch steinerne Ringe auf ehemals hier aufgestellte Kunstwerke verweisen, befanden sich antike Brunnenmündungen aus Tuffstein. Sie stammten wohl aus Pompeji und waren schon verschwunden, als Sievers seine Studien in Glienicke trieb. Von der einst reichen inneren Ausstattung des Baus haben wir nur durch Bergaus Inventar von 1885 Kenntnis.[86]
Die Neugierde verfiel durch mangelnde Unterhaltung seit Ende des 19. Jahrhunderts. Johannes Sievers fand 1938 ein noch weitgehend intaktes Gebäude vor mit Resten der Wandmalereien auf Papier, die er sicherstellen konnte. Nach dem Zweiten Weltkrieg war der nicht kriegsbeschädigte Bau bereits ruinös, aber instandsetzungsfähig. Die Instandsetzung erfolgte im Zustand von 1848. Das Innere wurde nach den überkommenen Schinkel-Entwürfen und den von Sievers sichergestellten Resten der Wandmalereien in Dispersionsfarben neu ausgemalt.[87] 2015/16 erfolgte eine umfassende Restaurierung.[88]
-
Gartenseite der Neugierde 1824, Ausschnitt aus dem „Blick auf Potsdam“ (s.o) -
Entwurf zur Nordseite der Neugierde (Schinkel, 1825) -
Ausmalungsentwurf zur Neugierde (Schinkel, um 1825) -
Antikes Mosaik im Bodenbelag der Vorhalle -
Antike römische Inschriftentafeln in der Vorhalle der Neugierde -
Giebelschmuck der Neugierde
Brunnen, Plastiken und Lauben

Vor der Neugierde befindet sich der Laitièrenbrunnen (lait = frz. Milch), ein von der Bronzefigur eines Milchmädchens bekrönter großer Findling. Die Bronze war 1827 ein Geschenk von Carls Schwester Charlotte in St. Petersburg und ist der Zweitguss einer Plastik von Pawel Sokolow im Park von Zarskoje Selo. Dargestellt ist die sprichwörtliche „Milchmädchenrechnung“ der Fabel von Jean de La Fontaine. Das heutige Glienicker Milchmädchen ist ein neuer Abguss, der 1987 in der Sowjetunion geschaffen wurde.[89]
Im Pleasureground befanden sich noch weitere Plastiken, deren genauer Standort heute nicht mehr bekannt ist. Berichtet wird beispielsweise von einer mit Pfeil und Bogen auf eine Venusfigur zielenden Cupido-Statue, die nahe der Laitière unter einer Esche aufgestellt war, in Bezug darauf, dass Amors Pfeile aus dem Holz jenes Baumes gefertigt waren. Vielleicht handelte es sich um einen der seinerzeit weitverbreiteten Abgüsse des bogenspannenden Amors von Lysipp (ca. 320 v. Chr.), den man auf die Venus am Schloss zielen ließ.[90]

Der Weg führt weiter über den heute so genannten Lennéhügel, von dem man einen überraschenden Blick über die Pergola des Casinos auf den Jungfernsee zu der von Persius gebauten Villa Jacobs hat. Am Gebüsch, halb versteckt befinden sich Säulentrümmer, ein Arrangement aus verschiedenen antiken Spolien, darunter zwei Säulentrommeln vom griechischen Poseidontempel am Kap Sounion und Kapitelle vom Pantheon und der Kirche San Paolo fuori le mura in Rom. Dekoriert war dies zusätzlich durch antike „Thonkrüge“.[91]
In der Mitte des Pleasuregrounds steht der Knabenbrunnen. Zu Hardenbergs Zeiten war hier ein sentimentales Brunnen-Denkmal, genannt „das Monument“, errichtet worden. Das „Monument“ blieb nach Anschluss an das neue Rohrleitungssystem bestehen. Erst nach 1851 wurde es zum heutigen Knabenbrunnen umgebaut. Die Anregung hierzu war ein 1850 veröffentlichter Brunnenentwurf Friedrich August Stülers, der zunächst Vorbild für die (nicht erhaltene) Froschfontäne in Sanssouci wurde. Für letztere modellierte Friedrich Wilhelm Dankberg die schalentragende Knabenfigur. Prinz Carl erwarb für seinen Brunnen einen Zinkabguss der Kunstgießerei Kahle in Potsdam.[92]

Im Norden des Pleasuregrounds nahe dem Klosterhof passiert der Weg eine Formation von acht Linden. Dies ist der Rest der geometrischen Alleebepflanzung des späten 18. Jahrhunderts. Hier kreuzten sich der axiale Weg vom Schloss zum Billardhaus (späteres Casino) und der wichtigste Querweg, wie es auf dem Parkplan Hellwigs von 1805 (s. o.) zu erkennen ist. Zu Prinz Carls Zeiten wurden diese Bäume durch regelmäßigen Schnitt zur sogenannten Lindenlaube umgeformt. Aufgrund fehlender Pflege im 20. Jahrhundert wuchsen die Bäume wieder hoch. Kürzlich hat man begonnen, durch Rückschnitt die Lindenlaube sukzessive wiederzugewinnen.
Die Lindenlaube ist die einzige der nichtarchitektonischen Lauben in Glienicke, die man noch gestalterisch nachvollziehen kann. Von anderen Lauben haben wir nur noch namentlich Kenntnis, wie der Eschenlaube, der Birkenlaube und der Fliederlaube. Von Letzterer hat sich die mosaikgepflasterte Terrasse erhalten, auf der eine modern nachgegossene gusseiserne Halbrundbank steht. Bemerkenswerterweise gab es in Glienicke keine Rosenlaube, die sonst in Parkanlagen des 19. Jahrhunderts obligatorisch war.
-
Laitièrenbrunnen -
Knabenbrunnen -
Blick vom Casino Richtung Neugierde -
Bank der Fliederlaube
-
Blick von der Fliederlaube zum Schloss -
Venus Italica (moderne Kopie am Schloss)
Rotunde (Große Neugierde)

Der Neubau der Glienicker Brücke 1831–1834 bedeutete für den Pleasureground eine kleine Gebietserweiterung, da die neue Brücke südlich parallel zur alten Holzbrücke errichtet wurde und die Straßentrasse entsprechend verschwenkt werden musste. Außerdem wurde das alte Chaussee-Einnehmerhaus aufgegeben und sein Eckgrundstück in den Garten integriert. An dieser neuen Gartenecke wünschte sich der Kronprinz eine runde Laube, wozu er Ende Januar 1835 auch erste Skizzen lieferte.[93]

Schinkel setzte diesen Grundgedanken mit einer Antikenrezeption um. Das durch Stichveröffentlichungen bekannte Siegesmonument des Choregen Lysikrates in Athen (später auch als Laterne des Demosthenes bezeichnet) bestimmte alle Details des neuen Pavillons, der den südwestlichen Eckpunkt Glienickes deutlich architektonisch markierte. Der eigentliche Pavillon entstand 1835 und sollte wohl später einen Aufsatz erhalten, dessen Gestalt aber noch nicht feststand. Um den Boden des Pavillons möglichst hoch zu positionieren, wurde unter ihm ein unzugänglicher Gewölberaum errichtet. Der Bodenbelag war einer Zeichnung Schinkels zufolge in verschiedenfarbigem Belag gedacht, wobei es nicht bekannt ist, ob es sich wie von Sievers vermutet um „Gußzement“, oder wie bei Löwenfontäne und Stibadium um Asphalt gehandelt hat, da bei dem Abriss 1907 keine Vermerke dazu erfolgten. Der Pavillon war mit einer offenen Lattung gedeckt, die mit Schlingpflanzen besetzt war.[94]

Die 16 Säulen bestanden damals aus hochmodernen Terrakotta-Werkstücken aus der Feilnerschen Tonwarenfabrik. Schinkel und Peter Beuth hatten im Zuge ihrer Reform des Gewerbewesens die Verwendung künstlerisch qualitätvoller Tonwaren in der Architektur propagiert. Wohl ebenfalls aus Terrakotta waren die Brüstungsfelder zwischen den Säulen, die in Form eines Gitters aus Halbkreisen bestanden. Die Einweihung vermerkte der Hofmarschall im Journal unter dem 2. Juli 1835: „Der Thee wurde auf dem neuen Pavillon im Garten, nahe der Brücke, getrunken.“[95]

1836/37 wurde die Laube auf Prinz Carls Betreiben von einer archäologisch fast getreuen Nachbildung des Lysikratesmonumentes bekrönt. Dabei wurden die Kapitelle der Pilaster, Akrotere, verschiedene Kleindetails und vor allem der bekrönende Dreifuß nach Schinkels Entwürfen von Geiß in Zinkkunstguss gefertigt.[96] Eine solche archäologische Rekonstruktion war seinerzeit etwas Besonderes und wurde auch entsprechend gewürdigt.
Gleichzeitig erhielt der Pavillon anstelle der Lattung ein umlaufendes Pultdach mit Blechdeckung. Die hölzerne Decke erfuhr eine ornamentale Bemalung in zurückhaltender Farbigkeit. Auch die Brüstungsfelder wurden prachtvoll verändert. Die nun eingefügten gusseisernen Brüstungsgitter in Vollvergoldung haben als Mittelmotiv im Wechsel einen Juno- und einen Jupiterkopf. Der Überlieferung zufolge soll Prinzessin Marie in den Juno-Bildnissen porträtiert worden sein, während der Jupiterkopf dem Typus des „Zeus von Otricoli“ folgt. Die Rotunde wurde nun auch ein Ort der Aufstellung für Teile der Antikensammlung. An dem mittigen Rundpfeiler, den eine Sitzbank umzog, waren in zwei Reihen antike Gesichtsplastiken eingelassen, oben zwölf größere und darunter in dem Putzband 36 kleinere Köpfe.[97] Sie sind teilweise verkauft worden, zum anderen Teil 1952 zur Ergänzung der Relieffragmente im Gartenhof eingemauert worden.
An Carls Geburtstag, dem 29. Juni 1836 vermerkte der Hofmarschall im Journal: „Der Tempel des Lysikrates stand zur Feier des Tages zum ersten Male ohne Gerüst fast vollendet.“[98] Doch noch fehlten dem Aufsatz die Zinkornamente, die erst 1837 geliefert werden konnten. Die endgültige Vollendung – es hatte schon zum Geburtstag des Königs am 3. August eine „Illumination der Rotonda“ stattgefunden – wurde am 16. August 1837 vom Hofmarschall wie folgt im Journal eingetragen: „Erste große Gesellschaft, nachdem die Rotonda vollendet ist, in derselben; […] mit dem Kronprinzlichen Hofe waren erschienen der Geheimrat Schinkel und der Professor Rauch hier; Persius war geladen.“[99] Man maß dem Bau also sehr viel mehr Bedeutung bei, als einem gewöhnlichen Aussichtspavillon.

Ob dieses Gebäude eine nicht nur formale, sondern auch inhaltliche Antikenrezeption war, ist derzeit nicht bekannt. Sowohl Lysikrates als auch Demosthenes wären als Identifikationsfiguren des Prinzen Carl denkbar.[100] Benannt wurde der Bau seinerzeit zumeist als „Rotonda“, bisweilen auch als „Monument des Lysikrates“ oder „Choragisches Monument“, gelegentlich auch als „Laterne des Demosthenes“. Im Gegensatz zur Neugierte war die Rotunde gänzlich einsehbar. Prinz Carl nutzte diesen Umstand an seinen Geburtstagen (29. Juni), indem er von hier aus seine Geburtstagsglückwünsche entgegennahm, was dieses Ritual zeitlich erheblich optimierte.[101]

Der Entwurf der Rotunde stand in unmittelbarem Zusammenhang mit Schinkels Neubau der Glienicker Brücke. Die neue Brücke sollte zunächst als Eisenkonstruktion errichtet werden. Ausgeführt wurde aber ein Sichtziegelbau aus roten Steinen, der mit seinen Segmentbögen in der Seenlandschaft einen starken architektonischen Akzent setzte. An den Enden bildeten die Brüstungsmauern halbrund zurückschwingende Exedren mit eingestellten Bänken zum Ausruhen der Passanten. Am 30. September 1834 wurde die Brücke durch eine feierliche Überfahrt der Zarin eingeweiht.
Auf dem Glienicke gegenüber liegenden Ufer bildete die Villa Schöningen, der Wohnsitz des Hofmarschalls von Glienicke Curd von Schöning, ein architektonisches Gegengewicht zur Rotunde. Diese Villa wurde 1843 von Persius mit königlicher finanzieller Beteiligung errichtet. Friedrich Wilhelm IV. hatte ein großes Interesse daran, diese exponierte Stelle der Potsdamer Umgebung mit einer baukünstlerischen Architektur zu zieren. Nach von Schönings Tod 1850 war Prinz Carl zeitweise Besitzer der Villa. Somit ist die Villa Schöningen bedingt als Bestandteil des Glienicker Parks anzusehen.

Schinkels Ziegelbrücke wurde aufgrund des gestiegenen Schiffsverkehrs 1905 bis 1907 durch die heutige elegante Stahlkonstruktion ersetzt, die aber der Rotunde und der Villa Schöningen ihre architektonische Fernwirkung nahm. Da die Straßenanschlüsse zur neuen Brücke Rampen erhielten, musste die Rotunde abgetragen und entsprechend auf dem neuen Straßenniveau wiederaufgebaut werden.[102] Frühestens zu dieser Zeit wurden die Terrakotta-Säulen durch Sandsteinsäulen ersetzt, da der Aufwand der Nachfertigung beschädigter Terrakotta-Bauteile in keinem Verhältnis zu den Kosten einer Neuschöpfung in Sandstein stand. Eine Säule wurde zu Dokumentationszwecken bewahrt und befindet sich heute im Lapidarium.

1938 wurde die mittlerweile fälschlich als „Große Neugierde“ bezeichnete Rotunde beim Ausbau der Reichsstraße 1 abermals abgetragen und 4,50 Meter parkeinwärts versetzt rekonstruiert.[103] Damit wurden die ursprünglichen Blickbeziehungen eingeschränkt, denn ursprünglich konnte man in die Fahrbahntrasse der Glienicker Brücke zur Villa Schöningen blicken. Der Ausblick muss grandios gewesen sein: „Und nun erst von diesem Belvedere der Rundblick über das Havelbecken nach dem Babelsberge, der fernen Stadt, über die steinernde Brücke, nach der bewimpelten Fregatte Royal Luise, dem Neuen Garten, über den weiten Jungfernsee bis zum geheimnisvollen Föhrenwald bei Nedlitz, der Römerschanze oder bis zur röthlichen »Heilandskirchee am Port« bei Sacrow.“[104] Geblieben ist nur der Blick nach Babelsberg zum neugotischen Sommerschloss von Carls Bruder Wilhelm.
1980/1981 wurde die in sich verdreht wiederaufgebaute Rotunde in Details wie dem Anschluss der Zungenmauern und der Sockelform nach Planung von Christiane Segers-Glocke korrigiert und gartenseitig der kegelstumpfförmige Erdsockel mit den beiden Steintreppen wiederhergestellt.[105] Eine abermalige grundlegende Restaurierung, die weitere Details wiederherstellte, konnte 2009 abgeschlossen werden. Der Rotunde kommt innerhalb der Potsdamer Kulturlandschaft eine große Bedeutung zu, da sie zum einen städtebaulich prägend ist zum anderen handelt es sich um eine der bedeutendsten Kleinarchitekturen in Schinkels architektonischem Werk. 1882, als Schinkels Bauten generell wenig geschätzt wurden, schrieb Heinrich Wagener: „Mit Interesse weilt der Blick aller Vorüberwandelnden an diesem edlen Kunstwerk, das eine unvergleichliche Zierde für die dort an malerischen Punkten reiche Umgebung ist. Schon aus der Ferne grüßt es die Schiffer auf der blauen Havelfläche und den Wanderer auf der steinernen Glienicker Brücke, als wolle es ihnen verkündigen, daß hinter diesen schweigenden dunklen Bäumen das alte Hellas mit seiner ganzen Lebensfreude und seinen Kunstschätzen ihrer harre.“[106]
Casino

Nördlich der Rotunde erstreckt sich in Nord-Süd-Richtung das 1824 von Schinkel entworfene Casino (ital. = Häuschen), sein frühester Bau für Prinz Carl. Es entstand durch den Umbau des eingeschossigen Billardhauses aus Mirows, Lindenaus und Hardenbergs Zeiten. Das Casino war die Dépendance des Schlosses mit dem wohl schönsten Theeplatz, der gerundet vorspringenden Terrasse in Richtung Jungfernsee. Mit seinen langen Pergolen bestimmt das Casino architektonisch das Jungfernseeufer. Es sollte eine Reminiszenz von Landhäusern am Golf von Neapel sein. In diesem Zusammenhang ist die zugehörige Fregattenattrappe (s. u.) zu verstehen.[107]

Im Casino befinden sich im Erdgeschoss zwei nach der Kriegszerstörung rekonstruierte Räume mit den wenigen verbliebenen vollplastischen Stücken der Antikensammlung. Im Obergeschoss befand sich eine kleine Wohnung für Gäste. Hier wohnten hochstehende Personen, denen man die eigentlichen Gästezimmer über dem Pferdestall des Kavalierflügels nicht zumuten wollte. Gelegentlich bezog auch das Prinzenpaar die Wohnung, um besonders nahestehenden Gästen, beispielsweise dem Zarenpaar, die eigenen Räume im Schloss überlassen zu können.
.jpg)
Der Bau des Casinos war für Prinz Carl gesellschaftlich ein sehr großer Erfolg, da es allseits bewundert wurde. Es ist durch Briefe überliefert, dass das Casino und dessen Ausstattung zeitweise Carls Lebensmittelpunkt bildeten.[108] Auch in späteren Jahren wurden alle Gäste des Prinzen zum Casino geführt, wo sie den Bau und die herrliche Lage gezeigt bekamen. Auch für Schinkel, nach dessen Plänen zuvor bereits hochbedeutende Bauten wie die Berliner Neue Wache und das dortige Schauspielhaus errichtet worden sind, wurde der Casinobau ein weiterer Markstein auf seinem Weg zum bedeutendsten Architekten Preußens. In seiner „Sammlung architektonischer Entwürfe“ charakterisiert er das Gebäude wie folgt: „Abgesondert von dem Hauptschlößchen liegt hart an dem Abhang nach dem See ein kleines Casino. […] Weinlauben umgeben von beiden Seiten das Gebäudchen und lassen die Treppen der Anhöhe unter ihrem Laubdache ansteigen; das Ganze ist außerdem mit kleinen Broncestatuen, Schalen, Wasserausgüssen, Springbrunnen etc. verziert. […] Man steigt von hier auf die oberen Regionen der anmutigen Gartenanlage, die durch Bassins und andere Werke ausgestattet, überall die lieblichsten Fernsichten in die reich an Wasser ausgestattete Gegend gewähren.“[109]
An der Ostseite des Casinos befindet sich ein Frühstücksplatz, von dem die Marmorbank und das darüber liegende Wandbild in architektonischer Rahmung erhalten sind. Die großen weiblichen Hermen aus violettrotem Marmor stammten aus der Sammlung des Duca di Braschi.[110] Das erneuerte Wandbild mit Schattenrissen von berühmten Antiken war wohl als gelehrtes Ratespiel gedacht. U. a. sieht man die Arme des Betenden Knaben von Sanssouci, der in einem Abguss dem Casino gegenübersteht. Hier lag ein nur fotografisch überliefertes, durch viele Spolien geziertes Antikengärtchen, das aber wohl erst in der zweiten Hälfte des 19. Jahrhunderts angelegt wurde. 1877 hatte Prinz Carl letztmals einen sehr großen Ankauf von Antiken getätigt, die kistenweise in Glienicke eintrafen. Vielleicht entstand damals das pompejianische Gärtchen. Denn weder Sohn noch Enkel des Prinzen Carl hatten Interesse an Antikengärten. Und die diesbezüglich interessierte Schwiegertochter Maria Anna hätte vermutlich eher am von ihr bewohnten Jagdschloss ein entsprechendes Gärtchen angelegt. Es ist vielmehr denkbar, dass Prinz Carl, der seit Januar 1877 Witwer war, sich mit Gestaltungen im engeren Gartenbereich vom Tod seiner Frau ablenken wollte.[111]

Von den zahlreichen antiken Steinkunstwerken, die Carl an und auf den Banklehnen versammelt hatte, ist so gut wie nichts verblieben.[112] Die Statue des Asklepios ist erst nach 1945 hier aufgestellt worden. Zu Prinz Carls Zeiten stand hier eine lebensgroße antike Figur, die seinerzeit als Aristides angesehen wurde. Laut Gröschel[113] war dies eine Identifikationsfigur des Prinzen Carl, denn Aristides war im fünften vorchristlichen Jahrhundert ein bedeutender Staatsmann und Heerführer Athens und unter dem Beinamen „der Gerechte“ als Führer der Konservativen Gegenbild zum bedenkenlosen Neuerer Themistokles.
Die weit ausladenden Pergolen sind die frühesten entsprechenden Pfeiler-Laubengänge, die im Berlin-Potsdamer Raum ausgeführt wurden.[114] Sie sollten in den folgenden Jahrzehnten eine zahlreiche Nachfolge erhalten. In die Blickachse der südlichen Pergola baute Schinkel die Rotunde, die durch das Versetzen 1938 heute nicht mehr sichtbar ist. In die Achse der nördlichen Pergola baute Persius den Wasserturm, der auch heute noch den Blickpunkt bildet.

Die unmittelbare Umgebung des Casinos war durch viele architektonische Details geziert, die zum großen Teil auf Schinkel zurückgingen. Von denen sind nur einige erhalten, so an der Nordpergola die Adlersäule und das Löwen-Wandbrünnchen. Vieles ist verloren, wie die Pflanzkübel auf der Abschlussmauer und die zweitverwendete Gusseisen-Brunnenschale aus Hardenbergs Zeiten im Endabschnitt der Pergola. Sievers weist auf den unterschiedlichen Charakter der Ausstattung der beiden Pergolen hin. Die Südpergola hatte mit dem Knabenbrunnen und den vielen eingestellten Antiken (von denen heute nur noch zwei Torsi in den Nischen des Casinos erhalten sind) eine heitere Stimmung als die Nordpergola.[115]
Die untere Pergola des Casinos wurde nach Bau der Uferchaussee 1841 bis zum Wassertor verlängert und erhielt zwei zierliche Rundbogenpförtchen nach Entwurf von Persius als direkten Zugang vom Casinogarten zur Chaussee. 1965 erneuerte man die Pergola in der Länge und Form von 1825, also auch ohne Pförtchen. 1981 wurden die Pförtchen rekonstruiert, nicht aber die Verlängerung zum Wassertor. Von der Verlängerung erhalten hat sich ein pavillonartiger ungedeckter Raum direkt am Wassertor, der einen weiteren Zugang zur Chaussee besitzt. Der Raum enthält eine tiefe überkuppelte Nische mit eingestelltem Sockel in der Achse der Pergola. Hier muss also eine besondere Skulptur gestanden haben, deren Aussehen nicht überliefert ist.
Wie das Schloss, so besitzt auch das Casino eine ungewöhnliche Erschließung. Zunächst war vorgesehen die vorhandene Eingangstür in der Mittelachse der Ostfassade zu belassen. Dann wurde dort die Antikenbank geplant und der Eingang wurde in die linke Achse der Nordfassade verlegt. Mit dieser Tür wurden im Erdgeschoss ein kleiner Vorraum und zwei große Zimmer erreicht. Das Obergeschoss wurde über die rechte Achse der Nordfassade erschlossen. Von einem Vorraum führte eine einläufige Treppe ins Obergeschoss. Dort standen den Gästen oder dem Prinzenpaar ein Vorraum, eine Küche, zwei Stuben und zwei Kammern zur Verfügung.[116]

Zum Südzimmer des Casinos hat sich der Entwurf Schinkels für die Ausmalung erhalten. Es ist einer der aufwändigsten Ausmalungsentwürfe, die wir von Schinkel für ein – zumal recht kleines – Zimmer kennen. Auffallend ist auch die üppig drapierte, fast gründerzeitlich anmutende Gardine, die aber wohl in durchscheinendem Voile gedacht war. Nach der Zerstörung fand man nur noch Reste der Deckenbemalung vor. Beim Wiederaufbau wurde der Raum komplett nach dem Schinkel-Entwurf ausgemalt. Dies ist noch auf Fotos im Landesdenkmalamt dokumentiert, aber nicht mehr im Zimmer selbst, da nach Übernahme durch die Schlösserverwaltung die Wandgestaltung mit Ausnahme der Decke überklebt wurde. Weil man unter der Neuausstattung des späten 19. Jahrhunderts keine Spuren der schinkelschen Malereien gefunden hatte, ging man davon aus, dass Schinkels Entwurf mit Ausnahme der Decke, von der sich vor 1942 ein Eckstück fand, nicht ausgeführt worden war.

Die Rekonstruktion des anschließenden Saals mit Stuckmarmorierung ist aber bis heute sichtbar. Hierfür sind sowohl ein Entwurf Schinkels als auch Fotos überliefert, welche die Umsetzung dieses Plans belegen. Das Casino wurde offenbar ein knappes Vierteljahrhundert nach seiner Fertigstellung im Inneren umgestaltet, denn das Journal vermerkt am 17. Oktober 1847, der König habe mit dem Prinzen Wasa das „neueingerichtete Casino“ sowie die Neugierde besichtigt.[117] So ist auch der heutige Fußbodenbelag von Carl erst später als Antiquität über den Kunsthandel erworben worden. Er stammte aus dem Palazzo Corner della Regina in Venedig und wurde 1849 bei dem Kunsthändler Francesco Pajaro erworben, der Prinz Carl (und auch dem königlichen Museum) sehr viele Kunstwerke vermittelt hat.[118]

Der Raum ist in seiner Lage der schönste in Glienicke. Drei große Fenstertüren öffnen sich zum Altan und führen den Blick über den Jungfernsee zum Pfingstberg, hinter dem im Sommer die Sonne untergeht. Der Blick schweift hier von der Hofmarschallsvilla an der Brücke, über den Neuen Garten, das Pfingstberg-Belvedere bis zur Villa Henckel und die als „Zuckerburg“ bezeichnete Villa Jacobs. Schinkel waren die beiden Raumausstattungen im Erdgeschoss offenbar wichtig, denn er veröffentlichte sie in der „Sammlung architektonischer Entwürfe“. Im Sommer sind diese mit den erhaltenen Antiken ausgestatteten Räume für Besucher zugänglich. Die Räumlichkeiten des Obergeschosses sind beim Wiederaufbau ab 1963 neu gestaltet worden und nicht öffentlich zugänglich.
Im Laufe der Zeit wechselte das Casino seine Funktion vom Wohn- zum Sammlungsgebäude. 1882 berichtet Heinrich Wagener: „Wohnlich eingerichtet ist das Casino nicht; es ist ein wahrhaftes Museum althellenischer, römischer und altgermanischer Kunst: Sarkophage, Curulische Stühle, Nerotorso, Köpfe, Lampen, Reliefs, Säulen, Kapitäle, Friese, Schmucksachen, Hausgeräth etc. bergen die eleganten Räume oder umlagern das Haus. […] Bekanntlich ist der Prinz ein wissenschaftlicher Kenner von Alterthümern, und viele seiner Exemplare gehören wohl zu den auserlesensten und seltensten. Von dem unglaublichen Sammelfleis des hohen Herrn auf diesem Gebiete zeugt nicht nur das wahrhaft überfüllte Casino, sondern auch die Arkadenhalle hinter dem Schlosse, deren Wände ganz mit derartigen archäologischen Funden bedeckt sind“.[119] Auch die Wohnräume des Obergeschosses wurden schließlich zu Sammlungszwecken genutzt. Hier wurde die ostasiatische Kleinkunst und Werke des italienischen Barock untergebracht.[120] Bergaus Inventar von 1885 weist eine schwer vorstellbare Fülle von Kunst-Ausstattung aus.[121]
Das im und nach dem Zweiten Weltkrieg stark zerstörte Casino konnte 1963 wieder unter Dach gebracht werden.[122] Damit begann der Wiederaufbau unter Leitung des seit 1960 amtierenden Landeskonservators Kurt Seeleke. Während man beim Wiederaufbau des Schlosses, der noch unter Landeskonservator Hinnerk Scheper geschah, verschiedene Zugeständnisse an die neue Nutzung machte, indem der Hofdamenflügel entkernt und verlängert, der Grundriss zudem stark modifiziert wurde, geschah beim Casino eine originalgetreue Rekonstruktion, bei der lediglich die stiegenartige Treppe durch eine modernen Bauanforderungen entsprechende Neukonstruktion ersetzt wurde.

Weihnachten 1965 berichtete die Zeitung Der Tagesspiegel ausführlich auf fast einer ganzen Seite von der Fertigstellung des Wiederaufbaus, dem man damals also große Bedeutung beimaß: „[…] Dr. Seeleke, seine Denkmalspfleger und Kunsthandwerker haben ein Bauwerk wiederhergestellt, das – um mit Johannes Sievers zu sprechen – »die Höhe und Feinheit geistiger und künstlerischer Kultur des beginnenden 19. Jahrhunderts wie kaum ein anderes im Umkreis Berlins offenbart«. Das klingt für den heutigen Betrachter anspruchsvoll, hier wurde aber in der Tat in liebevoller Arbeit ein excellentes Stück preußischer Baugeschichte erhalten, das weniger durch den Krieg als durch Vernachlässigung, Nichtachtung, ja Zerstörungswut ausgelöscht zu werden suchte. Daß man noch nicht recht weiß, was man mit seinen kostbaren Räumen anfangen soll, ist weniger wichtig. Die Verwaltung der Schlösser und Gärten wird sie in Obhut nehmen und vielleicht dem Antikenmuseum für Ausstellungen überlassen. Das würde dem »genius loci« Glienickes, der bestimmt war von der Antiken-Sammel-Leidenschaft des Prinzen Karl, am ehesten entsprechen. Prinz Karl hatte sein Schinkel-Kasino drinnen wie draußen mit antiken Statuen, Reliefs, Torsen und Fragmenten ausstaffiert. […]“[123]
Auch wenn die Sammlungen fast vollständig verloren sind, ist das Casino noch immer einer der bedeutendsten Bauten in Potsdams Umgebung. Sievers, der ja seinerzeit ein regelrechter Schinkel-Experte war, kam zu dem Schluss: „Als bauliche Aufgabe betrachtet, ist das Kasino gewiss nicht bedeutend. Aber als edle, bis in das Letzte ausgeglichene, künstlerische Schöpfung, deren vielfältige Elemente sich zu schönster Harmonie verschmelzen, gehört es nicht nur unter den Bauten von Glienicke, sondern innerhalb des Gesamtwerkes zum besten von dem, was uns Schinkel hinterlassen hat.“[124]
-
Ursprünglicher Grundriss des Casinos (Schinkel, 1824) -
Casino vor dem Bau der Uferchaussee (A. W. F. Schirmer, um 1837) -
Südpergola des Casinos -
Nordpergola des Casinos mit Blick zum Wasserturm -
Blick durch die Nordpergola zur Villa Jacobs -
Untere Pergola am Casino
Fregattenattrappe

Direkt am Ufer des Jungfernsees, etwas nördlich versetzt an einer Halbinsel, befand sich als Vertikalakzent zu der horizontal gestreckten Architektur des Casinos eine Fregatten}-Attrappe, genannt die Masten. Es war eine Holzarchitektur mit drei hohen Mastbäumen, die an Festtagen beflaggt wurden. Der praktische Nutzen des Gebäudes war der eines Geräteschuppens für die Matrosen der prinzlichen Miniaturflotte. Da auf dem Situationsplan zum Bau des Wassertores nur zwei parallel liegende Reihen von Pfosten und die drei Mastbaum-Fundamente eingezeichnet sind, ist anzunehmen, dass hier ein vorhandener Schiffsbau aufgebockt wurde.

Die Halbinsel war vermutlich erst im 18. Jahrhundert durch Aufschüttung entstanden, um hier einen Schiffsanleger für den Ziegel- und Kalksteintransport zu besitzen. Sie hatte noch im 19. Jahrhundert den Namen die Ablage. Auch nach Aufgabe der Ziegelei und Kalkbrennerei des Glienicker Gutes 1826 wurde die Ablage als Schiffsanleger genutzt und gärtnerisch gestaltet. Die Masten waren Richtung Casino halbhoch abgepflanzt, so dass die Illusion eines ankernden Schiffes unterstützt wurde. Auch nach dem Bau der Uferchaussee ab 1841 blieb die eigentliche Uferzone und damit die Ablage Eigentum des Prinzen und Teil des Parkes.[125]
Die Masten waren eine einzigartige Stimmungsarchitektur sowohl innerhalb der Potsdamer Kulturlandschaft als auch innerhalb Schinkels Werk. Dass Schinkel zur Urheberschaft dieser Landschaftsdekoration stand, legt seine Veröffentlichung in seiner „Sammlung architektonischer Entwürfe“ 1840 nahe. Dort beschreibt er sie kurz: „Zur Seite ist in den See ein Seeschiff mit seinen Masten zur Belebung der Gegend gelegt, und überall ist der belebte See mit den zierlichen Gondeln des Prinzen geschmückt.“[126] Und Hermann Jäger beschreibt noch 1888 in seiner populären „Gartenkunst und Gärten sonst und jetzt“ (s. u.): „Das nahe am Park vor Anker liegende zur Dekoration angebrachte Kriegsschiff von alter Form paßt, obwohl es nur Schein ist, ganz zur wasserreichen Umgebung.“ Das Beflaggen der Masten an Festtagen wird mehrfach erwähnt und ist auf dem Gemälde von Bleuler (s. o.) dargestellt. Ob aber an den Masten, auch Segel gesetzt wurden, wie Schinkel dies für die Veröffentlichung gezeichnet hat, ist zweifelhaft.

1877 notierte Inspektor Ritter im Journal: „In der Nacht vom 14. Zum 15. Mai brannten die Masten und zwar brannte der Mittelmast, Hintermast, sämtliche Takelage, und der halbe Schuppen vollständig nieder. 80 Pfund Pulver die in Kartuschen und im Schuppen dort lagerten gingen mit in die Luft. Wie das Feuer ausgekommen läßt sich nicht feststellen, es ist jedenfalls angelegt.“[127] Da aber auch weiterhin das Beflaggen der „Masten und Böte“ notiert wurde, sind die Masten wohl nach dem Brand wiederhergestellt worden. Sievers zufolge[128] wurden die Masten 1880 abermals durch Brandstiftung zerstört, dann aber nicht wieder aufgebaut. Da in jenem Jahr aber das Palmenhaus auf der Pfaueninsel durch Brandstiftung zerstört wurde, liegt hier möglicherweise eine Verwechslung vor. Die Ablage, die auch als Vorplatz des Wassertores mit Seeblick Bedeutung hatte, überwucherte und wird entsprechend heute gar nicht mehr als Landzunge wahrgenommen. Der hölzerne Anlegesteg, der noch auf dem Kraatz-Plan verzeichnet wurde, ist schon seit langem verschwunden.

Die Fregattenattrappe ist nicht nur in Potsdam, sondern auch in der gesamten deutschen Landschaftsgartenkunst ohne Parallele. Leiste führt als mögliche Anregung die den dreizehnjährigen Prinz Carl sehr beeindruckende Premierenfahrt auf der ersten 1814 vom britischen Hof dem preußischen König geschenkten Miniaturfregatte an.[129]
Die Miniaturflotte entstand sukzessive, erstmals beschrieben wurde sie im Bericht über Glienicke in der Leipziger Illustrierten Zeitung 1846: als einer „Menge kleiner, zierlich bemalter Ruder- oder Segelböte, deren farbige Flaggen lustig im Winde“ flatterten.[130] Dies gibt die Gouache von Bleuler anschaulich wieder. Von den Segelschiffen sind mehrere namentlich überliefert, so die „Stralsund“, die „Navarin“ (ein Geschenk des Zaren) und die „Humphrey“, mit der der Prinz Ausflugsfahrten unternahm. 1837 wurde sogar ein Dampfboot angeschafft und auf den Namen des Prinzen getauft. 1840 wurde die kleine Flotte durch ein Gig verstärkt, den der König nach dem Muster eines englischen Bootes in Pillau bauen ließ. Es wurde das letzte Geschenk Friedrich Wilhelms III. an Carl, der es drei Wochen nach dem Tod seines Vaters an seinem Geburtstag erhielt. Wo die Flottille im Winter und während längerer Abwesenheit des Prinzen untergebracht war, ist bislang nicht bekannt.
Prinz Carl war zudem ein begeisterter Schwimmer. August Kopisch berichtete 1854: „Da der Prinz Bad und Wasserfahrt liebt, ließ er ein Badezelt und verschiedene zierliche Segelschiffchen als kleine Flotte in den Schutz des Ufervorsprungs nächst dem Kasino stellen.“[131] Weder das Aussehen des Badezeltes noch die genaue Verankerungsart der Segelschiffchen an der Ablage sind überliefert.
Dianabeet und Antikenprogramm

In der Nische an der Nordseite des Casinos stand zur Zeit Prinz Carls eine als Athena ergänzte Statue, die sich heute im British Museum in London befindet. Damit war das Casino als ein Ort der Kunst charakterisiert. Dem Casino inhaltlich zugehörig ist das benachbarte Diana- oder Pliniusbeet, das von einer antiken Statue der Göttin der Jagd bekrönt war, die heute durch einen Abguss ersetzt ist (Original im Casino). Die von der Göttin verfolgten Wildtiere waren früher in der immergrünen Bepflanzung des kegelstumpfförmigen Beetes kunstvoll eingeschnitten.

Beide Göttinnen waren Bestandteil des Glienicker Antikenprogramms, das auf den Pleasureground beschränkt war und das heute nur noch teilweise nachzuvollziehen ist.[132] Neben Diana und Athena am Casino, wären Merkur und Venus an der Westfassade des Schlosses zu nennen, Neptun am Remisenhof, und die Felicitas Publica des Stibadiums (das ja ohnehin ein Programm der olympischen Götter besitzt) folgt mit ihrem Füllhorn der gängigen Darstellung der Ceres. Jupiter und Juno sind nicht durch Standbilder, sondern durch die goldenen Brüstungsgitter der Rotunde sehr präsent. Das gelegentlich als Ort des Hephaistos bezeichnete Dampfmaschinenhaus[133] könnte einen Verweis auf den Gott Vulkanus besessen haben (seine Gattin Venus steht als historischer Zinkguss der Venus von Capua im dortigen Durchblicksbogen), wie der daneben gelegene Geschützplatz auf Mars. Demgegenüber liegen zur Thematisierung von Apoll und Vesta, die sich wegen Carls Musikalität und Maries Häuslichkeit besonders als Identifikationsfiguren des prinzlichen Paares angeboten hätten, beim derzeitigen Kenntnisstand der Quellenlage keinerlei Hinweise vor.

Rätselhaft scheint auch die Auswahl der Plastiken über der Weinlaube und auf dem Propylon. Während die „Felicitas Publica“ einen allgemein positiven Aspekt der Fürstentätigkeit für die Allgemeinheit und die Athena einen Verweis auf die Kunst darstellt ist die Auswahl von Achilles, Iphigenie und Odysseus aus dem zwölf Figuren umfassenden Teesalon-Zyklus Tiecks schwer zu deuten. Namentlich Achilles als quasi Hausgeist auf dem Propylon ist bislang noch gar nicht gedeutet worden.[134]
Der Glienicker Pleasureground ist weniger eine Reflexion von Italiensehnsucht, als dass er eine antike Villenanlage darstellen soll. Sie steht in der Tradition der beiden Villen des jüngeren Plinius, der seine Anlagen in Beschreibungen der Nachwelt hinterlassen hat. Lage und Aussehen dieser Anlagen sind bis heute nicht bekannt. Darum waren diese Villenbeschreibungen seit dem 18. Jahrhundert Imaginationsfläche für Generationen von Architekten und Bauherren. Während der Kronprinz in Charlottenhof einige Details der Plinius-Beschreibungen (z. B. das Stibadium) architektonisch rekonstruieren ließ, hat Carl in seinem Anwesen einen eher versteckten Bezug gewählt.
Klosterhof

Der Klosterhof wurde 1850 zwischen Casino und Gewächshausbau als spätestes Gebäude des Plaeasuregrounds errichtet. Es ist der einzige bedeutende Bau Glienickes, dessen Entstehung nicht durch Entwurfspläne dokumentiert und bei dem die architektonische Urheberschaft eine Zuschreibung ist. Er ist in seiner Struktur, seinen Bauformen und mit seiner Ausstattung der ungewöhnlichste Bau im Glienicker Park.
Formaler Anlass des Baus war die Unterbringung von Carls umfangreicher Sammlung mittelalterlicher Schatzkunst und der byzantinischen Plastik, die der Prinz zumeist über den Kunsthandel erworben hatte und die bis dahin in der sogenannten Waffenhalle im Stadtpalais aufbewahrt wurde. Zum Bau des Klosterhofs wurden in Venedig gezielt historische Bauglieder angekauft, die als Spolien verbaut werden konnten.

Die zum Pleasureground gelegene Bogenhalle war schon zuvor entstanden, denn sie ist bereits auf den Meyer-Plänen 1845 eingetragen. Dieser Bauteil besitzt auch einen klassizistisch profilierten Sockel und ist als einziger nicht gewölbt. Die Halle diente wohl, wie heute der gesamte Vorhof, zunächst als Tor zwischen Pleasureground und Park. In den Bögen dieser Vorhalle zum Garten standen sechs große Statuen, bei denen wir nicht wissen, ob es Antiken oder mittelalterliche Skulpturen waren.[135]
Der Klosterhof besteht aus einem Vorhof und dem schon zu Prinz Carls Zeiten verschlossenen kreuzgangartigen inneren Hof, zu dem vermutlich nur das Prinzenpaar und der Inspektor Schlüsselgewalt hatten. Der Vorhof verweist durch eine hohe Säule mit dem Markuslöwen auf Venedig. In den heute leeren Nischen seitlich der großen Säule standen Ziersäulen. Ihre unteren Hälften (sandsteinerne Knotensäulen) stehen heute im Gartenhof, die Oberteile in Cosmatenarbeit befinden sich wegen der Gefahr des Vandalismus im Lapidarium. Bekannt ist das an einer Mauerecke eingebaute sogenannte Affenkapitell, das ein Kapitellfragment vom Campanile zu Pisa („Schiefer Turm“) ist. Außerdem befanden sich ein kapitellartiger „Brunnenstein“ und ein „byzantinischer Brunnentrog“ im Vorhof.[136] Im Glockentürmchen hing zur Zeit des Prinzen Carl eine Glocke, die eine sentimentale Klangstaffage des Parks war. Zur nördlichen Eingangshalle führte vom Park her (Weg zum Wassertor) bemerkenswerterweise kein Weg, sondern eine Rasenfläche.

Der innere, eigentliche Klosterhof besteht aus einem U-förmigen, kreuzgratgewölbten Gang und einer zwischen den Gang-Enden liegenden überwölbten Nische. Die Arkaden des Kreuzgangs werden von gotischen Doppelsäulen getragen, die auch das Eingangsportal flankieren. Sie stammen aus dem Kloster S. Andrea della Certosa bei Venedig. Prinz Carl erwarb sämtliche Spolien über den Kunsthandel und schuf damit „die erste Sammlung byzantinischer Kunstwerke im modernen Europa.“[137]
In der Literatur wird zumeist Ferdinand von Arnim als Architekt angegeben. Er war auch als Hofarchitekt des Prinzen Carl 1850 für die Bauausführung zuständig. Doch gibt es keine historischen Erwähnungen von v. Arnim als Architekt des Klosterhofes.[138] Rätselhaft bleibt die Tatsache, dass es trotz der Bedeutung des Baus keinerlei Hinweise zur Bauplanung gibt, keinerlei Skizzen überliefert sind, keine Bauarbeiten erwähnt werden, und vor allem, dass weder im Journal noch in der Korrespondenz eine Einweihung erwähnt wird. Es sind auch keinerlei Rechnungen überkommen und keine Klagen der Inspektoren bei der Jahresabrechnung des prinzlichen Hofes, in der der mit seinen vielen Zierelementen und Schmiedearbeiten sicherlich kostspielige Bau schwer zu Buche geschlagen sein dürfte. Es sei denn, er wäre von anderer Seite finanziert worden, wofür aber keine Anhaltspunkte vorliegen. Der Klosterhof ist außerdem der einzige bedeutende Bau Glienickes, der seinerzeit nicht veröffentlicht wurde.
Die früheste bekannte Erwähnung des Klosterhofs befindet sich in einem Brief des Prinzen Friedrich Karl an seinen Vater vom 12. August 1851. Die Erwähnung verblüfft, weil sie keinesfalls von geistiger Kontemplation oder wissenschaftlichem Studium, sondern von einem sehr profanen, wenn auch romantischen Zweck des Klosterhofs berichtet: „Wenn das Wetter es erlaubt, frühstückt Mama gewöhnlich im Klosterhöfchen, wo es wirklich reizend ist.“[139] Beim Frühstücken saß man vermutlich auf den Bänken in der Bogennische unter dem Sarkophag in Betrachtung der von der Morgensonne beschienenen Arkaden und lauschte dem Springbrunnen in der mittelalterlichen Brunnenmündung in der Mitte des Hofes.

Von 1854 stammt die erste bildliche Darstellung auf einer Leuchtervase, die dem heutigen Zustand entspricht. Johannes Rabe hat für ein Albumblatt der Prinzessin Marie 1858 den Vorhof gezeichnet. Vermutlich datiert seine Zeichnung zum inneren Hof aus demselben Jahr. Der einzige bekannte historische Grundriss des Gebäudes befindet sich auf dem Kraatz-Plan von 1862.
Die früheste bekannte Beschreibung der Anlage stammt von 1864. Anlass war ein Ausflug des erst 1862 gegründeten Vereins für die Geschichte Potsdams unter Leitung seines Vorsitzenden Louis Schneider, der seinerzeit Hofvorleser Friedrich Wilhelms IV. war. Der Ausflug am 25. Mai fiel buchstäblich ins Wasser, statt eine Wanderung durch Park und Garten unter Führung von Hofgärtner Gieseler zu unternehmen, flüchtete die Gruppe vor dem strömenden Regen in den Klosterhof, wo sich Hofrat Schneider in der Nische positionierte und die einunddreißig Teilnehmer ihm aus den Kreuzgangarmen lauschten. Die Daten zu seinem Vortrag hatte Schneider am Tag zuvor bei einer Privataudienz von Prinz Carl erfahren. Schneiders Bericht ist also gewissermaßen als halbamtliche Äußerung Carls zu bezeichnen und die wichtigste Quelle zum Bau:
Der Klosterhof entstand „im Jahre 1850 nach den eigenen Angaben des fürstlichen Besitzers zur Erinnerung an seinen oft wiederholten Aufenthalt in Venedig und zur Aufstellung einer ausgesuchten Sammlung mittelalterlichen Kunstschätze im Charakter eines Byzantinischen Chiostro […] Den größten Theil der hier beim Bau verwendeten, eingemauerten und aufgestellten Werkstücke, Sculpturen und Ornamente stammen von der kleinen Insel Certosa bei Venedig, wo im Jahre 1844 schon halb in Ruinen liegende Baulichkeiten abgebrochen werden mußten, um die Anlage von Militair=Etablissements zu ermöglichen, indessen sind auch anderweitig gemachte Funde und Ankäufe dem ebenso zierlichen als charakteristischen Bau hinzugefügt worden. In der Mitte des Klosterhofes ist in einem Byzantinischen Brunnensteine eine Fontaine angebracht, und in der einen Seitenapsis befindet sich eine ausgesuchte Sammlung Byzantinischer Emaillen und mittelalterlicher, historischer Merkwürdigkeiten, denen eben Form und Charakter des ganzen Gebäudes entspricht; auch die tönende Klosterglocke fehlt nicht.“

_b_705_3.jpg)
Schneider konnte auf das
„in der Höhe der Mittelapsis angebrachte Grabdenkmal des [Philosophen] Pietro v. Abano (d’Apone) aufmerksam machen, welches aus der Kirche San Antonio in Padua herstammt und aus einem Marmorsarkophag mit darauf liegender lebensgroßer Statue besteht. Der […] Paduanische Gelehrte starb 1316, noch ehe der von der Inquisition gegen ihn als Zauberer geführte Prozeß entschieden war, 80 Jahre alt, und entging dadurch dem Scheiterhaufen. Seine Verehrer, namentlich die Studenten der Universität, errichteten ihm dieses Grabdenkmal; religiöse Eiferer wollten seinen Körper aber noch nach dem Tode verbrennen und die Studenten vermochten die Gebeine ihres Lehrers nur dadurch vor den Flammen weltlicher Verdammnis zu retten, daß sie selbst das Grabmal öffneten und die Leiche verbargen. Dabei wurde der Sarkophag in drei Stücke zerbrochen, in seiner hiesigen Aufstellung aber so kunstreich wieder zusammengefügt, daß es fast unmöglich ist, die Brüche zu bemerken.
Weiter machte [Schneider die] Zuhörenden auf den Kaiserstuhl aufmerksam, der früher im Dome zu Goslar gestanden und urkundlich dem Kaiser Heinrich III. (1009–1056) und Heinrich IV. (1056–1106) bei den in Goslar abgehaltenen Reichstagen als Sitz gedient. […] Heinrich IV., der mächtige Kaiser nach seinem Siege über die Sachsen auf diesem Stuhle und der demüthige Büßer Heinrich im Klosterhofe zu Canossa! Dieser Gegensatz drängt sich dem Beschauer unwillkürlich auf.
Ein großes goldenes Kreuz aus dem Kirchenschatz des Baseler Doms, ein Geschenk Kaiser Heinrichs II. an denselben und infolge der Revolution, welche Baselland von Baselstadt trennte, verkauft, von eben so intensivem als künstlerischem Werthe, – mehrere Bischofsstäbe aus dem 10ten und 11ten Jahrhundert, Reliquienkasten, Ampullen, Patenen, Monstranzen, Krucifixe, Heiligenschreine, eine Bibelhandschrift mit Initialen, so wie viele andere Gegenstände, alle in Form, Bestimmung und Zeitalter dem Charakter des ganzen Baus entsprechend, fesselten die Aufmerksamkeit der Beschauer und gaben Veranlassung zu belehrenden Vergleichen und Bemerkungen, wobei sich der Wunsch aussprach, einen raisonnierenden Catalog dieser merkwürdigen Sammlung, für jeden Geschichtsfreund zugänglich, zu besitzen, da selbst unter den Anwesenden fast niemand bisher von der Existenz und dem reichen Inhalt derselben etwas gewußt.“[140]
Schneider betonte also den byzantinischen Charakter und hob Philosophensarkophag, Heinrichskreuz und Kaiserstuhl als wichtigste Objekte hervor.
In seiner zweibändigen Monografie über den Klosterhof verwies der Archäologe und Kunsthistoriker Gerd H. Zuchold 1993 auf die Nähe des Klosterhof-Gebäudes zu von König Friedrich Wilhelm IV. initiierten Bauten.[141] Und sicherlich ist bei dem sehr engen brüderlichen Verhältnis der Klosterhof ohne die Kenntnis der Bautätigkeit Friedrich Wilhelms IV. nicht zu verstehen.

Seit dem Tod König Friedrich Wilhelms III. 1840 wurde am preußischen Hof oft beklagt, dass Hardenberg – ein in der königlichen Familie wegen seiner Reform- und Machtpolitik ungern erwähnter Name – dem König 1810 ein Verfassungsversprechen abgerungen hatte. Dieses Versprechen lastete als schweres Erbe auf der Regentschaft Friedrich Wilhelms IV. und wurde bewusst verschleppt. Die Idee des Gottesgnadentums der Königswürde war eine Grundlage von Friedrich Wilhelms politischem Verständnis und durfte nicht in Frage gestellt werden. Entsprechend empfand der König die ihm 1849 von der Frankfurter Nationalversammlung angetragene Kaiserkrone nicht als Ehre und wies sie empört zurück.[142]
Friedrich Wilhelm versuchte seinen mystizistischen Christentums-Vorstellungen baulich Ausdruck zu verleihen, wofür die nicht verwirklichten Pläne Friedrich August Stülers zum Neubau des Berliner Doms das monumentalste Beispiel waren. In kleinerem Maßstab konnte er seine Vorstellungen aber umsetzen: Zum heidnischen Sanssouci (es gab dort keine Kapelle, als Hofkirche diente die Garnisonkirche) sollte ein christlicher Gegenpol gesetzt werden. So wurde 1845, genau hundert Jahre nach der Grundsteinlegung zu Sanssouci, der Bau der Friedenskirche begonnen. Wie beim Berliner Dombau wurden frühchristliche Bauformen gewählt, als Hinweis auf ein gewissermaßen noch unverfälschtes Christentum. Im Herbst 1848 konnte der König seine Friedenskirche weihen, ein ihm wichtiges Ereignis zur Verdrängung des Revolutionsgeschehens Anfang des Jahres.
Vor diesem Hintergrund gesehen ist der Bau des Klosterhofs auch ein politisches Statement Prinz Carls und fand sicher nicht zufällig kurz nach der Revolution von 1848 statt. Nicht die Republik Venedig sollte hier geehrt werden, sondern das Kaisertum von Byzanz, als eine spätantik-mittelalterlich festgefügte Ordnung von Thron und Altar. Betrachtet man, wie die Zarenfamilie es tat, die russische Zarenwürde als Nachfolge der Kaiserwürde von Byzanz, so wäre Carls Sammlung byzantinischer Kunst auch ein verstecktes Dokument der Verehrung Russlands und dessen politischer Ordnung.[143]

Zuchold erklärt König Friedrich Wilhelm IV. zum Urheber des Klosterhofs und für die architektonische Umsetzung Friedrich August Stüler – seit Schinkels Tod 1841 der Architekt des Königs.[144] Dies mag aus kunsthistorischer Sicht ein reizvoller Gedanke sein, doch bleibt dies ohne auch nur einen einzigen historischen Hinweis reine Spekulation. Außerdem ist der Klosterhof nicht in frühchristlichen, sondern in oberitalienisch-romanischen Stilformen unter Verwendung von teilweise gotischen Spolien entworfen, was ihn von den Bauten des Königs doch sehr unterscheidet.
Über die Ausstattung des inneren Klosterhofs sind wir nur unzureichend unterrichtet, da Prinz Carl keinen Katalog erstellte und der Verkauf der Kunstwerke durch Prinz Friedrich Leopold sukzessive vonstattenging. Als Johannes Sievers 1938 ein Inventar erstellte, war die Sammlung im Wesentlichen auf den heutigen Bestand reduziert. Außerdem ist der Klosterhof Ende der 1950er Jahre sehr rigoros instand gesetzt worden. Durch vollständigen Neuverputz sind seither keine Verankerungslöcher von Kunstwerken mehr vorhanden.

Die mittelalterlichen Bildwerke sind in die Wände des Kreuzganges eingelassen.[146] Es handelt sich überwiegend um Paterae und Formellae, also runde oder hochrechteckige, zumeist venezianische Zierreliefs. Das kostbarste dieser Reliefs ist heute nur als Abguss vertreten: Der Kaisertondo des späten 12. Jahrhunderts in der Mittelachse der Südwand ist heute eines der Glanzstücke des Museums im Landhaus Dumbarton Oaks in Washington D.C. Sein Pendant in der Mittelachse der Nordwand ist eine Gottvaterbüste der Zeit um 1500 in einem reizvollen Ädikula-Pasticcio.
Doch die Aufstellung der Kunstwerke im Klosterhof unterscheidet sich deutlich von den vornehmlich dekorativen Arrangements der antiken Reliefs im Gartenhof. Der Kunsthistoriker Swiechowski konstatierte 1982: „In Glienicke wurde anstatt lapidarialer Ausstellung meines Wissens zum ersten Male der Versuch einer Integration der aus Venedig mitgebrachten Fassadenreliefs unternommen, indem man den mutmaßlichen ursprünglichen Zusammenhang mit bestimmten Architekturgliedern wiederherstellte. So wurden beim Bau des Klosterhofes von Glienicke gleichzeitig die Rankenfriese, das typische Siegeskreuz mit der segnenden Manus Die und die zusammenhängende, reich geschmückte Archivolte in einer sinnvollen Anordnung mitverwendet. Es wurde ein Gesamtkunstwerk angestrebt und […] auch tatsächlich erreicht.“[147]
Der linke Gang endet an einer großen Nische, in der ein besonderes Kunstwerk, vermutlich eine Großplastik oder eine Schmucksäule, gestanden haben muss, das aber nicht mehr bekannt ist. Es schließt sich ein kleines Gelass an, mit der im Boden eingelassenen Jahreszahl MDCCCL, dessen Bestimmung ebenfalls nicht mehr bekannt ist. Der rechte Gang besitzt am Ende ebenfalls eine große Nische, die eine besondere Plastik geborgen haben muss. Hier schließt ein kapellenartiger Tresorraum an. Er hat einen kreuzförmigen Grundriss und ist überkuppelt. Er besaß ein Oberlicht, das wahrscheinlich mit einer schmuckvollen Gitterlaterne gesichert war.

In diesem Tresorraum befand sich die von Louis Schneider erwähnte kostbare Sammlung mittelalterlicher Schatzkunst, deren Höhepunkt das heute im Kunstgewerbemuseum Berlin aufbewahrte goldene Vortragekreuz Kaiser Heinrichs II. war. Als größte Kostbarkeit war hier im rechten Kreuzarm unter dem Fenster der berühmte Goslarer Kaiserthron aus dem 11. Jahrhundert aufgestellt, den Prinz Carl über seinen Erzieher Heinrich Menu von Minutoli erworben hatte. Die Mosaizierungen der Gewölbe sind keine Sammlungsstücke, sondern Teilkopien von Mosaiken in der Friedenskirche.
Auffallend ist die wenig repräsentative Aufstellung der Kunstwerke. Beispielsweise dürfte der Kaiserthron zuvor in der Waffenhalle des Stadtpalais’ eine sehr viel hoheitsvollere Wirkung gehabt haben.[148] Bei dem geschilderten Umfang der Sammlung muss ihre Unterbringung in der „Kapelle“ einen schatzkammerartigen Eindruck gemacht haben.[149]

Zuchold verweist auf den Reliquien-Charakter, den einige der von Carl gesammelten Kunstwerke besaßen. Das Heinrichskreuz war sogar ein richtiges Reliquiar mit Partikel des Heiligen Kreuzes und Knochensplitter Kaiser Heinrichs II.[150] Folgt man Olaf B. Rader in seinen Ausführungen zu Grab und Herrschaft,[151] dann sind derartige Reliquien oft ein Unterpfand von Machtwahrung oder Machtstreben. Leider ist nicht bekannt, welche Bedeutung Carl den Herrschern Heinrich II., Heinrich III., Heinrich IV. und Lothar III. beimaß, denen wichtige Sammlungsstücke zugeordnet werden können. Die kunsthistorische Bedeutung des byzantinischen Kaisertondos dürfte Carl bewusst gewesen sein, ob er aber das Relief einem bestimmten Herrscher zuordnete, ist nicht bekannt.
Dagegen wurde der Symbolgehalt des „Kaiserstuhls“ sogar tagespolitisch eingebunden: so sandte Carl 1871 seinem Bruder Wilhelm das Objekt leihweise ins Berliner Schloss. Dort konnte der neue deutsche Kaiser die erste Reichstagseröffnung von einem Thron mittelalterlicher römisch-deutscher Kaiser vornehmen. Dies war eines der frühen Beispiele der Geschichtsklitterung mit der das Bismarckreich als Nachfolger des Heiligen Römischen Reichs etabliert werden sollte. Am Ende seines Lebens aber sah Carl den „Kaiserstuhl“ weniger gut beim preußischen Hof aufbewahrt und vermachte ihn testamentarisch der Stadt Goslar, wo sich der Thron heute in der erhaltenen Domvorhalle befindet.
Der Klosterhof ist eine ungewöhnliche Verbindung von romantischer Stimmungsarchitektur und Museumsfunktion, gewissermaßen eine sehr verspätete Eremitage mit wissenschaftlichem Anspruch und politischer Aussage.[152] Er ist trotz formaler Ähnlichkeiten zum Ensemble der Potsdamer Friedenskirche eine einzigartige Anlage geblieben. Obwohl die gesamte Schatzkunst und wichtige Stücke der byzantinischen Kunst verloren sind, ist die hier erhaltene Sammlung weltweit immer noch eine der umfangreichsten ihrer Art, die mittlerweile auch durch einen wissenschaftlichen Katalog erschlossen ist.[153]
Orangenhaus und Gewächshäuser

Mit dem Bau des Dampfmaschinenhauses 1838 war die Voraussetzung für einen technisch zeitgemäßen Neubau der Gewächshäuser gegeben. Da die Treibhäuser am Gartensalon aus Lindenaus Zeiten weder in der Größe noch in der technischen Ausstattung modernen Anforderungen entsprechen konnten, plante Schinkel 1839 an ihrer Stelle basierend auf einer Skizze des Kronprinzen einen Neubau, der aber nicht verwirklicht wurde. Dieser Gebäudeentwurf war zwar sehr repräsentativ, hätte aber den Pleasureground architektonisch sehr dominiert.[154]

Da Prinz Carl an dieser Stelle aber das Stibadium bauen wollte, musste ein Gelände für einen Ersatzbau festgelegt werden. Man wählte den Bereich westlich des Remisenhofs am Rande des Pleasuregrounds, auf dem sich schon drei kleine Treibhäuser befunden hatten. Persius entwarf eine zweiteilige Anlage, bestehend aus den nach Süden ausgerichteten Treibhäusern, die von kleinen Wassertürmen flankiert werden, und der hohen, nach Osten ausgerichteten Orangerie.[155] Mit den großen Arkaden der Orangerie bezog sich Persius architektonisch auf die Arkatur der Remise. Diese Beziehung ist durch den Neubau eines Wohnflügels in angepassten Bauformen in den 1950er Jahren gestört worden.
Der Bau wurde bis zum Sommer 1839 fertiggestellt. Während der Orangeriebau der Unterbringung der nicht winterharten Kübelpflanzen diente, wurden in den Treibhäusern Früchte angezogen, wie Ananas, Feigen, Pfirsiche, Pflaumen und Erdbeeren. Vor den Treibhäusern wurden großflächige Anzuchtbeete angelegt und diese laut den Parkplänen zum Pleasureground abgepflanzt. Architektonisch wirksam ist das Gebäude Richtung Pleasureground durch die gewölbten Glasdächer der Gewächshäuser und den Giebel der Orangerie. Zum Park hin war nur die Bogenfassade der Orangerie baulich wirksam, die beiden anderen Fassaden waren schmucklos und weitgehend abgepflanzt.
Persius veröffentlichte dieses Gebäude in den „Neuesten Bau-Ausführungen“, wobei deutlich wird, dass er es als ein technisch besonders gelungenes Werk einschätzte. Innerhalb des Persius’schen Bauschaffens nimmt die funktional symmetrisch angeordnete und wenig malerisch gestaltete Baugruppe eine Sonderstellung ein.[156]
Das seit Ende des 19. Jahrhunderts nicht mehr benutzte Gebäude verfiel. Um 1940 wurde die Orangerie und der eine Flügel des Gewächshauses abgerissen. Im Vorfeld des „Schinkeljahres“ 1981 kam man auf den Gedanken, den Bau wieder vollständig zu rekonstruieren, ein Grenzfall der Denkmalpflege, der seinerzeit damit legitimiert wurde, eine Lückenschließung in der Kette der den Pleasureground einfassenden Gebäude vorzunehmen. Die Planung dieses 1981 abgeschlossenen Wiederaufbaus lag in Händen der späteren niedersächsischen Landesdenkmalpflegerin Christiane Segers-Glocke, die gleichzeitig Details der Rotunde im Sinne Schinkels rekonstruierte.
Im Sommer wird der Saal der Orangerie für Veranstaltungen genutzt. Hier fand beispielsweise im September 2004 eine Fachtagung des „Brandenburgisches Landesamt für Denkmalpflege und Archäologisches Landesmuseum“ (BLDAM) und der „Stiftung Preußische Schlösser und Gärten Berlin-Brandenburg“ (SPSG) unter Mitwirkung des „Landesdenkmalamt Berlin“ (LAD), des „Brandenburgisches Landeshauptarchiv“ (BLHA) und der „Sozialpädagogische Fortbildungsstätte Jagdschloss Glienicke“ (sfbb) statt. Auf ihr wurde am 4. September die „Glienicker Erklärung“ unterzeichnet, die den dauerhaften fachlichen Austausch der Institutionen festschreibt.[157] Gleichzeitig fand die quasi Gründung des nicht institutionellen „Gartenforum Glienicke für Gartenkunst, Gartengeschichte und Gartendenkmalpflege“ statt. Dieses von SPSG, BLDAM und der Berliner Denkmalpflege betriebene Forum ist in Fachkreisen für seine alljährlichen Veranstaltungen wie Tagesexkursionen zu verschiedenen Orten und Vorträgen in der Glienicker Orangerie bekannt.[158]
Remisenhof und Schlossturm

Der Remisen- oder Stallhof war von Schinkel 1828 im Zuge des Schloss-Umbaus konzipiert worden. Hier wurden die Pferde angeschirrt und die Kutschen gereinigt. Die vergleichsweise große Wagen-Remise fasste zwölf Kutschen (der Stall im Kavalierflügel fasste 24 Reit- und Kutsch-Pferde) und war notwendig, um Prinz Carls Sammlung von Kutschen aufzunehmen. Schinkel entwarf eine vierbogige Schauseite, deren Arkatur das „Agoranomion“, südwestlich des „Turmes der Winde“ in Athen zitierte, das seinerzeit durch Stichveröffentlichungen bekannt war.[159] Das Agoranomion hielt man damals für griechisch-antik, tatsächlich aber stammt es aus der römischen Kaiserzeit. Für Schinkel und seine Zeitgenossen war das Agoranomion die bedeutendste Bogenarchitektur der Alten Griechen. Prinz Carl und Schinkel wählten also für die eigentlich untergeordnete Bauaufgabe eines Wagenschuppens ein besonders anspruchsvolles Vorbild.

1832 wurde im Winkel von Kavalierflügel und Remise der Schlossturm gebaut, der tatsächlich als beschwerlich zu ersteigender Aussichtspunkt genutzt wurde. Der Bau erfolgte der Überlieferung zufolge auf Wunsch des Kronprinzen, der nach Wunscherfüllung den Turm als „der Gute Carl“ bezeichnete.[160] Schinkel schreibt in seiner Veröffentlichung der „Sammlung architektonischer Entwürfe“: „Wie wesentlich der Turm ist, zeigt diese Ansicht.“ Auf der Entwurfszeichnung ist das Aussichtsgeschoss offen dargestellt worden und für ggf. eindringenden Niederschlag waren auf Bodenniveau halbmondförmige Überlauföffnungen vorgesehen. Diese fehlen auf der Veröffentlichung der „Sammlung architektonischer Entwürfe“, daher waren die vergleichsweise schmalen Fenster vielleicht von Anfang an verglast. Alle Bauteile dieses Hofes waren von Schinkel in harmonischen Proportionen aufeinander abgestimmt. Den nördlichen Abschluss der Baugruppe bildete ein großer Backofen, der den Ofen im Erdgeschoss des Kavalierflügels ergänzte.[161]

1874 wurde die Remise von Ernst Petzholtz um eine Bogenachse nach Norden erweitert und erhielt ein Obergeschoss mit schlichter klassizistischer Gliederung unter einem flachgeneigten Satteldach. Dabei wurde die bis dahin schmucklose nördliche Schmalseite zur übergiebelten Schaufassade ausgestaltet. Gleichzeitig wurde der Turm erhöht. Vermutlich bot der Belvedere-Raum inmitten der hochgewachsenen Bäume keine ausreichenden Ausblicke mehr. Das neue Turmobergeschoss entstand in reichen spätklassizistischen Formen, als offenes Belvedere aus vier Serlianen. Zusätzlichen Schmuck boten die Giebel des flachen Satteldachs mit Akroterienaufsätzen. Von den ehemaligen Aussichtsfenstern des Turmes wurden die jeweils äußeren vermauert. Zum Einbau einer bequemeren Treppenanlage für das mittlerweile betagte Prinzenpaar liegen keine Vermerke vor.[162]

Nach dem Zweiten Weltkrieg wurde die Remise wieder abgestockt, aber nicht wieder auf die ursprüngliche Länge verkürzt. Stattdessen wurde anstelle der Futtermauer Richtung Orangerie ein neuer Wohnflügel in angepassten Stilformen errichtet. Da zudem der Turm nicht wieder abgestockt wurde, sind in diesem Bereich nahezu alle historischen Proportionen verloren.[163]
Der Remisenhof ist nach Nordosten mit einem Eisengitter zwischen massiven Torpfeilern abgeschrankt. Ursprünglich befand sich in der Mitte des Gitters eine große eiserne Laterne auf hohem Unterbau. An ihrer Stelle erhebt sich heute der Neptunbrunnen mit gusseiserner Statue von Ernst Rietschel, die den antiken Meeres- und Schutzgott der Pferde mit Dreizack darstellt. Die Statue war ein Geburtstagsgeschenk des Königs zu Prinz Carls Geburtstag 1838. Das marmorne Brunnenbecken ist eine Spolie aus der 1797 abgerissenen Rehgartenkolonnade von Sanssouci. Ein gleichartiges Muschelbecken befindet sich an der südlichen Treppe des Casinos. Von Anfang an hatte der Remisen- oder Stallhof Wasserversorgung durch eine Pumpe, die sich vor der Nordfassade des Kavalierflügels befand.[164]
Nahe dem Remisenhof wurden nach dem Zweiten Weltkrieg einige übrig gebliebene steinerne Sammlungsstücke etwas lieblos abgestellt. Neben einem mittelalterlichen Taufstein, einem Mühlstein und einer Säule liegen hier vier Sandsteinatlanten. Sie stammten ursprünglich vom barocken Donnerschen Haus in Berlin (heute Palais am Festungsgraben), wurden 1862 im Jagdschloss Glienicke eingebaut und wurden bei dessen Umbau 1889 überflüssig.[165]
-
Prinz Carl in einer Kutsche vor der Remise (Franz Krüger, um 1828) -
Der Neptunbrunnen mit Kavalierflügel und Turm -
Neptunbrunnen am Remisenhof, dahinter der Flügel der 1950er Jahre -
Barocke Atlanten vom Donnerschen Haus in Berlin -
Ionische Säule und Orangerie -
Mühl- und Taufstein am Remisenhof
Gartenmöbel

In Glienicke existierte eine Möblierung des Gartens in Form von Stühlen, Sesseln, Tischen und Bänken in Eisenkunstguss. Sie werden aufgrund ihres großen Gewichtes während der Saison dauerhaft an den wichtigsten Theeplätzen aufgestellt gewesen sein. Beim Schloss ist so eine Möblierung vielleicht für die Adjutantenterrasse denkbar. Auf dem frühesten Foto des Stibadiums von etwa 1854 befinden sich vor der Exedra-Bank offenbar gusseiserne Tische und Stühle, die Knüppelholzmöbel imitieren. Die Stühle erinnern in ihrer Umrissform an Louis-Quinze-Möbel und gehören wohl zu Carls Faible für das Rokoko, das Persius bereits 1837 beklagt hatte.[166] An der dorischen Architektur wirken sie nach heutigem Stilempfinden deplatziert. Es darf vermutet werden, dass in der zweiten Hälfte des 19. Jahrhunderts mehrere solcher Knüppelholzimitationen, die sich auch im Babelsberger Park finden, zur Aufstellung kamen.

Als Sievers seine Studien in Glienicke betrieb, fand er verschiedene Gartenmöbel vor und ordnete einige Schinkels Entwurfstätigkeit zu. Er hat sie auch in dem entsprechenden Band über Schinkels Möbel veröffentlicht.[167] Er fand dabei ein Ensemble aus Bank und Sesseln mit fein profilierten Wangen und Lehnen sowie marmorner Sitzplatte und charakterisierte sie als von monumentalem Charakter,[168] womit er wohl ausdrücken wollte, dass diese Möbel dem französischen Empire stilistisch nahestehen. Ob dies nun eine einzelne Gruppe von Möbeln darstellte oder ob die Mehrheit der Gartenmöbel diesem Typus entsprach, konnte nicht ermittelt werden. Da Sievers keine entsprechenden Stücke in anderen Gärten fand, sind sie vielleicht exklusiv für Glienicke hergestellt worden. Winfried Baer hat sie auf die Zeit um 1827 datiert.[169]
Ferner fand er den Typus eines eisernen Stuhles mit einer Rohrgeflecht imitierenden Stahlbandbespannung, der in der Lehne und zwischen den Beinen Akanthusranken aufwies. Auch bei diesem geschmückten Biedermeierstuhl aus Eisen waren die Stuhlbeine unten mit Stäben untereinander verbunden, damit der Stuhl nicht im weichen Gartenboden versinken konnte.

Sievers fand einen weiteren Gartenbanktypus vor, den er auch aus anderen Parkanlagen kannte, diese aber nicht benannte. Dieser Banktyp besaß antikisch dekorierte Seitenwangen und eine rautengitterförmige Rücklehne sowie eine hölzerne Sitzfläche. Diese Bank wirkt stilistisch weniger ausgereift und man muss hier auf Sievers Kenntnis von Schinkels Möbelkunst vertrauen, um Schinkels Urheberschaft zu akzeptieren. Leider machte Sievers keine Angaben zur Farbfassung der eisernen Möbel, die er vermutlich auch nicht mechanisch untersuchen durfte. So wissen wir also nicht, ob die Eisenteile schwarz oder – wie derzeit die Bänke im Pleasureground – grün gefasst waren.
Alle gusseisernen Gartenmöbel sind heute verschollen, und an den wenigen heute noch vorhandenen Bankstandorten stehen nunmehr andere Typen von Gartenbänken. Wo man sich sonst im Pleasureground Gartenmöbel vorzustellen hat, ist unbekannt. Als Aufstellungsort denkbar wären die kleinen Aussichtsplätze, also die Fliederlaube, der heute sog. Lennéhügel, der kleine Hügelplatz südöstlich des Casinos, die Lindenlaube und die Terrassen am Schloss und am Casino. Auf den historischen Fotos sind – abgesehen vom Stibadium – keinerlei derartige Möbel zu erkennen. Für den Park sind eigentlich nur an der Römischen Bank Gusseisenmöbel denkbar. Sonst wird das Personal leichte Holzmöbel an die Plätze verbracht haben, wo die prinzlichen Herrschaften im Park den Thee einzunehmen wünschten.
Parkanlage

Die Intention der Parkgestaltung im 19. Jahrhundert war die Schaffung eines attraktiven und abwechslungsreichen Landschaftsbildes, das zwar vollständig künstlich war, aber natürlich wirken sollte. Es sollte eine Ideal-Landschaft entstehen, wie sie zunächst von Malern, beispielsweise Claude Lorrain, seit dem 17. Jahrhundert auf der Leinwand konstruiert wurde und seit dem 18. Jahrhundert in (Süd-)England in dreidimensionale Formen umgesetzt wurde. Ein Park sollte Landschaft als Erlebnisraum für Menschen bieten.

Die Parkgestaltungsbemühungen und auch das Parkerlebnis waren im 19. Jahrhundert umfassender als bei heutigen Parknutzern, die oft Natur und Landschaftspark nicht mehr unterscheiden können, da sie ortstypische Naturräume kaum mehr kennen. Edwin Redslob weist in seinem Vorwort zur 1933 erschienenen Neuauflage von Pücklers Andeutungen auf die geistesgeschichtlichen Zusammenhänge zwischen Gartenkunst und Lebensstil in der Goethezeit hin. „Nicht bloß um die Anlage von ein paar Wegen und Bosketts handelte es sich, wenn Hermann Pückler in Babelsberg Parkanlagen zu gestalten half: es galt der Durchsetzung des englischen Stiles, auch in der Lebensführung: Gartengestaltung wurde zur Weltanschauung.“[170]
Der junge Sir Charles Glienicke und der noch stärker anglophile Fürst Pückler besaßen durchaus geistige Schnittmengen, was bei dem später eigenartig distanzierten Verhältnis übersehen werden mag. Aus dieser Perspektive gesehen stehen Carls sehr ernsthaft und gekonnt betriebenen Parkgestaltungen auf der Höhe der Zeit und zeigen eine wahre Künstlerpersönlichkeit, die allerdings ihre weniger sympathischen Seiten in Form des leichtfertigen Lebemanns und ultrakonservativen „Herrenmenschen“ aufweist, wobei sich bei erstem wieder Ähnlichkeiten mit Pückler zeigen.
Einen Landschaftspark zu besitzen und zu gestalten bedeutete also in jener Zeit mehr, als einen dekorativen Garten sein Eigen zu nennen. Redslob, der ja ein Kenner der Goethezeit war, meinte 1933 es ginge zu Pücklers Zeiten um „die Kraft, Weltanschauung aus der Natur zu gewinnen, Weltanschauung gestaltend auf die Natur zu übertragen.“[171]

Auch wenn in Glienicke die Bauten sehr bedeutend sind, so sind sie doch für das gesamte Anwesen nur von sekundärer Bedeutung. Das Landschaftsbild ist die Grundlage der Parkgestaltung, die durch Bauten nur akzentuiert wird. Eine bildliche Darstellung des Parks Klein-Glienicke müsste also etwa zwei Drittel Landschaftsfotos und nur ein Drittel Fotos der Bauten präsentieren, die Realität zeigt das gegenteilige Verhältnis. Denn die Intention des 19. Jahrhunderts wurde in der ersten Hälfte des 20. Jahrhunderts völlig verkannt. Damals gestand man dem Grün gewissermaßen nur die Rolle der Dekoration der Bauten zu. Entsprechend wurde bei der Instandhaltung den Bauten eindeutig die Priorität eingeräumt. Lediglich der Große Wiesengrund wurde als eine Art Spielfeld des „Volksparks“ gepflegt. Durch die mangelnde Pflege der Pflanzungen machen weite Teile des Glienicker Parks heute einen waldähnlichen Eindruck.
Seit den Teilinstandsetzungen Ende des 20. Jahrhunderts ist der Glienicker Park ein gärtnerischer Januskopf. Zum einen wurden Gartenhof, Pleasureground, Jagschlossgarten und Teile des Böttcherbergparks rekonstruiert und der Große Wiesengrund ist ohne besondere Pflege in seinen Grundzügen erhalten. Außerdem hat man begonnen, Felsenteich und Teufelsbrückenensemble der sehr kleinteilig gestalteten Ufer-Höhenwegs-Partie zu rekonstruieren. Zum anderen sind die Jägerhofpartie, die Partie der Karpathen und die Waldtälerpartie nahezu vollständig verwaldet.

Aber auch in den gepflegt erscheinenden Parkteilen fehlen selbst die elementaren Sichtachsen, so beispielsweise der Blick vom Schloss zum Großen Wiesengrund. Die Schaffung dieser Sichtachsen innerhalb des bestehenden Gehölzbestandes wäre eine erste Etappe zur schrittweisen Wiedergewinnung des von den Gestaltern im 19. Jahrhundert intendierten Parkerlebnis. Bei den derzeit zur Verfügung stehenden Pflegekapazitäten ist dies jedoch nicht möglich. So ist beispielsweise die Ende des letzten Jahrhunderts teilweise freigelegte Sichtachse von der Römischen Bank nach Potsdam inzwischen wieder zugewachsen.
Durch die Verwaldung weiter Parkbereiche ist auch die Geländegestaltung nur noch schwer wahrzunehmen, obgleich sie ein besonderes Charakteristikum des Glienicker Parks ist. Prinz Carl beließ nicht etwa die vorgefundene vielfältige topografische Gestalt, sondern ließ sie ummodellieren, in dem sie an markanten Stellen überhöht, abgegraben oder geglättet wurde. Auch Wegetrassen wurden vertieft, auf Dämme gehoben und in Hangkanten gegraben. Diese Geländearbeiten scheinen sehr umfangreich gewesen zu sein, sind aber leider nicht dokumentiert worden.

Der spätere Feldmarschall Helmuth von Moltke beschrieb seiner Braut in einer charakteristischen Kurzbeschreibung den Park vor der großen Osterweiterung, als er Adjutant in Glienicke war und entsprechend in einem der Adjutantenzimmer im Obergeschoss des Kavalierflügels wohnte:

„Glienicke, den 25. Juni 1841 […] Ich wollte, ich könnte Dich hier in dem köstlichen Park herumführen. Der Rasen ist, soweit das Auge reicht, von frischestem Grün, die Hügel mit schönem Laubholz bekränzt, und der Fluss und die Seen flechten ihr blaues Band durch die Landschaft, in welcher Schösser und Villen, Gärten und Weinberge zerstreut liegen. Gewiß ist der Glienicker Park einer der schönsten in Deutschland.
Es ist unglaublich, was die Kunst aus diesem dürren Boden zu machen gewußt hat. Eine Dampfmaschine arbeitet vom Morgen bis zum Abend, das Wasser aus der Havel auf die Sandhöhen hinaufzuheben und üppige Wiesen da zu schaffen, wo ohne sie nur Heidekraut fortkommen würde. Eine gewaltige Kaskade brauset über Klippen unter einem anscheinend von ihrem Ungestüm halb weggespülten Brückenbogen hindurch und wütet jählings fünfzig Fuß hinab in die Havel, auf einem Terrain, wo die besonnene Mutter Natur nicht daran gedacht hätte, einen Eimer Wasser fließen zu lassen, weil der dürre Sand es sogleich durstig verschluckt hätte. Vierzig Fuß hohe Bäume werden gepflanzt, wo sie vierzig Jahre hätten stehen müssen, um diese Mächtigkeit zu erlangen, gewaltige Steinblöcke liegen umhergestreut, welche einst den Geologen zu raten aufgeben werden, falls ihnen nicht eine Notiz überkommen sollte, daß sie aus Westfalen über Bremen und Hamburg hierhergewandert sind. Die Moose an den Steinen sind aus Norwegen verschrieben, die Schaluppe auf dem Wasser aus England.
Schöne Springbrunnen rauschen dreißig Fuß hoch in die Luft, und Marmorbilder stehen und sehen Dich an unter blühenden Zitronenbäumen. – Wunderhübsch ist der Hof, auf welchen meine Fenster gehen. Auf einem Grasteppich wie grüner Sammet steigt eine zierliche Fontaine empor, und rings umher zieht sich eine Veranda, die mit Passionsblumen und Aristolochien dicht bekleidet ist.“[172]

Bei der Gestaltung stand Prinz Carl nachweislich bis 1844 Peter Josef Lenné zur Seite, aber laut den Journaleintragungen hat Lenné den Prinzen auch noch bis zu seinem Tod beraten. Vermutlich hat Lenné den Stammpark 1824/25 entworfen, Prinz Carl hat hier nur Überformungen vorgenommen. Ausgeführt und gepflegt wurden die Gartenanlagen durch den von Hardenberg eingestellten Hofgärtner Friedrich Schojan. Beide waren die eigentlich in Glienicke für Gebäude und Gartenanlagen verantwortlichen Personen. Während Schojan zu Lenné ein vertrauensvolles Verhältnis aufgebaut hatte, verhielt sich Ritter gegenüber Schojan misstrauisch.
Wie die Zusammenarbeit zwischen Lenné und Prinz Carl funktionierte, ist nicht überliefert. Es ist nur ein Brief Lennés an Fürst Pückler vom 2. Mai 1832 überliefert, dessen Aussage nicht ganz eindeutig ist: „Wie wichtig es für den Künstler ist, die erfasste Idee mit dem Kunstgenossen, besser noch mit dem umfassenden Kunstkenner zu besprechen, bestreiten und die Ansichten gegenseitig austauschen zu können, darf ich Euer Durchlaucht nicht versichern. Leider bin ich in dieser Beziehung hier [in Glienicke] völlig verlassen.“[173] Vermutlich war es für Lenné den Gärtner schwerer als für Schinkel den Architekten Prinz Carl künstlerisch zu überzeugen. Carl hatte zudem ja keine architektonische Ambitionen, verstand sich aber als dilettierenden Gartengestalter. Es dürfte für Lenné auch ungewohnt gewesen sein, nicht für, sondern mit einem Auftraggeber zu gestalten.

Der Einfluss des Fürsten Pückler ist bei den Glienicker Anlagen nicht zu übersehen. Bereits Ende 1824 hatte Carl Pückler in die Parkplanung mit einbezogen, indem er ihm einen mit Lenné entwickelten Entwurfsplan zusandte. Doch hat sich Prinz Carl dem direkten Gestaltungseinfluss des Fürsten entzogen. Bemerkenswerterweise nutzte der Prinz die sechsjährige Reise des Fürsten (1834–1840), um sich bei dessen Mitarbeiter Rehder in Babelsberg die praktische Gestaltungsweise Pücklers weiter anzueignen.[174] Im Journal ist dies durch Einträge vermerkt: „1839, 15. Oktober. S.K.H. kamen von dort [Paretz] bald nach 4 Uhr z. T. zu Pferde hier wieder zurück, um mit dem Fürstlich Pücklerschen Inspektor Rehder, welcher heute hier angekommen, zu arbeiten.“[175] Ab 1853 wirkte in Glienicke August Giseler als Hofgärtner, der zuvor für Pückler in Muskau sowie für Prinz Friedrich tätig war.
Unter den zahlreichen Auftraggebern der Parkanlagen der Potsdamer Kulturlandschaft war Prinz Carl der einzige, der selbst als Gestalter tätig wurde. Dass seinen Gestaltungen unter den Zeitgenossen großer Respekt gezollt wurde, zeigen Gustav Meyers Ausführungen im Lehrbuch der schönen Gartenkunst (1860) und Hermann Jägers Zeilen in Gartenkunst und Gärten (1888). Er beschreibt die Parkanlage in der endgültigen Dimensionierung:
„Als wirklicher Freund und Kenner der Gartenkunst hat Prinz Karl, abgesehen von den vor seiner Besitznahme von Lenné für den Fürsten Hardenberg angelegten Gartenteilen, den Plan seines weitläufigen Parks von Klein-Glienicke selbst entworfen und die Anlage persönlich geleitet.
Das Ganze macht einen so schönen, wahrhaft harmonischen Eindruck, ist so dem nicht großen Gebäude-Komplex der römisch-italienischen Villa angepaßt, daß es als ein Musterpark darsteht. […] Die Lage des Gartens an der seeartig breiten mit Buchten eingeschnittenen Havel ist von großer Schönheit und gut benutzt, ohne daß sich das Wasser zuviel vordrängte. Das nahe am Park vor Anker liegende zur Dekoration angebrachte Kriegsschiff von alter Form paßt, obwohl es nur Schein ist, ganz zur wasserreichen Umgebung […]. In den später hinzugezogenen waldigen Parkteilen hat der Prinz tiefe Regenschluchten und Hohlwege so zu formen und teilweise mit Felsblöcken so zu schmücken gewußt, daß die Kunst sehr versteckt auftritt.“

„Die wenigen Gebäude außer der Villa, namentlich das Maschinenhaus zur Wasserhebung sind ganz angethan, den Park auch in dieser Hinsicht zu zieren. Die zur Bewässerung angelegten Reservoirs haben zwar nicht das Aussehen kleiner Gebirgsseen, wie G. Meyer sagt, sind aber als solche der wilden Umgebung gemäß angelegt. Prinz Karl von Preußen war wirklich ein landschaftsgärtnerisches Genie“. […]“[176]
Nach der großen Osterweiterung 1841 dürfte der Park in den 1850er Jahren in weiten Teilen seine beabsichtigte pflanzliche Gestalt geboten haben. Allerdings begannen nun die vor einem Vierteljahrhundert gestalteten westlichen Parkbereiche zu verwuchern. Bereits im Alter des Prinzen ließ er die Pflege durch Rückschnitt schleifen und die Sichtachsen begannen, langsam zuzuwachsen. Nach dem Tod des Prinzen Carl fand keine gestalterische Pflege mehr statt und die vom Prinzen gesetzten Pflanzungen verwilderten.
Mittlerweile hat die ungenügende Parkpflege bei Überalterung von Teilen des Baumbestandes zu einem so großen Handlungsbedarf geführt, dass er im Tagesgeschäft des Grünflächenamtes nicht mehr zu bewerkstelligen ist.[177] Wegen „Akuter Astbruchgefahr“ sind derzeit (2012/2016) die gesamte östliche Parkerweiterungsfläche von 1841 und auch die Gebiete des Stammparks nördlich der Römischen Bank gesperrt. Damit ist etwa die Hälfte des Glienicker Parks nicht mehr legal zugänglich.

2014/15 fanden in den westlichen Parkpartien im Bereich Uferhöhenweg/Westdrive umfängliche Instandsetzungen statt. Neben Baumarbeiten wurde das bestehende Wegenetz erneuert. Die wenig denkmalgerechte Art dieser Arbeiten beklagte Anett Kirchner in ihrem Zeitungsartikel „Asphalt im Weltkulturerbepark“.[178] Doch weniger die Asphaltierungen beeinträchtigen das Erscheinungsbild dieses Parkteiles, als die gleichzeitig erfolgten Neubauten von Erlen- und Hubertusbrücke im Verlauf des Ufer-Höhenweges. Namentlich die Hubertusbrücke steht als simple aber statisch überdimensionierte Stahlträger-Konstruktion auf massiven Beton-Widerlagern in krassem Gegensatz zu den Gestaltungsprinzipien der Landschaftsgartenkunst, denn sie schnürt optisch die Hubertusschlucht Richtung Uferchaussee geradezu ab, statt den Blick durch die Schlucht zu rahmen und gleichzeitig einen Blickpunkt zu bilden. Die zuvor bestehende Kantholzbrücke war gestalterisch belanglos, stellte aber keine optische Beeinträchtigung dar.
Eine Überführung des Parks in die Verantwortung der Stiftung Preußische Schlösser und Gärten Berlin-Brandenburg (SPSG) ist wünschenswert und seit langem angedacht. Sie würde aber für jene aufgrund des über hundert Jahre währenden gärtnerischen Pflegemangels ein Danaergeschenk darstellen, zumal die SPSG schon bei ihren derzeit zu pflegenden Parkflächen rechnerisch pro Hektar lediglich 0,15 Parkpfleger finanzieren kann (Stand 2004).[179] 2009 wurde eine von der SPSG kofinanzierte „Potentialanalyse für den Landschaftspark Glienicke“ erstellt, aber noch nicht veröffentlicht.[180]
2016/17 fanden durch EFFRE-Mittel finanziert Wiederherstellungsmaßnahmen im Bereich des großen Wiesengrundes östlich des Schlosses statt, womit die an den Pleasureground angrenzenden Parkbereiche wieder in der Gestaltung des 19. Jahrhunderts erlebbar sind. Sogar der Schlossteich konnte wieder rekonstruiert werden.
Pflanzungen

Prinz Carl übernahm 1824 zwar einen aufsehenerregenden modernen Garten, ein funktionsfähiges und voll ausgestattetes Wohnhaus sowie einen intakten Gutsbetrieb mit Ziegelei, aber einen Park, der nur die Vorstufe eines Landschaftsgartens darstellte, eben eine Ornamental Farm, bei der die Ackerflächen von Alleen und einigen wenigen Gartenanlagen eingefasst waren. Nur im nördlichen Drittel existierten geschlossene Pflanzungen.

Der Prinz nahm keine personellen Einschnitte vor, sondern übernahm sowohl Hardenbergs Gutsinspektor Ritter als auch den Hofgärtner Schojan, scheint also auf Kontinuität eines funktionierenden Systems gesetzt zu haben. Allerdings wurde sowohl der Gutsbetrieb als auch die Ziegel- und Kalkproduktion als bisherige wirtschaftliche Grundlage aufgegeben. Prinz Carl scheint also großes Vertrauen in die neun Jahre zuvor auf dem Wiener Kongress festgeschriebene politische Ordnung der Restaurationszeit besessen zu haben, die ihm eine umfassende Apanage sicherte.
Am 8. April 1824, also drei Wochen vor Unterzeichnung des Kaufvertrages, trafen sich in Glienicke Prinz Carl, sein Adjutant v. Schöning und Schinkel zum Frühstück, um die anstehenden (Planungs-)Arbeiten zu besprechen. Damals war bereits eine Schlucht abgegraben („Altan und Brücke sollen fertig sein“) und Spazierwege angelegt worden.[181] Am 7. Juni präsentierte Prinz Carl der königlichen Familie erstmals sein Anwesen.[182] Das Jahr 1824 muss ein gestalterisch dichtgedrängtes Geschehen aufgewiesen haben. Mit Schinkel und Persius wurde das Casino geplant und eine Umgestaltung der Neugierde ins Auge gefasst. Mit Lenné und Schojan wurde der Park durchgeplant und so viel Gehölze wie möglich für die Pflanzung im Herbst und Frühjahr organisiert. Für diese erste Pflanzphase sind etwa 26.000 Gehölze nachgewiesen, zumeist Eichen, Pappeln, Robinien und Flieder.[183] Sowohl die Organisation und der Transport als auch die Pflanzung von einer so großen Menge von Pflanzen erforderte große logistische Anstrengungen.
Die künstlerische Planung des Parks dürfte auch viel Zeit und Diskussionen gekostet haben. Dokumente sind dazu keine überliefert worden. Der erst wenige Jahre zuvor angelegte Pleasureground wurde zunächst nicht umgestaltet. An seiner Nordseite stand die Beseitigung der Ziegelei an erster Stelle. Schwerpunkt der Gartengestaltung wurde also der eigentliche Park. Ein von Schojan nach Lennés Vorgaben gezeichneter Plan (der nur noch als Schwarz-Weiß-Foto überkommen ist) wird von Seiler auf Anfang 1825 datiert.[184] Er zeigt die für Lenné charakteristischen ineinandergreifenden Wiesengründe und die bei den Pflanzungen genau berechneten Sichtachsen. Eine Untergliederung in einzelne Partien ist nicht zu erkennen.

Auf diesem Terrain fanden in den ersten Jahren massenhaft Pflanzungen von insgesamt etwa 40–50.000 Gehölzen statt.[185] Dabei handelte es sich zu einem großen Teil um Heister. Trotzdem war die Beschaffung dieses umfangreichen Pflanzenmaterials schwierig. Da die Bestände aller benachbarten Baumschulen und Forsten schnell erschöpft waren, wurden die benötigten Gehölze aus entfernteren Gebieten hergeführt, besonders aus dem Staatsforst Lüdersdorf in der Uckermark.[186] Die Beschaffung des Pflanzmaterials lag weitgehend in Händen Lennés, der nicht müde wurde, Gruppen von geeigneten Bäumen aufzuspüren und für Glienicke zu erwerben. An exponierten Stellen wurden in den folgenden Jahren mit großem Aufwand auch bis zu 40-jährige Bäume gepflanzt.[187]
Vorhandene Gehölze wurden, soweit es möglich war, in die Neugestaltung einbezogen. Besonders nachdrücklich ist dies noch heute nahe dem Schloss westlich des West-Drives erkennbar, wo eine Lindenallee aus Lindenaus Zeiten durch Auslichtungen und Vorpflanzungen ihren barock-geradlinigen Charakter verlor und die Neupflanzungen optisch unterstützte. Gleichzeitig wurden die Flächen der zukünftigen Wiesengründe durch Rigolen (Tiefenlockerung des Bodens) für die Aussaat vorbereitet.
In den ersten Jahren war Prinz Carl Lennés aktive Entwurfsarbeit sehr wichtig. Da sich Lenné und Glienickes Hofgärtner Schojan ja noch aus Hardenbergs Zeiten kannten, hatten sie ein gewisses Vertrauensverhältnis, so dass Lenné quasi über Schojan wirken konnte. Lenné wurde 1824 zum königlichen Gartendirektor ernannt und 1828 zum alleinigen Gartendirektor befördert. Eigentlich war er nur für die königlichen Gärten zuständig. Aber wie bei dem Bau-Beamten Schinkel war die königliche Familie der Meinung, dass der Gartengestalter Lenné ganz selbstverständlich auch für die prinzlichen Gärten tätig werden müsse, ohne dass diese Mehrarbeit vergütet worden wäre. Lenné hat entsprechend auf Carls Einladung Glienicke zwar regelmäßig, aber selten besucht. Eine Ausnahme macht der Sommer 1834, in dem Lenné fast wöchentlich zu Besuch in Glienicke war.[188] Damals müssen also wichtige Parkpartien gestaltet worden sein.

Eine gestalterische Beteiligung des Hofgärtners ist dagegen nicht überliefert und angesichts der strengen Hierarchie am prinzlichen Hof auch unwahrscheinlich. Der Prinz befahl, was zu tun sei und der Hofgärtner hatte dies genau umzusetzen. Vor Abwesenheit des Prinzen legte dieser fest, welche Arbeiten zu erledigen seien, der Inspektor notierte die Befehle, die der Hofgärtner zu befolgen hatte. Die eigentlichen Fäll-, Erd-, Pflanz-, Schnitt- und Pflegearbeiten wurden von Gartenarbeitern bewerkstelligt, deren Anzahl, Ausbildung, Arbeits- und Lebensbedingungen nicht überliefert, bzw. nicht erforscht sind. Entsprechend ist nicht bekannt, wie vieler Arbeitskräfte es damals bedurfte, um den Glienicker Park zu gestalten und dauerhaft zu pflegen. Es ist davon auszugehen, dass zu einem Stamm von ständig beschäftigten Arbeitern, bei Bedarf Saisonkräfte hinzugezogen wurden.[189]
So dürfte der Stammpark in den ersten Jahren von Carls Besitz seine Konturen erhalten haben. Es galt nun, die getätigten Pflanzungen zu pflegen. Prinz Carl wandte sich damals verstärkt der Bauplanung zu. Nach der Verlobung mit Prinzessin Marie 1826 galt es möglichst schnell den Schloss-Umbau umzusetzen, damit der sich nun formierende prinzliche Hof eine Sommerwohnung erhielt.
1828 wurde der Schlossbau fertiggestellt, im November der Jägerhof bezogen. Gleichzeitig waren Carl und Marie Eltern geworden. Der prinzliche Hof unter Leitung des bisherigen Adjutanten und nunmehrigen Hofmarschalls Curt von Schöning musste sich einspielen. Da Carl und Marie in diesen Jahren noch ein sehr inniges Verhältnis zueinander hatten, dürfte die Parkgestaltung damals an zweiter Stelle gestanden haben.
Der Ausschnitt aus Lennés Situationsplan von 1831 (s. o. 2a.) zeigt die Pflanzungen des Stammparks sieben Jahre nach Übernahme des Anwesens durch Prinz Carl, allerdings mit der erst ab 1841 gebauten Uferchaussee. Der Plan zeigt, dass der Entwurf von 1824/25 fast genau umgesetzt wurde. Bei den Pflanzungen erschließt sich schon auf den ersten Blick die Vielzahl von Parkräumen, die mit Sichtachsen untereinander verbunden waren. Der Plan zeigt noch einen recht jugendlichen Zustand der Anlage, der Kraatz-Plan dagegen zeigt, dass die Parkräume nach Aufwuchs der Gehölze drei Jahrzehnte später enger dimensioniert waren.

Ein großes Projekt war eine moderne Wasserversorgung des Parks für die Bewässerung und Wasserspiele. Voraussetzung dafür war die Beschaffung einer kostspieligen Dampfmaschine, wozu Carl dank Lebensstil und Sammelleidenschaft die Mittel nicht erübrigen konnte. Anlässlich einer Petersburg-Reise mahnte Prinzessin Marie ihren Gatten „[…] ach dearest, dearest Charles, tue mir die einzige Liebe und kaufe Dir in St. Petersburg keine neuen Waffen; Du hast ja schon eine solche Menge und bekommst gewiss wieder neue geschenkt; auch spare von Diener Reisesumme, was Du kannst; denke nur dabei an die Glienicker Dampfmaschine und an Deine sich anhäufenden Schulden.“[190] An diese Mahnung hielt sich der Prinz nicht und schaffte es sogar, dass ihm schließlich sein Vater die Dampfmaschine schenkte.
Anschließend wurde ab 1836 das Hofgärtner- und Dampfmaschinenhaus nach Persius Entwurf gebaut. 1837/38 wurde das Wasserleitungs-Rohrnetz geplant und verlegt. Da die 1824 auf der Pfaueninsel verlegten Tonrohre der Firma Feilner bereits nach zehn Jahren unbrauchbar geworden waren, wurden in Glienicke teure Eisenrohre verlegt, die aus der Produktion von Egells stammten, der auch die Dampfmaschine lieferte.[191] Auf dem Neuvermessungsplan Gustav Meyers von 1845 ist das ausgeführte Wasserleitungsnetz detailliert verzeichnet. Demnach führten vom Maschinenhaus zwei Hauptleitungen, eine nach Süden zum Pleasureground und zum Schlossteich und eine nach Norden zum Felsenteich als Hauptreservoire des Parks. Von Letzterem führten Leitungen nach Norden bis zum Großen Jagdschirm, und nach Südwesten bis zum Teich an der Römischen Bank. Ob nach 1845 Erweiterungen des Wasserleitungsrohrnetzes erfolgt sind, ist nicht untersucht. Möglicherweise sind die Parkerweiterungsflächen ohne Anschluss an die Wasserleitungen geblieben.
Das Wasserleitungsnetz ermöglichte nun Wasserspiele, wie die Löwenfontäne im Pleasureground. Im Park wurde ein Wasserreservoir nahe dem Zelt angelegt. Es erhielt die Form eines natürlichen Teiches und wurde reich mit Findlingen ausgestaltet. Ein weiterer Reservoire-Teich wurde oberhalb des Großen Wiesengrundes angelegt. Schwerpunkt der Gestaltung des Parks wurde 1837/38 die Partie des Ufer-Höhenweges, wo Prinz Carl drei Schluchten aus Erosionsrinnen formte und auf der Erlenwiese einen kleinen zweiteiligen Teich anlegte. Mit diesen Anlagen entfernte sich Prinz Carl aber von Lennés Gestaltungsprinzipien und begann gestalterisch eine Untergliederung des von Lenné einheitlich entworfenen Parks in einzelne Partien.

Der Thronwechsel in Preußen und das brüderliche Parkerweiterungs-Weihnachtsgeschenk 1840 führten zu umfangreichen Neuplanungen, Bauarbeiten und Pflanzungen. So verlagerte sich nun der Schwerpunkt der Gartengestaltung auf die östliche Parkerweiterung, den Jägerhof-Bereich und die Uferchaussee. In der Osterweiterungsfläche werden die umfänglichen Ausholzungen und Zwischenpflanzungen sicher ein Jahrzehnt in Anspruch genommen haben. Durch den Verlust des zweiten Journalbandes (1838–1848) ist dies heute nicht mehr im Detail nachvollziehbar.
Über die Pflanzungen dieser Gestaltungsphase sind wir kaum noch unterrichtet. Die einzelnen Parkpartien scheinen durch das Vorherrschen bestimmter Baumarten charakterisiert worden zu sein. Ins Auge fallen noch heute die Buchenbestände in der Ufer-Höhenwegs-Partie, in den Karpathen und im Böttcherbergpark, die Eichenbestände in der Jägerhofpartie und die Linden im Großen Wiesengrund. Doch ist dies bislang noch nicht wissenschaftlich untersucht worden. Den Gehölzbestand vor Ort einzuschätzen ist heute auch schwierig. Denn seit etwa hundert Jahren hat ja keine eigentliche Parkpflege mehr stattgefunden. Statt gartenkünstlerischer Ausholzung, Schneitelung und Nachpflanzung erfolgte nur eine forstfachliche Beseitigung schadhafter und überalterter Gehölze bei Nachwuchs von Unterholz. Seiler führt als Beispiel Weißbuchenpflanzungen im Böttcherbergpark an, die Prinz Carl als Buschpflanzungen an den Westhang hatte setzen lassen, die mangels Schnitt zu Bäumen aufwuchsen und schließlich die Sichtachsen verschlossen.[192] Es wurden nun noch gezielter Gehölze aus entfernteren Regionen besorgt. 1854 vermerkt das Journal gar die Ankunft von Gehölzen aus Baden-Baden, ohne dass wir wüssten, warum eine derart weite Pflanzenreise für nötig erachtet wurde.

Fürst Pückler begann seine acht überlieferten Besuche in Glienicke erst im Jahre 1853. Im selben Jahr ging Schojan in den Ruhestand. Vermutlich auf Vermittlung Pücklers wurde der aus Muskau stammende Giseler zum Hofgärtner. Damit wandte sich Carl zunehmend den Gestaltungsprinzipien Pücklers zu. Das Verhältnis zwischen Prinz Carl und Fürst Pückler scheint demgegenüber recht kühl geworden zu sein.
Carl arbeitete aber nach dem Prinzip Pücklers, nicht auf Plänen, sondern nur an Ort und Stelle zu entwerfen. Mit dem Hofgärtner wurden dort die Anlagen besichtigt und dabei die Ausholzungen oder Pflanzungen befohlen. Damit wurde jedes Quartier des Parks eigenhändig vom Prinzen in der Gestaltung bestimmt. Im Journal findet sich diese Gestaltungsweise durch sehr viele Einträge wie: „S. K. H. der Prinz inspizierte den Park und die neuen Anlagen im Jagdschloß Garten im Pony Wagen mit Ritter und Gieseler.“[193]

In der zweiten Jahrhunderthälfte fügte Prinz Carl dem Park weiter neue Partien hinzu. Mitte der 1850er Jahre wurde der Böttcherbergpark weiter gärtnerisch ausgeformt. Etwa gleichzeitig wurden die Karpathen gestaltet und dies mit dem Erwerb zweier kleiner Forstparzellen 1858/1859 abgeschlossen. 1859–1862 gestaltete Prinz Carl den Jagdschlossgarten. 1863–1866 wurden die Anlagen der Schweizerhäuser ausgeführt. 1874 wurde der Garten der Restauration neu angelegt und 1877/78 erfuhr der Böttcherbergpark eine letzte gärtnerische Überformung. Seit dem Tod seiner Frau 1877 kränkelte Carl zunehmend und wird sich nur noch sporadisch der Parkpflege gewidmet haben. Für diese Parkerweiterungsflächen steht noch eine detaillierte wissenschaftliche Untersuchung aus, denn Seiler hat sich in seiner Dissertation (1986) diesen Flächen nur summarisch gewidmet.[194]
Eine historisch getreue Wiederherstellung des Glienicker Parks ist auch deshalb schwierig, da Prinz Carl im Gelände entwarf und gestaltete. Die einzig zuverlässige Plangrundlage stellen die beiden Pläne Gustav Meyers um 1845 dar, die durch die mehr summarischen Angaben auf dem Kraatz-Plan (um 1862) für die danach gestalteten Parkbereiche ergänzt werden können. Die kartographisch zu gewinnenden Informationen können aber nur durch gartenhistorisch geschulte Gärtner umgesetzt werden, da es sich hierbei mehr um ästhetische und weniger um biologische Arbeiten handelt.
Das gartenkünstlerische Herausbilden von Parkräumen ist zeitaufwändig, da die sie rahmenden und gliedernden Gehölzgruppen nicht einfach gesetzt werden und dann hochwachsen. Vielmehr durchlaufen die Gehölzgruppen während ihres Aufwuchses eine Metamorphose, um stets ein attraktives Erscheinungsbild zu bieten. Somit werden zunächst mehr Pflanzen gesetzt, als letztendlich bestehen sollen. Im Laufe des Aufwuchses werden sukzessive Auslichtungen vorgenommen. Diese Arbeiten sind auch entsprechend pflegeaufwändig.
Aber auch die geschlossenen Gehölzpartien sind nicht einfach wild wachsender Wald. Jörg Wacker beschreibt die von der SPSG diesbezüglich betriebene Pflege: „Damit sich der geschlossene Gehölzbestand stabil hält, muss durch Plenterung ständig verjüngt werden. Freistehende Standbäume oder Altbäume sollten möglichst sorgsam von aufkeimendem Wildwuchs freigehalten werden, damit dieser die wertvollen alten Bäume nicht gefährdet und früher zum Absterben bringt. Ebenso kann unkontrolliertes Wachstum später mit zu unnötigen Auseinandersetzungen mit dem Naturschutz führen. Gehölzgruppen müssen gleichzeitig und dichter wieder aufgebaut werden, mit einer zeittypischen Artenauswahl, z. B. aus den veröffentlichten Listen der kultivierten Gehölze der von Lenné eingerichteten Landesbaumschule. In den folgenden Jahren sind diese behutsam auszulichten.“[195]
Wegenetz

Beim Wegenetz des Glienicker Parks wurde zwischen Fahrwegen und Gehwegen unterschieden. Dabei ist der überwiegende Teil des Wegenetzes als Fahrweg ausgebildet. Diese Fahrwege werden nur an besonders versteckten, kleinteiligen und schwer zugänglichen Bereichen durch reine Gehwege ergänzt. So beispielsweise im Bereich der Teufelsbrücke und der Erlenschlucht. An besonders starken Steigungen gab es auch mit Stufen ausgestattete Wege, deren Aussehen nicht mehr bekannt ist, da sie im Zuge des Wegeausbaus für den „Volkspark“ überformt wurden. Im Kraatz-Plan sind sie deutlich kartiert worden. Demnach gab es sehr wenige Treppenwege, nämlich eine Querverbindung in den Karpathen, die Verbindung vom Hauptfahrweg zum Großen Jagdschirm und die Wegeanschlüsse der unteren Erlenbrücke.[196]

Erschlossen wurde der Park durch einen Hauptfahrweg, den sogenannten Drive. Über ihn konnte man von der Kutsche aus die meisten Sehenswürdigkeiten des Parks zumindest über Sichtachsen erfassen. Am später so genannten Mitteltor beginnend, führt der Drive am Schloss vorbei und lenkt dann nach Norden, wo er vor dem Jägerhof mit einer großen Kurve nach Süden abbiegt und zurückführt. Da der Park mehrfach erweitert wurde, ist der ursprüngliche Drive entsprechend verändert und erweitert worden. Auf dem Parkplan von 1862 führte er über die Berlin-Potsdamer-Chaussee hinaus und erschloss dort den Böttcherbergpark mit Anschlussmöglichkeit an Babelsberg und den Jagdschlossgarten.
Der Park bot die ersten zehn Jahre noch ein sehr jugendliches Aussehen. So führte der Drive in dieser Zeit an nur wenigen Sehenswürdigkeiten und noch weniger Bauten vorbei. Erst Ende der 1830er Jahre waren durch die Ausgestaltungen der Schluchten, die Inbetriebnahme der Dampfmaschine für die Wasserspiele und die Bauten Persius’ wirkliche Park-Attraktionen – zumindest im Westteil der Anlage – vorhanden. Im Norden existierte eine relativ enge Kurve, die den Drive wieder nach Süden führte. Er hatte hier eine nicht besonders raffinierte Streckenführung in leichten Kurven parallel zu der die Parkgrenze flankierenden Straße zur Sacrower Fähre. Nach der Parkerweiterung von 1840 erhielt der Drive eine sehr erlebnisreiche Form, wobei der vorhandene Südteil und weitgehend der Westteil übernommen wurden. Vom Mitteltor führte der Drive nach Westen, vorbei an Kaufdatums-Findling, Schlossteich, Wirtschaftshof und erreicht die offene Seite des Gartenhofes im Schlosskomplex. Hier wendet sich der Drive nach Norden und ermöglicht einen Blick in den Remisenhof.

Mit Sichtachsen sind im folgenden Verlauf das Hofgärtnerhaus und der Große Wiesengrund einbezogen. Der Drive führt dann vorbei am Matrosenhaus und steigt steil an, südlich flankiert von der Erlenwiese. Mit dem Zeltenplatz ist die Aussichtshöhe dieser Parkpartie erreicht. Auf sie folgt die Töpferbrücke mit Sichten in die Teufelsschlucht. Im Norden ist eine Wegeschlaufe angehängt, die direkt am Jägerhof vorbeiführt, Sichten auf Schießhütte und Kugelfang erlaubte und ganz im Norden den Fernblick auf die Pfaueninsel bot.
Die Osttrasse des Drives erhielt eine etwas dramatische Wegeführung. Zunächst ist der Drive vertieft, wird dann als Damm mit vielen Einblicken in findlingsgeschmückte Schluchten nach Südosten geführt. Nach Passieren der „Einsiedelei“ taucht der Drive in bewaldete Partien ab um mit einer großen Westkurve an die Gipfelkante des hier – für brandenburgische Verhältnisse – beeindruckenden Geländegefälles geführt zu werden. Sowohl die Borkbank als auch die Weiße Bank müssen damals grandiose Fernsichten geboten haben.
Über das Obertor wurde die Berlin-Potsdamer-Chaussee gequert und in den Böttcherbergpark gefahren. Nach einer abermals steilen Auffahrt wurde die Alexandrabank (später ersetzt durch die Loggia Alexandra) mit Blick in die darunter liegende Schlucht und dann das Rondell erreicht. Vom Böttcherberg aus waren Weiterfahrten in den angrenzenden Park Babelsberg möglich und üblich. Blieb man im Glienicker Park, fuhr man vom Rondell zum Mitteltor und von dort zum Schloss.
Das Wegenetz hat sich seit dem Tod Prinz Carls in Teilen verändert. In Schlossnähe existieren noch einige unhistorische Wegetrassen, die aus der Zeit stammen, als nach dem Verkauf von 1934 der Schlossbereich vom Park getrennt wurde und beide Teile neue Wegeverbindungen benötigten. Im Park fanden auf Abschnitten des Drives Asphaltierungen statt. Demgegenüber gingen einige der Gehwege im Bewuchs unter. Mittlerweile sind Abschnitte des Ost-Drives durch Erosion der Wegedecke kaum noch passierbar.
Die Wege besaßen einen mehrschichtigen Aufbau, der unten aus grobem oben aus feinem Material bestand. Die Wegedecke war durchgehend gewölbt, um Niederschläge schnell abzuleiten.[197] Bei Steigungen, bzw. Gefälle waren die Wege von schmalen und flachen Regenrinnen aus Findlingskieseln flankiert, so dass Ausspülungen verhindert wurden. An Wegegabelungen kreuzen diese Rinnen den Weg. Im Pleasureground und im Schlossbereich bis zum Wassertor sind in letzter Zeit die Wege in dieser Gestalt rekonstruiert worden. Im Park ist damit noch nicht begonnen worden. Hier ist bislang die Gewährleistung der öffentlichen Sicherheit beim Begehen der Wege das vorherrschende Kriterium der Erneuerungsarbeiten.
Plätze und Bänke

Da die prinzlichen Herrschaften im Park ja fast ausschließlich zu Pferd oder in der Kutsche unterwegs waren, ist eine damalige umfassende Bestückung des Parks mit Sitzbänken unwahrscheinlich. Es scheinen nur an den Hauptaussichtplätzen, die mehr als eine Sichtachse zu bieten hatten, feste Sitzgelegenheiten bestanden zu haben. So waren das Zelt und der große Jagdschirm regengeschützte Sitzplätze, wie in den Karpathen der Moorlakeschirm, der Karpathenschirm und vielleicht ab 1841 auch die Einsiedelei. Von einigen der Holzarchitekturen kennen wir nur noch den Namen. Es ist unbekannt, wo sich das Borkenhaus, der Türkische Schirm und der Schirm auf der Höhe befunden haben und wie sie aussahen.[198]
Als Bank bezeichnete Aussichtsplätze gab es laut Kraatz-Plan (1862) fünf: die Victoriabank in den Karpathen, die Römische Bank über dem großen Wiesengrund, die Borkbank und die Weiße Bank über den Waldtälern und die Alexandrabank (anstelle der späteren Loggia Alexandra) auf dem Böttcherberg. Nahe der letzteren bildete das Rodell einen der Hauptaussichtsplätze.
Außer bei der Römischen Bank haben wir keine Vorstellung vom Aussehen dieser Bänke. Das Prinzenpaar war bei Umfahrten in der Regel in Kleingruppen unterwegs. Neben dem Prinzenpaar fuhren mindestens ein Adjutant, eine Hofdame und der Hofmarschall sowie ggf. Gäste mit. Daher kann es sich bei den Bänken kaum um einzelne Sitzbänke gehandelt haben. Ob sich an besonders schönen Ausblicken, wie dem durch das Aquarell Hennickes überlieferten Blick auf die Pfaueninsel (s. u.) einzelne Sitzgelegenheiten befunden haben, ist nicht überliefert. Lediglich auf der Jägerhof-Ansicht von Hintze ist eine wohl hölzerne Einzelbank dargestellt.
Tore und Zäune

Wegen der Gefahr des Wildverbisses der jeweils neuen Pflanzungen wird der Park von Anfang an umzäunt gewesen sein. Im Gegensatz zum Pleasureground, der von Gittern und schmuckvollen Drahtzäunen umschlossen war, wird es sich bei der Parkeinfriedung immer um hölzerne Staketenzäune gehandelt haben. Über das Aussehen dieser ersten Einfriedung des Parks, die man vielleicht noch von Hardenberg übernommen und ergänzt hatte, ist nichts bekannt.

Der Stammpark (1824–1841) besaß augenscheinlich keine Torhäuser. Da der Park seinerzeit noch bis zum Havelufer reichte, gab es auch nur zwei Tore: die Haupt-Parkzufahrt anstelle des späteren Mitteltores und das von Schinkel vielleicht mit Löwenfiguren geschmückte Vorfahrtstor anstelle des heutigen Greifentores. Das Aussehen beider Torgitter ist nicht bekannt.
Eine gestalterisch einheitliche Parkeinfriedung ist erst für die Zeit nach der Erweiterung von 1841 anzunehmen. Am 16. März legte Persius Prinz Carl eine Zeichnung zu einem „Estaquet“ [vor, womit] „ein Theil des neuen Parkterrains zunächst der Chaussee eingehegt werden soll.“ Der Hofmarschall vermerkte dazu, die unteren Pfähle stünden so eng, dass kein Unbefugter seine Füße auf die Querlatte stellen könne.[199] Als Sievers seine Studien in Glienicke betrieb, konnte er noch fragmentierte Abschnitte zwischen Moorlake und der Berlin-Potsdamer-Chaussee dokumentieren, bevor sie 1941 beseitigt wurden.

Sie entsprechen einem im Cerrini-Nachlass überlieferten Entwurf zu einem Estaquet, der weder signiert, noch datiert ist,[200] aber der Zeichnungsart nach auf die Mitte des 19. Jahrhunderts datiert werden kann. Es weist aber im Gegensatz zum Vermerk des Hofmarschalls keine „unteren Pfähle“ auf. Auf einer Aufnahme des Obertores von 1934 sind innerhalb des dortigen Estaquets kleine Latten zu erkennen, die zwischen die eigentlichen Latten an der Querlatte befestigt waren und somit das Besteigen der Querlatte verhinderten.
Von den Estaquets, die innerhalb des Parks die Wirtschaftsgrundstücke der Parkbauten einfassten, konnte Sievers noch den Staketenzaun am Matrosenhaus dokumentieren. Dieser ist sehr viel feingliedriger entworfen und besitzt im unteren Abschnitt eine zweite Lattung. In Analogie kann man annehmen, dass auch die anderen Parkbautengrundstücke von solch einem Zaun umzogen waren.

Soweit erkennbar, bestanden die Pfosten aus Kanthölzern, deren Schaft zum Stab gedrechselt war, so dass ein Fuß und ein Kopf entstand. Die schlichte Schmuckform der Zaunfelder ergab sich durch die zur Feldmitte hin kürzer werdenden Zaunlatten, so dass ein wellenartiger oberer Abschluss der Zäune entstand. Beim Estaquet am Matrosenhaus war dieser Welleneffekt stärker ausgeprägt. Hier war er nochmals im unteren Bereich der Felder durch eine zweite Lattenebene vorhanden.

Das schlichtere Estaquet verlief am Jägertor beginnend um den Park nördlich der Chaussee herum bis zum Wirtschaftshof. Es ist denkbar, dass der Holzzaun im Bereich wichtiger Sichtachsen durch einen invisible fence unterbrochen wurde. Die übrige Parkgrenze war durch Metallzäune, Bauten und den Wassergraben entlang der Uferchaussee gesichert. Auch der Böttcherbergpark war von einem Estaquet eingefasst. Die Südseite war nach Bau der Schweizerhäuser offenbar beseitigt worden. Damals erhielt die zur Erschließung der Schweizerhäuser angelegte Parkstraße (heute Louis-Nathan-Allee) zwei Tore, die an die Böttcherberg-Einfriedung gebunden wurden. Als neue Südgrenze des Anwesens diente der Bäkekanal. Der Jagdschlossgarten besaß an der Berlin-Potsdamer-Chaussee und von-Türk-Straße, also zwischen Brücken- und Kurfürstentor einen Drahtschuppenzaun, vom Kurfürstentor bis zur Glienicker Lage wurde eine durch Terrakotten geschmückte Sichtziegelmauer gebaut, die übrigen Grenzen waren Havelufer. Die Einfriedung des Restaurationsgrundstücks ist noch nicht erforscht.
Mit der Parkerweiterung 1841 und der gleichzeitigen Anlage der Uferchaussee wurden vier Tore angelegt. Im Südwesten das Wassertor, im Nordwesten das Jägertor, im Nordosten ein namentlich nicht überliefertes Tor (dessen Nachfolge das Wildparktor übernahm) und im Südosten das Obertor. Die alte Hauptzufahrt zum Park erhielt nun den Namen Mitteltor. Mit dem Tor der direkten Vorfahrt waren es also insgesamt sechs Tore zum Parkgebiet nördlich der Chaussee.
Der Böttcherberg, der 1841 auf die endgültige Größe erweitert wurde, erhielt gegenüber von Obertor und Mitteltor Zufahrtstore und im Süden Richtung Babelsberg sein Haupttor, das Griebnitztor. Pförtnerhäuser sind nur für das Nordosttor und das Griebnitztor überliefert, beide sind auf den Meyer-Plänen von um 1845 verzeichnet. 1849 erhielt auch das Tor der direkten Schlossvorfahrt ein Pförtnerhaus.

Nach der Parkerweiterung von 1851 erhielten das Obertor und das neu angelegte Wildparktor Pförtnerhäuser. Gemäß den Grundrissveröffentlichungen enthielten die Pförtnerhäuser nur eine Wohnstube, die bei allen Pförtnerhäusern durch einen Erker ausgezeichnet war, eine Schlafstube und eine Küche, boten also einer Kleinfamilie Wohnraum und hatten entsprechend keine weitere Funktion. Der sukzessive Bau von Pförtnerhäusern weist auf die zunehmende Nutzung des Parks durch zahlreiche Personen ohne Schlüsselgewalt hin. Am Jagdschlossgarten besaß nur das Kurfürstentor eine Art Pförtnerhaus zur Vorfahrt. Dieser achteckige überkuppelte Pavillon war aber nicht bewohnbar, sondern konnte nur temporär als Pförtnerhaus genutzt worden.

Die eigentlichen Tore bestanden aus massiv gemauerten Sockeln, Pfeilern oder Mauern mit zwei Torflügeln aus schmiedeeisernen Metallgittern von einfacher Gestalt, die wenig Variationen aufwiesen. Erhalten haben sich nur die Flügel am Wasser- und am Wildparktor. Fotografisch sind die Gitter vom Obertor und vom Jägertor dokumentiert. Das Haupttor ist durch eine Lithografie und das Griebnitztor durch die Veröffentlichung bekannt.
Auch die später gestalteten schmuckvollen Gitter von Brücken-, Kurfürsten- und Hirschtor sind durch die Veröffentlichungen überliefert, das gleichzeitig entstandene Greifen- oder Johannitertor ist erhalten. Das noch erhaltene Gittertor des Jagdschlosses anstelle des Hirschtors ist erst beim Umbau für Prinz Friedrich Leopold im späten 19. Jahrhundert entstanden.
In seiner endgültigen Dimensionierung hatte der Glienicker Park folgende Zugänge: der Park nördlich der Chaussee besaß drei Tore mit Pförtnerhäusern (Schlosstor, Obertor, Wildparktor) sowie fünf weitere Tore (Mitteltor, Jägertor, Wassertor und drei Pförtchen in der unteren Casino-Pergola). Der Böttcherbergpark mit der Schweizerhauspartie besaß ein Tor mit Pförtnerhaus (Griebnitztor) und vier weitere Tore (Mitteltor, Obertor, Parktor und Tor nahe dem Griebnitztor). Der Jagdschlossgarten besaß drei architektonisch gefasste Tore (Kurfürstentor, Brückentor, Hirschtor) und ein Pförtchen gegenüber dem Schlosstor. Mit 18 Zugängen war der Glienicker Park im Wegesystem vernetzt, wie – abgesehen von Sanssouci – keine andere Potsdamer Parkanlage.
Partie des großen Wiesengrundes
Überblick

Diese Partie umfasst die größte nicht durch Wege erschlossene Fläche des Glienicker Parks. Dass die Wegelosigkeit Gestaltungsprinzip wurde, geht aus dem Umstand hervor, dass zunächst im Norden des Wiesengrundes eine wichtige Querverbindung vom Ostdrive zum Matrosenhaus existierte und um 1840 eingezogen wurde. Diese Park-Partie erstreckt sich zwischen dem Schloss und der ehemaligen östlichen Parkgrenze, zwischen dem Wirtschaftshof und dem Matrosenhaus bzw. der Römischen Bank. Diese Partie ist auch die weiträumigste der gesamten Parkanlage und sollte damit als Auftakt eine sehr umfangreiche Ausdehnung des Anwesens suggerieren.
Als typische Merkmale des Englischen Landschaftsparks wurden hier von Lenné Clumps, also Baumgruppen, gepflanzt. Auch einige wenige Solitärbäume wurden in den scheinbar natürlichen Parkraum komponiert. Eine durch das hier freilaufende Vieh (Schafherde und Milchkühe) gebildete Äsungslinie der Baumkronen (Browsing Line) fiel durch das Gefälle des Wiesengrunds nicht auf. Wie die Parkpläne und das Aquarell v. Arnims zeigen, waren hier aus ästhetischen Gründen auch Shrubberies, also Strauchgruppen, gepflanzt, die wegen des Viehs eines besonderen Schutzes bedurften.

Als Besonderheit wurde jeder Parkbesucher zunächst mit einem sehr großen Granitfindling konfrontiert, den Carl hatte hierher bringen und mit dem Kaufdatum 1. Mai 1824 versehen lassen. Wann dieser Riesenstein aufgestellt wurde, und woher er stammte, ist bislang nicht bekannt. Unter Carls Inschrift hatte Lippert das Kaufdatum 1934 einmeißeln lassen, was nach 1945 wieder beseitigt worden ist. Aufgrund des äsenden Viehs sind Promenaden des Prinzenpaars innerhalb des Wiesengrundes unwahrscheinlich. Vielmehr diente der Wiesengrund vielfältigen Einblicken von den ihn rahmenden Wegen aus. Daher dürfte der ursprüngliche Ostdrive auch nach Anlage des neuen Ostdrives 1841 weiterhin einer der wichtigsten Umfahrungswege geblieben sein, gewissermaßen als ergänzender Mitteldrive.

An der südöstlichen Ecke des Wiesengrundes und damit ursprünglich auch an der äußersten Ecke des Parkgrundstücks befand sich das Hauptzufahrtstor zum Park, über dessen Aussehen wir seltsamerweise gar nichts wissen. Nachdem der Park 1841 nach Osten erweitert worden war, wurde an der neuen Südostecke das sogenannte Obertor gebaut, und das alte Park-Haupttor wurde in Mitteltor umbenannt. Auf dem Kraatz-Plan von 1862 ist das Mitteltor noch eingezeichnet und auch schriftlich vermerkt und erschloss damals weiterhin den Drive von der Chaussee aus.
Auf den Parkplänen ist hier kein Pförtnerhaus eingezeichnet, das Tor muss also eine schlichte, vielleicht auch nur hölzerne Architektur gewesen sein, die sich aber gegenüber den anderen Zufahrten an der Chaussee herausgehoben haben dürfte, denn als Haupt-Parkeinfahrt ist eine besondere Gestaltungsweise anzunehmen. Sievers fand es bei seinen Forschungen nicht mehr vor. Möglicherweise war es schon unter Prinz Friedrich Leopold beseitigt worden, der den Park nach derzeitiger Kenntnis kaum nutzte. Die Bewohner des „Alten Schlosses“ nutzten entsprechend zur Erschließung ihrer Wohnung das Greifentor.
Beim Ausbau der Reichsstraße 1 wurde die Chaussee-Senke zwischen Nikolskoer Weg und Wirtschaftshof durch Abgrabung am Obertor und durch Aufschüttung am Hirtental und dem Wiesengrund ausgeglichen. Dadurch lag das Mitteltor nicht mehr auf dem Niveau des Wiesengrundes und es war der Bau einer Treppenanlage nötig. Wohl noch 1935 erfolgte als Zugang zum „Volkspark“ der Bau einer monumentalen Kalkstein-Freitreppe, die nach 1945 durch eine bescheidenere Anlage ersetzt wurde.[201]
Römische Bank im Park

Die Römische Bank, zur Zeit Prinz Carls meist zur Abgrenzung zum Stibadium mit dem Zusatz „im Park“ versehen, war eine jener typischen Exedra-Bänke, mit denen die Potsdamer Parkanlagen zur Zeit Friedrich Wilhelms IV. ausgestattet wurden. Eine Besonderheit ist hier allerdings die sehr abgelegene Lage, die nur in der Bank am Ruinenberg eine Parallele besitzt. Die Glienicker Bank wurde vermutlich von Persius um 1840 erbaut, vielleicht auch erst nach der Parkerweiterung von 1841. Mit der halbrunden sandsteinernen Rückwand folgt sie dem seinerzeit gängigen Vorbild, der Bank der Mammia an der Gräberstraße von Pompeji. Die Römische Bank war der aufwändigste Theeplatz im Park. Dies kann man heute nur noch erahnen, denn die Architektur ist nur noch ein Torso, der weitgehend eingewachsen ist. Der um 1985 teilweise freigelegte Blick auf Potsdam ist fast wieder zugewachsen. Auch die Treppenpodest-Pflastermosaiken sind wieder überwuchert.

Soweit noch vorhandene Abdrücke an der Rückwand zeigen, müssen die Bankwangen aus schmuckvollen Marmor- oder Steinblöcken bestanden haben. Als Johannes Sievers 1937 die Bauten des Parks fotografierte, waren diese Bauteile bereits in simpler Konstruktion ergänzt. Mit großer Wahrscheinlichkeit besaßen die Bankwangen ursprünglich die geschwungene Form mit Tatzen, die noch heute an der Casino-Bank, der Ruinenberg-Bank, der Bank am Schloss Charlottenhof und den Exedrabänken von Sanssouci erhalten sind. Zur Zeit der Sievers-Forschungen fehlten der Römischen Bank sowohl der Sockel zwischen den kleinen Stufenanlagen als auch der Bodenbelag der Terrasse. Wegen der sehr flachen Nut an den Kantsteinen dürfte Letzterer eine farbige Asphaltierung wie am Stibadium gewesen sein. Erhalten haben sich aber die vierfarbigen geometrischen Kleinsteinmosaik-Pflasterungen der Zwischenpodeste der nach Osten zum tiefer liegenden Drive führenden Treppe.[202]

Auf den Parkplänen Gustav Meyers wurde die Römische Bank eingetragen mit einem halbrunden Vorplatz. Vor diesem lag ein heute trockengefallener Reservoirteich. Ein historisches steinernes Sühnekreuz wurde hier als sentimentales Versatzstück aufgestellt. Zwar wissen wir nicht, wie die Bank im Detail aussah, aber der Aussichtsblick von der Bank ist uns durch ein Aquarell Ferdinand von Arnims überliefert. Auf diesem Aquarell erkennt man den kleinen Teich und die großartige Aussicht auf die Silhouette Potsdams vom Schloss Babelsberg bis zur Garnisonkirche und die differenzierte Parkbepflanzung des Wiesengrundes mit Baum- und Buschgruppen.
Dass die Römische Bank zumindest zeitweilig einen Wetterschutz besaß, konnte archäologisch nachgewiesen werden. Zwar finden sich an der erhaltenen Steinwand dazu keine Spuren, aber bei einer Grabung kam vor der Bank ein Pfostenloch mit verkohlten Holzresten zu Tage, das zu einem Holzpfosten gehörte, der vermutlich textiles Zeltdach trug.[203] In seinen „Andeutungen über Gartenkunst“ hat Fürst Pückler ein Vergleichsbeispiel aus dem Muskauer Park veröffentlicht, das ein mögliches Aussehen der Glienicker Bank vermittelt. Sofern ein solches Zeltdach existierte, wäre der heute verlorene Sockel zwischen den Stufenanlagen der Verankerungspunkt des Hauptmastes gewesen. Die kleinen Masten wären um die Steinbank herum separat gegründet worden.
Schlossteich

Im Süden ist der Wiesengrund durch den Schlossteich bestimmt. Eine große, durch die unregelmäßige Form und Inseln natürlich wirkende Wasserfläche bietet einen vielfältigen Blickfang sowohl vom Wiesengrund aus als auch von der Vorfahrt und vom Gartenhof des Schlosses. Der Teich war gänzlich künstlich angelegt und muss zwischen 1838 und 1845 ausgehoben worden sein. Er hatte allerdings erst zwei Drittel der endgültigen Größe. Seiler verweist auf die Ähnlichkeit mit dem „Schwarzen Meer“ im Babelsberger Park und damit auf den Einfluss des Fürsten Pückler.[204] Leider sind keine bildlichen Darstellungen des Teiches bekannt.

Der Teich wurde von einem Wasserleitungsrohr gespeist, das direkt vom Hofgärtner- und Maschinenhaus zu seinem Nordufer führte. Dort wurde eine künstliche Quelle unter einer Findlingsformation angelegt. Auch sonst erhielt der Schlossteich eine Ausstattung mit Findlingen. Angeschlossen an den Schlossteich war ein sehr viel kleinerer Teich nördlich als Überlauf, der aber auf dem Parkplan von 1862 nicht mehr verzeichnet wurde, da dann die Entwässerung über den Jagdschlossgarten erfolgte. 1853 wurde der Teich nach Süden erweitert und damit dem Drive angenähert. Von hier und vom Gartenhof des Schlosses war der Schlossteich am besten einsehbar.

Der Schlossteich fiel mit der Vernachlässigung der Parkpflege trocken. Eine Wiederherstellung dieses Teiches unter dem neuen Namen Schlosssee war seit langem geplant. Die dafür notwendigen finanziellen Mittel waren aber auf absehbare Zeit nicht vorhanden, zumal eine Probeflutung unter Hinzuziehung der Feuerwehr um 1990 ergab, dass die Dichtung der Teichsohle weitgehend verlorengegangen war.
„EFFRE, ein europäisches Förderprogramm u. a. für die touristische Infrastruktur brachte das Geld für die Sanierung von Wegen und angrenzenden Randbereichen im Park […]. Und dank der pfiffigen Idee des ökologischen Betreuers dieser Baumaßnahmen geriet so auch der Schlosssee auf die Sanierungsliste. Der See ist technisch betrachtet ein Teich mit künstlicher Wasserzufuhr und abgedichteter Sohle, ist doch der anstehende Boden reiner Sand.
Durch archäologische Grabungen, der Kartierung noch vorhandener Uferlinien in der Wiesenmulde, dem Einmessen von Ufer begleitenden Findlingen, dem Übereinanderlegen historischer Karten und vermessungstechnischer Auswertungen konnten Lage, Größe und Gestalt des Sees [in den Jahren 2016 und 2017] rekonstruiert werden. Die Abdichtung [der Sohle] erfolgte mit einem Tongemisch. Die Wasserspeisung übernimmt ein Tiefbrunnen und das Wasser fließt von der »Quelle«, einer Gruppe bauzeitlicher Findlinge, in den See. […] Die Insel mit zwei Eichen blieb erhalten. Das Ufer wurde sparsam nur an wenigen Stellen bepflanzt, war der See doch das einzig offen in einer Wiese liegende Gewässer des Glienicker Parks. Mit der bauzeitlichen Tiefe von nur ca. 50 cm diente er der reinen Optik, als Landschaftsspiegel für Himmel, Bäume und Felsen. Um auch Artenschutzbelangen gerecht zu werden, hat er heute eine Tiefe bis zu 1,50 m.“[205]
Wirtschaftshof

Zwischen Pleasureground und Park liegen die direkte Vorfahrt zum Schloss und der Wirtschaftshof an der Berlin-Potsdamer Chaussee. Der Wirtschaftshof besteht aus dem Rinderstall mit Turm und Durchblicksbogen, dem schlichten Schafstall und der schornsteinbekrönten Konditorei (die prinzliche Bäckerei lag im Dorf Klein-Glienicke). Schafstall und Konditorei wurden vermutlich als Umbauten um 1840 errichtet, denn sie tragen Persius’ Handschrift, sind aber bereits im Parkplan um 1817 eingezeichnet.[206]

Für den Kuh- und Wirtschaftspferdestall mit Turm ist ein Persius-Entwurf der Zeit um 1843 überliefert, der Bau ist aber in den Meyer-Plänen um 1845 noch nicht enthalten.[207] Dieser Bau erhielt später einen architektonisch etwas zu aufwändigen Turmaufsatz, der dem des Schlosses (1874) ähnelt, aber teilweise in Sichtziegelbauweise errichtet wurde. Nach 1938 wurde der Stallbau durch Einbau von Wohnungen verändert und verlor seine Pergolen.

Ob der Durchblicksbogen vom Drive aus einen Blickpunkt besaß ist noch nicht geklärt. Auf dem Persius-Entwurf ist ein solcher Blickpunkt nicht vorgesehen. Auf dem Kraatz-Plan von 1862 aber ist der nicht mehr vorhandene Baukörper nördlich der Konditorei in der Achse des Bogens verzeichnet. Zu diesem Baukörper und seinem vermutlich bei der Vergrößerung des Pförtnerhauses erfolgten Abriss (um 1955) sind bislang noch gar keine Ansichten und Daten bekannt.
Der Schafstall ist in seiner von Persius geschaffenen Bauform überkommen. Er besitzt an der Südfassade zur Chaussee hin eine Bukranion-Konsole, die stilistisch auf die Zeit des neobarocken Jagdschloss-Umbaus hinweist und deren Funktion wir nicht kennen. Auch die Konditorei ist in der von Persius entworfenen Form erhalten. Auf den Parkplänen ist nördlich an sie anschließend eine Baulichkeit eingezeichnet, die in ihrer Lage nur ungefähr einem von Persius vorgesehenen Bauteil entsprach. Das Aussehen dieses Bauteils ist nicht überliefert. Zerstört wurde er wohl erst nach dem Zweiten Weltkrieg, als das benachbarte Pförtnerhaus nach Osten verlängert wurde.
Den Wirtschaftshof an so prominenter Stelle zu bauen ist als England-Zitat zu verstehen, wo die Wirtschaftshöfe in die Landschaftspark-Gestaltung einbezogen waren, aber dort die ökonomische Grundlage der Ländereien waren, während sie in Glienicke lediglich die prinzliche Tafel versorgten.
-
Gesamtansicht des Wirtschaftshofes von Süden -
Konditorei von Südost -
Der Schafstall von Süden -
Schafstall, neobarocke Konsole, um 1860 -
Kuhstall von der Vorfahrt aus (von Westen) -
Der Vorhof des Wirtschaftshofes am Pförtnerhaus

Sievers ordnet einen Entwurf Schinkels zu einem Bedientenhaus Glienicke zu.[208] Dieses Gebäude ist zwar nie gebaut worden, stellt aber einen der romantischsten Landhausentwürfe seines Werkes dar. Die kleine Baugruppe ist äußerst lebhaft gegliedert, im Sinne einer größeren italianisierenden fabbrica. Sollte diese malerische Architektur tatsächlich für Glienicke entworfen worden sein, wird sie aufgrund des im Vordergrund dargestellten Ufers wohl in der Nähe des Jungfernsees zu verorten sein. Vielleicht im Vorfeld der Planungen Persius’ zum Hofgärtner- und Maschinenhaus, das dann ein sehr viel rationaler entworfener Bau wurde. Wo eigentlich die Bediensteten des Glienicker Hofes lebten, die später in den Schweizerhäusern und dem Arbeiterhaus untergebracht wurden, ist bislang noch nicht untersucht worden. Im Schloss haben wir nur von Räumen der engeren Dienerschaft Kunde.
Vorfahrt-Tor

Das Tor der direkten Vorfahrt, die bei Fahrten nach und von Potsdam genutzt wurde, scheint zunächst recht schlicht gestaltet gewesen zu sein. Bekannt ist nur ein Entwurf Schinkels mit zwei sich duckenden Löwenfiguren auf den seitlichen Sockeln, dessen Ausführung ungesichert ist.[209] Diese direkte Vorfahrt war zunächst, ohne Pförtnerhaus und an der Rückwand des Gewächshauses gelegen, nicht eben attraktiv. Auch Schinkels Gewächshaus-Neubau hätte diesen Hinterhofcharakter fortgeschrieben. Vielleicht entschied sich Prinz Carl deshalb für einen neuen Standort der Gewächshäuser. Der dann entlang der Vorfahrt erfolgte Neubau des Stibadiums 1840 war in seiner Kleinteiligkeit keine optische Beeinträchtigung dieses Zufahrtsweges.

Der Hofmarschall vermerkte am 26. Juni 1838 im Journal: „Die steinernen Löwen, die aus alter Zeit hier im Garten von Glienicke gestanden hatten, erhielten ihre neue Stelle auf den Postamenten am Eingange bei der Chaussee.“[210] Sofern die nicht mehr nachprüfbare Datumsangabe stimmt, hatten die Löwen nur vier Jahre ihren Platz inne. Ein verbindlicher Name dieses Tores scheint nicht existiert zu haben. Es wechseln Bezeichnungen wie „Haupttor“, „Vorfahrtstor“ und „Schlosstor“ (so auf dem Kraatz-Plan). Seit der letzten Umgestaltung haben sich die beiden Bezeichnungen „Greifentor“ und „Johannitertor“ eingebürgert.
1842 wurden auf bestehenden Torpfeilern liegende Hirschfiguren nach Rauchs Entwurf aufgestellt. Damit erhielt das Tor wie auch das gleichzeitig gebaute Wassertor eine jagdliche Note. Auf einem Gemälde von W. Reuter um 1845 (s. u.) sind auf den Pfeilern Hirschfiguren und auf den Ecken der Mauerwangen je zwei flache Schalen dargestellt, wie sie sich heute noch an der Südtreppe des Casinos finden.

Seltsamerweise finden sich auf den Ansichten und der Karte Gustav Meyers (1845) keine Hinweise auf ein Pförtnerhaus. Laut Louis Schneider wurde erst 1849 durch Ferdinand von Arnim das noch heute erhaltene Pförtnerhaus erbaut. Es ist in gefälligen klassizistischen Formen gehalten mit einem karyatidengeschmückten Erker als besonderem Blickfang von der Vorfahrt. Seine südlich vorgelagerte Pergola ist bei der Instandsetzung 1941 beseitigt worden.[211] Da sein Rauminhalt für heutige Anforderungen an Dienstwohnungen zu klein war, wurde das Pförtnerhaus, vermutlich zur Zeit der Schlossinstandsetzung (1950–1952) nach Osten verlängert.
1853 wurde Prinz Carl vom König zum Herrenmeister der Balley Brandenburg des wiederbegründeten Johanniterordens ernannt, was für ihn eine persönliche Beziehung hatte, da sein Stadtpalais im 18. Jahrhundert das Johanniterpalais war. 1854 wurde Carl als wichtiger politischer Vertrauter des Königs zum Generalfeldzeugmeister im Rang eines Feldmarschalls berufen. Diese beiden neuen Ehren wurden als Motiv in den neuen Gittern des Haupttores durch Johanniterkreuze und krepierende Granaten eingefügt.
Das von v. Arnim entworfene neubarocke Gittertor mit verschlungenen C-Lettern ist stilistisch eigentlich wenig passend zu den übrigen Bauten des Pleasuregrounds, erfreut sich aber heute wegen der gefälligen Formen und der Teilvergoldung einiger Beliebtheit, wie die häufige Verwendung als Fotomotiv zeigt. Dazu tragen auch die beiden hyperboräischen Greifen nach Entwurf August Kiß' bei, die ebenfalls 1861 aufgestellt wurden und denen heute sowohl die Krönchen als auch eine Schwanzschlinge fehlen. Mit den Greifen, Dienerwesen und Attribute Apolls, sollte Glienicke als ein nördliches Paradies charakterisiert werden.
-
Entwurf zum Torbau mit geduckten Löwen (Schinkel, um 1830) -
Chaussee und Vorfahrtstor mit Hirschen (Borchel nach Oeder, um 1850) -
Chaussee mit Stibadium und Tor, hinten das Grundwaldsche Kaffeehaus, spätere Restauration (W. Reuter, um 1850) -
Entwurf zum Hauptpförtnerhaus (Ferdinand v. Arnim, 1852)
-
Johannitertor (Gesamtansicht 2017) -
Greifenfigur vom Haupttor
Uferchaussee und Wassertor

Bereits 1825 spielte der Prinz mit dem Gedanken einer Parkerweiterung nach Osten über die dort an der Parkgrenze entlang führende Straße zur Sacrower Fähre hinweg. Um nach einer Erweiterung keine öffentliche Straße mitten im Park dulden zu müssen, kam er auf die Idee der Verlegung dieser Straße an das Ufer des Jungfernsees. Diese Uferchaussee wurde erst zeitlich parallel zur Parkerweiterung 1840/41 gebaut.[212] Die Planung wurde bereits 1840 in Angriff genommen, denn laut Journaleintrag vom 19. November 1840 fand „hierselbst eine Konferenz mit Herrn Lenné und den Oberwegebaumeister Horn in Sachen der von seiner Majestät befohlenen Chaussee längs der Havel“ statt.[213]

Die Chaussee wurde ein gutes Stück von der bisherigen Uferlinie entfernt durch Aufschüttung eines Dammes angelegt. Dadurch entstand ein breiter Wassergraben vor der Parkgrenze, der heute wenig beachtet wird, da der heutige Wasserstand etwa einen Meter unter dem damaligen liegt. Die Pflasterung der Chaussee erfolgte 1841–1843, wobei nur die ersten 226 m von der Brücke bis zum Wassertor gepflastert wurden, die übrige Chaussee erhielt eine gestampfte Decke aus Kies und Lehm. Für den Abschnitt zwischen Krughorn und Moorlake war das Ufer Teil der Parkerweiterung und war von Anfang an als Ort der Chaussee vorgesehen, hier musste also keine Dammschüttung erfolgen.
Mit der Anlage der Uferchaussee wurde ein neues Tor für notwendig erachtet, das den Drive über eine Stichstraße im Bereich der ehemaligen Ziegelei mit der Uferchaussee verband, man also bei Fahrten zur Pfaueninsel nicht vom Schloss aus um das Grundstück herumfahren musste. Schon zuvor befand sich hier ein Parkzugang, über den auf dem Wasserweg transportierte Materialien von der halbinselartigen Ablage zur Ziegel- und Kalkbrennerei transportiert wurden.
Persius gestaltete dieses sogenannte Wassertor, das direkt auf die Halbinsel mit der Fregattenattrappe führte, auf sehr schlichte Weise durch viertelkreisförmig zurückschwingende Flügelmauern mit Torpfeilern, Rundbogenpförtchen und Torgittern. Als Schmuck dienten zwei stehende Hirschfiguren aus Zinkkunstguss, die laut Auftragsbuch der Firma Geiß am 11. Juni 1842 geliefert wurden. Kurz darauf wurden die Hundeköpfe für die Metopen der Pfeilergebälkzone geliefert, die heute nicht mehr vorhanden sind.[214] Die stehenden Hirschfiguren wurden 1868 durch die heutigen liegenden Hirsche ersetzt.
Im Süden schließt das Wassertor an die untere Pergola des Casinos an, der nun von Persius zwei kleine Rundbogenportale eingefügt wurden. Zwischen der unteren Pergola des Casinos und der südlichen Flügelmauer des Wassertores vermittelt baulich ein kleiner pavillonartiger Torbau mit Nische im Norden, der zumindest heute keine Deckung besitzt. Darin befindet sich ein vorgestellter Sockel, der einst eine besonders hervorgehobene Skulptur getragen haben muss. Diese Skulptur, die sowohl Blickpunkt von der unteren Pergola als auch von der Uferchaussee gewesen sein muss, ist nicht durch Beschreibungen überliefert. Im Norden wurde vom Wassertor eine Sichtziegelmauer bis vor das Maschinenhaus gezogen, die zur architektonischen Steigerung des Wasserturms zwei kleine Rundtürme ausbildet.[215]
-
Lageplan von Hofgärtnerhaus, „Holzhof“, Wassertor und „Ablage“ (Persius, 1841) -
Persiuspförtchen in der unteren Pergola zur Uferchaussee -
Pförtchen zum Pleasureground am Wassertor -
Mauer unterhalb des Hofgärtnerhauses an der Uferchaussee -
Brücke der Uferchaussee unterhalb der Teufelsschlucht -
Verlandeter Wassergraben entlang der Uferchaussee
Ufer-Höhenweg-Partie
Allgemeines

Der am Jungfernsee liegende und auf diesen bezogene Parkbereich hatte von Natur her großen Reiz durch das Steilufer, das an drei Stellen durch Erosionsrinnen eingeschnitten war. Hier wurde bei der gärtnerischen Gestaltung auf Rahmung von Fernsichten in die sich entwickelnde Potsdamer Kulturlandschaft Wert gelegt. Bereits vor Unterzeichnung des Kaufvertrages hatte Prinz Carl im Frühjahr 1824 als erste Parkgestaltung die mittlere Erosionsrinne zur Schlucht abgraben lassen und eine Brücke nebst „Altan“ bauen lassen, über deren Aussehen wir nichts wissen. 14 Jahre später entstand hier die Teufelsbrücke. Der heutige waldartige Eindruck der Partie existierte noch nicht, vielmehr wurden umfänglich Gehölze gepflanzt. Das Formen von Schluchten und Wasserfällen ist dem Werk Lennés fremd. Pückler dagegen erläutert solche Anlagen in den „Andeutungen über Landschaftsgärtnerei“. Vermutlich hat sich Prinz Carl durch diese inspirieren lassen.

Außerdem zog Carl den Landschaftsmaler August Wilhelm Ferdinand Schirmer hinzu. Dieser war von Schinkel dem Fürsten Pückler zur Illustration der „Andeutungen“ empfohlen worden. Schirmer erwies sich darin außerordentlich erfolgreich und meisterte die Schwierigkeit, noch unfertige Anlagen Pücklers im beabsichtigten Endzustand darzustellen. Außerdem hatte Schirmer während seiner Zeit als Vorlagenmaler der KPM 1824 einige Veduten in Glienicke geschaffen. Vermutlich daher schien Prinz Carl dieser Landschaftsmaler besonders geeignet, ihn bei der Parkgestaltung zu unterstützen. Schirmers Anwesenheit ist für 1837 und 1838 gesichert, in diesen Jahren wurde also diese Parkpartie gewissermaßen in die Natur gemalt.
Es sind einige Farblithografien von August Haun nach Schirmers Vorlagen bekannt, so der Gartenhof, das Casino, das Hofgärtnerhaus und die Ansicht des Glienicker Ufers vom Jungfernsee. Die Vorlagen – vermutlich Ölgemälde oder Gouachen – sind fast sämtlich verschollen. Nur zur Lithografie des Casinos hat sich ein kleinformatiges Ölgemälde im Kupferstichkabinett der Staatlichen Museen erhalten. Als Auftraggeber der Vorlagen kommt eigentlich nur Prinz Carl in Frage. Wo jener die Vorlagen bewahrte oder aufgehängt hatte, ist unbekannt.[216]
Die Wegeführung ist in diesem Bereich engmaschig. Im Osten verläuft der Drive, von dem aus das Matrosenhaus, die Erlenwiese und das Zelt gesehen wurden. Westlich parallel zum Drive verläuft streckenweise der Ufer-Höhenweg, der zu den eigentlichen Park-Attraktionen führt. Westlich von ihm verlief ein Weg am Fuß des Hanges, der sich aber vor der Teufelsschlucht mit dem Ufer-Höhenweg vereinigte.
Den architektonischen Auftakt der Ufer-Höhenweg-Partie markiert das Hofgärtner- und Maschinenhaus, das mit seinem Wasserturm eine Landmarke in der Parkanlage und in der nördlichen Potsdamer Kulturlandschaft ist. Der Fußweg westlich des Drive führte durch die Pergola am Hofgärtnerhaus und dann unter dem Schwibbogen hindurch. Heute ist dies durch den – nicht historischen – Metallzaun nicht möglich.

Der Architekturhistoriker Klaus Konrad Weber hat in populären Veröffentlichungen[217] die „belebende Idee“ des Glienicker Parks als einen Weg von Norden (Jägerhof und Nebengebäude in „gotischen“ Bauformen) über die Alpen (Teufelsbrücke und Umgebung) nach Italien (Pleasureground mit antikisierenden Bauten) erklärt. Er führt als Anregung Beispiele aus Literatur und Kunst von Goethes „Wilhelm Meister“ bis zu Overbecks Gemälde „Italia und Germania“ an und rückte – ohne dies zu benennen – die Parkgestaltung in die Nähe von Hector Berlioz’ 1834 uraufgeführter symphonischer Programmmusik „Harold en Italie“. Seiler hat mehrfach betont,[218] ihm sei diese Gestaltungserklärung zu trivial, als dass sie Prinz Carl und den anderen Gartengestaltern Glienickes als eine besondere Idee gewahr gewesen sei. Vielmehr sei der Spannungsbogen zwischen antikischen und gotisierenden Bauten in fast allen europäischen Landschaftsgärten anzutreffen. Außerdem beträfe das Norden – Alpen – Süden-Programm ja nur den westlichen Parkabschnitt des Parks.
Hofgärtner- und Maschinenhaus

Das Hofgärtner- und Maschinenhaus baute Ludwig Persius 1836–1838 für die nach der Pfaueninsel früheste große Potsdamer Dampfmaschinenanlage zum Betreiben von Wasserspielen. Das Gebäude ist der erste eigenständige Bau Persius’ und gleichzeitig eines seiner Hauptwerke.[219] Aus statischen Gründen wurde der neue Wasserturm separat gegründet und über einen Schwibbogen mit dem als Umbau des Ziegelmeisterhauses entstandenen Hofgärtner-Wohnhaus baulich verbunden. Derartige Konstruktionen hatte schon Schinkel bei verschiedenen Kirchturm-Neubauten angewandt, beispielsweise in Müncheberg. Am Fuß des Turms liegt das Maschinenhaus, dessen Dampfmaschine Havelwasser sowohl in das Turmreservoir als auch in den Park pumpte.[220] Die Dampfmaschine stammte aus der Produktion der Firma Egells.[221] Sie wäre heute ein bedeutendes technisches Dokument, wurde aber nach dem Zweiten Weltkrieg gestohlen.

Es handelt sich um den frühesten Wasserturm im Berlin-Potsdamer Raum. Türme zur Trinkwasserversorgung existierten damals noch nicht und bisherige Wasserspiel-Anlagen wie in Sanssouci oder auf der Pfaueninsel waren mit offenen Reservoirs auf Hügeln ausgekommen.[222] Das Reservoir befand sich im Glienicker Wasserturm unter dem Dach in einem mit kleinen gereihten Rundbogenfenstern und unten kleinen halbmondförmigen Überlauföffnungen ausgezeichneten Geschoss. Das darunterliegende Geschoss mit den hohen Bogenfenstern enthält einen gewölbten Thee- und Belvedere-Raum mit vier Pfeilern, die das Reservoir trugen. Die Fenster konnten durch Herausnahme der Holzläden geöffnet werden und boten eine grandiose Rundumsicht, Richtung Jungfernsee befindet sich zudem ein Balkon.

Die auch durch das seitlich gestellte Nebengebäude sehr malerische Baugruppe bietet reizvolle Durchblicke, etwa durch die Pergola, in deren Achse sich ein kleiner Springbrunnen befand. Oder durch den großen Bogen, unter dem ein Zinkabguss der Venus von Capua aufgestellt ist, der einzigen antikischen Plastik außerhalb des Pleasuregrounds. Die eiserne Einfriedung ist modern, zu Prinz Carls Zeiten befand sich nur um das eigentliche Hofgärtnerhaus ein hölzerner Staketenzaun nach Persius Entwurf. Der Weg führte damals auch nicht um das Gebäude herum, sondern durch die Pergola und den Schwibbogen.

Das Wasserreservoir im Turm existiert nicht mehr, aber das Hofgärtnerhaus enthält nach wie vor Dienstwohnungen. Hier wohnten also die Hofgärtner Friedrich Schojan und ab 1853 August Gieseler und lenkten die Pflege des Anwesens. Im Sockelgeschoss des Turms und im Dampfmaschinenhaus befindet sich seit den 1960er Jahren das Lapidarium. Hier sind die (noch) nicht wieder aufgestellten, aber sichergestellten Steine der Glienicker Zierarchitekturen und Ausstattungsstücke untergebracht.
Am Fuß des Gebäudekomplexes liegt eine Senke, die heute der Parkwirtschaft dient und zur Zeit des Prinzen Carl als Holzhof genutzt wurde. Dies war der Tonstich der ab 1824 aufgegebenen Ziegelei, die zahlreiche Ziegel zum Bau wichtiger Bauten lieferte, wie beispielsweise dem von Schinkel für Wilhelm von Humboldt gebauten Schloss Tegel oder dem von Schinkel entworfenen Turm der Charlottenburger Luisenkirche. Die Halbinsel mit Prinz Carls Fregattenattrappe diente bis 1824 als Anlegestelle für das Verschiffen der Ziegel und die Anlieferung der Rüdersdorfer Steine für die Kalkbrennerei. Doch wohl auch danach wurden hier über den Wasserweg transportierte Baumaterialien und Pflanzen angelandet.
-
Schnitt durch das Hofgärtner- und Maschinenhaus (Persius, um 1838) -
Grundriss des Hofgärtner- und Maschinenhauses (Persius, um 1838) -
Durchblicksbogen zwischen Wasserturm und Hofgärtnerhaus -
Wasserturm mit herausgenommenen Fensterläden des Belvedereraums -
Pergola mit fast wieder zugewachsenem Blick auf den Jungfernsee -
Hofgärtnerhaus, Kapitell, angebl. vom Berliner Schloss
Geschützplatz

Neben seinen antiquarischen Neigungen hat Prinz Carl zeitlebens eine gewisse Verspieltheit an den Tag gelegt. Dazu gehörte neben der Freude an der Miniaturflotte auch das Böllern mit Geschützen. Dies ist sowohl im Journal über Glienicke dokumentiert, wo das Salutschießen an jedem Feier- und Familiengeburtstag vermerkt ist, als auch in historischen Beschreibungen, in denen es beispielsweise 1846 heißt: „Wir gehen an einer kleinen Batterie vorüber, die hier nur die friedliche Bestimmung hat, den Kanonengruß zu senden über den blauen Havelspiegel hin, oder ihn zu erwidern, wenn von dorther Dampfschiffe den Prinzen begrüßen.“[223]
1828 erhielt der Prinz vom König zum Geburtstag eine dreipfündige Kanone zum Salutschießen geschenkt.[224] Ob dies das erste Geschütz war, das der Prinz in Glienicke aufstellte, ist unbekannt. Da es sich ja um ein handliches Geschütz handelte, konnte es auch außerhalb des Geschützplatzes eingesetzt werden. Auf den Meyer-Plänen von 1845 sind auf einer weitgehend abgepflanzten Hügelkuppe nördlich des Hofgärtnerhauses drei Geschütze, ausgerichtet auf die Havel, eingezeichnet. Laut einem anderen Bericht waren die Rohre aber auf den kastellartigen Wasserturm ausgerichtet.[225] Auch auf dem Kraatz-Plan von 1862 sind auf dem Geschützplatz nur drei Geschütze kartiert.

An Festtagen kam dem Geschützplatz eine geradezu zentrale Rolle zu. Bei den Festen musste der Jubilar keineswegs anwesend sein, es wurde dann ihm zu Ehren ein Fest gegeben. So schrieb Carl 1839 an seinen zur Kur in Teplitz weilenden Vater, wie man dessen Geburtstagsfeier am 3. August begangen hatte: „Abends ½ 10 Uhr ließ ich auf Wunsch meiner Kinder ein Feuerwerk abbrennen, zu dem der Major Dietrich aus Spandau mir hilfreiche Hand lieferte. Auch hatte der Prinz August auf Vorschlag Adalberts erlaubt, die bereits zum Herbst gefertigten Raketen, Leuchtkugeln e.t.c. mitverwenden zu dürfen, so daß dadurch das Ganze mehr Ensemble bekam. Das Ende war meine Idee und glückte vollkommen. Nämlich gegenüber dem Casino, wo das Feuer-Werk auf dem Wasser sich deliciös ausnahm hatte ich auf dem Lande Ihren Namenszug F. W. III. 30 Fuß hoch errichten lassen, und als im Brilliant-Feuer er zu brennen anfing, intonierte auf dem diesseitigen Ufer ein Trompeterchor ‚Heil Dir im Siegerkranz‘ von der sehr zahlreichen Menge mitgesungen und als Baß obligate Kanonenschüsse im Takt. Das ganze geleitet von [Adjutant] Job Witzleben, der es für unausführbar hielt und nur durch eine Probe, die ich in den Mittagsstunden in vollem Tutti abhielt, sich vom Gegenteil überzeugen ließ. 101 Kanonenschüsse bildeten den würdigen Schluß, von unaufhörlichem Hurra-Ruf der vielen Tausende zu Wasser und zu Lande unterbrochen. Auch hatte ich mich unterstanden, das Casino, die Rotunde am Wasser und die Hauptfassade meines Hauses nebst Bassin und Löwen zu illuminieren, wozu die Fontaine reiherbuschartig sprang, eine ganz neue Manier. Mein ganzer Garten war der beau monde und allen Bekannten geöffnet, die en masse davon Gebrauch machten“[226]

Prinz Carl scheint erst spät eine kleine Sammlung von historischen Geschützen angelegt zu haben. Am 23. Oktober 1868 vermerkt das Journal: „Heute traf das große Dänische Geschütz, welches Se. Majestät der König schenkte, von Spandau hier ein. 118 Pfund.“[227] Zuletzt waren es neun historische Rohre, die den Geschützplatz zierten.[228] Möglicherweise waren fünf der Rohre Kriegsbeute des deutsch-französischen Krieges 1871. Dafür spricht auch Heinrich Wageners Schilderung von 1882: „Verlassen wir nun die unmittelbare Umgebung des Schlosses, um eine Wanderung durch den weiten Park zu unternehmen. Zunächst lenken unsere Aufmerksamkeit eine Reihe abgeprotzter Kanonen auf sich. Einiger derselben aus der frühesten Zeit der Geschützfabrikation stammend, sind geschmiedete eiserne Geschütze, die nur historischen Werth als Repräsentanten einer längst vergangenen Zeit besitzen. Dagegen reden die mächtigen Broncekanonen, von denen eine in der reichen Ornamentierung der Renaissance vorhanden ist, von den siegreichen Kämpfen 1864 bei Düppel, 1866 in Böhmen und 1870 in Frankreich. Kaiser Wilhelm machte diese Geschütze seinem Bruder, dem General-Feldzeugmeister und Chef der Artillerie zum Geschenk. In ihrer Nähe steht ein dänisches Schilderhaus.“[229] Mit den historischen Geschützen verwies der Prinz auch auf seinen Beruf als Militär, ja, mit den gewissermaßen „erbeuteten“ Waffen stellte er sich als Feldherr dar, der er nie war.
Die Geschütze sind durch ein Foto Wolfgang Sievers’ von 1934 überliefert, auf dem sie auf dem Rasen liegen, also nicht mehr aufgestellt waren.[230] 1935 wurden die noch vorhandenen Rohre auf die neu erbaute Bastion nahe dem Jägerhof verbracht. Nach dem Zweiten Weltkrieg wurden sie angeblich auf Betreiben der amerikanischen Besatzungsmacht der Französischen Republik und dem Königreich Dänemark überstellt. Harry Nehls zufolge wurden die Kanonen aber nach 1945 in der Bastion vergraben, wo sie sich noch immer befinden sollen. Hierfür gibt Nehls allerdings keine Quelle an.[231]
Erlenwiese und Erlenschlucht

Die Ufer-Hühenwegs-Partie kontrastierte in ihrer Gestaltung zum Pleasureground. Gustav Meyer lobte Prinz Carls Glienicker Anlagen 1860 in seinem „Lehrbuch der schönen Gartenkunst“ und spricht dabei offenbar besonders den Bereich von Erlen- und Teufelsschlucht als Gegensatz zum Pleasureground an: „Der Pleasureground in würdevoller Ruhe gehalten und frei von allen Spielereien, ist zwar von geringer Ausdehnung, aber so unterhaltend und dem Schlosse und der Umgebung so vorzüglich angepaßt, und bis in seine Einzelheiten so vollendet, daß er hierin schwerlich übertroffen werden dürfte. Dasselbe ist mit dem Parke der Fall in welchem mehrere auf künstlichem Wege hergestellten, höchst pittoreske Erdbildungen in der Form von felsigen Regenschluchten, Gebirgsseen und Bächelchen dem Beobachter Bewunderung von der Meisterschaft ihres Begründers abnöthigen.“[232]

Die südlichste der drei Erosionsrinnen im Steilufer ließ Prinz Carl umfänglich ausgestalten. Im Osten zog sich entlang des Drives die Senke der Erlenwiese, die hauptsächlich vom Zeltenplatz aus einsehbar war. Sie wurde von Carl mit zwei kleinen Teichen und Felsblöcken geziert. Der kleine Wasserlauf floss nach Süden und dann nach Westen in die ebenfalls mit Felsen ausgekleidete Schlucht, in der zwei kleine Wasserfälle vom Ufer-Höhenweg her sichtbar eine optische und akustische Parkbelebung bildeten.
Für die über die Schlucht führende Erlenbrücke ordnet Seiler einen erhaltenen Entwurf Persius’ zu einer Knüppelholzbrücke zu.[233] Es haben sich weitere derartige Entwürfe Persius’ erhalten. Offenbar sollten die hier aus Knüppelholz gebildeten Architekturen einen besonders naturverbundenen Eindruck erwecken. Möglich wäre aber auch, dass sie Entwürfe für den Jägerhof-Bereich waren (s.d.).
Die Erlenschlucht war eine besonders kleinteilig gestaltete und bepflanzte Anlage. Zuoberst, unterhalb des Zeltes, lag die Erlenwiese mit einem findlingsgeschmückten zweiteiligen Teich. Er speiste einen künstlichen Wildbach, der zunächst nach Süden floss und dann nach Westen abbog. Hier befand sich die eigentliche Schlucht mit zwei durch Felsblöcke gebildeten kleinen Wasserfällen, über der sich die Erlenbrücke spannte. Unterhalb der Wasserfälle lag Richtung Uferchaussee eine von dem mäandernden Abflussbach durchzogene Ebene, die laut den Meyer-Parkplänen von 1845 sehr differenziert bepflanzt war. Im Bach befanden sich nahe der Mündung in den Wassergraben entlang der Uferchaussee zwei kleine Inseln. Auch im Chausseegraben, der unter einer (oberirdisch nicht erhaltenen) Chausseebrücke in den Jungfernsee mündete, befand sich ebenfalls eine Insel. Zu diesem Bereich führten vom Ufer-Höhenweg zwei Treppenwege, die mittels Steg an Steinformationen den Bach überbrückten.
Baumkanzel
.jpg)
Zur naturbezogenen Architektur gehörte auch die nicht mehr vorhandene Baumkanzel, deren Standort heute zwei Bänke markieren. Diese hölzerne Umbauung einer sehr alten Kiefer ist in sämtlichen Parkplänen ab 1825 eingezeichnet und durch ein Gemälde von Julius Schoppe in seiner genauen Gestalt bekannt.
Zu einem unbekannten Zeitpunkt benannte Carl diesen Aussichtsort als „Kaiserpinie“ um, zu Ehren seines Schwagers Zar Nikolai I., der nach dem Tod Alexejs I. am 1. Dezember 1825 Zar geworden war. Die Baumkanzel wurde somit ein wichtiger Huldigungsort für Carls mächtigsten Verwandten und damit zum einzigen eindeutig politischen Denkmal des Parks. Unter der Bezeichnung „Kaiser-(Nik.) Pinie“ ist sie noch auf dem Kraatz-Plan von 1862 kartiert. Wann die Baumkanzel verschwand, ist nicht bekannt.
Angesichts des Babelsberger Parks, in dem fast alle Denkmäler politischen Hintergrund besitzen, ist es bemerkenswert, dass der Glienicker Park keine vaterländisch motivierten Orte aufweist. Allenfalls sind die ab 1868 erworbenen historischen Kanonenrohre am Geschützplatz als politisches Denkmal zu bezeichnen. Bei dem nach 1871 einsetzenden Denkmalskult wäre zumindest die Benennung eines Aussichtsplatzes als Kaiser-Wilhelm-Bank oder die Aufstellung einer Büste des Bruders zu erwarten gewesen. Doch liegen hierfür keinerlei Anhaltspunkte vor. Nach was oder wem die zwischen 1851 und 1862 angelegte Victoriabank in den Karpathen benannt war, ist derzeit nicht bekannt.
(Orientalisches) Zelt

Auf einer Höhe am Drive befand sich das Zelt, zu dem zwei Verbindungswege vom Ufer-Höhenweg führten. Es war eine achteckige Konstruktion aus Stoff um eine zentrale Holzstütze. Das Vorbild findet sich in dem 1818 in London erschienen Vorlagenwerk von John Buonarotti Papworth „Designs for Rural Residences“.
Seiler vermutet, dass das Zelt im Auftrag des Königs für den Charlottenburger Schlossgarten gefertigt wurde, dort aber nicht aufgestellt wurde. Stattdessen habe der König Prinz Carl die Zierarchitektur als Einweihungsgeschenk gemacht. Denn in Glienicke ist das Zelt bereits im Mai 1824 nachweisbar. Demnach wäre es die früheste Zierde, die der Prinz dem Park zugefügt hätte.[234] Bereits damals gestaltete Prinz Carl über seine Parkgrenzen hinaus. So wünschte er 1824 eine Sichtachse vom Zelt auf das Marmorpalais, wofür er über Lennés Zuständigkeit als Gartendirektor im Bereich der Schwanenallee Bäume fällen ließ.[235]
Eine Schinkel zugeschriebene Pause-Zeichnung der dortigen Darstellung hat sich erhalten. Sie ist Charlottenhof zugeordnet worden, wo aber niemals ein solches Zelt projektiert worden ist. Dagegen lassen sich in den Planungen Lennés für den Park am Palais des Prinzen Albrecht an der Berliner Wilhelmstraße dreifach Zeltprojekte nachweisen und zeugen von dem damaligen Interesse an solchen Zelt-Sitzen.[236]
Als weitgehend aus Stoff gefertigte Zierarchitektur hatte das Zelt eine kurze Lebensdauer und wird regelmäßig erneuert worden sein. Auf dem lithografierten Parkplan von 1862 ist das Zelt unter der Bezeichnung „Parasol“ eingetragen. Es existiert ein moderner Nachbau von 1985, der aber wegen der Gefahr des Vandalismus nicht dauerhaft am Originalstandort aufgestellt werden kann, sondern seinen hauptsächlichen Zweck als Musikerschutz bei Konzerten im Schlossbereich fand.[237]
Teufelsbrücke und Felsenteich

(Adalbert Lompeck, 1852)
Von den vielen „Teufelsbrücken“ in Mitteleuropa war diejenige über die Reuss bei Andermatt die berühmteste. Sie führte als einbogige Steinkonstruktion über eine sehr enge Felsenschlucht auf dem Weg zu einem der damals vier bedeutenden Alpenpässe. Hier standen sich 1799 napoleonische und russische Truppen gegenüber und lieferten einander ein Gefecht, bei dem die Brücke schwer beschädigt wurde, zunächst unpassierbar war und später nur notdürftig ergänzt wurde. Erst in dem langen Zeitraum 1820–1830 wurde seitlich von ihr eine neue Steinbrücke errichtet, deren Bau Carl Blechen in einem berühmten Ölgemälde festgehalten hat. Prinz Carl griff also ein Motiv auf, das seinerzeit aktuell war. Seiler hat trotzdem zu Recht darauf hingewiesen, dass eine künstliche Ruinenbrücke im Landschaftsgarten eigentlich letztmals Ende des 18. Jahrhunderts modern gewesen ist.[238]

Dessen ungeachtet ließ Carl 1837 durch Persius eine Ruinenbrücke bauen, die einzigartig in der Potsdamer Kulturlandschaft ist. Als Ort wurde die mittlere und tiefste Erosionsrinne gewählt, die schon 1824 zur Schlucht abgegraben worden war.[239] Die hier vorhandene Schlucht wurde durch Aufschichten von Findlingsblöcken zu einer Felsklippe ausgestaltet um hier einen Wasserfall als besondere Attraktion erleben zu können. Zu Prinz Carls Zeiten wurde beim Nahen hochrangiger Parkbesucher von Gartenarbeitern das Wehr des Reservoir-Teichs geöffnet, so dass kurzzeitig beeindruckende, wenn nicht gar erschreckende Wassermassen über die Felsen stürzten.[240]
August Kopisch erläuterte 1852 die Teufelsschlucht und ihre bauliche Entstehung: „Man versuchte die Alpennatur hervorzubringen, künstliche Steine von allerlei Stoffen zu bilden, kam indessen zuletzt davon zurück und zog ein Unterbauen mit Ziegeln und Rüdersdorfer Steinen und Roman-Zement vor, worauf man größere und kleinere erratische Blöcke türmte und schichtete, bis der gewünschte Effekt wirklich bewunderungswürdig erreicht wurde. Die Wasserstürze sind, namentlich, wenn der größere See geöffnet wird in der nördlich gelegenen Kluft wahrlich imposant durch Mächtigkeit und Naturwahrheit, welche mittels der dort angebrachten zustimmenden Pflanzungen und die kühnen romantischen Überbrückungen noch erhöht wird.“[241]
Zur Seeseite besaß die Teufelsbrücke Schmuck in Form einer vermutlich historischen Statue, die nicht mehr bekannt ist und nur auf dem Gemälde von Lompeck überliefert ist. Konsole und Baldachin sind an der Brücke, bzw. dem Pfeiler noch vorhanden.

Oberhalb der Teufelsbrücke führt der Drive mit der wohl von Persius entworfenen Töpferbrücke über den Wasserlauf. Von hier aus konnte man die „Teufelsschlucht“ und nach Osten den den Wasserfall speisenden Felsenbach mit historischem Steinkreuz sehen. Hier zweigt nach Osten ein schmaler Weg ab, der zu dem Reservoirteich des Wasserfalls, dem Felsenteich führt. Der Teich wurde bewusst stark abgepflanzt, um ihm einen versteckten, gewissermaßen geheimnisvollen Charakter zu verleihen. Er besitzt einen als Felsenbach gestalteten Zulauf, dessen künstliche Quelle am vorbeiführenden Weg durch einen großen Findling akzentuiert wurde.
Etwas seitlich befinden sich die Grabplatten zweier Pferdegräber. Die dem Prinzen als tägliche Begleiter dienenden Lieblingspferde wurden nicht dem Abdecker überlassen. Auch Lieblingshunde des Prinzen wurden im Park bestattet. Die Gräber wurden nicht konzentriert, sondern an verschiedenen Orten des Parks angelegt, wo sie eine sentimentale Staffage bildeten.

Die Teufelsbrücke wurde 1935 gewissermaßen repariert, in dem die hölzernen Bauteile beseitigt und durch eine Ziegelkonstruktion ersetzt wurden. Seit Ende der 1980er Jahre wurde der Wasserfall mit Durchlaufwasser in wenn auch bescheidener, aber pragmatischer Weise gespeist. 2001–2007 wurden der nun so genannte Felsenteich, das Wehr und die Felsklippen grundlegend denkmalpflegerisch instand gesetzt.[242] Eine Wiedergewinnung des ursprünglichen Zustandes der Teufelsbrücke gestaltete sich indes schon in der Planungsphase schwierig, da Ruinenbrücken in der deutschen Bauordnung nicht vorgesehen sind. Nach langer Vorplanung konnte die Gartendenkmalpflege den Rückbau der Brückenreparatur von 1935 beauftragen, der 2006 abgeschlossen war.

2009 wurde die gerade wiederhergestellte Teufelsbrücke nach heftigen Regenfällen zu einer wirklichen Ruine. Das Wasser unterspülte das Fundament des Mittelpfeilers, der aus der Brücke herausbrach. Erstaunlicherweise hielt die Brücke aber trotz sehr großer Spannweite stand und konnte durch das THW mittels Stützkonstruktion gerettet werden. 2013/14 sollte die Teufelsbrücke wiederaufgebaut werden,[243] doch ist dies noch nicht erfolgt, da sich die auch die Fundamente der bestehenden Bauteile als nicht tragfähig erwiesen. Derzeit (2017) verhandeln Bauverwaltung und Landesdenkmalamt um Möglichkeiten zum Erhalt des Bestandes im Wiederaufbau oder einem vollständigen Neubau.
Unterhalb des Zeltes besaß der Ufer-Höhenweg einen Aussichtsplatz. Vor Erreichen der Teufelsbrücke zweigte ein versteckter Treppenweg ab, der zu einem kanzelartigen Aussichtspunkt führte. Von hier aus hatte man einen seitlichen, besonders markanten Blick auf Brücke und Wasserfall. Hinter der Teufelsbrücke zweigte nach Osten ein Treppenweg zum Großen Jagdschirm ab. Im weiteren Verlauf überquerte der Ufer-Höhenweg mit der Hubertusbrücke die gleichnamige Schlucht und mündete nahe dem Jägerhof in den Verbindungsweg vom Jägertor zum Drive.
-
Entwurf zur Teufelsbrücke Wasserseite (Persius, um 1838) -
Findling über der künstlichen Quelle am Felsenteich -
Felsenaufschichtung am Ausfluss des Felsenteichs -
Ruine der künstlichen Ruine, 2013 -
Pferdegräber -
Terrakotta-Brüstungsfeld der Töpferbrücke
Matrosenhaus

Vom Drive zweigt ein aufsteigender Weg nach Nordosten ab. Nahe diesem Abzweig liegt das Matrosenhaus, das gewissermaßen den Weg mit einer Pergola überfängt. Das Haus liegt zwar im Bereich des Großen Wiesengrundes, ist aber architektonisch nicht auf diesen bezogen, sondern auf den Drive, dem es seine Hauptschauseite zuwendet.

Das Matrosenhaus entstand aus dem eingeschossigen Weinmeisterhäuschen Dr. Mirows, dessen Rebhänge sich im oberen Bereich des heutigen Großen Wiesengrundes befanden. Persius baute das Haus 1840 in Form einer kleinen fabbrica für die Matrosen der kleinen prinzlichen Flotte um.[244] Diese Flotte war eines der liebsten Spielzeuge des Prinzen. Sie diente zum einen der optischen Belebung des Jungfernsees, zum anderen dem Wasservergnügen des Prinzenpaares. Entsprechend viele Matrosen waren unterzubringen. Das Erdgeschoss weist zwei Stuben, eine Schwarze Küche und vier Kammern auf. Was sich damals im neu aufgeführten Obergeschoss befand, das mit dem Palladio-Motiv geschmückt ist, ist nicht überliefert. Vielleicht lagen im Erdgeschoss Funktionsräume und das durch das Palladio-Motiv und je fünf kleine Rundbogenfenster belichtete Obergeschoss diente als Schlafraum.
Das Haus besitzt einen kleinen Turm, dessen Spitze in Form eines Narwal-Zahnes gestaltet war und auch der Delphin auf der Giebelspitze bildete ein maritimes Detail. Am Wohnhaus befindet sich eine kleine seitliche Pergola, ein Stallbau war mit zwei Scheinpergolen angeschlossen. Bei der Wiederherstellung nach 1945 wurden Stallung und Scheinpergolen zerstört. Auf einem Foto von 1938 ist noch der schmuckvolle Staketenzaun zu erkennen, mit dem das kleine Wirtschaftsgrundstück eingefriedet war. Vermutlich waren auch die übrigen Nebengebäude des Parks (Hofgärtnerhaus, Wirtschaftshof und Pförtnerhäuser) von einem solchen Estaquet umzäunt.[245]
-
Matrosenhaus, Grundriss und Details (Persius, um 1840) -
Entwurf zum Matrosenhaus, (Persius, um 1840) -
Matrosenhaus (Foto 1938, verfremdete Darstellung) -
Estaquet am Matrosen-haus, Umzeichnung des Fotos von 1938 -
Matrosenhaus, Südfassade -
1843 zugefügte Pergola über den Drive
Jägerhof-Partie
Planung

Die Jägerhof-Partie entstand ab 1841 aus dem nördlichsten Bereich der Uferhöhenwegs-Partie und dem angrenzenden nördlichen Bereich der Parkerweiterung, der bereits zuvor teilweise vom Jägerhof genutzt worden und sicher schon ansatzweise gärtnerisch gestaltet war.[246]

Diese nördliche Parkpartie sollte sich offenbar architektonisch von dem übrigen Park unterscheiden. Angesichts der zahlreichen Holzarchitekturen hat Seiler 1986 diese Art der Park-Ausgestaltung mit dem Begriff „Waidmannsromantik“ zu charakterisieren versucht.[247] Zu dieser Stilstufe gehörte sicher der „Große Jagdschirm“, der als sechseckige, halbgeschlossene Aussichtshütte aus Knüppelholz ausgeführt wurde.[248] Von hier aus hatte man einen großartigen Ausblick über den Jungfernsee bis zum Pfingstberg. Der Jagdschirm ist eine der wenigen bildlich überlieferten Holzarchitekturen Glienickes. Eine weitere ist die Schießhütte (s. u.), die noch waidmännischer gestaltet war. Auch der Jägerhof ist – obwohl ein Massivbau – mit seinen Reetdächern und dem Knüppelholzportikus eine ländlich gestaltete, malerische Parkstaffage, die allerdings eine wichtige Funktion besaß. Insofern ist es erstaunlich, dass am Jägerhof keine Holzzäune, sondern eiserne invisible fences und schmuckvolle Schmiedeeisengitter angelegt wurden.

Dieser Bereich ist heute gestört durch die Bastion, die Julius Lippert hier 1935 bauen ließ und der der Große Jagdschirm zum Opfer fiel. Lippert ließ hier einige historische Geschütze aufstellen, die Carl auf dem Geschützplatz nahe dem Hofgärtnerhaus arrangiert hatte. Obgleich sie eine Störung der historischen Parkgestaltung bildet, gehört die Bastion heute zum denkmalwerten Bestand des Parks als Dokument seiner Geschichte.

Aus der tiefer liegenden dritten Erosionsrinne nahe dem Jägerhof formte Prinz Carl die Hubertusschlucht. Auch sie besaß Felsausschmückung aber wahrscheinlich keinen künstlichen Wasserlauf. Über die hier im Verlauf des Ufer-Höhenwegs befindliche Hubertusbrücke heißt es 1846: „Eine aus Baumstämmen gefügte Brücke von malerischer Wirkung, auf deren Mitte ein s. g. Bildstöckl steht.“[249] Möglicherweise könnte man hier einen Knüppelholz-Brücken-Entwurf zuordnen, der mit seinen hölzernen Mittelstützen nur für wasserlose Schluchten denkbar ist.
Etwas weiter nördlich befand sich in Ufernähe eine Bank mit Blick auf die Pfaueninsel. Dieser Aussichtsplatz war durch ein historisches Steinkreuz dekoriert worden, das nur noch stark fragmentiert erhalten ist. In der Nähe befand sich in Ufernähe die „Moorlakebank“, die laut Kraatz-Plan (in der Legende unter Nr. 42 als „Moorlaake-Schirm“ bezeichnet) über den Weg gebaut war und seltsamerweise nicht als Holzbau (schwarze Signatur), sondern Steinbau kartiert wurde, also wohl eine gemauerte Laube war.
Jägerhof

Während in Großbritannien die Parforcejagd ungebrochen alle Moden überstand, war sie in Preußen mit dem Soldatenkönig verschwunden. Prinz Carl betrieb eine Wiederbelebung, wofür er eine Meute „gefleckter Schweißhunde“ anschaffte und Piqueure zusammenstellte. Beide sollten in einem Gebäude im Norden Glienickes untergebracht werden. Dort befand sich das Arbeiterfamilienhaus aus der Zeit Hardenbergs, von dem Carl die niedere und mittlere „Jagdgerechtigkeit“ übernommen hatte.

Innerhalb einer allgemeinen Englandmode sollte dieser Jagdbau in abstrahierten Stilformen der englischen Gotik gestaltet werden. Diese Bauformen dürften Schinkel seinerzeit aufgrund seiner Englandreise von 1826 noch sehr präsent gewesen sein. Die Planungen zum Jägerhof durchliefen nur eine kurze, aber intensive Gestaltungsphase. Am Anfang stand eine kleinformatige Entwurfsskizze, die schon alle wesentlichen Architekturelemente des ausgeführten Baus aufweist. Die Skizze könnte sowohl dem Kronprinzen, als auch Prinz Carl zugeordnet werden. Sie mag die Erklärung dafür sein, dass Schinkel das Gebäude nicht als sein eigenes Werk veröffentlicht hat.
Insgesamt gab es vier Planungsphasen, die sich weniger in der äußeren Erscheinung als in der Grundrissbildung unterscheiden. Wie der Vergleich zwischen Plan I und IV zeigt, sollte zunächst das Familienhaus aus Hardenbergs Zeiten in seiner Größe erhalten werden. Es scheint sich aber gezeigt zu haben, dass dabei der Bedarf an Räumlichkeiten nicht gedeckt werden konnte. So wurde das Gebäude an beiden Schmalseiten verlängert und die Fachwerkwände massiv erneuert oder ummantelt.

Der erste Entwurf stammte vom 13. Dezember 1827, die letzte Planfassung datiert vom 10. April 1828.[250] Zum ersten Entwurf – einem Schaubild Schinkels von Südost – schrieb der Architekt an den Bauherrn: „Die sämtlichen von Eurer Königlichen Hoheit gewünschten Formen sind wie ich hoffe in der Anlage angebracht und Herr Persius wird leicht danach die Bau-Zeichnung entwerfen können.“[251] Schinkel entwarf also die Gesamtanlage in Form eines Schaubildes und Persius hatte sich um die Detailplanung und Bauausführung zu kümmern.

Die kleine Anlage bestand aus einem Wohnhaus für die Piqueure und einem winkelförmig angeschlossenen Bauteil für die Hundemeute. Im Wohngebäude waren keinesfalls nur Wohnräume für die Piqueure vorhanden. Vielmehr gab es einen Raum für Hundefutter, Räume für Hündinnen und zu separierende kranke Hunde und einen Pferdestall für sechs Tiere. Der Jägerhof war vom Charakter her ein Wirtschaftsbau, der offenbar keine repräsentativen Raumausstattungen besaß. Persius führte den Bau im Sommer aus und am 19. November 1828 vermerkt der Hofmarschall im Journal über Glienicke den Einzug der „Pikörs“ und der Hundemeute. Damit dürfte der Jägerhof funktionsfähig ausgestattet gewesen sein. Über das Tor zum Stall hatte Prinz Carl als Verballhornung des Wahlspruchs des britischen Wappens „Hony soit qui mal y panse“ [französisch panse = Pansen, übertragen „der Wanst“] schreiben lassen.[252]
Westlich des Hundezwingers wurde später ein schon auf dem Kraatz-Plan verzeichneter Waschküchenbau errichtet und Ende des 19. Jahrhunderts entstand nördlich des Wohnbauses ein weiterer Pferdestall. Im späten 19. Jahrhundert erhielt der Jägerhof eine Schieferdeckung, wodurch die Giebel, die auf die Stärke der Reetdeckung berechnet waren, unproportioniert wirkten.
1934 baute Stadtbaurat Benno Kühn für Julius Lippert den Jägerhof zu einem Jagdhaus aus. Damals wurden die nachschinkelschen Bauten abgerissen und im Norden ein dem Hundezwinger entsprechender Flügel angefügt. So konnte das Innere auch dem Repräsentationsbedürfnis Lipperts angenähert werden. 1981 erhielten die beiden ursprünglichen Bauteile des Jägerhofs wieder ihre Reetdeckung und den hölzernen Portikus. Die Wege aber wurden in diesem Bereich noch nicht wiederhergestellt, weshalb man heute gewissermaßen auf Abstand gehalten wird.
-
Erster Entwurf zum Wohnbau des Jägerhofs (Ludwig Persius, 1827/28) -
Vierter Entwurf zum Wohnbau des Jägerhofs (Ludwig Persius, 1827/28) -
Grund- und Aufriss des Hundezwingers (Ludwig Persius, 1827/28) -
Blick vom Großen Jagdschirm zum Jägerhof -
Gittertor am Jägerhof -
Rückfront des Jägerhofs mit dem Portikus von 1935 -
Jägerhof
Schießhütte und Kugelfang

In dem sich östlich des Jägerhofs erstreckenden Wiesenraum baute Persius 1840 eine hölzerne Schießhütte in etwas urtümlicher Art um eine Eiche herum. Er hat das romantisch anmutende Nutzgebäude in sehr malerischer Zeichnung veröffentlicht, offenbar war ihm der kleine Bau wichtig.[253] Der Pavillon wirkt auf uns heute recht theaterhaft mit den umlaufenden Hirschköpfen, dem Schießscheibenfries und der Krone am Anschluss des Daches an den Baumstamm. Ob er mit diesen Details ausgeführt worden ist, bleibt ungewiss, da sonst keine historische Ansicht bekannt ist.

Die Originalzeichnung zur Schießhütte von Persius ist datiert auf den 1. Januar 1840, scheint also einem besonderen Anlass geschuldet zu sein. Der Standort der Schießhütte lag bereits in der Parkerweiterungsfläche, die Prinz Carl aber erst zu Weihnachten 1840 vom König geschenkt bekam. Insofern gibt die Planungsgeschichte Rätsel auf. Veröffentlicht wurde die Zeichnung im Architektonischen Skizzenbuch mit der Erläuterung: „Schießhütte, die im Walde [!] von Glienicke in der Nähe des Jägerhofes ausgeführt worden war, und wofür eine schöne Eiche, um welche die kleine Hütte gebaut wurde, die Stelle bezeichnete. Das ganze ist aus rohen Baumstämmen konstruiert und zur mehreren Dekoration sind schöne Hirschgeweihe und Zielscheiben verwendet worden.“[254]

Von der Schießhütte führten zwei Schussbahnen nach Osten und Südosten, wie dies im Kraatz-Plan 1862 verzeichnet ist. Die kürzere Bahn endete wohl an einer hölzernen Wand, die längere an einem massiv gemauerten Kugelfang. Sievers fand letzteren bei seinen Studien noch vor, der mit seinen spitzbogigen Portalen wohl in Form einer künstlichen gotischen Ruine erbaut worden war. Bauzeit und Architekt des kleinen Baus sind unbekannt. Es hat sich nur ein Foto des schon sehr reduzierten Baus aus dem Jahre 1950 im Landesdenkmalamt erhalten.[255] Heute ist das Gebäude durch anhaltenden Vandalismus bis auf Reste verschwunden.
Sievers’ Beschreibung und dem Foto zufolge bestand es aus zwei im rechten Winkel zueinander stehenden Mauern, die durch einen runden Winkelturm miteinander verbunden waren. Dieser besaß zwei Spitzbogenportale mit schweren, vielleicht eisernen Gittertüren. In den Innenwänden waren einige Kanonenkugeln eingemauert. Sievers fand in der einen Mauer noch eine eingemauerte historische Gedenktafel vor, vermutlich waren zu Prinz Carls Zeiten noch weitere Spolien vorhanden.[256] 1935 wurde die schon zuvor stark reduzierte Schießhütte abgebaut und in der Nähe als Regenunterstand umgebaut und nach dem Zweiten Weltkrieg abgerissen.[257]
Jägertor

Persius führte in einigen seiner um 1840 errichteten Bauten den (neu)gotischen Stil in Glienicke fort. Das mit Anlage der Uferchaussee um 1841 notwendig gewordene Jägertor ist entsprechend in gotisierenden Stilformen mit eingefügten Spolien gestaltet worden. Ein exaktes Baudatum ist nicht überliefert. Das kleine Bauwerk sollte zunächst mit Fassaden in Putzquaderung entstehen, wurde aber als Sichtziegelbau ausgeführt.[258] Die Tordurchfahrt, der heute die den anderen Toren entsprechenden einfachen Torgitter fehlen, ist durch flache Tudorbogen gebildet. Das deckende Kreuzrippengewölbe weist ebensolche Stilformen auf.[259]

Seitlich befinden sich zwei Portale, die aber zu keinem Weg führten, sondern entsprechend durch Plastiken verstellt waren. In der östlichen Türöffnung war im Entwurf eine vermutlich historische Wolfsfigur eingezeichnet, deren genaue Gestalt nicht überliefert ist, vielleicht sollte eine Kopie eines der Molosserhunde (3. Jh. v. Chr. in den Florentiner Uffizien und British Museum) aufgestellt werden, wie sie etwa gleichzeitig vor der Berliner Tierarzneischule ihren Platz fand. Über diesem Portal wurde ein brandenburgischer Wappenstein eingemauert, der 1618 datiert ist. Gegenüber wurde eine spätgotische Portalrahmung eingemauert. Am Jägertor endete der Wassergraben als Parkbegrenzung und ein Staketenzaun führte als Grenze gen Moorlake.[260]
Hinter dem Jägertor gelangt der Parkbesucher auf das Krughorn, das heute kaum noch wahrgenommen wird, da es 1935 zugunsten des Schiffsverkehrs weitgehend abgebaggert wurde. Im 19. Jahrhundert war das Krughorn eine regelrechte Landzunge, von der aus die Fähre nach Sacrow verkehrte, wodurch es sehr stark frequentiert wurde und im Potsdamer Raum allgemein bekannt war. Das Krughorn war einer der Haupt-Aussichtspunkte der Potsdamer Kulturlandschaft. Noch 1927 hatten sich die Befürworter der Erhaltung gegen die Beseitigung der „Sacrower Enge“ durchsetzen können in Sorge, „daß das wunderschöne Landschaftsbild durch die Geradelegung leiden würde.“[261]

Zur Zeit des Prinzen Carl hatte man also von hier einen besonders schönen Umblick in die Potsdamer Kulturlandschaft, wie man ihn heute nur noch vom Boot aus erleben kann. Dieser Umblick reichte im Norden zur Pfaueninsel mit der Hauptfassade des dortigen Schlosses und dem Schweizerhaus. Auf der Glienicker Seite rahmten die Kirche St. Peter und Paul auf Nikolskoe, die Unterförsterei Moorlake und das Jägertor den Blick.
Auf der Sacrower Seite bot die Heilandskirche den nachdrücklichsten Blickfang. Aber das 1961 bei Anlage der Grenzsperranlagen abgerissene Wirtshaus „Zum Doktor Faust“, das Persius 1844 aus dem alten Fährpächterhaus gebaut hatte, bot die räumlich nächstgelegene und prägendste Architektur am Krughorn. Das zweigeschossige dreiteilige Gebäude war aufgrund des Fährverkehrs zu Prinz Carls Zeiten eine florierende Gastwirtschaft. Die Sacrower Fähre führte auch zu einem sehr großen Verkehrsaufkommen auf der Glienicker Uferchaussee, wie es ihn heutzutage nur an Sonntagen gibt. Südlich des Krughorns wurde der Umblick von der Villa Jacobs, dem Pfingstberg-Belvedere, der Meierei des Neuen Gartens, der Villa Schöningen und der Glienicker Brücke gerahmt. Heute kann man vom Rest des Krughorns nur noch die Pfaueninselbauten, die Heilandskirche und den Pfingstberg sehen.

Das Krughorn in seinem gesamten Umfang und alle an die Uferchaussee angrenzenden Havelufer gehörten zum Glienicker Gutsbezirk, also im weitesten Sinne zum Park. Dafür focht der Prinz noch im Jahre 1876. Dieses Eigentumsrecht ließ man ihm, er musste jedoch nun auch Verantwortung für ungebetenes Schwemmgut übernehmen. So bat der Oberförster den Prinzen doch „gefälligst“ die von der Forstkasse vorgestreckten Beerdigungskosten von 15 Mark für den „am 17. Julier [1876] unweit der Dampfschiff-Landungsbrücke bei der Moorlake angeschwemmten Leichnams eines unbekannten Mannes“ übernehmen zu wollen.[262]

In diesen Zusammenhang gehört ein Entwurf Schinkels, der nur bedingt Glienicke zuzurechnen ist, aber zu Prinz Carl gehört. Schinkel veröffentlichte in seiner „Sammlung architektonischer Entwürfe“ schon 1826 ein Lusthaus am Havelufer bei Potsdam, ohne einen genauen Standort anzugeben. Es war gedacht für die vier königlichen Söhne, also neben Prinz Carl dem Kronprinzen, Prinz Wilhelm und dem damals siebzehnjährigen Albrecht. Der Bau gelangte aber niemals zur weiteren Ausführungsplanung. Stattdessen kauften die vier Brüder 1834 Burg Sooneck im Mittelrheintal, die sie als Jagdschloss wiederaufbauen ließen und als gemeinschaftlichen Besitz nutzten.
In der Sammlung architektonischer Entwürfe erläutert Schinkel den Entwurf wie folgt: „Ein Lusthaus, welches auf einem Platze an einem der Seen von Potsdam einen kahlen Fleck der Gegend malerisch ausfüllen sollte; zugleich hatte es die Bestimmung, die vier Theilnehmer des Baues Abends im Salon beim Theetisch zu vereinigen, auch Spazierfahrten auf dem Wasser von dort aus zu erleichtern. Ringsum von Weinlauben und von einer kleinen Gartenanlage umgeben, sollte überhaupt hier der Genuß der angenehmen Gegend, die aus diesen Lauben übersehen wird, in aller Art befördert werden. Jeder der vier Besitzer hat ein eigenes Lesecabinet neben dem Salon, in welches man durch die zur Seite des Saals liegenden Nischen gelangt. Die vor diesen Nischen aufgestellten Candelaber mit starker Lichtflamme für die Abend-Beleuchtung erhellen zugleich den Salon und die vier Cabinets, wenn deren Thüren geöffnet werden. Durch die Treppen gelangt man auf die Platform, um aus einem noch höheren Standpuncte die Gegend zu überschauen. Die kleinen Oeffnungen unter dem Gesimse sind für den Luftzug unter dem Metalldache angelegt, damit die Hitze, welche ein solches Dach erzeugt, wenn die Sonne darauf brennt, von den Zimmern abgehalten werde. Im Unterbau des Gebäudes ist die Wohnung eines Gärtners, welcher zugleich Aufseher ist, eingerichtet. Ein kleiner Hühnerhof, worin ausländisches Geflügel gehalten wird, längs der einen Fronte des Gebäudes eingerichtet, sollte der Anlage ein kleines Interesse mehr geben.“[263]
Partie der Karpathen
Flächenerweiterung

Der nordöstliche Parkteil zwischen Nikolskoer Weg und dem Weg nach Moorlake wurde 1851 erworben und 1857/58 um zwei kleine Flächen erweitert.[264] Es handelte sich um Forstflächen, die steil vom Nikolskoer Weg Richtung Moorlake abfallen, sie sind zudem von drei parallellaufenden Erosionsrinnen durchfurcht. Eine vierte Erosionsrinne verlief in nordwestlicher Richtung.

Die Erschließung gestaltete sich entsprechend schwierig, da die Wege ja nicht nur zu Fuß, sondern auch gefahrlos mit der Kutsche befahren werden sollten und daher ein gewisses Gefälle nicht überschritten werden konnte. Die Wege wurden serpentinenartig angelegt, was in den Parkplänen als eng parallel laufende Trassen erscheint.[265] Die Benennung meinte vermutlich eine besonders abgelegene karge Bergwelt, doch sind hierzu keine historischen Vermerke bekannt. Bezeichnenderweise wurde die Schweiz nicht hier, anknüpfend an das schon 1841 erbaute Forsthaus Moorlake, sondern am Böttcherberg mit den dortigen Schweizerhäusern thematisiert. Vermutlich war das Gebiet verkehrstechnisch zu abgelegen, als dass man hier hätte Sommerfrischler in Bauten an Nordhängen unterbringen können. Wurde doch auch die Unterförsterei erst 1875 zum Gasthaus umgewidmet.
Die Bepflanzung besteht heute fast ausschließlich aus hoch gewachsenen Buchen, die vermutlich beim Erwerb der Forstparzellen noch nicht vorhanden waren, sondern erst von Carl gepflanzt wurden. Auch hier gab es Lichtungen, beispielsweise unterhalb der Victoriabank. Der Erlebniswert dieser Partie ist – abgesehen von der bewegten Topografie – vollständig verloren gegangen, es handelt sich heute um einen Buchenwald.
Kleinarchitekturen

Das Aussehen dieses Parkteiles ist nicht durch Ansichten aus der Zeit Prinz Carls überliefert. Zweifellos überwog der Waldcharakter, war aber sicher mit Durchpflanzungen, Lichtungen und Holzarchitekturen, von denen wir nur den Namen kennen, akzentuiert. Das „Karpathenthal“ und der „Karpathen-Schirm“ sind zwar in der Legende des Kraatz-Plans verzeichnet, seltsamerweise aber nicht auf der Karte selbst. Somit ist ihre Lokalisierung derzeit nicht möglich. Erhalten ist nur eine steinerne Bogenbrücke, die den Fahrweg über eine Erosionsrinne führt und einen bescheidenen Blickfang vom Nikolskoer Weg darstellt.
Durch den Kraatz-Plan ist als weiterer Aussichtspunkt die zwischen 1851 und 1862 angelegte Victoriabank überliefert. Von der Aussicht dieser Bank ist keine historische Darstellung bekannt, aber der Blick muss reizvoll über die Unterförsterei Moorlake, und die Havel, das Meedehorn bis zu den Höhen bei Kladow geschweift sein. Heinrich Wagener beschreibt dies 1882: „Zu den schönsten Aussichtspunkten in der Mark, vielleicht in Norddeutschland überhaupt, gehören die Fern- und Durchsichten von der »weißen Bank« und von der »Victoria-Bank«.“ Die letztere wurde erst vor wenigen Jahren bei der Abholzung eines Bergabhanges aufgestellt, als man nun erst den wunderbar freien Blick über die Wasserflächen bei der Pfaueninsel bis nach Cladow und Spandau und dem Grunewald entdeckte.“[266]
Unbekannt ist die Funktion des „Monte Lucchesini“, der im Kraatz-Plan als eine der Park-Sehenswürdigkeiten eingetragen ist. Es handelt sich dabei um eine Hügelkuppe direkt nördlich vom Wildparktor, die den höchsten Punkt des Parkes bildete. Westlich dieses Hügels liegt eine Erosionsrinne, die sich nach Nordwesten bis zum Drive steil hinabzieht und deren weiträumige Lichtung Prinz Carl in seinem Handexemplar des Kraatz-Planes nachträglich eingetragen, bzw. gekratzt hat. Vielleicht war dies das „Karpathental“. Somit muss der „Monte Lucchesini“ oder der direkt westlich an ihm vorbeiführende Weg ein besonderer Aussichtspunkt gewesen sein.
Wildparktor

Zu dieser Parkerweiterung gehört ein weiteres Tor mit Pförtnerhaus, das wohl 1852 von v. Arnim errichtet wurde.[267] Als gelber Sichtziegelbau ist es wie das Obertor eine bescheidene aber schmuckvolle Architektur, die allerdings einen Turm besitzt, der im veröffentlichten Entwurf niedriger war als er sich heute präsentiert. Im Entwurf war das Turmgeschoss nicht zugänglich, möglicherweise war aber das dann mit großen, etwas missproportionierten Rundbogenfenstern ausgeführte Turmobergeschoss ein wichtiger Aussichtspunkt.

Das unterkellerte Haus enthielt im Hauptgeschoss nur eine Wohnstube mit Erker und eine Küche und darüber eine Schlafstube. Den architektonischen Reiz bilden neben dem Turm die Eingangsloggia, der Erker und eine überdachte Sitzbank. Damit ist das Haus sehr typisch für die damalige Potsdamer Architektur, die es verstand nach außen den Eindruck einer Villa zu vermitteln, wo eigentlich nur ein kleines Wohnhaus bestand. Dass v. Arnim das Haus nicht mit dem ausgeführten Turmobergeschoss veröffentlicht hat, weist darauf hin, dass es nicht auf seine, sondern Prinz Carls Architekturvorstellungen zurückgeht.[268]
Das Tor wurde als Wildparktor benannt und besitzt auch noch das eigentliche Tor.[269] Dieses ist durch einschwingende Zungenmauern weit vom Nikolskoer Weg zurückgesetzt. Nördlich des Wildparktores hat sich einer der wenigen Parkräume erhalten. Er gehört zu der genannten, weit gestreckten und ehemals gärtnerisch ausgestalteten Erosionsrinne, die vom Monte Lucchesini nach Nordwesten führt.
Hirschbuchten, Wildpark und Menagerie

Durch das Journal ist überliefert, dass Prinz Carl zunächst Hirschbuchten angelegt hatte und später einen Wildpark besaß, der mehrmals verlegt wurde. Lokalisierbar sind die Hirschbuchten bislang nicht, zumal sich bei ihnen grundsätzlich die Frage nach einer Tränke stellt, für die in der Parkerweiterung ja nur der „Hirtenteich“ in Frage kommt.[270]

Da Tore gemeinhin danach benannt wurden, was außerhalb von ihnen lag (vgl. Brandenburger Tor Berlin, Berliner Tor Potsdam), muss davon ausgegangen werden, dass Mitte des 19. Jahrhunderts der prinzliche Wildpark in den an den Park anschließenden Bereich des Finkenberges verlegt worden war. Dort stellt sich ebenfalls die Frage nach einer Tränke. Die Gestaltung dieser topografisch reizvollen Gebiete, die Lenné schon 1831 in seinem großen Erweiterungsplan für die Expansion der Glienicker Anlagen vorgesehen hatte, ist noch gar nicht erforscht. Auf dem Kraatz-Plan von 1862 ist außerhalb der Parkgrenze eingetragen „Wildgehäge Sr. Königl. Hoheit“. Der heutige Nikolskoer Weg war seinerzeit noch keine öffentliche Fahrstraße, sondern eine durch das Obertor kontrollierte prinzliche Wegeverbindung, die den Bewohnern des Dorfes Klein Glienicke für den sonntäglichen Gottesdienstbesuch auf Nikolskoe offen stand.
Das Journal vermerkt schon am 28. November 1833 am Telegraphen (Station III der optischen Telegraphenlinie Berlin-Koblenz auf dem Schäferberg) seien die neuen Wege angelegt, aber die Pflanzungen noch nicht erfolgt. Dies zeigt, dass der Forst rund um den Schäferberg zwischen Glienicker Park und der 1838 angelegten Pfaueninselchaussee gartenkünstlerisch durchgestaltet wurde. Dies ist aber bislang noch nicht untersucht worden. In jedem Fall muss es weit außerhalb des heutigen Parks im „prinzlichen Wildpark“ an der heutigen Pfaueninselchaussee noch ein Forsthaus gegeben haben, denn das Journal vermerkt, der Prinz habe diesem 1857 gebauten „Jägerhäuschen [den Namen] Wildmeisterei zu Klein Glienicke“ gegeben.[271] Die Wildhaltung war Carl sehr wichtig, wie verschiedene Eintragungen im Journal belegen, wo natürlich auch das Jagdgeschehen in Glienicke und der Umgebung dokumentiert ist. Seiler weist diesbezüglich auf Carls Sammelleidenschaft hin.[272]
Außerdem finden sich Hinweise auf Bauten für Ziertiere in der Nähe des Schlosses, die aber wohl keine regelrechte Menagerie bildeten. So berichtet das Journal 1863 vom Ableben eines Flamingo-Pärchens. Veröffentlicht wurde ein reizvolles Kanarienvogelhaus nach Entwurf von Arnims, bei dem es unbekannt ist, ob es wirklich ausgeführt worden ist. Da es aber auf einem zweiten Blatt mit Grundriss und Baudetails veröffentlicht wurde, liegt es nahe, dass es sich mit der Ortsangabe des Glienicker Parks nicht nur um einen Musterentwurf gehandelt hat.[273]
Östliche Parkerweiterung

Zu Weihnachten 1840 erhielt Prinz Carl vom König ein großes Forstgebiet östlich anschließend an seinen bisherigen Park geschenkt, genauer gesagt zum „faktischen Besitz“,[274] also zur dauerhaften Nutzung überlassen, womit sich die Parkfläche fast verdoppelte. Dieses Gebiet war also schon von Bäumen bestanden, machte aber, nach den wenigen überlieferten Bilddokumenten einen recht kargen Eindruck.[275] Hier wurde also durch Auslichtungen, Vor- und Zwischenpflanzungen gestaltet, wovon heute nur noch wenig zu erkennen ist. Das Gebiet ist auch noch nicht detailliert in seiner gartenkünstlerischen Gestaltung erforscht.[276]

Dieser Parkbereich befindet sich – in gestalterischer Hinsicht – in einem beklagenswerten Zustand. Die Instandhaltungsmaßnahmen haben sich seit den 1930er Jahren auf das Fällen überalterter Bäume beschränkt. Aber historisch getreue Nachpflanzungen oder die Freilegung zugewachsener Parkräume fanden nicht statt. Eine Differenzierung zwischen Baumpflanzungen und Buschpflanzungen existiert nicht mehr. Das Wegenetz ist sehr schadhaft und Nebenwege sind teilweise im Bewuchs untergegangen. Sehr störend ist das Wildgehege, das den Mitteldrive streckenweise mit dem Maschendrahtzaun flankiert. Auch am Ostdrive ist dieser Zaun mit bemerkenswert mangelndem ästhetischen Gefühl positioniert worden. Angesichts der Größe des benachbarten Düppeler Forstes ist ohnehin nicht einzusehen, warum ein Wildgehege im Weltkulturerbe gelegen sein müsste.
Laut Kraatz-Plan muss diese Parkpartie sehr erlebnisreich gestaltet worden sein. Hier waren allerdings weniger Bauten als gartenkünstlerisch ausgeschmückte topografische Besonderheiten die Attraktion. Gegenüber der ehemals sehr kleinteilig ausgestatteten und auf den Jungfernsee bezogene Partie des Ufer-Höhenweges, war die östliche Parkerweiterung großräumiger gestaltet. Der Wiedergewinnung dieses Parkteile sollte in den kommenden Jahrzehnten größere Aufmerksamkeit gewidmet werden, denn mit dem kontinuierlichen Verlust der von Prinz Carl gesetzten Bäume, verliert dieser Bereich die letzten Reize einer Parkgestaltung.


Von diesem Parkteil sind einige Aquarelle von Julius Hennicke überliefert, die einen erstaunlichen Aussichtsreichtum bei noch recht wenig entwickelter Bepflanzung zeigen. Somit wirken die Bilder kahl, zumal sie keine Blickrahmung und keinen Mittelgrund zeigen. 1843 kritisierte der König gegenüber Persius, es gebe zu viele Durchsichten in Carls neuen Anlagen, heute ist keine einzige mehr vorhanden.[277]
Die Hauptaussichtsplätze dieser Parkerweiterung waren die Borkbank (auch Birkenbank) und die Weiße Bank, die sich beide an der großen Westkurve des östlichen Drives in Hangkantenlage befinden. Diese Plätze sind heute noch leicht auffindbar, allerdings ist ihr Aussichtswert verloren. Von beiden Plätzen ist aber je ein historisches Aquarell der Aussicht durch Julius Hennicke überliefert. Hermann Jäger schrieb hierzu 1882: „Zu den schönsten Aussichtspunkten in der Mark, vielleicht in Norddeutschland überhaupt, gehören die Fern- und Durchsichten von der ›weißen Bank‹“.[278] Von hier blickte man auf die Eichwiese und hatte unter anderem einen Fernblick nach Süden über den Griebnitzsee bis in die Nuthetal-Ebene. Von der unweit gelegenen Borkbank blickte man unter anderem in das Adjutantental und das Mariental und hatte einen Fernblick auf Potsdam.[279] Auch für den Blick in das Hirtental bestand ein Aussichtsplatz östlich des Teiches, der aber wegen des niedrigen Standortes sicher keinen Fernblick erlaubte.
Täler

Ein Charakteristikum der Topografie des Parkerweiterungsgebietes sind vier Täler. Das südlichste barg einen natürlichen Teich und war nach dem Vorbesitzer „Riecks Fenn“ genannt. Die anderen drei Täler blieben trocken, erfuhren aber eine Umformung, indem ihre Sohle seespiegelartig planiert wurde.[280] Optisch dürften sich die vier Täler aber nicht unterschieden haben, da der Hirtenteich als stehendes Gewässer im Sommer vollständig von Entengrütze bedeckt ist. Die Anregung zu dieser Gestaltung, die in Lennés Werk nicht vorkommt, entnahm Prinz Carl wohl Pücklers „Andeutungen über Landschaftsgärtnerei“. Benannt wurden diese Täler als „Eichwiese“, „Mariental“, „Adjutantental“ und jenes mit Teich als „Tal des einsamen Hirten“, bzw. „Hirtental“.

Die Erweiterungsgebiete wurden sehr gleichmäßig von Wegen erschlossen. Das stetige Ineinandergreifen von Wiesengründen als Charakteristikum der Gestaltung Lennés ist hier kaum zu finden. Seiler konstatiert eine konsequente und nicht besonders raffinierte Wegführung an Hangkanten, wodurch die Fernsichten einfach zu erreichen waren.[281] Soweit zu erkennen, hat Prinz Carl bei der Gestaltung der Parkerweiterungsflächen großen Wert auf eine besondere Gestaltung der Wege gelegt. Die Wegetrassen wurden teilweise in Erosionsmulden gelegt und dann mittels Erdarbeiten als Hohlwege ausgestaltet. Beispielsweise der Weg vom Hirtenteich zum Obertor-Pförtnerhaus. Hier sind die Wegkanten heute durch hässliche Sockelmäuerchen aus kubischen Granit-Pflastersteinen eingefasst. Wie zu Prinz Carls Zeiten die Stützung dieser Wegkanten erfolgte, ist derzeit nicht bekannt.
Andere Trassenabschnitte wurden über Höhenkuppen oder an Hangkanten entlanggeführt und erhielten kleine punktuelle Terrassenschüttungen. Im Wechselspiel führt dies zu einer mehr dramatischen als bequemen Wegeführung, die heute durch den dichten Bewuchs kaum noch wahrgenommen wird. Diese Gestaltungsweise ist der Gartenkunst Lennés fremd und charakterisiert Carls Gestaltungsprinzipien.

Ein eigenartiges Charakteristikum der Glienicker Parkgestaltung des Prinzen Carl ist der Schmuck durch herbeigeschaffte Findlinge. Obgleich sie zu hunderten im Park liegen, werden sie heute wenig beachtet, da viele von ihnen im Gehölz eingewachsen sind. Im lithografierten Kraatz-Plan sind sie als rote Tupfer kartiert. Prinz Carl hat in seinem Handexemplar des Plans weitere Findlinge nachgetragen.[282] Sie waren ihm also gewissermaßen als Individuen bewusst. Sofern sie aus der Umgebung stammten, wurden sie vom Prinzen auch vor dem Kauf begutachtet. Im Journal finden sich entsprechend Einträge wie „Am 13. Juni 1831 ritt der Prinz mit dem Inspektor Ritter nach Gütergotz, um dort einen von Ritter gefundenen und ausgegrabenen Granitblock in Augenschein zu nehmen.“[283] Die Findlinge wurden entsprechend im Park keineswegs am Wegesrand abgeladen, sondern genau der Topografie eingepasst. Vielfach bildeten sie den genau komponierten Blickpunkt einer Sichtachse inmitten einer Gehölzgruppe. Ein wohlgeformter und raffiniert positionierter Felsen muss Prinz Carl ein hohes Maß an ästhetischem Genuss bereitet haben. Diese noch unerforschte Gestaltungsweise findet sich sonst in keiner Potsdamer Parkanlage.
Nach dem Zweiten Weltkrieg wurde durch Anlage eines umfänglichen Wildgeheges ein Teil dieses Parkbereichs für Spaziergänger dauerhaft unzugänglich. Das Mariental und die Eichwiese kann man daher aus der Ferne nur erahnen. Von den Pflanzungen sind hier durch Wildverbiss nur die Bäume übrig geblieben, wodurch der Bereich östlich der Römischen Bank besonders kahl erscheint. Da die hier befindlichen Bauten Holzkonstruktionen waren, waren sie bereits vor dem Zweiten Weltkrieg nicht mehr vorhanden.
Nordost-Pförtnerhaus/Einsiedelei

Nach der Parkerweiterung wurden zwei neue Parktore angelegt, eines am Abzweig des Nikolskoer Weges von der Berlin-Potsdamer Chaussee (sog. Obertor) und eines im Nordosten am Wald, dessen Name nicht mehr überliefert ist. Über letzteres gelangte man durch den Wald zum neu erbauten Forsthaus Moorlake und nach Nikolskoe. Die 1838 fertiggestellte Peter und Paulskirche auf Nikolskoe diente den prinzlichen Herrschaften am Sonntag dem Gottesdienstbesuch.[284] Im Zuge dieser neu angelegten Chaussee wurde eine Steinbrücke erbaut, die seit der Parkerweiterung von 1859 im Parkteil „die Karpathen“ liegt. Im Jahr 2016 wurde diese Brücke restauriert.
Das kleine Pförtnerhaus dieses Tores ist unter dem Namen „Einsiedelei“ erhalten. Es erhielt offenbar in Bezug auf Nikolskoe das Aussehen eines Blockhauses. Bauzeit und Architekt dieses heute in den baulichen Details sehr reduzierten Hauses sind nicht überliefert, doch dürfte es um 1842 von Persius gebaut worden sein.[285]
Welche Funktion der kleine Bau ab 1851 als „Einsiedelei“ hatte, ist nicht überliefert. Möglicherweise diente er wie der große Jagdschirm, Moorlakeschirm und Karpathenschirm als witterungssicherer Aussichtspavillon, worauf das überproportional große Portal hinweisen könnte. Nach Westen – Richtung Drive – besaß die Einsiedelei ein Vordach, ein Hinweis auf einen Aussichtsplatz. Nach Süden zieht sich von der Einsiedelei eine von Bäumen freigehaltene Erosionsrinne zu einem Wiesenraum. Da hier kein Weg entlangführte, ist von einer Sichtachse auszugehen.
Unterförsterei/Wirtshaus Moorlake

1841 erbaute Ludwig Persius die prinzliche Unterförsterei Moorlake in Form eines Schweizerhauses, oder Bayerischen Hauses an der idyllisch gelegenen Havelbucht. Wie in vielen Bauten der Potsdamer Parklandschaft befand sich im Obergeschoss ein Teezimmer, das der prinzlichen Familie vorbehalten war. Hierzu vermeldete das Journal, dass am 14. Juli 1841 die prinzlichen Herrschaften erstmals den „Thee im neuen Försterhause auf dem Wege zur Pfaueninsel“ zu sich nahmen.

Das Gebäude wurde in den Details sehr schlicht gestaltet und weist Ähnlichkeiten mit dem größeren Bayrischen Haus im Potsdamer Wildpark auf, das Ludwig Ferdinand Hesse 1847 im Auftrag des Königs baute. Veröffentlicht wurde die Unterförsterei Moorlake auch erst nach Persius’ Tod im Architektonischen Skizzenbuch 1852, Heft 1. Dort ist erklärt, dass „im Hintergrund einer Bucht ein Jägerhaus […] nach Plänen von Persius nach Art der Schweizerhäuser im Blockverband ausgeführt wurde“.[286]

Verkehrstechnisch wurde die Unterförsterei sukzessiv angebunden. Die Uferchaussee, die die Glienicker Brücke mit der Sacrower Fähre und der Pfaueninsel verbinden sollte, wurde im Jahre 1841 von der Brücke bis Moorlake gebaut und erst von Herbst 1842 bis Frühjahr 1843 bis zur Pfaueninsel fortgeführt.
Angeblich wurde das Gebäude bereits 1875 als Gaststätte genutzt.[287] Nach Prinz Carls Tod befand sich die Unterförsterei in königlichem Besitz. 1896 wurde sie verpachtet und der Pächter ließ nördlich anschließend einen Saalbau errichten. Schnell entwickelte sich das nun „Wirtshaus Moorlake“ genannte Anwesen zu einer beliebten Ausflugsgaststätte. Das Teezimmer im Obergeschoss blieb noch bis zum Sturz der Hohenzollernmonarchie der königlichen Familie vorbehalten.[288] Auch hier wirkte sich natürlich der Verkehr der Sacrower Fähre aus, von der aus die Unterförsterei in wenigen Minuten erreichbar war. In gewisser Weise war also das Wirtshaus Moorlake das gastronomische Gegenstück zum „Wirtshaus zum Dr. Faust“ in Sacrow.
Das heutige Gasthaus Moorlake ist mit seinen erhaltenen Nebengebäuden ein besonders qualitätvolles Dokument des sich entwickelnden Berliner Großstadt-Tourismus im Potsdamer Raum.
Obertor-Pförtnerhaus

Erst um 1849, also zeitgleich zum Pförtnerhaus am Johannitertor, wurde am Obertor als südöstlicher architektonischer Eckpunkt der Glienicker Anlagen ein neues Pförtnerhaus nach Entwurf von Ferdinand v. Arnim errichtet.[289] Es ist ein schlichter gelber Sichtziegelbau in Form eines kleinen Landhauses mit Gliederungen in roten Ziegeln.[290] Die Einfahrt zum Drive lag westlich des Pförtnerhauses.

Das nicht unterkellerte Gebäude ist wie das Wildparktor-Pförtnerhaus architektonisch gefällig gestaltet, aber kompakter und rationaler. Hauptschmuck sind die kleine Eck-Loggia des Eingangs und der Erker auf dem Grundriss eines halben Achtecks. Sonst sind als Gliederungselemente nur die Scheinpergola mit integrierter Bank, die Rundfelder im Drempel und das dreibogige Fenster im Giebel sowie die Zinnen an First und den Traufpunkten zu nennen. Das Innere enthielt aber nur eine Wohnstube mit dem Ausblicks-Erker und darüber eine Schlafstube. Im veröffentlichten Grundriss ist keine Küche verzeichnet, im Norden aber ein kleiner Stallbau angeschlossen. Ende des 19. Jahrhunderts wurde das Haus nach Norden erweitert.
In den 1930er Jahren wurde die Chaussee abgegraben und etwas nach Süden verschoben. Außerdem wurde die Einmündung des Nikolskoer Weges nach Osten verlegt und dort in das Gelände gegraben. Damit wurde zwar der Glienicker Park etwas vergrößert, aber das Obertor seiner Funktion beraubt und das eigentliche Tor in der Konsequenz beseitigt. Es bestand – ähnlich wie das Wildparktor – aus Ziegelmauern mit Pfeilern, die von eisernen Zapfen bekrönt wurden und einfachen Eisengitter-Torflügeln.
Seit den Straßenbauarbeiten der 1930er Jahre befindet sich das ehemals direkt an der Chaussee liegende Pförtnerhaus eingewachsen im Park. Früher war das schmuckvolle Haus mit seinen reizvollen Details der augenfällige architektonische Eckpunkt des Parks, gewissermaßen Gegenstück der ungleich qualitätvolleren Rotunde an der Glienicker Brücke. Diese Aufgabe sollte man dem kleinen Bau durch gartenkünstlerische Auslichtung der wild hochgewachsenen Gehölzbestände wieder zukommen lassen und auch die Torpfeiler als architektonisches Steigerungsmoment wiederherstellen. Außerdem wäre es wünschenswert, wenn der Glienicker Park hier wieder einen erkennbaren, direkten Zugang erhielte, denn derzeit ist dieser Parkteil der am meisten abgelegene und verwilderte, der auch kaum noch historische Wege enthält.
Böttcherbergpark
Einbeziehung neuer Randstreifen

Der Böttcherberg südlich der Berlin-Potsdamer Chaussee gehörte seit 1804 zum Glienicker Gut und wurde 1832 und 1841 um Randstreifen auf die heutige Größe erweitert.[291] Der 66 Meter über NN hohe Hügel ist durch Tonabbau und Erosion topografisch besonders reich gegliedert. Von der Hügelkuppe erstreckt sich eine besonders weiträumige Schlucht nach Südwesten in Richtung des Jagdschlosses. Bei der gärtnerischen Ausgestaltung, die im Wesentlichen erst nach 1841 erfolgte, akzentuierte Prinz Carl einen gebirgigen Charakter durch Findlinge und künstliche Felsformationen aus Kalkstein, Ziegeln und Beton.
Als topografisch nahezu freistehendes Massiv bot es sich dazu an, von verschiedenen Punkten aus Sichtachsen in alle Richtungen zu bieten. Dies war die Besonderheit des Böttcherbergparks gegenüber den anderen Partien des Glienicker Parks. So sind sicherlich sowohl der Prachtbau des Jagdschlosses, als auch der nüchterne Holzbau der Station III des Optischen Telegrafen Berlin-Koblenz auf dem Schäferberg Blickpunkte gewesen.

Dieser Parkbereich war eine längere Zeit als Standort für ein Prinzenschloss vorgesehen, das die vergleichsweise bescheidenen Räumlichkeiten im Schloss ergänzen sollte. Schon auf Lennés Situationsplan von 1831 ist nahe dem heutigen Rondell eine kastellartige Baulichkeit eingetragen. Aus den 1840er Jahren haben sich verschiedene Entwürfe zu burgartigen Schlössern erhalten, die nicht verwirklicht wurden. Stattdessen erwarben Prinz Carl und seine Brüder Burg Sooneck am Rhein. Die Mehrbedarf an Räumlichkeiten für Glienicke wurde sehr viel später durch den Bau von Jagdschloss und Restauration gedeckt (s. u.)[292]

Der Böttcherbergpark war separat umfriedet und besaß drei Zufahrten: jeweils gegenüber dem Mittel- und dem Obertor, und im Süden in Richtung des ab 1833 angelegten Babelsberger Parks das Griebnitztor mit seinem malerischen Pförtnerhaus. Damit war der Böttcherbergpark bei Parkumfahrten an den Drive nördlich der Chaussee angebunden. Die beiden Pforten an der Chaussee sind 1939 beim Chausseeausbau beseitigt worden. Sievers beschreibt sie als doppelflügelige Eisengitter zwischen Mauerpfeilern, deren Deckplatte durch eine zapfenartige Eisenspitze bekrönt wurde.[293]
Nach dem Bau der Schweizerhäuser wurde die alte südliche Parkgrenze aufgehoben und der Bäkekanal fungierte als neue Grenze. Die zur Erschließung der Schweizerhäuser angelegte Parkstraße (heute Louis-Nathan-Allee) erhielt an ihren beiden Enden einfache Gittertore. Die Wege im Süden des Böttcherbergparks wurden an die Parkstraße angebunden.

Auch der Böttcherbergpark weist sowohl Gestaltungselemente von Lennés als auch von Pücklers Gartenkunst auf. Typisch für Lenné ist das Rondell auf der Höhe nahe der Chaussee. Das Rondell war einer der beiden Hauptaussichtsplätze des Böttcherberges mit einem Fächerblick, wie er sich auch vom Schloss Sacrow aus bietet. Vom Rondell – einer kreisrunden, von Bäumen umstandenen Platzfläche – hatte man gen Norden großartige Blicke in den Park und über den Jungfernsee bis zu den weit entfernten Weißen See und Krampnitzsee.[294] Der zweite Hauptaussichtsplatz des Böttcherbergs war die Alexandrabank, an deren Stelle später die Loggia Alexandra erbaut wurde. Von hier aus konnte man zum Griebnitzsee, östlich am Babelsberg vorbei ins Nuthetal und nach Südwesten gen Jagdschloss und nach Potsdam schauen.
In die Gartengestaltungen der niedriger liegenden südlichen Bereiche des Böttcherbergparks wurden sicher die angrenzend gebauten Schweizerhäuser mit Sichtachsen in die Parkräume einbezogen. Hierzu liegen aber nur rudimentäre Informationen vor, da die Angaben der Pflanzungen auf dem Kraatz-Plan noch vor dem Bau der Schweizerhäuser verzeichnet wurden.

Jedes Jahr am 18. Oktober wurde auf dem Böttcherberg der Völkerschlacht bei Leipzig gedacht, beispielsweise lautet 1868 der Journaleintrag: „[…] es wurde wie alljährlich ein Freudenfeuer auf dem Böttcherberg um 7 ½ Uhr angesteckt.“[295] Wo sich dabei die Feuerstelle befand ist nicht überliefert, doch wird es ein erhöhter Platz wie die Alexandrabank oder das Rondell gewesen sein, damit der Feuerschein weithin sichtbar wurde.

Die völlig verwaldeten Gartenanlagen des Böttcherbergs wurden unter Federführung der Gartendenkmalpflege Berlin seit Mitte der 1980er Jahre schrittweise wiederhergestellt. Dadurch ist heute das Grundgerüst der Gestaltung Prinz Carls wieder erkennbar, bei der sich Lichtungen mit geschlossenen Gehölzgruppen abwechseln. Dennoch sind noch weite Bereiche der Fläche waldartiger, als seinerzeit beabsichtigt. So ist das Rondell selbst in seiner Form nur dem Kundigen kenntlich und seine Fernsichten sind noch nicht wieder freigeschlagen. Ein Aquarell Hennickes überliefert die Aussicht, die sich einst von hier zum Wasserturm des Hofgärtner- und Maschinenhauses bot.
Besonderes Augenmerk wurde von Prinz Carl auf die Gestaltung des Fahrwegs vom Mitteltor zum Griebnitztor gelegt, da dies die direkte Verbindung zum Babelsberger Park war. Wohl in Bezug darauf, dass Babelsberg noch bergiger als Glienicke war, gestaltete Carl an diesem Fahrweg künstliche Felsformationen. Dies geschah mit Rüdersdorfer Kalkstein und mit Betonüberformung von Ziegelmauerungen. Dabei konnte Carl auf die von Kopisch beschriebenen Erfahrungen beim Bau des Wasserfalls an der Teufelsbrücke zurückgreifen (s.d.). In der Mitte der Wegstrecke simulierten diese Formationen einen Wegedurchstich, der einen alpinen Charakter beschwören sollte. Diese theaterhafte Gestaltungsweise ist in Potsdam einzigartig und findet sich weder in der Kunst Lennés noch Pücklers.
Bisweilen führen die Instandsetzungsarbeiten zu absurd erscheinenden Gestaltungen. Seitdem die künstlichen Felsen von der Überwucherung befreit wurden, verleiteten sie Parkbesucher zum Beklettern. Da dies Unfallgefahr barg und die Felsen beschädigte, wurden sie eingezäunt, womit sie wie in einem Gehege eingesperrt wirken. (Foto s. u. unter Loggia Alexandra)
Griebnitztor

Das an der südlichen Zufahrt befindliche Torhaus war von Persius 1844 gebaut worden und entsprach stilistisch den gleichzeitig entstandenen Bauten des Potsdamer Wildparkes. Entsprechend der posthumen Veröffentlichung im „Architektonischen Skizzenbuch“ 1852 war das Griebnitztor-Pförtnerhaus eine besonders malerische Anlage, die mit Runderker, Loggia, Pergola und Glockentürmchen am eigentlichen Tor gewissermaßen die Abbreviatur einer Potsdamer Villa darstellte. Eggeling hat die entwurfliche Urheberschaft Persius’ in Frage gestellt, zumal jener den bemerkenswerten Bau nicht zu Lebzeiten veröffentlicht hatte.[296]

Das Gebäude war durch ein kellerartiges Souterrain-Geschoss monumentalisiert, weshalb eine in der Loggia untergebrachte Treppe zum Hauptgeschoss existierte. Das kaum befensterte Obergeschoss kann nur Schlafräume enthalten haben. Wie bei den anderen Pförtnerhäusern besaß die Wohnstube einen Ausblicks-Erker. Als Besonderheit schloss an die Wohnstube nach Westen eine als „Veranda“ bezeichnete Pergola an, von der eine Freitreppe in den Garten führte.[297]
Sievers hat das Haus laut Beschreibung bei seinen Studien in der 1852 veröffentlichten Form vorgefunden, aber nicht als Foto abgebildet. Das Griebnitztor lag eigentümlicherweise nicht auf dem Grundstück des Böttcherbergparks, sondern auf einem Carl gehörigen, südlich anschließenden Grundstück.[298] Deshalb wird es spätestens 1961 bei Anlage der DDR-Grenzsperranlagen zerstört worden sein. Bislang ist keine einzige historischen Fotografie des malerischen Baus bekannt geworden.[299]
Langfristig wäre es wichtig, dass anstelle des Pförtnerhauses wieder ein Gebäude in der Kubatur des historischen Gebäudes entsteht und auch ein Tor gebaut wird, so dass an der Südgrenze des Glienicker Parks gegenüber dem Babelsberger Park wieder ein architektonischer Markpunkt existiert.
Jägerhaus (Unterförsterei Klein-Glienicke)

Gleichzeitig mit der Unterförsterei Moorlake wurde 1840 nach Persius’ Entwurf die Unterförsterei Klein-Glienicke erbaut. Das Haus gehörte zu Carls vielfältigem Immobilien-Besitz, war aber in seinen neugotischen Stilformen wohl auf die Babelsberger Bauten bezogen. Es ist relativ original erhalten.
Das Haus war in die Achse der südlichen Bahn der Barockallee positioniert worden, um den Blick vom Jagdschloss auf den Griebnitzsee nicht zu verstellen. Es wurde gemeinsam mit dem Pförtnerhaus auf einem Blatt im „Architektonischen Skizzenbuch“ 1852, also auch nach Persius’ Tod, veröffentlicht. Auf dem Kraatz-Plan ist es verzeichnet und benannt, aber im Journal nicht erwähnt. Sievers hat es nicht in seine Glienicker Betrachtungen einbezogen, obgleich es ja nur wenige Meter vom Pförtnerhaus entfernt lag. Vielleicht war ihm (der den Kraatz-Plan nicht kannte) die Zugehörigkeit zu Glienicke nicht bewusst.
Über eine Funktion außer der Forstverwaltung ist nichts überliefert, doch hat das Haus laut Grundriss-Veröffentlichung von 1852 ein vergleichsweise umfangreiches und sehr differenziertes Raumprogramm besessen. Ein Raum ist gar als „Speisekammer“ ausgewiesen. Die „Wohnstube“ – wie bei den Pförtnerhäusern mit Ausblicks-Erker ausgestattet – war bemerkenswerterweise nicht auf den Griebnitzsee, sondern auf das Jagdschloss ausgerichtet. Ob hier – wie in der Unterförsterei Moorlake – der Hauptraum den prinzlichen Herrschaften zur Nutzung offenstand, ist nicht erforscht.
Loggia Alexandra

Für den Böttcherberg haben sich verschiedene Entwürfe zu einem Prinzenschloss erhalten, das auch auf Lennés Erweiterungsplan von 1831 eingetragen ist, aber nie verwirklicht wurde. Stattdessen wurde auf dem Böttcherberg anstelle der Alexandrabank 1869/70 von Petzholtz und Alexander Gilli die Loggia Alexandra als Erinnerung an die 1860 verstorbene Schwester Charlotte (Zarin Alexandra Feodorowna) erbaut.[300]

Einen ersten Entwurf hatte schon Ferdinand von Arnim geliefert. Der monumental und fast mausoleumsartig wirkende Entwurf wurde aber aufgrund von Arnims Tod 1866 nicht ausgeführt. Stattdessen entwarf der Hofbildhauer Gilli eine gefälligere Renaissance-Architektur. Laut Journaleintrag legte Prinz Carl am 6. Oktober 1868 den Bauplatz mit Gilli fest. Als erste Nutzung wird im Journal das erstmalige „Theetrinken“ „in der neuerbauten Loggia“ am 14. Juli 1870 vermerkt.[301]
Die halbrunde Innenwand des dreibogigen Pavillons war nach Entwurf Gillis prachtvoll ausgemalt, durch eine Büste der Zarin geschmückt und von einer Aussichtsterrasse bekrönt. Im Entwurf sind in der Loggia antike Spolien entlang der Wände aufgestellt. Ob sich aber jemals hier Antiken befunden haben, ist nicht überliefert.[302] Eine Marmorbüste der Zarin wurde laut Journal am 29. Mai 1873 in der Loggia aufgestellt.[303]

Malve von Rothkirch hat als mögliches architektonisches Vorbild der Loggia Alexandra die tatsächlich sehr ähnliche Loggia der 1868 bis 1870 von Heinrich Strack gebauten Villa Borsig in Moabit (nicht erhalten) vorgeschlagen, doch konnten keine direkten Beziehungen zwischen den Bauten ermittelt werden. Lediglich der Umstand, dass Strack die Erweiterung von Schloss Babelsberg leitete, könnte auf eine Beziehung hinweisen.[304]
Die Loggia ist gewissermaßen ein architektonischer Januskopf. Während die Schauseite üppig in Neorenaissanceformen geschmückt ist, bildet die Gegenseite in ihrer starken baukörperlichen Plastizität bei völliger Schmucklosigkeit und der Verwendung hellgrauer Ziegel einen burgartigen Akzent zu dem vom Obertor um das Gebäude herführenden Weg. Vermutlich sollte damit ein Überraschungsmoment geschaffen werden. Möglicherweise bestand von der Loggia eine Sichtbeziehung zum 1870 gebauten und elf Kilometer entfernten Karlsturm auf dem nun nach ihm benannten „Karlsberg“ oberhalb der Baumgartenbrücke bei Geltow.[305]
1978 war die Loggia Alexandra durch andauernden Vandalismus schwer zerstört. Eine Instandsetzung war auch deshalb unterblieben, da seit den 1930er Jahren eine Umsetzung in den Park nördlich der Berlin-Potsdamer Chaussee erwogen wurde. Schon Sievers fand bei seinen Studien den Pavillon in desolatem Zustand und geplündert vor. Auch die Büste der Zarin war damals schon verschwunden. Nach einer grundlegenden Instandsetzung in den 1980er Jahren mit Ergänzung der Malereien durch Manfred Blessmann, musste die Loggia zum Schutz vollständig vergittert werden. Bei einer weiteren Restaurierung wurden die Wandmalereien wieder zur ursprünglichen Farbigkeit gebracht und 2001 eine Verglasung vorgenommen.
-
Entwurf zur Loggia Alexandra (Ferdinand v. Arnim, vor 1866) -
Alexander Gilli: Entwurf zur Loggia Alexandra -
Portalrahmung in der Loggia Alexandra -
Schrägansicht der Fassade der Loggia Alexandra -
Überwachsene künstliche Felsen am Fuß der Schlucht unter der Loggia -
Dieselben Felsen eingezäunt (2015)
Schweizerhauspartie und Arbeiterhaus

Mit der Erkrankung Friedrich Wilhelms IV. und der Übernahme der Regierungsgeschäfte durch Prinz Wilhelm 1858 gewann Babelsberg politisch an Bedeutung. Nach Wilhelms Krönung zum preußischen König 1861 wurde der Babelsberger Park erweitert und das Schloss durch Heinrich Strack erweitert. Entsprechend interessant wurde der Park Babelsberg für den prinzlichen Hof in Glienicke, dem er gewissermaßen als Erweiterung des eigenen Parks diente. Darum galt es in diesen Jahren die Zone zwischen beiden Parkanlagen – also den Bereich des Dorfes Klein-Glienicke – attraktiv auszugestalten. Carl tätigte in diesem Hinblick viele Grundstückskäufe rund um den Böttcherberg.

Nördlich des Bäkekanals befanden sich nun an der alten Dorfstraße (Wilhelm-Leuschner-Straße) als nicht Prinz Carl gehörende Grundstücke nur noch der Pfarrhof, der Friedhof und das von Carl gebaute Waisenhaus (s. u.). Auf dem Kraatz-Plan ist dies als ungefärbte Fläche innerhalb der Parkbereiche kartiert. Südlich des Bäkekanals, entlang der barocken Landschaftsallee verblieben die Grundstücke in Privatbesitz. Die dort befindlichen Häuser wandelten sich nach und nach im Zuge des sich entwickelnden Tourismus optisch zu einem Landhausviertel. Dort entstand auch Bürgershof als wichtigste und überregional bedeutende Ausflugsgaststätte.
Auf den neu erworbenen Grundstücken südlich und westlich des Böttcherbergparks ließ Prinz Carl 1863–1867 durch Ferdinand von Arnim acht Wohnhäuser im Schweizerhausstil erbauen.[306] Diese sehr malerischen Bauten dienten zwar auch als Staffage für die Parklandschaft, sollten aber eine wirtschaftliche Funktion erhalten, da sie als Mietobjekte vorgesehen waren. Da sich die Vermietung als schwierig erwies, wurden die Schweizerhäuser letztendlich zumeist von Hofangestellten bewohnt.
Die Schweiz-Mode entstand im 18. Jahrhundert, das sich ja gerade in der Gartenkunst exotischer Stile, wie orientalisch, tahitianisch und gotisch bediente. Jean-Jacques Rousseaus 1761 erschienener Briefroman Julie ou la nouvelle Héloïse hatte einen durchschlagenden Erfolg in ganz Europa und begründete das Klischee der Schweiz als eines landschaftlich ursprünglichen Landes mit unverbildeten Bewohnern, die natürliche Moral, Herzensbildung und erstaunlicherweise auch altphilologische Bildung besaßen. Im deutschen Sprachraum wurde dieses Klischee 1816 durch Heinrich Clauren mit seinem Roman Mimili fortgeschrieben. In diesem Roman wurde die Julie-Thematik trivialisiert als Liebesgeschichte zwischen einem preußischen Soldaten und einem Mädchen aus dem Berner Oberland und wurde trotzdem – oder gerade deswegen – vom Publikum begeistert aufgenommen. Hermann Adam von Kamp schrieb diese Erfolgsgeschichte 1830 fort mit Adelaide, das Mädchen vom Alpengebirge.[307]

Die Schweiz wurde nun zur regelrechten Mode, was sich besonders in den Neu-Benennungen von bergigen Landschaften in Europa als Schweiz niederschlug. Im Zuge der Nationwerdung der Schweiz ab 1848 entstanden wissenschaftliche Veröffentlichungen von schweizerischer Landbaukunst, die in Architektenkreisen interessiert aufgegriffen wurden. Auch Prinz Carl dürfte durch solche Veröffentlichungen Anregungen zu seinen Glienicker Bauvorhaben gewonnen haben. 1861 aber kann er während seines Schweiz-Aufenthalts auch solche Häuser im Original studiert haben.
Die Glienicker Schweizerhäuser waren Massivbauten mit natursteinverkleideten Sockeln, deren Obergeschosse holzverkleidet waren. Zu den Obergeschossen führten Außentreppen, bei den größeren Häusern zusätzlich auch Innentreppen. Architektonisch waren diese Bauten aufwändig und teuer. Schlossinspektor Bachmann klagte nach Fertigstellung des ersten Hauses in einem der überkommenen Briefe an den Kastellan Ritter am 14. Dezember 1863: „Die übrigen Summen, inclusive für das fertige Schweizerhaus, sind ganz niedlich und wanken zwischen 7 und 8 mille Thaler, während ich […] hörte, daß das Schweizerhaus (oder jedes Schweizerhaus) nicht 9000 Reichsthaler sondern nur 900 Reichsthaler kosten würde! – Wie leicht kann man sich nur um eine Null versehen!“[308]
Doch Prinz Carl ließ sich damals nicht von finanziellen Engpässen beirren, das Journal vermerkte schon am 23. Oktober er „bestimmte heute mit Herrn v. Arnim die für den Neubau im Frühjahr zu erbauenden Schweizerhäuser-Baustelle“n.[309]

Das Innere der Häuser war in Wohnungen aufgeteilt, meist zwei Wohnungen je Geschoss mit Stube, Kammern und Küche. Diese Wohnungen waren offenbar möbliert, denn eine Zeitungsannonce zur Vermietung lautete: „In den neu erbauten romantisch gelegenen Schweizerhäusern zu Klein Glienicke bei Potsdam, sind noch einige elegant eingerichtete Wohnungen zu vermiethen. Das Nähere bei dem Inspector Ritter daselbst.“[310]
Soweit den überlieferten Karten zu entnehmen ist, war der Böttcherbergpark nicht gegen die Schweizerhauspartie abgegrenzt. Vielmehr diente der Bäkekanal als neue Parkgrenze im Süden, und die zur Erschließung der Schweizerhäuser notwendige Parkstraße war an beiden Enden durch ein Gittertor zu versperren. Grundbuchamtlich wurden die Schweizerhäuser aber nicht dem Park zugeschlagen, so dass sie auch nicht Teil des Gutsbezirks waren, der 1920 nach Berlin eingemeindet wurde. Daher verlief in diesem Bereich ab 1961 die Berliner Mauer, für die vier Schweizerhäuser abgerissen wurden.
Das stilistisch ähnlich scheinende nördlichste Haus nahe der Königstraße am Friedhof ist kein Schweizerhaus, sondern ein Arbeiterhaus für die Glienicker Anlage mit acht Wohnungen. Es entstand 1873/74 nach Entwurf von Ernst Petzholtz und ist typologisch interessant, da es im Grundriss die typischen minimierten Stube-Kammer-Kammer-Wohnungsgrundrisse des frühen Mietshausbaus aufweist.[311]
Das nördlich des Arbeiterhauses gelegene Grundstück hatte Prinz Carl ebenfalls erworben und gärtnerisch gestalten lassen. So ist es auf dem bei Hermann Jäger abgebildeten Parkplan als integraler Parkbestandteil des Böttcherberges verzeichnet. Aber wie die anderen an die alte Grenze des Böttcherbergs stoßenden Grundstücke ist es nie verwaltungstechnisch dem Park zugeschlagen worden. Dieses Grundstück wurde nach Prinz Carls Tod zur Erweiterungsfläche des Friedhofs umgewidmet.

Innerhalb der seinerzeit weitverbreiteten Schweiz-Mode in der Architektur stellt Prinz Carls Miniatur-Dorf-Ensemble eine außergewöhnliche Baugruppe dar. Das Besondere an den Glienicker Schweizerhäusern ist, dass nicht nur malerische Details von Schweizerhäusern übernommen wurden. Üblich war seinerzeit das Dekorieren von modernen Bauaufgaben, wie Bahnhöfen, Hotels und Ausflugsgaststätten im Schweizerhausstil, der ihnen völlig unangemessen war. Prinz Carl aber ließ Häuser bauen, die dem Schweizer Typus des Chalet in erstaunlich getreuer Weise entsprechen.[312] Somit gehören auch die noch bestehenden Bauten zu den besonders qualitätvollen Architekturen des Glienicker Parks.[313]
Ernst Petzholtz, dessen Bruder Pfarrer des Kirchspiels Pfaueninsel, Nikolskoe und Klein-Glienicke war, lieferte als Abrundung, bzw. Komplettierung des dörflichen Ensembles einen Kapellenentwurf im Schweizerstil, der aber leider nicht verwirklicht wurde.[314] An dem später von Persius’ Sohn Reinhold ausgeführten neugotischen Kapellenbau von Klein-Glienicke hatte Prinz Carl keinen Anteil. Seine Kirche war St. Peter und Paul auf Nikolskoe, zu der er über seinen Geburtstag, dem Peter-und-Pauls-Tag, einen immer wieder im Journal benannten Bezug hatte. Unter St. Peter und Paul ließ er für seine Familie eine Gruft bauen. Den Bau der spielzeughaften Glienicker Kapelle (nach Entwurf von Reinhold Persius) überließ er seinem Bruder Wilhelm und dessen Frau Augusta. Das recht kleine Grundstück dafür aber stiftete Prinz Carl, der ja auch – außer dem Pfarrhof – alle angrenzenden Grundstücke besaß.
Trotz des Verlustes von einigen Schweizerhäusern infolge des Baus der Berliner Mauer ist das Ensemble noch als solches erkennbar. Eine moderne Aufsiedlung des Gebietes der Schweizerhäuser wäre ein großer Schaden für die Potsdamer Kulturlandschaft, weil dann ein baulicher Riegel zwischen die Parks von Glienicke und Babelsberg geschoben würde. Leider hat man derartige Gedankenspiele sogar innerhalb des renommierten „Schinkelwettbewerbs“ entwurflich realisieren lassen.[315]
Bislang konnte die Denkmalpflege derartige Bestrebungen in den Erweiterungsflächen des Welterbes und angrenzender Gebiete verhindern. Kürzlich wurden anstelle der abgerissenen Schweizerhäuser Neubauten mit modernen Baustoffen in der Kubatur der historischen Häuser gebaut.[316] Dabei fällt im Vergleich mit den erhaltenen Bauten auf, wie stark der Schweizerstil doch durch die hölzernen Zierteile bestimmt wird.
-
Schweizerhaus 1 (Veröfftlg. v. Arnim) -
Schweizerhaus 2 (Veröfftlg. v. Arnim) -
Schweizerhaus 3 (Veröfftlg. v. Arnim) -
Schweizerhaus 4 (Veröfftlg. v. Arnim) -
Schweizerhaus 5 (Veröfftlg. v. Arnim) -
Schweizerhaus 6 (Veröfftlg. v. Arnim)
-
Schweizerhaus 7 (Veröfftlg. v. Arnim) -
Schweizerhaus an der Parkstraße (Bildpostkarte, um 1900) -
Schweizerhaus neben der Kapelle -
Entwurf zum Arbeiterhaus (E. Petzholtz, 1873) -
Arbeiterhaus -
Pfarrhof neben dem Arbeiterhaus
Restauration

Südlich der Berlin-Potsdamer Chaussee nahm Prinz Carl 1874 eine letzte bauliche Parkbereicherung vor. Gegenüber dem Wirtschaftshof hatte Carl bereits 1843 das 7500 m² große Grundstück des „Grunwald’schen Caféhauses“ erworben, um hier eine lärmende Schankwirtschaft zu unterbinden. 1873/74 ließ er östlich neben dem alten Caféhaus durch Ernst Petzholtz die Restauration erbauen und anschließend den Altbau abtragen. Dieses zweigeschossige spätklassizistische Palais war eine Art Restaurant mit Fremdenzimmern, das der Prinz gelegentlich auch für seine Gäste und für Festivitäten nutzte.[317] Die Grundstücksgestaltung kennen wir nur durch den bei Hermann Jäger 1888 abgebildeten Parkplan (s. o.). Demnach erstreckte sich zur Zeit des Todes des Prinzen Carl das Grundstück fast flächendeckend zwischen v. Türk- und Schlossstraße (Wilhelm-Leuschner-Straße), war also erweitert worden. An letztgenannter Straße lag allerdings der schmale Dorffriedhof, der zur Berlin-Potsdamer Chaussee durch einen schmalen Pflanzstreifen des Parks verdeckt war.

Die Restauration vertrat einen Sondertypus des nach 1871 vielfach entstehenden Schlosshotels. In Glienicke war es ein palaisartiges Gebäude, das eben nicht durch eine Vielzahl von Fremdenzimmern seine klassischen Proportionen verloren hatte. Vielmehr wirkte es – im Gegensatz zu dem neobarocken Jagdschloss – mit seinen spätklassizistischen Fassaden als eine selbstverständliche Ergänzung der Schinkelbauten. Das nicht mehr existierende Gebäude ist bislang noch nicht wissenschaftlich untersucht worden. Es sind weder Baupläne noch historische Fotos aus der Zeit vor 1945 bekannt geworden.
Inwiefern sich die gelegentlich überlieferte Bezeichnung als „Hofmarschallsvilla“ historisch verifizieren lässt, ist noch ungeklärt. Das Haus wurde nach dem Ersten Weltkrieg von Prinz Friedrich Leopolds Tochter Viktoria Margarete, verehelichte Fürstin Reuss-Gera (Jüngere Linie) bewohnt. Sie hatte sich von ihrem Mann getrennt, die Ehe wurde 1922 geschieden. Sie verstarb hier 1923 und wurde auf dem Prinzenfriedhof bestattet. Nach der Veräußerung durch Prinz Friedrich Leopold befand sich in der Restauration ein bekanntes Ausflugslokal, in dem als Spezialität Flusskrebse serviert wurden.[318]
Mit dem Kauf des Grundstücks der späteren Restauration 1843 gehörten – abgesehen von einem schmalen Friedhofsstreifen – beide Straßenseiten zwischen Glienicker Brücke und Nikolskoer Weg dem Prinzen. Das Grundstück wurde aber – wie die Schweizerhäuser – nicht verwaltungstechnisch in das prinzliche Anwesen einbezogen und daher später nach Neubabelsberg eingemeindet und kam mit diesem 1938 zu Potsdam. Somit lag das Haus ab 1945 unmittelbar an der Grenze zwischen Potsdam und dem amerikanischen Sektor von Berlin und wurde 1961 beim Bau der Berliner Mauer in diese mit einbezogen. Dies führte zu einer skurrilen baulichen Situation, da das von den Grenztruppen genutzte Gebäude seinen Ausblickserker freistehend zur Chaussee aus der Mauer schob.[319] 1974 wurde es beim Ausbau der Staatsgrenze abgerissen.
Jagdschlossgarten
Überblick

Der Jagdschlossgarten war die späteste Parkanlagenerweiterung, die Prinz Carl in Glienicke vornahm. Er war ein in sich abgeschlossener Parkgarten, der aber optisch die älteren Anlagen ergänzte. Im Parkbereich zwischen Restauration und Glienicker Brücke besaß die Berlin-Potsdamer Chaussee keine Alleebepflanzung, so dass die Chaussee keine optische Barriere zwischen Pleasureground und Jagdschlossgarten bildete. Offiziell wurde die Anlage für Prinz Carls Sohn Friedrich Karl angelegt. Letzterer aber hatte seinen Lebensmittelpunkt im Jagdschloss Dreilinden und interessierte sich nicht für die Gestaltung des Jagdschlosses Glienicke. Daher kann man den Jagdschlossumbau und die Anlage des Jagdschlossgartens als alleiniges Werk des Prinzen Carl bezeichnen.[320]

Das Grundstück des barocken Jagdschloss war ein längliches Rechteck und wurde vom Waisenhaus des Wilhelm von Türk genutzt. Noch vor dem Erwerb dieses Grundstücks kaufte Carl angrenzende Parzellen, ließ sich vom König das Alluvium (Schwemmland) schenken und vereinigte 1859 alles zu einer neuen Fläche auf der er den Jagdschlossgarten vollständig neu anlegen ließ.
Mit dem Tod Friedrich Wilhelms IV. und der Krönung seines Bruders Wilhelm 1861 gelangte Carl, nun allerdings endgültig politisch kaltgestellt, in den Genuss der Gewinne der Fidei-Commis-Güter Flatow und Krojanke in Westpreußen. Damit hatte er erstmals reiche Finanzmittel für seine Leidenschaften. Da der König seit 1858 bereits regierungsunfähig war, war sein Tod absehbar. Man darf also spekulieren, dass Prinz Carl bei der Planung der Jagdschlossanlagen die westpreußischen Güter-Einnahmen bereits einkalkuliert hatte.
Das 1832 von Wilhelm von Türk im Jagdschloss eingerichtete Waisenhaus war eine bekannte Institution. Von Türk galt hochgeachtet als „Potsdamer Pestalozzi“. Andererseits waren mit seinem Namen Wortspiele beliebt, so wurde sein großes Wirtschaftsgrundstück am Griebnitzsee – später die Keimzelle der Villenkolonie Neubabelsberg – als „Türkei“ bezeichnet. Prinz Carl konnte damit gewissermaßen einen kurzzeitigen Umritt von den Karpathen zur Türkei vollziehen. Von Türk starb 1846, das Waisenhaus wurde von einer Stiftung weiter betrieben.


Um die v. Türk’sche Stiftung als Betreiberin des Waisenhauses zum Verkauf des Jagdschlosses zu bewegen, hatte Carl für einen Ersatzbau zu sorgen. Südlich seines 1843 erworbenen, ehemals Grunwald’schen Caféhauses lagen die großen Grundstücke von Eulenburg und Schulz. Diese erwarb Prinz Carl, legte sie zusammen und ließ von v. Arnim ab 1857 das Eulenburg’sche Haus in kostengünstiger Fachwerkbauweise zu einer malerischen Baugruppe entlang der Dorfstraße erweitern.
Das große Grundstück, das dem Ackerbau der Zöglinge dienen sollte, erstreckte sich entlang der von-Türkstraße, die die Erschließung vom Schinkel-Schloss zum zukünftigen neuen Jagdschloss sein sollte. Um nicht zukünftig bei Fahrten die Kohlbeete des Waisenhauses im Blickfeld zu haben, trennte Carl einen breiten Grundstücksstreifen ab, der parkartig bepflanzt wurde. Dieser Grundstücksstreifen war integraler Bestandteil des Parks, wurde aber nicht verwaltungstechnisch dem Park zugeschlagen, so dass er 1961 zum Grenzsperrgebiet wurde.[321] Die später baulich erweiterte Anlage des Waisenhauses war in der DDR zum Feierabendheim umgenutzt worden und enthält heute attraktive Wohnungen.
Durch den Bau der Berliner Mauer war der Jagdschlossgarten nicht mehr über seine historischen Tore zu erreichen. Daher wurde an der Königstraße anstelle eines historischen Pförtchens ein neues Tor angelegt und von dort eine neue (Feuerwehr-)Zufahrt zum Jagdschloss gebaut. Da die Wiederherstellung durch die Gartendenkmalpflege bis 1987 erfolgte, musste dieser unhistorische Verkehrsweg in die Gestaltung mit einbezogen werden, sollte aber nur ein Provisorium für die Mauerzeit sein. Wie alle Dauerprovisorien hat dieser Zufahrtsweg eine wohl fast unbegrenzte Lebensdauer, zumal die ungeschlachte Vermauerung des Kurfürstentores (aus der Zeit Prinz Friedrich Leopolds) von der Denkmalpflege als historischer Bestand bewahrt wird und von Seiten der Stadt Potsdam die kraftverkehrstechnische Verbindung zwischen Königstraße und Mövenstraße (ehem. v.-Türk-Straße) nicht wiederhergestellt, bzw. unterbunden wurde.
Jagdschloss und Nebengebäude

Das Jagdschloss-Anwesen wurde 1859 bis 1862 nach Plänen Ferdinand von Arnims umgebaut. Das Jagdschloss selbst wurde auf fast doppelte Grundfläche erweitert. Der nördliche Nebenflügel wurde als Kavalierbau, der südliche zum Stall- und Remisenbau ausgebaut. Letzterer erhielt eine hohe Durchfahrt, die als Durchblick auf das Babelsberger Dampfmaschinenhaus fungierte. Zwischen Schloss und Stall wurde als Neubau das Küchenhaus eingefügt, Zeichen der nun stark gesteigerten kulinarischen Ansprüche der Zeit. Die Bauten wurden im Ehrenhofbereich mit eisernen Treillagen untereinander verbunden.

Alle Bauten wurden im vergleichsweise prachtvollen Neobarockstil gestaltet. In Potsdam stehen diese Stilformen isoliert dar. Es wird vermutet, dass Carl sich durch neobarocke Bauten in und um St. Petersburg anregen ließ, die seinerzeit in Rückbezug auf die Zeit Zar Peters I. entstanden.[322] Prinz Carl bezog sich auf die Zeit des Großen Kurfürsten, der das ursprünglich ja sehr bescheidene Jagdschloss Glienicke hatte erbauen lassen, und durch den Frieden von Oliva gewissermaßen der Begründer des späteren Königreichs Preußen war.

Gemäß den Innenraum-Veröffentlichungen und den wenigen Fotos aus den Räumen muss das Jagdschloss ein regelrechter Palast gewesen sein. Er vertrat die eigentliche Gründerzeit, eine Zeit, die mit ihrer lauten Dekorationsfreude der Schinkelzeit mit ihrer gelehrten Bescheidenheit geradezu entgegengesetzt war. Rudolf Bergau beschrieb 1885 das Innere des Jagdschlosses (das kurz darauf vollständig umgebaut werden sollte) erstaunlich knapp: „Das Jagdschloß, nach 1678 durch de Chieze erbaut; die Dekoration des Inneren vermutlich durch Dieussart ausgeführt. […] In dem großen Saale und den Zimmern sind sechs Stuckdecken des ursprünglichen Baues, jedoch ohne ihre Bemalung, erhalten. Die übrigen inneren Dekorationen und Ausstattungen sind größtenteils modern. In zwei Vorzimmern sind Vertäfelungen des XVII. Jahrh. aus Basel stammend, angebracht; andere Holzschnitzereien des XVII, Jahrh. am Buffet. Sonst sind zu erwähnen: ein Spiegelrahmen und eine große Truhe in Holz geschnitzt; Hirschgeweihleuchter von 1618; farbig glasierter Renaissanceofen.“[323]
Rückblickend muss man es als einen glücklichen Umstand betrachten, dass das Schinkel-Schloss von derartiger Dekoration verschont blieb. Dort waren lediglich moderne, wenn auch stilistisch wenig passende Vasen und Schalen auf den Attiken und Balustraden aufgestellt worden. Bergau konnte sich angesichts der Schinkel-Architektur lediglich zu den Worten herablassen: „im Äußeren als Putzbau ohne besonderen architektonischen Schmuck hergestellt.“[324]
Mit dem Um- und Neubau des Jagdschlosses reizte Prinz Carl seine finanziellen Möglichkeiten aus. Kennen wir zwischen 1828 und der Jahrhundertmitte beständige Ermahnungen der Prinzessin Marie in den Briefen an ihren Gatten, er möge nicht so viel in die Glienicker Anlagen investieren, so wird in der Korrespondenz zwischen den Haushaltsführern Bachmann und Ritter nach dem Jagdschlossbau eine sehr viel deutlichere Sprache gesprochen: „Es stellt sich jetzt heraus, daß wir, für den Neubau des Jagdschlosses nahezu 200 000 Reichsthaler ausgegeben haben, bis dato, und kommt jetzt noch der Nachtrag… – Aber dann – eine Jahres-Pause – wenn wir nicht zu Grunde gehen wollen! –“[325]
Die Bauten des Glienicker Parks südlich der Chaussee sind stilistisch vielfältiger als im übrigen Park. Mit ihnen entfernte sich Prinz Carl von der einheitlichen Stilistik des klassischen Landschaftsgartens der ersten Hälfte des 19. Jahrhunderts. Man kann dieses positiv als ein besonders anschauliches Beispiel der Garten- und Bauentwicklung in der zweiten Jahrhunderthälfte bezeichnen. Bernhard dagegen urteilt 1987 recht hart: „Das Bau- und Parkkonzept wird Stückwerk, wenn sich eine Loggia in Renaissanceformen über einer Schlucht erhebt, an deren Fuß alpine Holzhäuser mit Sichtbeziehung zu einem neubarocken Schloss stehen. Das klassische Ideal weicht der spielerischen Vielfalt.“[326]
-
Hirschtor und Hofseite des Jagdschlosses (v. Arnim) -
Gartenseite des Jagdschlosses (v. Arnim) -
Blick durch den Stallbau auf das Dampfmaschinenhaus Babelsberg (Foto Hermann Günther, 1874) -
Küchenbau rechts neben dem Stallbau (Foto Hermann Günther, 1874) -
Brückentor (Petzholtz, 1872) -
Kurfürstentor (v. Arnim, um 1865)
Kurfürstentor und Ehrenhof

Als Haupttor des Glienicker Jagdschlossanwesens fungierte nicht das Tor zur Barockallee am Ehrenhof, sondern das Kurfürstentor an der damaligen von-Türk-Straße. Die heutige moderne Gartenzufahrt an der Berlin-Potsdamer-Chaussee existierte nicht. Vielmehr fuhr man vom Johannitertor zum Kurfürstentor und kam somit zur Vorfahrt des Jagdschlosses, das entsprechend nicht vom Ehrenhof her betreten wurde, also wie das Schinkel-Schloss eine ungewöhnliche Erschließung besaß.

Das Kurfürstentor ist heute durch die Vermauerung Prinz Friedrich Leopolds und Graffiti entstellt und auch teilweise eingewachsen. Damals wirkte es mit dem durch Säulen flankierten Torbogen, der Büste des Großen Kurfürsten, den neobarocken Gitter-Torflügeln und dem seitlichen, überkuppelten Achteck-Pavillon monumental und repräsentativ und dürfte im Straßenknick als Park-Haupteingang eindeutig erkennbar gewesen sein.
Zum Ehrenhof gelangte man entweder von der Vorfahrt durch ein Portal in der Nord-Treillage oder über das Tor an der Barockallee Richtung Dorf. Hier wurden die Hirschfiguren aufgestellt, die sich bis dahin am Vorfahrtstor des Schinkel-Schlosses befanden. Der Ehrenhof war durch die berankten Treillagen, das riesige geometrische Teppichbeet, ein Tortenbeet zwischen den Seitenflügeln sowie die vorgartenartigen Pflanzflächen vor allen Gebäuden eine Art Blumengarten. Doch sind die klassischen Unterteilungen der englischen Landschaftsgartenkunst innerhalb des Jagdschlossgartens nicht mehr auszumachen.
Garten

Der Jagdschlossgarten war entlang der Straßenräume eingefriedet. Im Bereich des Jagdschlosses wurde während des Umbaus durch von Arnim eine Sichtziegelmauer mit Zierterrakotten errichtet, die weitgehend erhalten ist. Vom Kurfürstentor bis zur Glienicker Brücke zog sich ein Drahtschuppenzaun, entsprechend dem Zaun des gegenüberliegenden Pleasuregrounds. Er ist heute durch einen modernen Zaun ersetzt.
Der eigentliche parkartige Garten wurde von einem Drive erschlossen, der vom (nicht erhaltenen) Brückentor an der Glienicker Brücke zur Jagdschloss-Vorfahrt verlief. Laut v. Krosigk teilt dieser Fahrweg den Jagdschlossgarten in einen auf das Jagdschloss ausgerichteten Teil und einen Teil, der die optische Erweiterung des Glienicker Pleasuregrounds nördlich der Chaussee ist. Hier liegt der Schlossteich, der durch die Wasserspiele des Pleasuregrounds gespeist wurde.[327]

Das erwähnte Brückentor war weit von der Berlin-Potsdamer Chaussee zurückgesetzt gebaut worden, so dass es baukörperlich und stilistisch nicht mit der Rotunde in Konflikt geraten konnte. Es war ganz oben von einem großen Johanniterkreuz geschmückt. Bergau schreibt zu dem Bau: „Das Parkportal an der Glienicker Brücke, ein zwischen gegliederten und in Formen der Spätrenaissance reich skulptierten Pfeilern gespannter Flachbogen, wurde mit Benutzung eines aus Breslau stammenden Portales ausgeführt.“[328] Welche Spolien hierbei verbaut wurden, ist bislang nicht untersucht. Auch das Abrissdatum ist nicht bekannt, also ob bereits Prinz Friedrich Leopold 1911 das Portal beseitigen ließ, oder ob es erst im Zuge des Ausbaus der Reichsstraße in den 1930er Jahren verschwand.
Der Hauptaussichtsplatz des Jagdschlossgartens befand sich inmitten der Anlage und hatte seine Hauptaussicht auf den Pleasureground und die Löwenfontäne. Im Gegensatz zum Stammpark besitzt der Jagdschlossgarten direkten Zugang zur Havel am Tiefen See und der Glienicker Lake. Hier wurde ein bastionartiger Aussichtsplatz in das Wasser gebaut, von dem man einen herrlichen Blick auf Babelsberg und Potsdam hat. Diese Bastion wurde durch eine in den Garten gezogene Bucht zu einer inselartigen Anlage, wovon heute nichts mehr zu erkennen ist. Die Havel ist mit vielen Sichtachsen in den Jagdschlossgarten eingebunden. Jedoch ist zwischen der Bastion und dem Jagdschloss der (vor der Wiederherstellung wild hochgewachsene) Gehölzbestand noch nicht ausgelichtet worden und bildet eine unhistorische waldartige Sichtschranke. Auch der von der Bastion mit einer Brücke über den Wasserlauf führende Weg ist eine moderne Zutat des Gartens. Laut Kraatz-Plan bestand hier nur ein kurzer Stichweg bis zum Wasserlauf.
Bemerkenswerterweise wurde zwar das Jagdschloss komplett zum Neobarockbau umgestaltet, es wurde aber kein neobarocker Garten angelegt. Vielmehr wurden kleine formale Anspielungen an barocke Gartenkunst vorgenommen. So auf der Gartenseite des Jagdschlosses, wo um den Springbrunnen zu Füßen der Freitreppe volutenförmige Beet-Formationen angelegt wurden. Somit ist der Jagdschlossgarten mit seinem feinen Geländemodell eine gelungene Kombination der klassischen englischen Landschaftsgartenkunst und des Revivals der Barockgärten.
Würdigung
Unter den zahlreichen formal ähnlichen Landschaftsgärten des 19. Jahrhunderts ragt der Park Klein-Glienicke durch die hohe Qualität sowohl der Bauten als auch der Gartenkunst heraus, auch wenn die östlichen Parkbereiche noch nicht gartenkünstlerisch wiederhergestellt sind. Der Park besticht auch durch seine landschaftliche und gestalterische Vielfalt. Nach Sanssouci ist der Glienicker Park die stilistisch vielfältigste unter den Potsdamer Parkanlagen. Zudem ist er durch die intensive Gestaltung des Prinzen Carl eine besonders persönlich geprägte Anlage.
Literatur (chronologisch)
- Heinrich Wagener: Klein-Glieneke, Schloß und Park Sr. Königlichen Hoheit, des Prinzen Karl von Preußen. In: Der Bär, illustrierte Berliner Wochenschrift, 8. Jahrgang, 1882, Nr. 44, S. 567–571 und Nr. 45, S. 578–580
- Rudolf Bergau: Inventar der Bau- und Kunst-Denkmäler in der Provinz Brandenburg im Auftrage des Brandenburgischen Provinzial-Landtages unter Mitwirkung von A. v. Eye, W. Köhne, A. Körner, P. Lehfeldt, R. Schillmann, W. v. Schulenburg-, F. Warnecke, E. Wernicke u. A. bearbeitet von R. Bergau. Voss, Berlin 1885, S. 378–385
- Andreas [?] Rumpf: Wanderfahrt nach Glienicke. In: Mitteilungen des Vereins für die Geschichte Berlins. Nr. 9, 1917, S. 59–62.
- Johannes Sievers: Bauten für den Prinzen Karl. Deutscher Kunstverlag, Berlin 1942 (Karl Friedrich Schinkel – Lebenswerk)
- Klaus Konrad Weber: Die »belebende Idee« des Glienicker Parkes. In: Jahrbuch für brandenburgische Landesgeschichte Jahrgang 15 / 1964, hu-berlin.de (PDF)
- Friedrich Wilhelm Goethert: Katalog der Antikensammlungen des Prinzen Carl von Preußen im Schloß zu Klein-Glienicke bei Potsdam. Philipp von Zabern, Mainz 1972
- Michael Seiler, Martin Sperlich: Schloß und Park Glienicke (Zehlendorfer Chronik 1/77). Berlin 1977, erw. Auflage 1987
- Michael Seiler: Neue Untersuchungen zur ursprünglichen Gestaltung und zur Wiederherstellung des Pleasuregrounds von Klein-Glienicke. In: Detlef Heikamp (Hrsg.): Schlösser, Gärten, Berlin. Festschrift für Martin Sperlich zum 60. Geburtstag 1979. Ernst Wasmuth, Tübingen 1980, S. 107–130
- Herbert Sukopp, Dieter Barndt, Hans-Peter Blume et al.: Ökologisches Gutachten zu den gartendenkmalpflegerischen Wiederherstellungsmaßnahmen auf dem Böttcherberg im Glienicker Park, Teil I. Institut für Ökologie der Technischen Universität Berlin, 1981
- Malve Gräfin Rothkirch: Prinz Carl von Preußen, Kenner und Beschützer des Schönen, Osnabrück: Biblio, 1981. Zweite, veränderte Auflage. Wagener, Melle 2006
- Klaus von Krosigk: Gartendenkmalpflege – Der Landschaftsgarten von Klein-Glienicke. (SenStadtUm) 1984.
- Klaus von Krosigk, Heinz Wiegand: Glienicke. Haude und Spener, Berlin 1984, erw. Auflage 1992 (Berliner Sehenswürdigkeiten, 6).
- Michael Seiler: Plan des Parks von Klein-Glienicke, um 1862, mit Nachdruck der Karte aus dem Bestand des Bezirksamtes Zehlendorf, Berlin Archiv, Ergänzungs-Edition, Band III, BE 01043, Berlin, ca. 1985
- Michael Seiler: Die Entwicklungsgeschichte des Landschaftsgartens Klein-Glienicke 1796–1883. Dissertation, Hamburg 1986.
- Verwaltung der Staatlichen Schlösser und Gärten Berlin (Hrsg.): Schloss Glienicke – Bewohner Künstler Parklandschaft. Ausstellungskatalog. Berlin 1987
- Gabriele Schultheiß-Block (Hrsg.): Das gantze Eyland muß ein Paradies werden. Jagdschloss Glienicke, Ausstellungskatalog, Haus am Waldsee, Berlin 1987
- Harry Nehls: Italien in der Mark – Zur Geschichte der Glienicker Antikensammlung. Westkreuz, Berlin / Bonn 1987 (Schriften des Vereins für die Geschichte Berlins, Heft 63).
- Harry Nehls: „Der Aristides ist am Kasino und drin, wimmelt es voll Antiken.“ Zur Provenienz der Rednerstatue des „Aristides“ aus der Antikensammlung des Prinzen Carl von Preußen in Klein-Glienicke bei Potsdam. Anhang: Mehr als nur ein Gouverneur. Minutolis Verhältnis zum Prinzen Carl von Preußen und sein Einfluss auf dessen Sammelpassion. In: Mitteilungen des Vereins für Kultur und Geschichte Potsdams. Studiengemeinschaft Sanssouci e. V. 26. Jg. Potsdam 2021, S. 55–119.
- Gerd H. Zuchold: Der Klosterhof des Prinzen Carl im Park von Klein-Glienicke. 2 Bände. Gebrüder Mann, Berlin 1993 (Die Bauwerke und Kunstdenkmäler von Berlin, Beiheft 20/21).
- Josef Batzhuber, Klaus von Krosigk: 25 Jahre Gartendenkmalpflege in Klein-Glienicke. Ein wiederentdeckter Garten Eden, Berlin, 2003.
- Stiftung Preußische Schlösser und Gärten Berlin-Brandenburg (Hrsg.): Preußisch grün, Hofgärtner in Brandenburg-Preußen, Ausstellungskatalog. Henschel, Berlin 2004
- Johanna Kaupp, Gabriele Heise: Parkpflegewerk Landschaftspark Klein-Glienicke. Unveröffentlichtes Gutachten im Auftrag des Landesdenkmalamts Berlin, 2006
- Potentialanalyse für den Landschaftspark Glienicke. Unveröffentlichtes Gutachten, kofinanziert von SPSG, Online veröffentlichter Jahresbericht 2009 der SPSG, S. 4.
- J. Hübener: Dynamik und Konstanz von Wiesen in historischen Landschaftsgärten am Beispiel Glienicker Park. Diplomarbeit, TU Berlin, 2010
- Kerstin Geßner, Annett Dittrich: Königliche Aussicht. Gartenarchäologie im Berliner Schlosspark Klein-Glienicke. In: Archäologie in Berlin und Brandenburg, 2019, 138–142. (academia.edu)
Weblinks
- Eintrag 09075491 in der Berliner Landesdenkmalliste
- Schloß Glienicke. spsg.de; abgerufen am 26. August 2012
- Peter Josef Lenné. Lenné-Jahr 2016 – 200 Jahre Park Glienicke
Einzelnachweise
- ↑ Berlin Handbuch: Das Lexikon der Bundeshauptstadt, Berlin: FAB, 1993, S. 653. Dies scheint nur den Park nördlich der Chaussee zu betreffen, so dass im 21. Jh. noch Böttcherbergpark und Jagdschlossgarten hinzugezählt werden müssen, vor 1920 Schweizerhauspartie und Restauration (s. u.) addiert werden können.
- ↑ Die Baudaten fast sämtlich nach Georg Dehio: Handbuch der Deutschen Kunstdenkmäler. Deutscher Kunstverlag, München / Berlin 1994. Die weiteren Angaben in Johannes Sievers: Bauten für den Prinzen Karl von Preußen (Karl Friedrich Schinkel Lebenswerk). Deutscher Kunstverlag, Berlin 1942.
- ↑ Bei Rudolf Bergau: Inventar der Bau- und Kunst-Denkmäler in der Provinz Brandenburg im Auftrage des Brandenburgischen Provinzial-Landtages. Voss, Berlin 1885, S. 378. ist die Besitzerfolge detailliert geschildert: „Glienicke, Klein- (1375 Glinick, 1478 Glineke, 1624 Glienike), Dorf, 3 km nordöstlich von Potsdam, an der Havel; zum Potsdamer Domänenamt gehörig. Im Jahre 1375 war G. »seit unvordenklichen Zeiten« in Besitz des Mukem – später kam G. an die Familie Schonow; nach deren Aussterben wurde es dem Hans v. Schlaberndorf zu Leh[e]n gegeben; seine Nachkommen zogen sämtliche Besitzungen daselbst an sich, so daß im Jahre 1651 weder ein Bauer noch Kossäth daselbst vorhanden war. Später, nach 1678, erwarb es der Kurfürst Friedrich Wilhelm, welcher daselbst ein Jagdschloß mit Garten anlegte. Unter König Friedrich Wilhelm I. wurde das Schloß zum Militärlazarett, 1758 zu einer Tapetenfabrik eingerichtet und 1827 die von v. Türk gestiftete Waisen-Erziehungsanstalt in demselben untergebracht. Zu dem Terrain des kurfürstlichen Jagdschlosses [S. 379] gehörte auch die nördliche Spitze des Stolper Werders, wo ein Baumgarten und Weinberg bestand, welcher nach dem Tode Königs Friedrich I. verfiel. 1738 wurde ein Teil desselben an einen Fabrikanten verkauft; 1747 kaufte der Lazarettarzt Dr. Mirow den Baumgarten nebst Weinberg und erbaute sich daselbst ein stattliches Wohnhaus. Nach dem siebenjährigen Kriege verkaufte er diese Besitzung an den General v. Möllendorf. Nach diesem besaß dieselbe der Lieutenant Schlott und 1788 der Lieutenant v. Hein. [Ab] 1789 wurde die Berlin-Potsdamer Chaussee durch G. gelegt. 1796 erwarb der Oberstallmeister Graf Lindenau die ehemals Mirowsche Besitzung, und vergrößerte und verschönerte sie beständig. Er baute daselbst ein Billardhaus mit Kegelbahn (das jetzige Kasino), eine Orangerie und die »Neugierde«, auch einen Pferdestall. 1804 kaufte er den Böttcherberg. Während des Krieges zog er auf seine Besitzungen in der Neumark und vermietete Glienicke an den Baron, nachmaligen Staatskanzler Fürsten Hardenberg, welcher jedoch dem folgenden Besitzer, Kaufmann Rosentreter, weichen mußte. Der Aufenthalt in G. hatte Hardenberg so wohl gefallen, daß er 1814 Schloß und Park G. kaufte. Es folgte eine Zeit beständiger Verschönerungen. […]
- ↑ Gabriele Schultheiß-Block (Hrsg.): Das gantze Eyland muß ein Paradies werden. Jagdschloss Glienicke, Ausstellungskatalog, Berlin 1987.
- ↑ Michael Seiler, Die Entwicklungsgeschichte des Landschaftsgartens Klein-Glienicke 1796–1883, Dissertation Hamburg 1986, S. 22ff.
- ↑ Seiler, Dissertation 1986, S. 44.
- ↑ Heinrich Wagener: Klein-Glieneke, Schloß und Park Sr. Königlichen Hoheit, des Prinzen Karl von Preußen, in: Der Bär, illustrierte Berliner Wochenschrift, 8. Jahrgang, 1882, Nr. 44, S. 570
- ↑ Seiler, Dissertation 1986, S. 85.
- ↑ Michael Seiler, Martin Sperlich, Schloß und Park Glienicke (Zehlendorfer Chronik 6/87), Berlin 1987, S. 24.
- ↑ Andreas Meinecke, Susanne Fontaine: Schinkels Meisterschüler – Bauausführungen unter Karl Friedrich Schinkel. In: Stiftung Preußische Schlösser und Gärten Berlin-Brandenburg (Hrsg.): ludwig persius architekt des königs – baukunst unter friedrich wilhelm IV. Schnell und Steiner, Regensburg 2003, S. 97–101.
- ↑ Seiler, Dissertation 1986, S. 62–79, S. 124–161.
- ↑ Stiftung Preußische Schlösser und Gärten Berlin-Brandenburg (Hrsg.) Preußisch grün – Hofgärtner in Berlin-Brandenburg, Ausstellungskatalog 2004, S. 311.
- ↑ Seiler, Dissertation 1986, S. 111.
- ↑ Wagener: Klein-Glieneke. 1882, S. 567.
- ↑ Bergau: Inventar der Bau- und Kunst-Denkmäler. 1885, S. IX/X.
- ↑ Seiler, Dissertation 1986, S. 56.
- ↑ Dieses eigentümliche Bauwerk scheint entsprechend damals modernster Wehrarchitektur gestaltet worden zu sein. Es ist noch nicht wissenschaftlich untersucht worden.
- ↑ Andreas [?] Rumpfs Bericht von einem Ausflug des Vereins für die Geschichte Berlins am 16. August 1917 weist darauf hin, dass so gut wie niemand die Erlaubnis zum Besuchs des Parks erhielt: Der Verein „erhielt die außerordentlich seltene Gelegenheit, die Kunstschätze, Architekturwerke und gärtnerischen Anlagen im ehemaligen Park des Prinzen Carl von Preußen […] zu besichtigen.“ Rumpf: Wanderfahrt nach Glienicke. In: Mitteilungen des Vereins für die Geschichte Berlins. Nr. 9, 1917, S. 59.
- ↑ Jürgen Julier: Glienicke im 20. Jahrhundert. In: Schloß Glienicke Bewohner Künstler Parklandschaft. Ausstellungskatalog. 1987, S. 185 ff.
- ↑ In dem ihm eigenen wehmütigen Tonfall beschreibt der Journalist Ludwig Sternaux die damalige Situation: „Mit tausend Reizen lockten Park und Schloß, vom Dornröschenschlaf umfangen, doch zu verweilen, das Wunder zu enträtseln, Legende, die beides dunkel umschwärmte, aufzuhellen, zu ergründen – aber immer verwehrten Mauer und verschlossene Tore den Zutritt, und in ungestillter Sehnsucht ging man resigniert weiter, auf Potsdam zu, nach Wannsee zurück. Die Mauer bröckelte, Tor und Gitter rosteten. Das Schloß verfiel, die Brunnen versiegten. Der Park verwilderte, die goldenen Löwen auf den Säulen sahen aus toten Augen verwundert auf das große Sterben ringsum. Von schwarzen Schwänen ging die Sage, die über stille Teiche gleiten sollten, von weißen Pfauen, Hirsch und Reh. Es hat sie nie ein Mensch gesehen. Das Wort des Prinzen Friedrich Leopold, der Erbe alles dessen, ohne es zu kennen, hält den Park verschlossen. […] Die Zeit hat alles vermorschen lassen, die vielen Ausblicke, die ‘Ahas’ sind verwaschen.“ Ludwig Sternaux: Potsdam – Ein Buch der Erinnerung. Edwin Runge, Berlin 1924, S. 184.
- ↑ Auktionshaus Leonor Joseph, Berlin, Auktionskatalog 18.–21. Februar 1931, Versteigerung S. K. H. Prinz Friedrich Leopold von Preußen, Schloß Glienicke. Nach dem Tod des Prinzen fand in Berlin eine weitere große Auktion statt: Auktionshaus Hermann Ball, Auktionskatalog 27./28. November 1931, Die Sammlung Prinz Friedrich Leopold von Preussen (Beide Kataloge sind digitalisiert online abrufbar unter „HEIDI“ der Universitätsbibliothek Heidelberg).
- ↑ Ausstellungskatalog Schloss Glienicke 1987, Kat.-Nr. 367.
- ↑ Julier, Glienicke im 20. Jahrhundert, in: Ausstellungskatalog Schloß Glienicke 1987, S. 185. Hiernach auch die folgenden Daten.
- ↑ Heimatverein Zehlendorf e. V. (Hrsg.) Gerd-H. Zuchold, Der Familienfriedhof im Park von Schloss Glienicke die Geschichte der Karl-Linie des Hauses Hohenzollern, Berlin, 2008 (Zehlendorfer Chronik; 18)
- ↑ Klaus von Krosigk, Heinz Wiegand: Glienicke. Berlin 1992, S. 62 (Berliner Sehenswürdigkeiten, 6).
- ↑ Michael Seiler, Martin Sperlich: Schloß und Park Glienicke. Berlin 1987 (Zehlendorfer Chronik, 1/77). Klaus von Krosigk, Heinz Wiegand: Glienicke. 1992.
- ↑ Klaus von Krosigk, Heinz Wiegand: Glienicke. 1992, S. 66 ff.
- ↑ Ausstellungskatalog Das gantze Eyland … 1987, S. 106.
- ↑ Jürgen Julier: Zum Gedenken an Friedrich Baron Cerrini de Montevorchi. In: Schloß Glienicke – Bewohner Künstler Parklandschaft. Ausstellungskatalog. 1987, S. 7.
- ↑ Ausstellungskatalog Das gantze Eyland… 1987
- ↑ Sievers: Bauten für den Prinzen Karl. 1942, S. 4.
- ↑ Sievers: Bauten für den Prinzen Karl. 1942, S. 4
- ↑ Margret Schütte: Prinz Friedrich Carl Alexander von Preußen [Biografische Skizze], in: Ausstellungskatalog Schloß Glienicke 1987. S. 191–210.
- ↑ Sievers: Bauten für den Prinzen Karl. 1942, S. 4.
- ↑ Seiler, Dissertation 1986, S. 227 f.
- ↑ Brief von Kronprinzessin Viktoria an ihre Mutter, zitiert nach Ludovica Scarpa: Gemeinwohl und lokale Macht. München / New Providence / London / Paris 1995, S. 115.
- ↑ Allerdings reiste Carl 1862 ohne Marie zur Weltausstellung nach London. Bezeichnenderweise sind weder Parkbesichtigungen noch Ausflüge überliefert.
- ↑ Sievers: Bauten für den Prinzen Karl. 1942, S. 4–6.
- ↑ Abbildung der Tafelrunde nach Gemälde von General von Garnier, in: Ausstellungskatalog Schloß Glienicke 1987, Kat.-Nr. 250.
- ↑ Sievers: Bauten für den Prinzen Karl. 1942, S. 17
- ↑ Helmut Börsch-Supan: Prinz Carl von Preußen, die Maler und die Bildhauer, in: Ausstellungskatalog Schloß Glienicke 1987, S. 212.
- ↑ Margret Schütte: Prinz Friedrich Carl Alexander…, in Ausstellungskatalog Schloß Glienicke 1987, S. 201.
- ↑ Malve Gräfin Rothkirch: Prinz Carl von Preußen, Kenner und Beschützer des Schönen. Osnabrück 1981. Der Titel des Buches bezieht sich auf einen Satz der Widmung Pücklers an Prinz Carl in den „Andeutungen“ von 1834: „Eure Hoheit sind aber außerdem auch ein Beschützer und Kenner des Schönen, wo es sich findet, und haben in neuester Zeit dem Gegenstande, von welchem das vorliegende Buch handelt – der Gartenkunst im höheren Sinne – ebenfalls Ihre tätige Aufmerksamkeit geschenkt.“
- ↑ Das Journal über Glienicke umfasste mindestens fünf Bände, die jeweils etwa ein Jahrzehnt behandeln: I 1824–1837, II 1838–1848, III 1849–1862, IV 1863–1870, V 1871–1878. Ob noch ein sechster Band begonnen und bis zum Tod des Prinzen geführt wurde, ist unbekannt. Vielleicht erachtete der Prinz nach dem Tod der Prinzessin (1877) einen weiteren Band für überflüssig. Band II ist noch von Sievers ausgewertet worden, aber heute verschollen. Sievers kannte Band III-V nicht, weshalb er für die Baugeschichte nach 1848 wenig präzise Baudaten angeben konnte. Seiler hat die Journale in Bezug auf die Garten- und Baugeschichte systematisch ausgewertet und in seiner Dissertation 1986 ab S. 235 veröffentlicht. Margret Schütte und Andreas Bernhard haben die Journale für die Ausstellung 1987 systematisch auch in Bezug auf die gesellschaftlichen Bezüge ausgewertet. Dies liegt bei SPSG in einer konventionellen Kartei vor.
- ↑ Seiler, Dissertation 1986, S. 235 ff.
- ↑ Sievers: Bauten für den Prinzen Karl. 1942, S. 21
- ↑ Rellstab berichtet 1852 in seinem Führer Berlin und seine Umgebungen auf Seite 373 darüber: „Der Spaziergang durch Glienicke ist nicht für Jedermann offen, wie durch die meisten anderen königlichen Gärten. Wir können also nicht ohne Weiteres eintreten, sondern bedürfen die Erlaubniß entweder des Hofmarschalls des Prinzen, oder dessen, der als erster Beaufsichtiger zugegen ist.“.
- ↑ Wagener: Klein-Glienecke. 1882, S. 567
- ↑ Zum Beispiel überliefert in einem Brief an Marie vom 26. Januar 1827: „Ein herrlicher Schnee nämlich lud mich ein […] zum Déjeuner nach Glienicke zu Schlitten zu fahren, wo ich mir ohnedies schon ein Rendezvous mit einigen Bau- und Gartenkünstlern gegeben hatte.“ Sievers: Bauten für den Prinzen Karl. 1942, S. 16.
- ↑ zit. nach Seiler, Dissertation, 1986, S. 238.
- ↑ Samuel Heinrich Spiker: Berlin und seine Umgebung. Berlin 1833 (Reprint Leipzig 1979). Spaziergang durch Potsdams Umgebungen. Stuhr, Potsdam 1839 (Reprint Potsdam 1988). Klein-Glienicke, Schloß des Prinzen Carl von Preußen bei Potsdam. In: Leipziger Illustrierte Zeitung, 1846, Band 6, Nr. 154. Ludwig Rellstab: Berlin und seine nächsten Umgebungen in malerischen Originalansichten. Historisch-topographisch beschr. von Ludwig Rellstab. Gez. von Ludwig Rohbock, Stahlstiche von Johann Gabriel Friedrich Poppel. Lange, Darmstadt 1852 (Reprint Berlin: Schacht, 1979). August Kopisch: Die königlichen Schlösser und Gärten zu Potsdam: Von der Zeit ihrer Gründung bis zum Jahre 1852. Ernst & Korn, Berlin 1854. Carl Ludwig Haeberlin: Sanssouci, Potsdam und Umgebung: mit besonderer Rücksicht auf die Regierungszeit … Friedrich Wilhelm VI. König von Preußen. Riegel, Berlin 1855. Robert Springer: Berlin, die deutsche Kaiserstadt nebst Potsdam und Charlottenburg. Friedrich Berger, Darmstadt 1878. Nachdruck: Haude & Spener, Berlin 1977, S. 244 f. Heinrich Wagener: Klein-Glienicke, Schloß und Park Sr. Königlichen Hoheit, des Prinzen Karl von Preußen. In: Der Bär, 1882, 8, S. 567–571 und 578–580.
- ↑ Wagener: Klein-Glieneke. 1882, S. 567 ff.
- ↑ Die neuesten Bau-Ausführungen Seiner Königlichen Hoheit des Prinzen Karl von Preussen im Schloss-Park zu Glienicke bei Potsdam. Potsdam: Riegel, 1843. (zugleich H. 9 des Architektonischen Albums)
- ↑ Bergau: Inventar der Bau- und Kunst-Denkmäler. 1885: „In der Halle des inneren Gartenplatzes [gemeint ist die Pergola] eine Sammlung römischer Skulpturen und architektonischer Details von römischen und Renaissancebauten. Darunter: Acht gleiche korinthische Kapitale flacher Wandpfeiler aus Marmor./ Großes, korinthisches Pilasterkapitäl./ Zwei kleine Pilasterkapitäle nebst reich skulpiertem Architrav aus weißem Marmor./ Zwei Granitsäulchen mit Kompositkapitälen aus weißem Marmor./ Zwei Kompositkapitäle gegliederter Wandpfeiler aus weißem Marmor./ Portaleinfassung mit zwei Säulchen von rotgelbem Marmor, mit reichen korinthischen Kapitälen aus weißem Marmor, auf Postamenten mit eingelegtem buntem Marmor./ Großes, korinthisches Kapital eines flachen Wandpfeilers mit reichem Blätter-Schmuck aus grauem Marmor./ Großes Wandpfeilerkapitäl mit Delphinen, Muscheln etc. aus weißem Marmor./ Drei Wandpfeilerkapitäle aus Rosso antico./ Zwei kleine halbrunde Blattkapitäle aus Rosso antico./ Mehre Fragmente kannelierter Pilaster aus weißem, grünem und schwarzem Marmor./ Mehre Fragmente kannelierter Säulen, zum Teil mit gewundenen Kannelüren./ Mehre Fragmente von Säulen, Pilastern und Gesimsen etc., von Porphyr./ Kleines, viereckiges Renaissancekapitäl aus weißem Marmor./ Zwei kleine Pilaster mit ornamentierten Füllungen aus weißem Marmor./[S. 382] Reich skulptiertes Gesimsstück aus grauem Marmor./ Relieffries mit reichem Rankenornament./ Zwei große Fruchtgehänge aus weißem Marmor./ Archivolte mit Eichblattgewinde./ Tischfuß mit Löwenkopf./ Relief mit Lorbeerzweig und Vogel./ Viele kleinere Architektur- und Ornamentteile./ Torso einer Figur mit reichem Faltengewand; Marmor./ Zwei desgl. von halbbekleideten, weiblichen Figuren; Marmor./ Ein desgl. mit Faltengewand; Porphyr./ Statue des Neptun./ Statue der Fortuna./ Marmorstatuette eines Knaben mit einer Eidechse, letztere aus Bronze./ Büste eines jungen Mannes./ Viele Köpfe und Masken aus Marmor./ Zwei fliegende Amoretten halten ein Medaillon mit einem Porträt; Hautrelief./ Fragment einer Marmorvase mit einer Tänzerin./ Zwei Jünglinge auf Pferden davonsprengend und Krieger zu Fuß; Hautrelief./ Odysseus im Kampfe mit den Freiern; Hautrelief./ Amoretten unter Weinranken. Trauben und Früchte sammelnd; Hautrelief./ Fragment einer großen Porphyrschale./ Viele Fragmente von Reliefs mit phantastischen Seetieren, Jagd-, Ernte- und Kampfscenen, Amoretten und ähnliches./ Teile von Sarkophagen; Löwenköpfe etc./ Kleinere Reliefstücke aus den römischen Bädern zu Trier und aus Carthago./ Terracotten aus Paestum./ Mehre Fragmente antiker Freskomalereien.“
- ↑ zitiert nach Sievers: Bauten für den Prinzen Karl. 1942, S. 65 f.
- ↑ Sievers: Bauten für den Prinzen Karl. 1942, S. 51 bezeichnet diese Veranda als Dienerwarteraum während Festveranstaltungen.
- ↑ zitiert nach Sievers: Bauten für den Prinzen Karl. 1942, S. 51.
- ↑ Sepp-Gustav Gröschel: Glienicke und die Antike, in Ausstellungskatalog Schloss Glienicke, 1987, S. 253f.
- ↑ Sievers: Bauten für den Prinzen Karl. 1942, S. 49.
- ↑ Martin Sperlich, Nicht Schloß, sondern Villa, in: Ausstellungskatalog Schloß Glienicke 1987, S. 27–31.
- ↑ Sievers: Bauten für den Prinzen Karl. 1942, S. 14.
- ↑ Friedrich Wilhelm Goethert: Katalog der Antikensammlungen des Prinzen Carl von Preußen im Schloß zu Klein-Glienicke bei Potsdam. Mainz 1972.
- ↑ Sievers zufolge waren es Kinderfiguren von Rauchs Denkmal für Francke in Halle, das 1829 fertig gestellt war, aber nur zwei Kinderfiguren aufweist. Es existieren von Rauch noch die aus diesen beiden Figuren entwickelten Allegorien der drei Kardinaltugenden, die Friedrich Wilhelm IV. am Grünen Gitter von Sanssouci aufstellen ließ. Entsprechend dem sonst stringenten Antikenprogramm scheint die – wenn auch recht versteckte – Aufstellung von süßlichen Kinderfiguren am Empfangspunkt des Glienicker Parks unwahrscheinlich. Es sei denn, sie wären ein Geschenk Friedrich Wilhelms gewesen. Sievers: Bauten für den Prinzen Karl. 1942, S. 49.
- ↑ Sievers: Bauten für den Prinzen Karl. 1942, S. 49
- ↑ Harry Nehls: Italien in der Mark – Zur Geschichte der Glienicker Antikensammlung. Berlin / Bonn 1987, S. 65.
- ↑ Helmut Börsch-Supan: Die Kunst in Brandenburg-Preußen. Ihre Geschichte von der Renaissance bis zum Biedermeier dargestellt am Kunstbesitz der Berliner Schlösser. Berlin: Gebr. Mann, 1980, S. 275–277.
- ↑ Michael Seiler, Martin Sperlich, Schloß und Park Glienicke (Zehlendorfer Chronik 1/77), Berlin 1987. Klaus von Krosigk, Heinz Wiegand: Glienicke. Berlin 1992 (Berliner Sehenswürdigkeiten, 6).
- ↑ Detailliert dargestellt mit Katalog der Einfassungssteine: Michael Seiler: Neue Untersuchungen zur ursprünglichen Gestaltung und zur Wiederherstellung des Pleasuregrounds von Klein-Glienicke. In: Detlef Heikamp (Hrsg.): Schlösser, Gärten, Berlin. Festschrift für Martin Sperlich zum 60. Geburtstag 1979, Tübingen: Ernst Wasmuth, 1980, S. 121–128.
- ↑ Seiler, Dissertation 1986, S. 113.
- ↑ Jürgen Julier: Parkgebäude nach Entwurf Schinkels, in: Ausstellungskatalog Schloß Glienicke 1987, S. 41.
- ↑ Julier: Parkgebäude nach Entwürfen Schinkels, in: Ausstellungskatalog Schloß Glienicke 1987, S. 42.
- ↑ Sievers: Bauten für den Prinzen Karl. 1942, S. 127.
- ↑ Helmut Börsch-Supan: Prinz Carl von Preußen, die Maler und die Bildhauer. In: Ausstellungskatalog Schloss Glienicke 1987, S. 488 f.
- ↑ Klaus von Krosigk, Heinz Wiegand: Glienicke. 1992, S. 42.
- ↑ Julier, Glienicke im 20. Jahrhundert, in: Ausstellungskatalog Schloss Glienicke 1987, S. 188.
- ↑ spsg.de ( des vom 4. März 2016 im Internet Archive) Info: Der Archivlink wurde automatisch eingesetzt und noch nicht geprüft. Bitte prüfe Original- und Archivlink gemäß Anleitung und entferne dann diesen Hinweis.
- ↑ Clemens Alexander Wimmer: Pflastermosaike in Berlin (West). Berlin, Technische Universität, Diplom-Arbeit, 1982.
- ↑ Tilo Eggeling: Ludwig Persius als Architekt in Glienicke, in: Ausstellungskatalog Schloß Glienicke 1987, S. 63.
- ↑ Susanne Fontaine: Stibadium in Glienicke. In: Stiftung Preußische Schlösser und Gärten Berlin-Brandenburg (Hrsg.): ludwig persius architekt des königs – baukunst unter friedrich wilhelm IV. Schnell und Steiner, Regensburg 2003, S. 189 f.
- ↑ Die halbrunde Terrasse der eigentlichen Exedra besitzt heute einen Belag in farbigem Kleinsteinmosaikpflaster.
- ↑ Sievers: Bauten für den Prinzen Karl. 1942, S. 130.
- ↑ Julier: Parkgebäude …, in: Ausstellungskatalog Schloß Glienicke 1987, S. 36.
- ↑ Sievers: Bauten für den Prinzen Karl. 1942, S. 76.
- ↑ Sievers: Bauten für den Prinzen Karl. 1942, S. 78.
- ↑ Bergau: Inventar der Bau- und Kunst-Denkmäler 1885, S. 382: „An der östlichen Außenmauer mehre[re] antike Relieffragmente von Sarkophagen. An den Wänden der Vorhalle viele römische Inschrifttafeln und Bruchstücke antiker Freskogemälde; im Fußboden mehre[re] Bruchstücke antiker Mosaiken. [S. 383] Im Theesalon: Wandmalereien nach pompejanischen Vorbildern; Mosaikfußboden aus dem Palazzo Corner della Regina in Venedig. Marmorbildwerke: Venuskopf, Kopie nach der Antike; lorbeerbekränzter Frauenkopf; weiblicher Torso, Kopie; Statue der Pandora; Amor auf einer Löwenhaut schlafend; moderne Statuette eines sich entkleidenden Mädchens. Schale aus Giallo antico: desgl. aus Rosso antico; antiker Bronzetisch mit drei Füßen, letztere in Gestalt von Muschel haltenden Amoretten, welche in Löwenklauen endigen, ausgebildet (Abb. in Gropius, Archiv für ornamentale Kunst; Vorbilder für Fabrikanten u. Handwerker). Runde Marmormosaiktischplatte.“
- ↑ Julier, Glienicke im 20. Jahrhundert, in: Ausstellungskatalog Schloss Glienicke 1987, S. 189.
- ↑ berlin.de ( des vom 17. September 2017 im Internet Archive) Info: Der Archivlink wurde automatisch eingesetzt und noch nicht geprüft. Bitte prüfe Original- und Archivlink gemäß Anleitung und entferne dann diesen Hinweis.
- ↑ Michael Seiler: Entstehung des Landschaftsgartens Klein-Glienicke, in: Ausstellungskatalog Schloß Glienicke 1987, S. 141.
- ↑ Anonymos: Spaziergang durch Potsdams Umgebungen. 1839, S. 67.
- ↑ Bergau: Inventar der Bau- und Kunstdenkmäler. 1885, S. 383.
- ↑ Seiler, Dissertation, 1986, S. 205.
- ↑ Julier: Parkgebäude …, in: Ausstellungskatalog Schloß Glienicke 1987, S. 36.
- ↑ Sievers: Bauten für den Prinzen Karl. 1942, S. 118
- ↑ Sievers: Bauten für den Prinzen Karl. 1942, S. 114.
- ↑ Sievers: Bauten für den Prinzen Karl. 1942, S. 120.
- ↑ Bergau: Inventar der Bau- und Kunst-Denkmäler. 1885, S. 385.
- ↑ Sievers: Bauten für den Prinzen Karl. 1942, S. 120
- ↑ Sievers: Bauten für den Prinzen Karl. 1942, S. 121.
- ↑ Sepp-Gustav-Gröschel: Glienicke und die Antike. In: Ausstellungskatalog Schloß Glienicke 1987, S. 248 ff. stellt keine Bezüge zwischen Prinz Carl und dem antiken Knabenchor-Leiter her.
- ↑ Sievers: Bauten für den Prinzen Karl. 1942, S. 112.
- ↑ Sievers: Bauten für den Prinzen Karl. 1942, S. 121
- ↑ Sievers: Bauten für den Prinzen Karl. 1942, S. 121
- ↑ Wagener: Klein-Glieneke. 1882, S. 578
- ↑ Christiane Segers-Glocke: Zur Wiederherstellung der Großen Neugierde im Schloßpark zu Klein-Glienicke. In: Detlef Heikamp (Hrsg.): Schlösser, Gärten, Berlin. Festschrift für Martin Sperlich zum 60. Geburtstag 1979. Ernst Wasmuth, Tübingen 1980, S. 131–144.
- ↑ Wagener: Klein-Glieneke. 1882, S. 578
- ↑ Julier, Parkgebäude nach Entwürfen Schinkels, in: Ausstellungskatalog Schloß Glienicke 1987, S. 33–38.
- ↑ Margret Schütte: Prinz … Carl von Preußen, in: Ausstellungskatalog Schloss Glienicke 1987, S. 196
- ↑ Sievers: Bauten für den Prinzen Karl. 1942, S. 97
- ↑ Sievers: Bauten für den Prinzen Karl. 1942, S. 90.
- ↑ Sievers geht davon aus, dass sich hier schon von Anfang an ein Antikengärtchen befunden hat, wofür die Parkpläne aber keinen Anhaltspunkt geben. Sievers: Bauten für den Prinzen Karl. 1942, S. 90 und S. 96.
- ↑ Bergau: Inventar der Bau- und Kunst-Denkmäler 1885, S. 384: „Außerhalb des Kasinos: An der Rückwand: Zwei Hermen aus Marmor di Porta Santa aus dem Museo del Duca di Braschi in Rom. Antike Marmorstatue des Aristoteles. Säulentrümmern von Forum des Nerva u. a.; zwei Torsen, viele Büsten, Marmorvasen, zwei Dionysoshermen; Sarkophag; gewundene Säule aus Giallo di Siena, auf reichem Renaissancesockel aus Marmor. An der Südseite: Torso der Kolossalstatue eines römischen Kaisers. Römischer Marmorsessel, reich skulpiert; Brunnenkessel aus Marmor; Marmorsäule, mit Blattornament umwunden; mehre antike Köpfe aus Marmor. An der Nordseite: Große Statue der Athena aus Porphyr; Kolossalkopf des Herkules mit Löwenhaut; Kopf des Nero; Kopf eines andern römischen Kaisers u. a. An der südlichen Terrassenmauer unter einem kleinen Baldachin: Reliefbild der Madonna in Marmor."
- ↑ Gröschel: Glienicke und die Antike, in: Ausstellungskatalog Schloß Glienicke 1987, S. 264.
- ↑ Julier, Parkgebäude nach Entwürfen Schinkels, in: Ausstellungskatalog Schloß Glienicke 1987, S. 35.
- ↑ Sievers: Bauten für den Prinzen Karl. 1942, S. 91 f.
- ↑ Sievers: Bauten für den Prinzen Karl. 1942, S. 88.
- ↑ Sievers: Bauten für den Prinzen Karl. 1942, S. 94.
- ↑ Sievers: Bauten für den Prinzen Karl. 1942, S. 94.
- ↑ Wagener: Klein-Glienicke. 1882, S. 578.
- ↑ Sievers: Bauten für den Prinzen Karl. 1942, S. 96.
- ↑ Bergau: Inventar der Bau- und Kunst-Denkmäler. 1885, S. 383: „Im Erdgeschosse drei Salons, mit vielen Kunstgegenständen aus alter und neuerer Zeit. Im nördlichen Salon: Antike Bronzegeräte, zum Teil mit schöner Patina, Ständer für Lampen und Ampeln, Lampen aus Bronze und Thon, Vasen aus Kupfer getrieben, kleinere Geräte und Gefäße aus Bronze, kleinere Bronzefiguren, mehre[re] Bronzebüsten, darunter eine weibliche Porträtbüste mit Gewandung aus Marmor di Polcevera. Statuette einer sitzenden Minerva aus Verde antico, Kopf, Arme und Füße aus weißem Marmor, in der Rechten eine Nike aus Bronze, in der Linken eine Lanze haltend, auf dem Haupte ein Bronzehelm. Mehre[re] antike Thongefäße, Marmorschalen, Dreifuß nebst Lampe aus Giallo antico. Reicher, florentinischer Mosaikfries mit Reliefkopf aus Marmor. Im Mittelzimmer: Marmorrelief von einem römischen Sarkophag, Fruchtgehänge von Engeln gehalten. Flachrelief, mit den Dioskuren, antik-römisch. Fünf antike Büsten aus Porphyr, darunter Cäsar mit Lorbeerkranz von vergoldeter Bronze; Jupiterkopf aus der Villa Altichiero bei Padua. Vierzehn antike Vasen und Schalen aus Porphyr; Dreifuß aus Porphyr; zwei antik-römische Marmorstatuen: Diana und die tragische Muse. Mehre kleinere antike Marmorköpfe. Postament, drei Knaben eine Platte haltend, aus Nußbaumholz geschnitzt. Im südlichen Zimmer: Möbel und Kunstgegenstände, vorwiegend aus der Zeit der Renaissance. Arbeiten in Holz: Drei reich geschnitzte Thürumrahmungen. Zwei große, geschnitzte Lehnsessel mit Applikationsstickerei auf rotem Sammet; Sopha und Armsessel mit reicher Holzschnitzerei und Sammetbezug; vier geschnitzte Sessel mit Lehne; geschnitzter Chorstuhl mit Intarsien. Kleine, reich geschnitzte Truhe. Zwei große Blasebälge, in Holz geschnitzt. Kleiner Schmuckkasten aus Ebenholz, mit Einlagen von edlen Steinen und Elfenbein. Zwei reich geschnitzte Konsolen. Arbeiten aus Bronze: Büste des Papstes Innocenz X., Original, nach dem Leben modelliert; Dantes Büste. Zwei Thürklopfer, vom Palazzo Mocenigo in Venedig; zwei Paar große Kandelaber, in reichem Aufbau; ein Feuerbock. Arbeiten aus Marmor: Büste des Frascatori, Arzt zu Verona; Büste des Philosophen Joachim Cammerarius; Büste des Kardinals Pietro Bembo; Büste eines unbekannten älteren Mannes. Zwei Apostelstatuetten nach Peter Vischers Originalen am Sebaldusgrabe zu Nürnberg. Wappen der Medici aus gebranntem Thon. [S. 384] Im Obergeschosse: Im Wohnzimmer eine große Sammlung japanischer Geräte und Schmuckstücke. Außerdem zwei ovale Hautreliefs aus Marmor, Maria mit dem Kinde von Alessandro Algardi und eine Kreuzabnahme, Arbeit des XVII. Jahrh.“
- ↑ Julier: Glienicke im 20. Jahrhundert, in: Ausstellungskatalog Schloss Glienicke, 1987, S. 187f.
- ↑ Der Tagesspiegel, 26. Dezember 1965.
- ↑ Sievers: Bauten für den Prinzen Karl. 1942, S. 97.
- ↑ Seiler, Dissertation. 1986, S. 194.
- ↑ Sievers: Bauten für den Prinzen Karl. 1942, S. 97.
- ↑ zitiert nach Seiler, Dissertation, 1986, S. 260.
- ↑ S. 143.
- ↑ Susanne Leiste, Glienicke in Ansichten des 19. Jahrhunderts, in: Ausstellungskatalog Schloss Gienicke 1987, S. 162.
- ↑ Seiler, Dissertation, 1986, S. 261.
- ↑ August Kopisch: Die Königlichen Schlösser und Gärten zu Potsdam. Berlin 1854, S. 192.
- ↑ Zum Antikenprogramm und der Antikenrezeption: Gröschel, Glienicke und die Antike, in: Ausstellungskatalog Schloß Glienicke 1987, S. 243–267.
- ↑ Anonymos, Spaziergang durch Potsdams Umgebungen, 1839, S. 68.
- ↑ Schinkel, der ja noch nicht den Aufstellungsort des Propylons kennen konnte, stellte auf seiner 1837 für die „Sammlung architektonischer Entwürfe“ geschaffenen Zeichnung seitlich der „Felicitas Publica“ anstelle der Iphigenie die Figur des Achill dar. Möglicherweise ist Iphigenie erst später in das Antikenprogramm aufgenommen worden, als Achill auf dem Propylon eine prominentere Aufstellung gefunden hatte. Sievers: Bauten für den Prinzen Karl. 1942, S. 61.
- ↑ Sievers: Bauten für den Prinzen Karl. 1942, S. 161.
- ↑ Bergau: Inventar der Bau- und Kunst-Denkmäler. 1885, S. 383: „dem Klosterhof in einem abgeschlossenen Vorraume, mehre byzantinische Säulen und Architekturfragmente; ein geflügelter Löwe auf hoher Säule; Brunnenstein, kapitälartig skulpiert, aus Rosso antico; runder, byzantinischer Brunnentrog. Über dem Eingang zum Klosterhof ein Mosaikbild.“
- ↑ Gerd H. Zuchold: Byzanz in Berlin. Der Klosterhof im Schloßpark Glienicke. Berlin 1984, S. 5 (Berliner Forum, 6/84)4.
- ↑ Andreas Bernhard: Die Bautätigkeiten der Architekten v. Arnim und Petzholtz. In: Ausstellungskatalog Schloß Glienicke 1987, S. 84.
- ↑ zitiert nach Rothkirch: Prinz Carl. 2006, S. 146.
- ↑ Louis Schneider: Bericht über die 22. Versammlung des Vereins für die Geschichte Potsdams. I, 1864, S. 80 ff. Zitiert nach Zuchold: der Klosterhof. Band I. 1992, S. 79–81.
- ↑ Zuchold, Gerd, H.: Der Klosterhof im Park von Schloss Glienicke in Berlin, (Die Bauwerke und Kunstdenkmäler von Berlin, Beiheft 20/21), Berlin: Brüder Mann, 1993, Band I.
- ↑ Natürlich spielte bei der Abweisung der Kaiserkrone auch die Rücksichtnahme gegenüber Österreich als Präsidialmacht des Deutschen Bundes eine Rolle.
- ↑ Zuchold: Der Klosterhof. 1993, Band I, S. 51 ff.
- ↑ Zuchold: Der Klosterhof. Band I, S. 29.
- ↑ Gary Vikan: Catalogue of the Sculpture in the Dumbarton Oaks Collection from the Ptolemaic Period to the Renaissance. Dumbarton Oaks 1995, ISBN 978-0-88402-212-1 (= Dumbarton Oaks Collection Series 6), S. 107.
- ↑ Bergau: Inventar der Bau- und Kunst-Denkmäler 1885, S. 383: „In den drei Hallen des Hofes viele byzantinische Reliefs und Heiligenstatuen; byzantinische Säulchen. zum Teil zierlich gewunden und mit Mosaik ausgelegt. Zwei Glasgemälde; zwei Bronzeampeln; gotischer Gobelin, darstellend die Kreuzigung und vier Heilige.“
- ↑ Zygmunt Swiechowski, Alberto Rizzi, Richard Hamann-MacLean, „Patere e Formelle“ – Romanische Reliefs von venezianischen Fassaden. Wiesbaden 1982, S. 18; zitiert nach Zuchold: Der Klosterhof. 1993, S. 51.
- ↑ Harry Nehls: Prinz Carl von Preußen und sein „ganz besonderes Interesse an vaterländischen Alterthümern“ zum 200. Geburtstag von „Sir Charles Glienicke“. In: Mitteilungen des Vereins für die Geschichte Berlins. Nr. 3, 2001, S. 226–231.
- ↑ Bergau: Inventar der Bau- und Kunstdenkmäler. 1885, S. 383: „der Kapelle des Klosterhofes ist eine auserlesene Sammlung vorwiegend kirchlicher Altertümer aufgestellt, welche bis in das erste Jahrtausend zurückreichen. Elf Kruzifixe aus dem XI.— XV. Jahrhundert. Der Körper aus Bronze ist auf ein Kreuz aus Holz oder Metall befestigt. Die Metallteile sind vergoldet oder mit Email champlevé belegt, zum Teil auch mit Edelsteinen besetzt. Der Heiligenschein ist bei einigen im Email angedeutet, bei einigen fehlt er oder ist durch eine Krone ersetzt. Besonders schön ist ein Kruzifix, dessen Figur mit langem Gewände bekleidet ist; letzteres blau emailliert und mit Türkisen und Rubinen besetzt; auf dem Haupte eine dreizackige Krone. Mehre[re] Vortragekreuze, größtenteils in Metall getrieben, emailliert oder mit Edelsteinen besetzt. Besonders schön ist dasjenige, welches Kaiser Heinrich II.1010 dem Baseler Münster schenkte. (Abb. in Obernetter, Kunst- und Kunstgewerbe- [S. 385] Ausstellung in München 1876, Heft 14.) Es ist aus Gold und Silber mit Filigranarbeit gefertigt und mit 122 Edelsteinen, Kameen und Gemmen besetzt; auf den Armen, unter großen Bergkristallen, Reliquien. Die Rückseite, später hinzugefügt, trägt die Zeichen der vier Evangelisten und das Bild Christi mit der Dornenkrone. Gotisches Vortragekreuz, aus vergoldetem Kupferblech, mit getriebener Arbeit; der Mitte Christus sitzend mit erhobener Rechten, die Linke auf das Evangelium gestützt. Auf den Balkenenden die vier Evangelisten. Auf der Rückseite Christus am Kreuz mit Maria, Magdalena und Johannes; oben ein Mönch. Zwei Abtsstäbe und ein Bischofsstab aus dem XII. Jahrhundert, reich ornamentiert, teils emailliert; letzterer mit durchbrochenem Ornament. Eine große Anzahl byzantinischer Emails des X.—XIII. Jahrhunderts an verschiedenen Gegenständen, z. B. an einem Triptychon, welches außerdem mit Edelsteinen und Kameen reich besetzt ist; an vielen Reliquienbehältern, zwei Buchdeckeln, Oblatenschachteln, romanischen Leuchtern, Räuchergefäßen; kleinen Reisealtären und ähnlichem. Viele kirchliche Geräte aus Bronze, Kupfer und Silber: Monstranzen; Aquamanile in Gestalt eines Löwen; Leuchterfuß in Gestalt eines Drachens; Stickereien und kleinere Gobelins; Teile von Meßgewändern und Prozessionsfahnen; Bibelhandschrift mit Initialen; geschnittene Steine; Schnitzereien in Knochen und Elfenbein, darunter ein besonders interessantes in Elfenbein geschnitztes Relief (siehe Jahrbücher des Vereines der Altertumsfreunde in Rheinland, XI, S. 123), geschnitzter Kamin und Medaille; Siegelstempel in Knochen und Marmor und ähnliches. Kleinere Glasgemälde.“
- ↑ Zuchold: Der Klosterhof. 1993, Band I, S. 54.
- ↑ Grab und Herrschaft – Totenkult von Alexander dem Großen bis Lenin. C. H. Beck, München 2003.
- ↑ Börsch-Supan: Die Kunst in Brandenburg-Preußen. 1980, S. 290 f.
- ↑ Gerd H. Zuchold: Der Klosterhof. Berlin 1993, Band II.
- ↑ Dieser Entwurf ausführlich behandelt bei: Sievers: Bauten für den Prinzen Karl. 1942, S. 126 ff.
- ↑ Margrit-Christine Schulze: Orangerie und Treibhäuser im Park Glienicke. In: Stiftung Preußische Schlösser und Gärten Berlin-Brandenburg (Hrsg.): ludwig persius architekt des königs – baukunst unter friedrich wilhelm IV. Schnell und Steiner, Regensburg 2003, S. 208–210.
- ↑ Thilo Eggeling: Ludwig Persius als Architekt in Glienicke, in: Ausstellungskatalog Schloß Glienicke 1987, S. 64.
- ↑ Landesdenkmalamt Berlin und Brandenburgisches Landesamt für Denkmalpflege und Archäologisches Landesmuseum (Hrsg.): Gartenkunst und Gartendenkmalpflege (Denkmalpflege in Berlin und Brandenburg. Arbeitshefte 2/2004), Petersberg: Michael Imhof, 2004, Vorblatt.
- ↑ bldam-brandenburg.de ( des vom 13. April 2016 im Internet Archive) Info: Der Archivlink wurde automatisch eingesetzt und noch nicht geprüft. Bitte prüfe Original- und Archivlink gemäß Anleitung und entferne dann diesen Hinweis.
- ↑ Görschel, Glienicke und die Antike, in: Ausstellungskatalog Schloss Glienicke 1987, S. 250 f.
- ↑ Katalog Schloss Glienicke, 1987, S. 16.
- ↑ Sievers: Bauten für den Prinzen Karl. 1942, S. 62.
- ↑ Bernhard: Die Bautätigkeit…, in: Ausstellungskatalog Schloß Glienicke 1987, S. 99f.
- ↑ Jürgen Julier, Siegfried Schmidt, Der Turm des Schinkel-Schlosses in Glienicke, ein denkmalpflegerisches Problem, in: Museumsjournal 3 (1989) S. 68–72
- ↑ Sievers: Bauten für den Prinzen Karl. 1942, S. 62.
- ↑ Ausstellungskatalog Das gantze Eylandt…, 1987, S. 101.
- ↑ Sievers: Bauten für den Prinzen Karl. 1942, S. 35.
- ↑ Johannes Sievers: Die Möbel (Karl Friedrich Schinkel Lebenswerk). Deutscher Kunstverlag, Berlin 1950, S. 24 f.
- ↑ Sievers, Bauten für den Prinzen Karl, 1942, S. 48.
- ↑ Winfried Baer: Zur Frage der Möblierung von Schloss Glienicke, in: Ausstellungskatalog Schloss Glienicke 1987, S. 222.
- ↑ Hermann von Pückler-Muskau: Andeutungen über Landschaftsgärtnerei. Neuauflage mit einem Vorwort von Edwin Redslob. Deutscher Kunstverlag, Berlin 1933, S. VI.
- ↑ Pückler-Muskau: Andeutungen über Landschaftsgärtnerei. Neuauflage. 1933, S. VIII.
- ↑ Zitiert nach: Helmuth von Moltkes Briefe an seine Braut und Frau, Deutsche Verlags-Anstalt, Stuttgart / Berlin 1919, S. 12–13.
- ↑ zitiert nach Schütte, Prinz … Carl, in: Ausstellungskatalog Schloß Glienicke, 1987, S. 201.
- ↑ Michael Seiler: Die Entstehungsgeschichte des Landschaftsgartens Klein-Glienicke, in: Ausstellungskatalog Schloß Glienicke 1987, S. 149.
- ↑ Sievers: Bauten für den Prinzen Karl. 1942, S. 73
- ↑ Hermann Jäger: Gartenkunst und Gärten sonst und jetzt. Berlin 1888, S. 390 ff.
- ↑ Anett Kirchner: Das verlotterte Weltkulturerbe. In: Der Tagesspiegel, 6. März 2014.
- ↑ Der Tagesspiegel vom 1. Dezember 2014.
- ↑ Hans-Joachim Dreger: Gartendenkmalpflege in Brandenburg… in: Landesdenkmalamt Berlin und Brandenburgisches Landesamt für Denkmalpflege und Archäologisches Landesmuseum (Hrsg.): Gartenkunst und Gartendenkmalpflege (Denkmalpflege in Berlin und Brandenburg. Arbeitshefte 2/2004), Petersberg: Michael Imhof, 2004, S. 23.
- ↑ Online veröffentlichter Jahresbericht 2009 der SPSG, S. 4. 2005 hatte der 150. Schinkel-Wettbewerb den „Landschaftspark zwischen Teltow-Kanal und Böttcherberg“ zum Thema. Er hatte in den städtebaulichen Bereichen bedauerlicherweise die Aufsiedlung als Vorgabe.
- ↑ Sievers: Bauten für den Prinzen Karl. 1942, S. 21.
- ↑ Sievers: Bauten für den Prinzen Karl. 1942, S. 21
- ↑ Sperlich, Seiler: Zehlendorfer Chronik. 1987, S. 30.
- ↑ Seiler, Dissertation, 1986, S. 142.
- ↑ Sievers rechnet mit 50.000, Seiler, Dissertation, 1986, S. 138 mit 40.000 Gehölzen.
- ↑ Seiler, Dissertation, 1986, S. 128.
- ↑ Sievers: Bauten für den Prinzen Karl. 1942, S. 72.
- ↑ Seiler, Dissertation, 1986, S. 242f.
- ↑ Das „Arbeiterhaus“ von 1874 (s. u., Schweizerhaus-Partie) dürfte im Entwurf mit acht Wohneinheiten für die Gartenarbeiter vorgesehen gewesen sein. Wo diese das halbe Jahrhundert zuvor wohnten oder hausten, liegt derzeit nicht einmal im Bereich des Spekulativen.
- ↑ Rothkirch: Prinz Carl. 2006, S. 96. Brief vom 5. Januar 1837.
- ↑ Seiler, Dissertation, 1986, S. 202.
- ↑ Seiler, Dissertation, 1986, S. 323.
- ↑ zitiert nach Seiler, Dissertation, 1986, S. 239.
- ↑ Seiler, Dissertation, 1986, S. 230.
- ↑ Jörg Wacker: Der Umgang mit den denkmalgeschützten gärtnerischen Anlagen der SPSG. In: Landesdenkmalamt Berlin und Brandenburgisches Landesamt für Denkmalpflege und Archäologisches Landesmuseum (Hrsg.): Gartenkunst und Gartendenkmalpflege. Michael Imhof, Petersberg 2004, S. 26 (Denkmalpflege in Berlin und Brandenburg, Arbeitshefte, 2/2004).
- ↑ Seiler, Dissertation, 1986, S. 170.
- ↑ Hans-Joachim Dreger: Gartendenkmalpflege in Brandenburg… in: Landesdenkmalamt Berlin und Brandenburgisches Landesamt für Denkmalpflege und Archäologisches Landesmuseum (Hrsg.): Gartenkunst und Gartendenkmalpflege (Denkmalpflege in Berlin und Brandenburg. Arbeitshefte 2/2004), Petersberg: Michael Imhof, 2004, S. 25. Dies sei der bei Gustav Meyer 1860 erläuterte Aufbau.
- ↑ Sievers: Bauten für den Prinzen Karl. 1942, 1942, S. 74.
- ↑ Sievers: Bauten für den Prinzen Karl. 1942, S. 141.
- ↑ Seiler, Dissertation, 1986, Abb. 30.
- ↑ Sperlich, Seiler: Zehlendorfer Chronik. 1987, S. 13.
- ↑ Ausstellungskatalog Schloß Glienicke 1987, Kat.-Nr. 292
- ↑ Kerstin Gessner: Königliche Aussicht. Gartenarchäologie im Berliner Schlosspark Klein-Glienicke. In: Archäologie in Berlin und Brandenburg 2019. 1. Januar 2019, S. 138–142 (academia.edu [abgerufen am 18. Februar 2023]).
- ↑ Seiler, Entstehungsgeschichte…, in: Ausstellungskatalog Schloß Glienicke 1987, S. 141.
- ↑ Uwe Schmohl: Denkmal des Monats 2017. berlin.de, Gartendenkmalpflege
- ↑ Eggeling: Ludwig Persius … in Glienicke, in: Ausstellungskatalog Schloß Glienicke 1987, S. 72–74. Bernhard: Die Bautätigkeit …, in: Ausstellungskatalog Schloss Glienicke 1987, S. 81–83.
- ↑ Susanne Fontaine: Wirtschaftshof in Glienicke. In: Stiftung Preußische Schlösser und Gärten Berlin-Brandenburg (Hrsg.): ludwig persius architekt des königs – baukunst unter friedrich wilhelm IV. Schnell und Steiner, Regensburg 2003, S. 213 f.
- ↑ Sievers: Bauten für den Prinzen Karl. 1942, S. 145.
- ↑ Ausstellungskatalog Schloss Glienicke 1987, S. 388.
- ↑ Sievers: Bauten für den Prinzen Karl. 1942, S. 136–137, der Band des Journals ist verschollen.
- ↑ Sievers: Bauten für den Prinzen Karl. 1942, S. 144.
- ↑ ausführlich zu Gestaltung und Bepflanzung bei Seiler, Dissertation 1986, S. 189–195.
- ↑ Sievers: Bauten für den Prinzen Karl. 1942, S. 140.
- ↑ Sievers: Bauten für den Prinzen Karl. 1942, S. 137.
- ↑ Eggeling: Persius … in Glienicke. in: Ausstellungskatalog Schloß Glienicke 1987, S. 71–73.
- ↑ August Wilhelm Ferdinand Schirmer (1802–1866). Ein Berliner Landschaftsmaler aus dem Umkreis Karl Friedrich Schinkels, Berlin: Stiftung Preußische Schlösser und Gärten, Ausstellungskatalog 1996, Kat.-Nr. 2.3, Öl auf Leinwand 27,7 × 42,3 cm.
- ↑ Die ‚belebende Idee‘ des Glienicker Parks. In: Landesgeschichtliche Vereinigung der Mark Brandenburg (Hrsg.): Jahrbuch für brandenburgische Landesgeschichte. 15, 1964, S. 50–59. Architekten und Ingenieursverein zu Berlin (Hrsg.): Berlin und seine Bauten. Band 11: Gartenwesen. Ernst und Sohn, Berlin / München 1972, S. 211. Kleine Baugeschichte Zehlendorfs. Bezirksamt Zehlendorf, Berlin 1972, S. 14.
- ↑ u. a. in Kat. Schloß Glienicke, 1987, S. 154.
- ↑ Börsch-Supan: Die Kunst in Brandenburg-Preußen. 1980, S. 289 f.
- ↑ Eggeling: Persius … in Glienicke, in: Ausstellungskatalog Schloß Glienicke 1987, S. 66–71.
- ↑ Seiler, Dissertation, 1986, S. 157.
- ↑ Sabine Bohle-Heintzenberg: Die Dampfkraft in der Parklandschaft. In: Stiftung Preußische Schlösser und Gärten Berlin-Brandenburg (Hrsg.): ludwig persius architekt des königs – baukunst unter friedrich wilhelm IV. Schnell und Steiner, Regensburg 2003, S. 75. Susanne Fontaine: Maschinen- und Gärtnerhaus Glienicke. In: Stiftung Preußische Schlösser und Gärten Berlin-Brandenburg (Hrsg.): ludwig persius architekt des königs – baukunst unter friedrich wilhelm IV. Schnell und Steiner, Regensburg 2003, S. 219 f.
- ↑ Klein-Glienicke, Schloß des Prinzen Carl von Preußen bei Potsdam. In: Leipziger Illustrierte Zeitung, 1846, Band 6, Nr. 154, S. 383. Zitiert nach Nehls: Italien in der Mark. 1987, S. 17 f.
- ↑ Seiler, Dissertation, 1986, S. 170.
- ↑ Spaziergang durch Potsdams Umgebungen. 1839, S. 69.
- ↑ zitiert nach Schütte in Ausstellungskatalog Schloss Glienicke 1987, S. 201.
- ↑ Seiler, Dissertation, 1986, S. 240.
- ↑ Harry Nehls: Italien in der Mark. 1987, S. 86.
- ↑ Wagener: Klein-Glieneke. 1882, S. 578.
- ↑ Ausstellungskatalog Schloß Glienicke, 1987, Kat.-Nr. 287, S. 415 f. Dort von Bernhard die Angabe ohne Nachweis, dass nach 1871 anstelle der heutigen Bastion oberhalb des Jägerhofes französische Geschütze aufgestellt wurden. Das Sieversfoto bietet keinen Anhaltspunkt zum Ort, möglicherweise lagen 1934 die Rohre zwischen Casino und Hofgärtnerhaus.
- ↑ Harry Nehls: Italien in der Mark. 1987, S. 44 (Anm. 183): „Die Kanonen wurden nicht, wie Sievers angibt, an die Franzosen ausgeliefert, sondern befinden sich noch immer im Glienicker Park, vergraben unter der von den Nationalsozialisten errichteten ‚bombastischen Terrasse‘. Eine ‚Exhumierung‘ ist zur Zeit nicht vorgesehen, vermutlich weil die Kanonen dann gen ‚Osten‘ gerichtet wären. Denkmalpflege sollte hier jedoch vor fragwürdigen politischen Ressentiments stehen, denn abgesehen von ihrem trophäenhaften Charakter dienten sie hier im Glienicker Park in ihrer neuen Bestimmung schließlich nicht mehr als Angriffswaffen. Traditionelle Salutschüsse, auch in unserem demokratischen Zeitalter, hat bisher noch niemand abschaffen wollen.“
- ↑ Gustav Meyer: Lehrbuch der schönen Gartenkunst: mit besonderer Rücksicht auf die praktische Ausführung von Gärten und Parkanlagen. Berlin 1860 (1873), Spalte 80
- ↑ Seiler, Entstehungsgeschichte…, in: Ausstellungskatalog Schloß Glienicke 1987, S. 148f.
- ↑ Seiler, Dissertation 1986, S. 123.
- ↑ Seiler, Dissertation, 1986, S. 123.
- ↑ Ausstellungskatalog Schloss Glienicke, Berlin 1987, Kat.-Nr. 278.
- ↑ Harry Nehls: Zur Provenienz und Lokalisierung des Festspielzeltes im Gartenhof des Schlosses zu Klein-Glienicke. In: Mitteilungen des Vereins für die Geschichte Berlins. Nr. 4, 1986, S. 433–437.
- ↑ Seiler, Dissertation 1986, S. 229. Seiler, Entstehungsgeschichte …, in: Ausstellungskatalog 1987, S. 149. Eggeling: Persius … in Glienicke, in: Ausstellungskatalog Schloss Glienicke 1987, S. 78.
- ↑ Sievers: Bauten für den Prinzen Karl. 1942, S. 150
- ↑ Margrit-Christine Schulze: Teufelsbrücke und Töpferbrücke im Park Glienicke. In: Stiftung Preußische Schlösser und Gärten Berlin-Brandenburg (Hrsg.): ludwig persius architekt des königs – baukunst unter friedrich wilhelm IV. Schnell und Steiner, Regensburg 2003, S. 197.
- ↑ zitiert nach Sievers: Bauten für den Prinzen Karl. 1942, S. 72.
- ↑ stadtentwicklung.berlin.de
- ↑ Auf der Website der ausführenden Baufirma ist seltsamerweise der erfolgte Wiederaufbau als Referenz angegeben (PDF)
- ↑ Susanne Fontaine: Matrosenhaus im Park Glienicke. In: Stiftung Preußische Schlösser und Gärten Berlin-Brandenburg (Hrsg.): ludwig persius architekt des königs – baukunst unter friedrich wilhelm IV. Schnell und Steiner, Regensburg 2003, S. 172.
- ↑ Eggeling: Persius … in Glienicke, in: Ausstellungskatalog Schloss Glienicke 1987, S. 73 f. Als Katalognummer 136 dort das nicht bei Sievers abgebildete Foto aus seinem Nachlass, das noch die Gesamtanlage zeigt.
- ↑ „An das nördliche Ende meines Parks in Glienicke, rechts von dem nach der Sacrower Spitze führenden Weges grenzt […] ein zum Kgl. Forst gehöriges […]'Stück Forstland, welches bereits jetzt theilweise für die Zwecke des fast unmittelbar davor gelegenen Jägerhofes benutzt wird.“ Anlage zu einem Brief Lennés vom 27. Februar 1839, zitiert nach Seiler, Dissertation, 1986, S. 183.
- ↑ Seiler, Dissertation, 1986, S. 229.
- ↑ Margrit-Christine Schulze: Großer Jagdschirm im Park Glienicke. In: Stiftung Preußische Schlösser und Gärten Berlin-Brandenburg (Hrsg.): ludwig persius architekt des königs – baukunst unter friedrich wilhelm IV. Schnell und Steiner, Regensburg 2003, S. 191.
- ↑ Leipziger Illustrirte Zeitung, 1846, Nr. 154, S. 384. zitiert nach Seiler, Dissertation, 1986, S. 229.
- ↑ Sievers: Bauten für den Prinzen Karl. 1942, S. 109.
- ↑ Sievers: Bauten für den Prinzen Karl. 1942, S. 103.
- ↑ Sievers: Bauten für den Prinzen Karl. 1942, S. 104.
- ↑ Margrit-Christine Schulze: Schießhütte im Park Glienicke. In: Stiftung Preußische Schlösser und Gärten Berlin-Brandenburg (Hrsg.): ludwig persius architekt des königs – baukunst unter friedrich wilhelm IV. Schnell und Steiner, Regensburg 2003, S. 191 f.
- ↑ zitiert nach Sievers: Bauten für den Prinzen Karl. 1942, S. 153.
- ↑ Ausstellungskatalog Schloß Glienicke 1987, Kat.-Nr. 147, S. 374.
- ↑ Sievers: Bauten für den Prinzen Karl. 1942, S. 153.
- ↑ Eggeling: Persius … in Glienicke, in: Ausstellungskatalog Schloß Glienicke 1987, S. 76f.
- ↑ ludwig Persius, Katalog 2003, S. 186.
- ↑ Sievers: Bauten für den Prinzen Karl. 1942, S. 143.
- ↑ Eggeling: Persius … in Glienicke, in: Ausstellungskatalog Schloß Glienicke 1987, S. 76f.
- ↑ Reichstagsprotokolle, 295. Sitzung, 24. März 1927: „Noch ein kurzes Wort über eine Etatsposition, deren Streichung der Haushaltsausschuß vorgeschlagen hat. Es handelt sich um die 120.000 Mark zur Regulierung der Sacrower Enge. Wie mir von interessierter Seite mitgeteilt worden ist, bedauert man in den interessierten Kreisen die Streichung dieser 120.000 Mark außerordentlich. Man begründete die Streichung damit, daß das wunderschöne Landschaftsbild durch die Geradelegung leiden würde. Die interessierten Kreise, Arbeitgeber wie Arbeitnehmer der Binnenschiffahrt, stehen auf dem Standpunkt, daß diese Mittel wieder eingestellt werden sollten, wenn man nicht will, daß bei gesteigerter Schiffahrt Unglücksfälle über Unglücksfälle passieren, wenn man nicht will, daß schließlich auch noch der Wassersport Opfer fordert.“.
- ↑ Seiler, Dissertation, 1986, S. 195.
- ↑ Schinkel: Sammlung architektonischer Entwürfe. Ausgabe Berlin 1858, Textband, Erläuterung zu Tafel 66.
- ↑ Seiler, Entstehungsgeschichte…, in: Ausstellungskatalog Schloss Glienicke 1987, S. 137.
- ↑ Seiler, Dissertation 1986, S.
- ↑ Wagener: Klein-Glieneke. 1882, S. 580.
- ↑ Bernhard: Die Bautätigkeit…, in: Ausstellungskatalog Schloss Glienicke, S. 87.
- ↑ Das Haus in seiner bestehenden Form ist erstmals auf einem Gedenkblatt 1877 dargestellt worden. Es gibt aber keine Hinweise darauf, dass es jemals einen anderen Turmabschluss besessen hat. Katalog Schloss Glienicke, 1987, S. 163.
- ↑ Bernhard: Die Bautätigkeit…, in: Ausstellungskatalog Schloß Glienicke 1987, S. 87, dort auch Sievers-Foto von um 1934 mit Resten des Staketenzauns.
- ↑ Seiler, Dissertation 1986, S. 232f.
- ↑ Bernhard: Die Bautätigkeit …, in: Ausstellungskatalog Schloß Glienicke 1987, S. 88.
- ↑ Seiler, Dissertation, 1986, S. 172.
- ↑ Architektonisches Skizzenbuch, 1852, Heft III, Blatt I und II.
- ↑ Seiler, Dissertation, 1986, S. 186.
- ↑ Seiler, Dissertation 1986, S. 232.
- ↑ Seiler, Dissertation 1986, S. 230.
- ↑ Seiler, Dissertation 1986, S. 231.
- ↑ Wagener: Klein-Glieneke. 1882, S. 580.
- ↑ Seiler, Dissertation, 1986, S. 306.
- ↑ Seiler, Dissertation 1986, S. 229.
- ↑ Seiler, Dissertation 1986, S. 230f.
- ↑ Seiler, Dissertation 1986, S. 228.
- ↑ Sievers: Bauten für den Prinzen Karl. 1942, S. 73.
- ↑ Wilfried M. Heidemann, St. Peter und Paul auf Nikolsloe 1838–1988, Berlin 1988.
- ↑ Bislang ist nur ein historisches Foto der Zeit um 1932 aus dem Nachlass Cerrini bekannt, abgebildet in Ausstellungskatalog Schloß Glienicke 1987, S. 373.
- ↑ Allgemeine Bauzeitung, 1845, Jahrgang X, S. 283. Egle über den Neubau der Sacrower Heilandskirche. Eggeling: Persius … in Glienicke, in Ausstellungskatalog Schloß Glienicke, 1987, S. 78 gibt irrtümlich eine Veröffentlichung im Architektonischen Skizzenbuch an.
- ↑ SPSG (Hrsg.), Ludwig Persius – Architekturführer, Potsdam 2003, S. 97.
- ↑ Ausstellungskatalog Schloß Glienicke 1987, S. 372.
- ↑ Sievers Vermutung, das Haus sei zeitgleich zum Wildparktorpförtnerhaus um 1842 erbaut worden, basiert auf Louis Schneiders falscher Datierung des Wildparktores, das ja erst nach der Parkerweiterung 1852 angelegt worden sein kann. Außerdem wäre 1842 noch Persius für den Entwurf verantwortlich gewesen.
- ↑ Bernhard: Die Bautätigkeit … in: Ausstellungskatalog Schloß Glienicke 1987, S. 87. Sievers: Bauten für den Prinzen Karl. 1942, S. 142. bildet die Anlage noch mit dem eigentlichen Tor und Staketenzaun ab. Auf dieser Aufnahme von 1934 ist die Chaussee noch nicht abgegraben und die Anlage steht entsprechend noch direkt an der Straße.
- ↑ Seiler, Entstehungsgeschichte…, in: Ausstellungskatalog Schloss Glienicke, Berlin 1987, S. 137.
- ↑ Katalog Schloss Glienicke, 1987, S. 394.
- ↑ Sievers: Bauten für den Prinzen Karl. 1942, S. 144.
- ↑ Klaus von Krosigk, Heinz Wiegand: Glienicke. 1992, S. 56.
- ↑ zitiert nach Seiler, Dissertation, 1986, S. 240.
- ↑ Eggeling: Persius in Glienicke, in: Ausstellungskatalog Schloß Glienicke 1987, S. 78 f. Sievers: Bauten für den Prinzen Karl. 1942, S. 143 f. beschreibt das Haus als Bestand, hat aber seltsamerweise kein Foto anfertigen lassen.
- ↑ Dass das Haus in der veröffentlichten Bauform auch ausgeführt worden war, ist durch ein Gedenkblatt des Jahres 1877 (Silberhochzeit des Prinzenpaares und Tod der Prinzessin) erwiesen. Dort sind alle vier Pförtnerhäuser in der überlieferten Bauform dargestellt. Glienicke-Katalog 1987, S. 475.
- ↑ vgl. Seilers parzellengenaue Parkentwicklungskarte im Katalog Schloss Glienicke, 1987, S. 137.
- ↑ Margrit-Christine Schulze: Haus am Böttcherberg. In: , Stiftung Preußische Schlösser und Gärten Berlin-Brandenburg (Hrsg.): ludwig persius architekt des königs – baukunst unter friedrich wilhelm IV. Schnell und Steiner, Regensburg 2003, S. 187. Schulze geht davon aus, dass das einst von Bernhard Kellermann bewohnte schlichte Wohnhaus im Kern noch das Pförtnerhaus sei, was unwahrscheinlich ist, da gemäß der überlieferten Karten der Abstand zwischen Pförtnerhaus und (West-Berliner) Böttcherbergpark zu schmal für die Anlage der Grenzsperranlagen war. Sie greift Eggelings Zweifel an Persius’ Urheberschaft auf. Eggeling: Persius … in Glienicke, in: Ausstellungskatalog Schloss Glienicke, 1987, S. 78 f.
- ↑ Eckhard und Herzeleide Henning: Loggia Alexandra – Gedenkstätte für Charlotte von Preußen, Kaiserin von Rußland. In: Jahrbuch Preußischer Kulturbesitz, 1974/1975, S. 105–124.
- ↑ Ausstellungskatalog Schloß Glienicke 1987, S. 108.
- ↑ Bernhard: Die Bautätigkeit …, in: Ausstellungskatalog Schloß Glienicke 1987, S. 95–98.
- ↑ Seiler, Dissertation, 1986, S. 253.
- ↑ Malve Gräfin Rothkirch: Prinz Carl von Preußen, Melle 2006, Abb. 200.
- ↑ Seiler, Dissertation, 1986, S. 253.
- ↑ Seiler, Dissertation, 1986, S. 250. Laut den dort angegebenen Jounaleintragungen entstand 1863 ein Haus, 1864 drei Häuser, 1865 ebenfalls drei Häuser und 1866 eines.
- ↑ Den größten Erfolg im Bedienen dieses Klischees erzielte Johanna Spyri mit ihren beiden Heidi-Romanen 1879/81, mit der sie das Klischee sogar weltweit prägte. Dies konnte sich aber nicht mehr auf die Glienicker Parkgestaltung niederschlagen.
- ↑ Bernhard: Die Bautätigkeit … In: Ausstellungskatalog Schloß Glienicke, 1987, S. 94.
- ↑ Seiler, Dissertation, 1986, S. 250.
- ↑ Bernhard: Die Bautätigkeit … In: Ausstellungskatalog Schloß Glienicke 1987, S. 94.
- ↑ Bernhard: Die Bautätigkeit …, In: Ausstellungskatalog Schloß Glienicke 1987, S. 95.
- ↑ Bernhard: Die Bautätigkeit …, in: Ausstellungskatalog Schloß Glienicke 1987, S. 93–95.
- ↑ Zu den Schweizerhäusern wurde von Seiten des damaligen Potsdamer Amtes für Denkmalpflege Anfang der 1990er Jahre ein Gutachten in Auftrag gegeben, dessen Ergebnisse aber noch nicht veröffentlicht worden sind.
- ↑ Katalog Schloss Glienicke, 1987, S. 94. Laut Andreas Kitschke hat sich der noch nicht veröffentlichte Bauentwurf in der Plansammlung der SPSG erhalten.
- ↑ Die für die Vorgaben des 150. Schinkelwettbewerbs 2005 Verantwortlichen des Architekten- und Ingenieurvereins Berlin glaubten offensichtlich mit der Wahl des Standorts vis-a-vis von Bauten des Namensgebers den genius loci beschwören zu können. Sie bewiesen damit allerdings hohe Inkompetenz bezüglich des Gartenkunstwerks, da natürlich die Entwürfe besonders dominant sein wollten und den Staub der Geschichte vom Gebiet fegen wollten. Die von der Jury ausgezeichneten Entwürfe sind durchaus originell und studierenswert, aber für das Welterbe absolut unverträglich, zumal sie dem Gartenkunstwerk allenfalls die Rolle als Architektenpetersilie zugestehen. http://www.aiv-berlin.de/uploads/Schinkelwettbewerb/Dokumentation_SW_2005.pdf (Seite nicht mehr abrufbar, festgestellt im Mai 2019. Suche in Webarchiven) Info: Der Link wurde automatisch als defekt markiert. Bitte prüfe den Link gemäß Anleitung und entferne dann diesen Hinweis.
- ↑ krkul.de (Seite nicht mehr abrufbar, festgestellt im Dezember 2022. Suche in Webarchiven) Info: Der Link wurde automatisch als defekt markiert. Bitte prüfe den Link gemäß Anleitung und entferne dann diesen Hinweis.
- ↑ Bernhard: Die Bautätigkeit…, in: Ausstellungskatalog Schloß Glienicke 1987, S. 101 f.
- ↑ Ilse Nicholas, Vom Potsdamer Platz zur Glienicker Brücke (Berlinische Reminiszenzen, Band 13), Berlin: Haude und Spener, 1979, S. 134.
- ↑ Fotos in Ausstellungskatalog Schloss Glienicke, 1987, Kat. Nr. 242a und b. Das Foto stammt aus der Sammlung des langjährigen Glienicker Kastellans Alfred Gobert, sein Urheber war schon 1987 nicht mehr zu ermitteln. Es findet sich im Internet: Archivierte Kopie ( des vom 4. März 2016 im Internet Archive) Info: Der Archivlink wurde automatisch eingesetzt und noch nicht geprüft. Bitte prüfe Original- und Archivlink gemäß Anleitung und entferne dann diesen Hinweis..
- ↑ Ausstellungskatalog Das gantze Eyland… Berlin 1987. Bernhard: Die Bautätigkeit … in: Ausstellungskatalog Schloß Glienicke 1987, S. 88–93.
- ↑ Bernhard: Die Bautätigkeit…, in: Ausstellungskatalog Schloß Glienicke 1987, S. 88.
- ↑ Bernhard: Die Bautätigkeit …, in: Ausstellungskatalog Schloss Glienicke, 1987, S. 92 f.
- ↑ Bergau: Inventar der Bau- und Kunst-Denkmäler. 1885, S. 380.
- ↑ Bergau: Inventar der Bau- und Kunst-Denkmäler. 1885, S. 380.
- ↑ Brief Bachmann an Ritter, SPSG, Nachlass Cerrini, Ausstellungskatalog Schloß Glienicke, 1987, S. 93.
- ↑ Bernhard: Die Bautätigkeit … In: Katalog Schloss Glienicke, 1987, S. 105.
- ↑ Klaus von Krosigk, Heinz Wiegand: Glienicke. 1992, S. 59.
- ↑ Bergau: Inventar der Bau- und Kunst-Denkmäler. 1885, S. 380.
Koordinaten: 52° 25′ 0″ N, 13° 6′ 0″ O
