Schacht Arthur de Buyer
| Schacht Arthur de Buyer | |||
|---|---|---|---|
| Allgemeine Informationen zum Bergwerk | |||
![]() | |||
| Informationen zum Bergwerksunternehmen | |||
| Betreibende Gesellschaft | Kohleminen von Ronchamp | ||
| Betriebsbeginn | 1900 | ||
| Betriebsende | 1954 | ||
| Geförderte Rohstoffe | |||
| Abbau von | Steinkohle | ||
| Geographische Lage | |||
| Koordinaten | 47° 40′ 37,2″ N, 6° 36′ 51,3″ O | ||
| |||
| Standort | Magny-Danigon | ||
| Republik | Französische Republik | ||
| Staat | Frankreich | ||
| Revier | Franche-Comté | ||
Der Schacht Arthur de Buyer oder Schacht Nr. 11 liegt auf dem Gebiet der Gemeinde Magny-Danigon in der französischen Region Bourgogne-Franche-Comté und war eine der wichtigsten Kohleminen von Ronchamp. Aktiv von 1900 bis in die frühen 1950er Jahre, betrug seine Tiefe 1010 Meter und war damit das tiefste Bergwerk Frankreichs im frühen 20. Jahrhundert. Nachdem es Kohle für fast ein halbes Jahrhundert förderte, gab es bis zu Beginn des 21. Jahrhunderts mehrere Umbauversuche. Heute sind nur Ruinen übrig.
Ansichten
-
Die Ruinen.
-
Der Schornstein.
-
In der Waschkaue. -
Anzeige von Schacht A.
-
Anzeige von Schacht B.

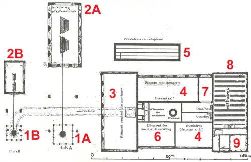
1A. Schacht A (Förderschacht)
1B. Schacht B (Wetterschacht)
2A. Fördermaschine A
2B. Fördermaschine B
3. Hauptgrubenlüfter, Druckluftanlage, Elektrischer Generator
4. Kesselhaus
5. Kühlturm
6. Elsässische Firmenzimmer
7. Duschen
8. Waschkaue
9. Büros und Lampenstube.
Weblinks
Commons: Puits Arthur de Buyer – Sammlung von Bildern, Videos und Audiodateien
.jpg)
