Schloss Neuburg (Bayern)

Als Schloss Neuburg wird das Stadtschloss in Neuburg an der Donau in Bayern bezeichnet. Das Renaissance-Schloss war lange Residenz des Wittelsbacher Herzogtums Pfalz-Neuburg.
Geschichte
Das Castell Venaxamodurum der späten römischen Kaiserzeit befand sich an der Westspitze des Stadtberges im Bereich der heutigen Münz. Eine ursprüngliche Burganlage wurde im Frühmittelalter von den Agilolfingern erbaut. Neuburg war unter Bischof Simpert von Augsburg (778 bis 809) kurze Zeit Bischofssitz, dann Hauptort einer Pfalzgrafschaft, deren Inhabern die Vogtei über das Reichslehen Neuburg zustand. Sie kam im 10. Jahrhundert an die Grafen von Scheyern und somit an Bayern. In dieser Zeit entstand wohl auch die Alte Burg nahe der Stadt. Der alte bayerische Herzoghof Neuburg mit einer weiteren Burg innerhalb der Stadt, dem heutigen Schloss Neuburg, ging 1247 an die Wittelsbacher Herzöge von Bayern über, die in der Folge dort zeitweise residierten. 1505 entstand in Folge des Landshuter Erbfolgekrieges das Herzogtum Pfalz-Neuburg mit Neuburg als Residenzstadt, was in der Folge zum weiteren Ausbau des Schlosses führte.
Stadtschloss
Von der Mittelalter-Burg zum Renaissance-Schloss

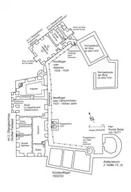
Als Pfalzgraf Ottheinrich 1522 zusammen mit seinem Bruder die Herrschaft in Pfalz-Neuburg antrat, fand er in seiner Residenzstadt Neuburg eine mittelalterlich geprägte Burganlage vor, die, anders als andere Fürstenresidenzen vergleichbarer Funktion, baulich noch nicht an die seit den letzten Jahrzehnten des 15. Jahrhunderts gewachsenen Anforderungen einer fürstlichen Hofhaltung angepasst worden war. Ab 1527 ließ er die Burg zu einem Renaissance-Schloss umgestalten und erweitern, das nach künstlerischer Qualität und Erhaltungszustand zu den bedeutendsten Schlossbauten der ersten Hälfte des 16. Jahrhunderts in Deutschland gehört.
Die Arbeiten begannen mit der (heute verschwundenen) Runden Stube auf der Ostseite des Schlosses. 1532 wurde der Küchenbau im Süden begonnen. 1534 bis 1538 folgte der Flügel im Norden des Schlosshofes mit einem Badebereich, zwei Tafelstuben und zwei Wohnappartements. Der Flügel trug ursprünglich eine über die gesamte Gebäudefläche hin offene Terrasse, die wahrscheinlich gärtnerisch gestaltet war. (Dies entsprach den Vorstellungen, die man sich damals über den kaiserlich antiken Palast auf dem römischen Palatin machte.) Das heutige Satteldach mit Volutengiebeln und Zwerchhäusern stammt aus der Zeit um 1590/1600.
Etwas außerhalb der Residenzstadt Neuburg war schon 1529 mit der Anlage eines großen Hofgartens begonnen worden; und ein Jahr später ließ sich das Herzogspaar vor den Toren der Stadt das Jagdschloss Grünau errichten. Auch hier wurden mittelalterliche Traditionen, wie die Darstellung von Jagdtrophäen und heraldischen Herrschaftszeichen, mit zahlreichen Anspielungen auf antike Hochkultur zusammen gebracht.
-

-
Vor dem barocken Umbau des Ostflügels (1546) -
Neuburg (um 1720)
Schlosskapelle


Ab 1537 wurde im Westen des Stadtschlosses ein neuer Flügel hinzugefügt, der zusätzlich zum alten Ostteil mit seiner inzwischen abgängigen spätmittelalterlichen Burgkapelle nun eine in einem historisierenden, an romanische Klosterrefektorien erinnernden Stil gehaltene Hofstube, eine neue Kapelle mit Herrschaftsempore und wahrscheinlich ein damit direkt verbundenes neues Appartement für Ottheinrich aufnahm. Darüber folgte ein großer Saal, dessen Holztonnengewölbe bis in den Dachstuhl reichte. Bereits vor seinem Übertritt zur lutherischen Lehre am 22. Juni 1542 ließ der Pfalzgraf die Schlosskapelle als Einbau in die vorhandene Bausubstanz der Bastion errichten und den Raum mit einer umfangreichen Ausstattung versehen, wovon noch heute im sehr kleinen Chor der bereits 1540 bestellte und Anfang 1542 fertige Altar mit einer steinernen fünfteiligen Kreuzigungsgruppe als Retabel, die Emporenbrüstungen und das umfangreiche, erst ab Sommer 1543 im italienisch-antikisierenden Stil gemalte protestantische Bildprogramm an Decke und oberen Wänden erhalten sind.
Die Kapelle wurde vom Nürnberger Reformator Andreas Osiander am 25. April 1543[1][2] bei der Einführung der neuen Kirchenordnung des Herzogtums in evangelischem Sinn gewidmet und ist somit nach der Schlosskirche Hohentübingen von um 1535 der zweitälteste erhaltene protestantische Kirchenraum weltweit,[3][4][5] gefolgt von der Schlosskapelle in Torgau, von Martin Luther am 5. Oktober 1544 noch persönlich eingeweiht, und von der Schlosskapelle im Stuttgarter Alten Schloss, 1558–1562 errichtet, die beide den Beginn der einzigen rein protestantischen Kirchbauform, der Querkirche, bilden. Die berühmten Fresken des Salzburger Kirchenmalers Hans Bocksberger d. Ä. gestalten die Neuburger Schlosskapelle zum ersten Kirchenraum mit explizit lutherischem Bildprogramm; der Bilderzyklus gilt als einmalig in der Geschichte des protestantischen Kirchenbaues. Er zeigt vor allem jene Szenen des Alten Testamentes, die in einem engen Bezug zur Reformation stehen, und beginnt im Bild der Erschaffung Evas und dem Sündenfall. Es folgen die zehn Plagen des Pharao und Bilder menschlicher Verstöße gegen die Gebote Mose. Die weiteren Bilder zeigen als Gesamtkomposition Christi Tod am Kreuz, Taufe und Abendmahl. Das Deckenbild der Kapelle zeigt ein Fresko mit der Himmelfahrt Christi. Es wurde nicht nur die entscheidende Rolle Christi als göttlicher Gnadengarant thematisiert. Vielmehr wurde auch die wichtige Rolle des Fürsten bei der Distribution dieser Gnade innerhalb einer gottgewollten irdischen Ordnung reklamiert. Die Arbeiten am Westflügel zogen sich, bedingt durch die Finanzschwierigkeiten und den Bankrott Ottheinrichs 1544, über längere Zeit hin. Der Rohbau war zwar schon um 1540 vollendet; aber noch in den 1550er Jahren wurden Rotmarmorgewände der Fenster versetzt und an der Ausstattung gearbeitet. Die restauratorisch freigelegten Weihekreuze als Zeichen der nach katholischem Ritus vollzogenen Konsekration stammen wohl von der Rekatholisierung des Raumes ab 1614.
Westflügel

Pfalzgraf Ottheinrich von Pfalz-Neuburg baute ab 1537 den Westflügel, welcher auch als Ottheinrichbau bezeichnet wurde. Die Umbauarbeiten dauerten sehr lange und streckten sich bis in die 1550er Jahre. Dies hatte als Grund, dass das Fürstentum unter Ottheinrichs Leitung mit Geldproblemen zu kämpfen hatte, da der Umbau sehr viel kostete. Pfalzgraf Wolfgang von Zweibrücken, der im Herzogtum Pfalz-Neuburg die Nachfolge seines Vetters Ottheinrich antrat, ließ 1562 den Westflügel auf der Hofseite mit aufwändigen Sgraffitodekorationen schmücken. Ihr Leitthema ist die Geschichte von Joseph und seinen Brüdern, ein in mehrfacher Hinsicht symbolträchtiges Thema. Josephs Schicksal, von seinen Brüdern verraten und an den Pharao verkauft zu werden, um sodann aufgrund seiner Weisheit und Traumdeutungskünste zum stellvertretenden Regenten im Reich des Pharaos aufzusteigen, wurde nicht nur zu einem Symbol für den guten Regenten im Allgemeinen und die durch Papst und Kaiser verfolgten protestantischen Fürsten im Besonderen, sondern auch zu einem Symbol für das wendungsreiche Schicksal Ottheinrichs. An dessen Standhaftigkeit und schließliche Rechtfertigung wollte Pfalzgraf Wolfgang erinnern und den ethischen Kern der Bildaussage, die Präsentation eines guten und gerechten Herrschers, zugleich auf seine eigene Person bezogen wissen. Schloss Neuburg wurde dabei gewissermaßen zum Ehrendenkmal für Ottheinrich erhoben, von dem aus sowohl die Vertreibung als auch die Wiedereinsetzung des Fürsten in sein Amt ihren Ausgang genommen hatten.
Der Rittersaal (die untere Tafelstube im Nordbau) wurde 1575 von Hans Pihel mit einer Kassettendecke und einer umlaufenden Wandvertäfelung aus Holz ausgestattet, beides ist original erhalten.
Ostflügel
Der imposante Ostflügel wurde 1665 unter Philipp Wilhelm im Stil des Barock umgebaut und mit den beiden Rundtürmen ergänzt. 1795 zog Herzogin Amalie, Gattin des verstorbenen Herzog Karl II. August, in den Philipp-Wilhelm-Trakt des Schlosses ein. Ihr Schwager, König Max I., wohnte 1806 eine Zeit lang im zweiten Stock des Philipp-Wilhelm-Traktes, der 1810 für ihn renoviert wurde. 1815 konnte die Kaiserin von Österreich im Neuburger Schloss empfangen werden. Nach dem Tod der Herzogin (1831) war die Rolle des Schlosses als Residenzort zu Ende. 1866 wurde das Schloss endgültig ausgeräumt und die Einrichtung, so sie nicht nach München kam, öffentlich versteigert. Im Krieg von 1866 wurde das Schloss als Lazarett verwendet. Zwischen 1868 und 1918/19 diente es als Kaserne für das III. Bataillon des Königlich Bayerischen 15. Infanterie-Regiments. Die Stadt Neuburg erwarb bei einer Nachlassversteigerung die Möbel und die Seidentapeten des Empfangssalons, die aber bei einem Brand 1945 zerstört wurden.[6]
-
Innenhof mit dem ab 1537 errichteten Saalbau -
Hofstube aus dem 16. Jahrhundert im Erdgeschoss des Westflügels -
Muschelgrotte -
Grotte -
Porträt des Pfalzgrafen Ottheinrich (von Barthel Beham, 1533)
Staatsarchiv
Nach der Säkularisation existierten für die schwäbischen Gebiete zunächst drei Archivbehörden. Die Bestände aus Dillingen an der Donau und Kempten wurden 1830 in das Archivkonservatorium Neuburg (ging auf das Archiv des Fürstentum Pfalz-Neuburg zurück) eingegliedert. Das Archiv, dessen Name mehrfach wechselte, hatte bis 1989 seinen Standort im Schloss. Es wurde als Staatsarchiv Augsburg in die schwäbische Bezirkshauptstadt verlegt.
Museen
Das renovierte Schloss beherbergt heute einige Museen:
- Schlossmuseum Neuburg an der Donau (Bildteppiche, Waffen, Möbel und Kunsthandwerk der Renaissance sowie idie Dauerausstellung „Das Fürstentum Pfalz-Neuburg“)
- Staatsgalerie Neuburg (Flämische Barockmalerei)
- Archäologie-Museum Schloss Neuburg an der Donau (vorübergehend geschlossen)
- Fossilienkabinett im Schlossmuseum Neuburg
Ausstellungen
- 2016: Kunst & Glaube. Ottheinrichs Prachtbibel und die Schlosskapelle Neuburg. Schloss Neuburg. Katalog.
Literatur
- Reinhard H. Seitz: Die Schloßkapelle zu Neuburg a. d. Donau. Einer der frühesten evangelischen Kirchenräume im Spiegelbild von Reformation und Gegenreformation. Weißenhorn 2016, ISBN 978-3-87437-572-6.
- Adam Horn; Werner Meyer: Die Kunstdenkmäler von Bayern. Teil Schwaben, Band 5 Stadt und Landkreis Neuburg an der Donau. München 1958. Zum Neuburger Schloss dort S. 158–266. ISBN 3-486-50516-5
- Horst H. Stierhof: Wand- und Deckenmalereien des Neuburger Schlosses im 16. Jahrhundert. Diss. München 1972 (Sonderdruck aus dem Neuburger Kollektaneenblatt 125/1972).
- Ulrike Heckner: Im Dienst von Fürsten und Reformation. Fassadenmalerei an den Schlössern in Dresden und Neuburg an der Donau im 16. Jahrhundert. München 1995.
- Stephan Hoppe: Der Schloßbau Ottheinrichs von der Pfalz in Neuburg an der Donau. Überlegungen zu Beziehungen zur kurpfälzischen Hofarchitektur der 1520er Jahre. In: Stefanie Lieb (Hrsg.): Form und Stil. Festschrift für Günther Binding zum 65. Geburtstag. Darmstadt 2001, S. 202–212. Onlineversion auf ART-Dok.
- Fritz Grosse: Image der Macht. Das Bild hinter den Bildern bei Ottheinrich von der Pfalz (1502–1559). Petersberg 2003.
- Stephan Hoppe: Antike als Maßstab. Ottheinrich als Bauherr in Neuburg und Heidelberg. In: Suzanne Bäumler, Evamaria Brockhoff, Michael Henker (Hrsg.): Von Kaisers Gnaden. 500 Jahre Pfalz-Neuburg. Katalog zur Bayerischen Landesausstellung 2005 Neuburg an der Donau 3. Juni bis 16. Oktober 2005. Augsburg 2005, S. 211–213. Onlineversion auf ART-Dok.
- Reinhard H. Seitz: Die Repräsentationsbauten von Pfalzgraf Ottheinrich für das Schloss zu Neuburg an der Donau und ihre Vollendung durch Pfalzgraf Wolfgang. In: Hans Ammerich (Hrsg.): Kurfürst Ottheinrich und die humanistische Kultur in der Pfalz. Überarbeitete und erweiterte Vorträge, die anlässlich der Wissenschaftlichen Tagung „Kurfürst Ottheinrich und die Humanistische Kultur in der Pfalz“ am 20. und 21. September 2002 in der Pfälzischen Landesbibliothek Speyer gehalten wurden. Speyer 2008, S. 73–149.
Weblinks
- Bayerische Verwaltung der staatlichen Schlösser, Gärten und Seen
- 500 Jahre Pfalz-Neuburg
- Schloss Neuburg an der Donau, Residenz in der privaten Datenbank Alle Burgen.
Einzelnachweise
- ↑ Wolfgang Kaps: Ottheinrich von Pfalz-Neuburg und die Reformation in seinem Fürstentum und in der Kurpfalz; Online-Publikation August 2017, S. 138, PDF [1], zuletzt aufgerufen am 9. Juli 2023
- ↑ Andreas Osiander d. Ä.: Gesamtausgabe Bd. 8 - Schriften und Briefe April 1543 bis Ende 1545; Gütersloh 1990 - siehe S. 83–111, zuletzt aufgerufen am 9. Juli 2023 - siehe dort S. 83 (Einleitung, 1. Entstehung)
- ↑ Reinhard H. Seitz: Die Schloßkapelle zu Neuburg a. d. Donau - Einer der frühesten evangelischen Kirchenräume; Weißenhorn 2016, ISBN 978-3-87437-572-6 - korrekturbedürftig S. 8 f die Aussagen zur Einweihungspredigt.
- ↑ EKD: „Sprechenden Kirchenraum“: Neuburger Schlosskapelle wiedereröffnet, aufgerufen am 6. November 2016.
- ↑ Homepage der Evangelischen Kirchengemeinde ( des vom 7. April 2017 im Internet Archive) Info: Der Archivlink wurde automatisch eingesetzt und noch nicht geprüft. Bitte prüfe Original- und Archivlink gemäß Anleitung und entferne dann diesen Hinweis., aufgerufen am 2. Oktober 2018
- ↑ Gerhard Nebinger, 1980, S. 32.
Koordinaten: 48° 44′ 13,3″ N, 11° 10′ 51,1″ O

