Stanzwerkzeugbau

Der Stanzwerkzeugbau ist ein Teilgebiet des Werkzeugbaus und stellt Werkzeuge zum Stanzen von Blech und anderen Halbzeugen her.
Stanzwerkzeuge in der Massenproduktion sind oft keine reinen Schneidwerkzeuge, sondern dienen auch zur Bearbeitung von dünnen Blechen durch Umformen (Biegen, Stauchen, Ziehen). Wenn diese Arbeitsschritte hintereinander erfolgen, wird die als Folgeverbund bezeichnet. Dicke Bleche lassen sich nicht mehr durch Schneid- und Umformwerkzeuge kalt bearbeiten, sondern werden erhitzt und durch Gesenkschmieden umgeformt.
Typische gestanzte Artikel sind etwa Unterlegscheiben und Lochband. Gestanzt und umgeformte Werkstücke aus der Massenproduktion werden beispielsweise im Automobilbau oder als Haushaltswaren verwendet.
Da die Fertigung der Stanzwerkzeuge aufwändig ist, lohnt die Produktion erst ab einer gewissen Mindeststückzahl. Die Aktivelemente des Werkzeugs bestehen, je nach Anwendungsgebiet, aus gehärtetem, vergütetem Werkzeugstahl, Hartmetall oder Keramik. Zur Erhöhung der Standzeiten werden die Aktivelemente häufig beschichtet (z. B. TiN, TiCN oder AlCrN).
Verfahren
Der Stanz- und Umformwerkzeugbau dient der Herstellung von Werkzeugen, die zur serienmäßigen Herstellung von Produkten aus verschiedensten Materialien wie Metall, Nichteisenmetall, Kunststoff, Papier, Holzfurnier usw. benötigt werden.
Bei dieser Art der Materialbearbeitung handelt es sich immer um spanlose Fertigung. Nach DIN 8580 die Hauptgruppen 2 Umformen und Hauptgruppe 3 Trennen.
- Umformwerkzeuge dienen der Verarbeitung von allen plastisch bearbeitbaren Materialien
- Stanzwerkzeuge werden unter der DIN 8588 (Zerteilen Gruppe 3.1) geführt. Verarbeitet werden alle trennbaren Materialien.
Umformwerkzeuge
Umformwerkzeuge führen zu einer bleibenden Verformung des zu bearbeitenden Materials durch:
- Druckumformen DIN 8583 (Gruppe 2.1)
- Zugdruckumformen DIN 8584 (Gruppe 2.2)
- Zugumformen DIN 8585 (Gruppe 2.3)
- Biegeumformen DIN 8586 (Gruppe 2.4)
- Schubumformen DIN 8587 (Gruppe 2.5)
- Gesamtschneiden
- Feinschneiden
Werkzeugtechnologien

Nach Aufbauart können die folgenden Werkzeugtechnologien unterschieden werden:
Gesamtschnitt
Als Gesamtschneiden oder Komplettschneiden bezeichnet man das Schneiden mehrerer Schnittlinien am gleichen Werkstück in einem Hub. Dabei werden Teile hergestellt, die Innen- und Außenform besitzen. Die Lagegenauigkeit von Innen- zu Außenform ist besser als beim Folgeschneiden.

Folgeschnitt
Als Folgeschneiden bezeichnet man das Schneiden mehrerer Schnittlinien am gleichen Werkstück in mehreren Hüben. Dabei werden Teile hergestellt, die Innen- und Außenform besitzen. Die Lagegenauigkeit von Innen- zu Außenform ist schlechter als beim Gesamtschneiden.
Folgeverbund
Im Folgeverbundwerkzeug wird der Blechstreifen solange um die jeweilige Vorschublänge durch das Werkzeug getaktet, bis die letzte Station erreicht ist. Entweder wird das Werkstück dann vom sogenannten Trägerstreifen abgetrennt (vereinzelt) oder als Endlosband für den nächsten Arbeitsgang aufgewickelt. Zusätzlich zum Folgeschnitt werden im Folgeverbund auch Umformoperationen durchgeführt. Es können auch andere Verfahren wie Gewindeformen oder Fügen ins Werkzeug integriert werden.
Modultechnik
Die Modultechnik stellt eine spezielle Bauweise von Folgeverbundwerkzeugen dar. Hier wird ein universell nutzbares Grundwerkzeug, auch Muttergestell genannt, verwendet, das mittels einschiebbaren Werkzeugmodulen zum individuellen Stanzwerkzeug wird. Die Werkzeugmodule bestehen hauptsächlich aus gehärteten Modulplatten. Die Vorteile dieser modularen Bauweise sind schnelle Rüstzeiten, einfaches Handling und höchste Präzision.
Transfer- und Großwerkzeuge
Im Transferwerkzeug werden zuerst einzelne Blechstücke in der Trennstation abgetrennt. Die abgetrennten Einzelteile werden dann mittels Greifern und einer mit der Presse gekoppelten Transfereinrichtung von Arbeitsschritt zu Arbeitsschritt transportiert. Die einzelnen Arbeitsschritte sind als Einzelteile im Werkzeug zu sehen. Diese Bauweise findet häufig Anwendung im Automobilbereich mit Größen von bis zu 2 × 5 Metern.
Kombinationen
Es sind auch Kombinationen von Folgeverbund- und Transferwerkzeug möglich. Das Teil wird zuerst als Folgeverbundteil bearbeitet, abgetrennt und dann mittels Greifern zu weiteren Schritten transportiert.
Stanzgestelle
Die Stanzgestelle können je nach Werkzeugtechnologie unterschiedlich aufgebaut sein. Anbieter von Normalien stellen hier standardisierte und bereits vorgefertigte Stanzgestelle in verschiedenen Größen und Konfigurationen zur Verfügung.
Viersäulengestelle

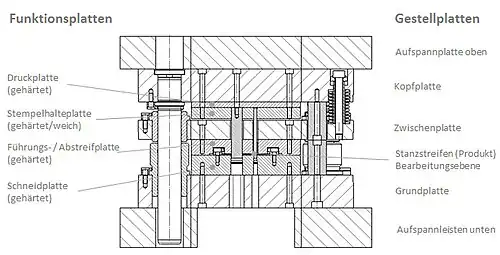
Das Viersäulengestell wird vor allem bei Folgeverbundwerkzeugen eingesetzt. Es setzt sich im Wesentlichen aus Gestellplatten und Funktionsplatten zusammen. Zu den Gestellplatten gehören obere und untere Aufspannplatten bzw. -leisten, Kopfplatte, Zwischenplatte sowie Grundplatte. Diese können aus Werkzeug- bzw. Vergütungsstahl oder Aluminium bestehen. Die Funktionsplatten beinhalten Druckplatte, Stempelhalteplatte, in denen die Schneidstempel aufgehängt werden, Führungs- bzw. Abstreifplatte sowie Schneidplatte, auch Matrize genannt, die das Negativ der Schneidstempel abbildet. Diese Platten werden üblicherweise aus gehärtetem Stahl hergestellt. Die Befestigung der Führungssäule kann entweder in der Kopf- oder Grundplatte geschehen. Bei erhöhten Präzisionsanforderungen kann die Führungssäule auch mittig in der Zwischenplatte montiert werden. Bei dieser Art der Versäulung werden bei Scherkräften deutlich geringere Säulendurchbiegungen erzielt.
Zweisäulengestelle

Wie der Name bereits sagt, besteht dieses Gestell aus zwei Säulen, die unterschiedlich angeordnet sein können (hinten, zentral oder diagonal). Sie finden Anwendung in einfachen Einlegoperationen und kleinen Stückzahlen sowie in der modularen Bauweise als Muttergestell.
Gussgestelle
Gerade für große Transferwerkzeuge werden hauptsächlich Gussgestelle verwendet. Für die einzelnen Bearbeitungsstationen wählt man meistens Platten aus gehärtetem Stahl.